4915 South Road New Port Richey, FL 34652 - CROSS BAYOU W ACCESS TO GULF
For Sale MLS# TB8447875
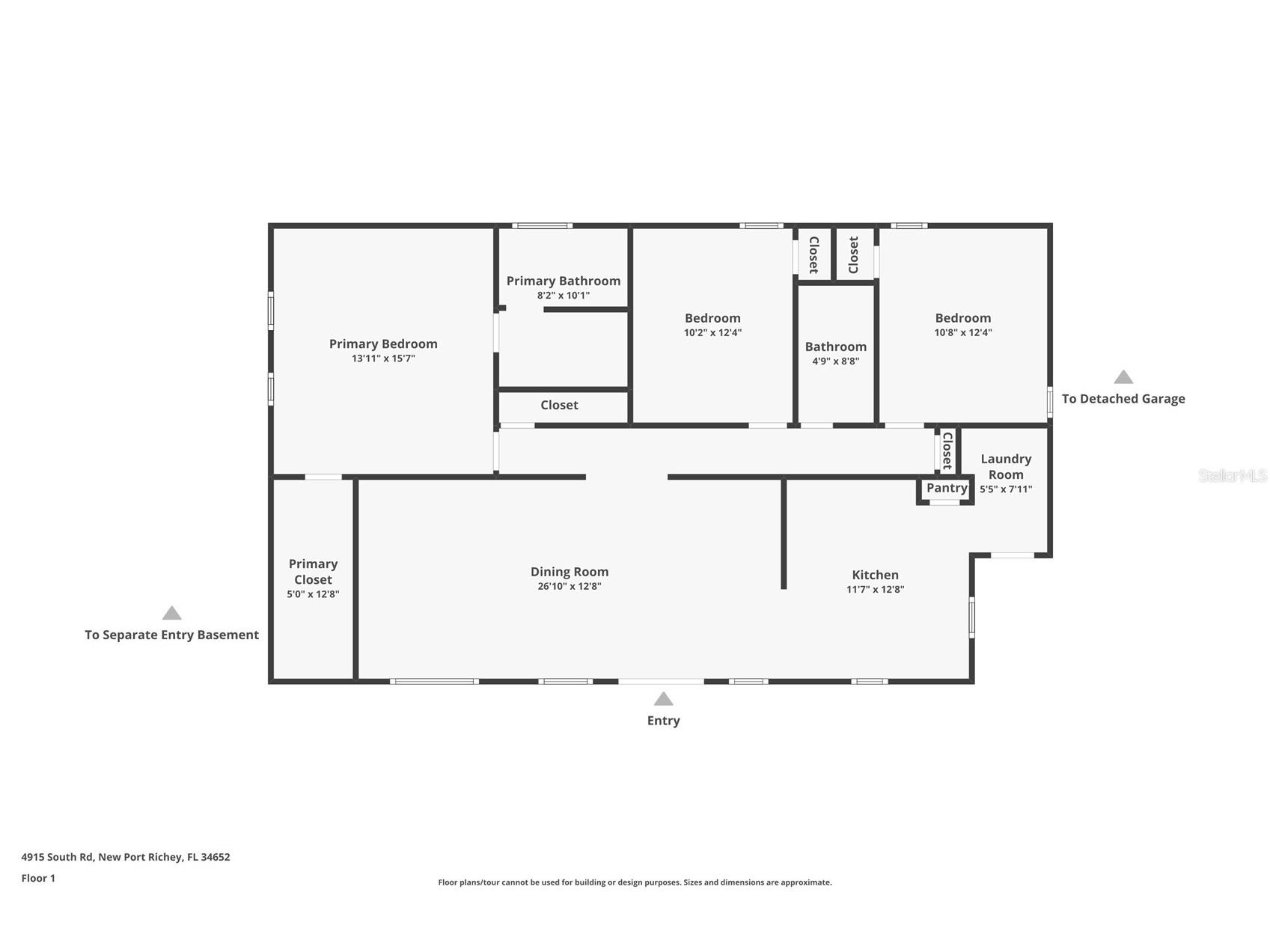
4 beds 3 baths 1,612 sq ft Single Family
Details for 4915 South Road
MLS# TB8447875
Description for 4915 South Road, New Port Richey, FL, 34652 - CROSS BAYOU W ACCESS TO GULF
WATERFRONT PARADISE! RARE OPPORTUNITY! GULF ACCESS! 2.3 PRIVATE ACRES! SALT WATER POOL! YOUR OWN BOAT RAMP! RV PARKING & HOOKUP! LARGE GARAGE PLUS A LARGE DETACHED BUILDING! DEAD END STREET! NO HOA! 240 FT OF WATERFRONT! Welcome to a truly unique waterfront estate located just 1.5 miles from downtown New Port Richey. Situated on 2.3 private acres with 240 feet of direct frontage on Cross Bayou and easy access to the Gulf of Mexico, this elevated home offers privacy, space, and the ultimate Florida lifestyle. The property also benefits from planned road renovations by the City of New Port Richey, which will enhance access and infrastructure in the area. Additionally, the large water tanks nearby are currently out of service, helping maintain the open feel and peaceful surroundings. The elevated main living area features 3 bedrooms and 2 bathrooms and has been beautifully updated throughout. The gourmet kitchen showcases slate tile floors, contemporary soft-close cabinetry, a large granite island, custom lighting, stainless steel appliances including a new LG convection oven, vented range hood, microwave, tile backsplash, and a porcelain farmhouse sink. French doors with built-in blinds open to stunning views of the pool and waterfront. The spacious primary suite offers custom-built closets and a spa-style bathroom with a large walk-in shower featuring dual shower heads, a mahogany vanity, and double pedestal sinks. Two additional bedrooms share a beautifully updated full bath. The lower level offers exceptional flexibility, featuring a large recreation and entertainment area, extensive garage and storage space, and a private bonus studio with its own bathroom that could function as a potential fourth bedroom, guest suite, or workspace. Outdoor living is where this property truly shines. Enjoy your private 12' x 24' saltwater pool, complete with a brand-new 2025 pool pump, liner, and volleyball set. The outdoor entertainment area includes a built-in charcoal grill, covered work benches, and a pool table included with the home. Additional highlights include a large exterior dumbwaiter elevator lift that makes bringing groceries upstairs easy, interior laundry with washer and dryer, custom lighting throughout, built-in closets, and a 1,000-gallon septic tank. For those needing space for boats, vehicles, or hobbies, the property includes RV parking with water, drain, and 220V hookup, a massive pole barn, and a large detached building perfect for recreational equipment, a workshop, or greenhouse. An air compressor is also included in the sale. With more than 2 acres of usable land, there is still room to create additional amenities such as a pickleball court, putting green, guest house, or expanded outdoor entertaining space. Golf-cart friendly and located minutes from the restaurants, parks, riverfront, and events in downtown New Port Richey, this exceptional property offers a rare combination of waterfront access, acreage, privacy, and convenience. This is more than just a home—it’s a lifestyle. Motivated sellers — bring your offer!
Listing Information
Property Type: Residential, Single Family Residence
Status: Active
Bedrooms: 4
Bathrooms: 3
Lot Size: 2.31 Acres
Square Feet: 1,612 sq ft
Year Built: 2003
Garage: Yes
Stories: 1 Story
Construction: Wood Siding,Wood Frame
Construction Display: New Construction
Subdivision: Tampa Tarpon Spgs Land Co
Foundation: Pillar/Post/Pier
County: Pasco
Construction Status: New Construction
School Information
Elementary: Richey Elementary School
Middle: Gulf Middle-Po
High: Gulf High-Po
Room Information
Main Floor
Bedroom 4: 8x8
Upper Floor
Kitchen: 11x12
Game Room: 12x27
Bedroom 3: 10x12
Bedroom 2: 10x12
Primary Bedroom: 12x14
Living Room: 12x16
Bathrooms
Full Baths: 3
Additonal Room Information
Laundry: Inside, Laundry Room
Interior Features
Appliances: Electric Water Heater, Exhaust Fan, Water Softener, Range Hood, Range, Refrigerator, Microwave, Cooktop, Dishwasher, Dryer
Flooring: Ceramic Tile,Engineered Hardwood,Slate,Wood
Accessibility: Accessible Elevator Installed, Exterior Wheelchair Lift
Additional Interior Features: Solid Surface Counters, Open Floorplan, Crown Molding, Main Level Primary, Living/Dining Room, Walk-In Closet(s), Ceiling Fan(s), Elevator
Utilities
Water: Public
Sewer: Septic Tank
Other Utilities: Cable Available,Cable Connected,Electricity Connected,Propane,Water Connected
Cooling: Ceiling Fan(s), Central Air, Wall/Window Unit(s)
Heating: Central, Electric
Exterior / Lot Features
Attached Garage: Attached Garage
Garage Spaces: 4
Parking Description: Golf Cart Garage, Boat
Roof: Shingle
Pool: Salt Water, In Ground, Solar Heat
Lot View: Bayou,Garden,Pool,Water
Additional Exterior/Lot Features: Lighting, Rain Gutters, Rear Porch, Side Porch, Wrap Around, Front Porch, Patio, Porch, Deck, Flat, Level, Private, Landscaped, Cul-de-Sac, Private Road, Dead End, Oversized Lot
Out Buildings: Shed(s), Storage, Workshop, Other
Waterfront Details
Standard Water Body: CROSS BAYOU W ACCESS TO GULF
Water Front Features: Gulf Access, Bayou
Community Features
Security Features: Security System, Fire Alarm, Smoke Detector(s)
Driving Directions
US19 to South Road, go west on South Road to 4915 (private road), home is on the right.
Financial Considerations
Terms: Cash,Conventional,FHA,VA Loan
Tax/Property ID: 06-26-16-0050-04400-0090
Tax Amount: 5522
Tax Year: 2024
A broker reciprocity listing courtesy: RE/MAX ELITE REALTY
Based on information provided by Stellar MLS as distributed by the MLS GRID. Information from the Internet Data Exchange is provided exclusively for consumers’ personal, non-commercial use, and such information may not be used for any purpose other than to identify prospective properties consumers may be interested in purchasing. This data is deemed reliable but is not guaranteed to be accurate by Edina Realty, Inc., or by the MLS. Edina Realty, Inc., is not a multiple listing service (MLS), nor does it offer MLS access.
Copyright 2026 Stellar MLS as distributed by the MLS GRID. All Rights Reserved.
Payment Calculator
Interest rate and annual percentage rate (APR) are based on current market conditions, are for informational purposes only, are subject to change without notice and may be subject to pricing add-ons related to property type, loan amount, loan-to-value, credit score and other variables. Estimated closing costs used in the APR calculation are assumed to be paid by the borrower at closing. If the closing costs are financed, the loan, APR and payment amounts will be higher. If the down payment is less than 20%, mortgage insurance may be required and could increase the monthly payment and APR. Contact us for details. Additional loan programs may be available. Accuracy is not guaranteed, and all products may not be available in all borrower's geographical areas and are based on their individual situation. This is not a credit decision or a commitment to lend.
Sales History & Tax Summary for 4915 South Road
Sales History
| Date | Price | |
|---|---|---|
| Currently not available. | ||
Tax Summary
| Tax Year | Estimated Market Value | Total Tax |
|---|---|---|
| Currently not available. | ||
Data powered by ATTOM Data Solutions. Copyright© 2026. Information deemed reliable but not guaranteed.
Schools
Schools nearby 4915 South Road
| Schools in attendance boundaries | Grades | Distance | Rating |
|---|---|---|---|
| Loading... | |||
| Schools nearby | Grades | Distance | Rating |
|---|---|---|---|
| Loading... | |||
Data powered by ATTOM Data Solutions. Copyright© 2026. Information deemed reliable but not guaranteed.
The schools shown represent both the assigned schools and schools by distance based on local school and district attendance boundaries. Attendance boundaries change based on various factors and proximity does not guarantee enrollment eligibility. Please consult your real estate agent and/or the school district to confirm the schools this property is zoned to attend. Information is deemed reliable but not guaranteed.
SchoolDigger ® Rating
The SchoolDigger rating system is a 1-5 scale with 5 as the highest rating. SchoolDigger ranks schools based on test scores supplied by each state's Department of Education. They calculate an average standard score by normalizing and averaging each school's test scores across all tests and grades.
Coming soon properties will soon be on the market, but are not yet available for showings.