$524,900
Off-Market Date: 12/04/2025492 Lanarkshire Place Apopka, FL 32712
Pending MLS# V4946027
4 beds 3 baths 2,465 sq ft Single Family
Details for 492 Lanarkshire Place
MLS# V4946027
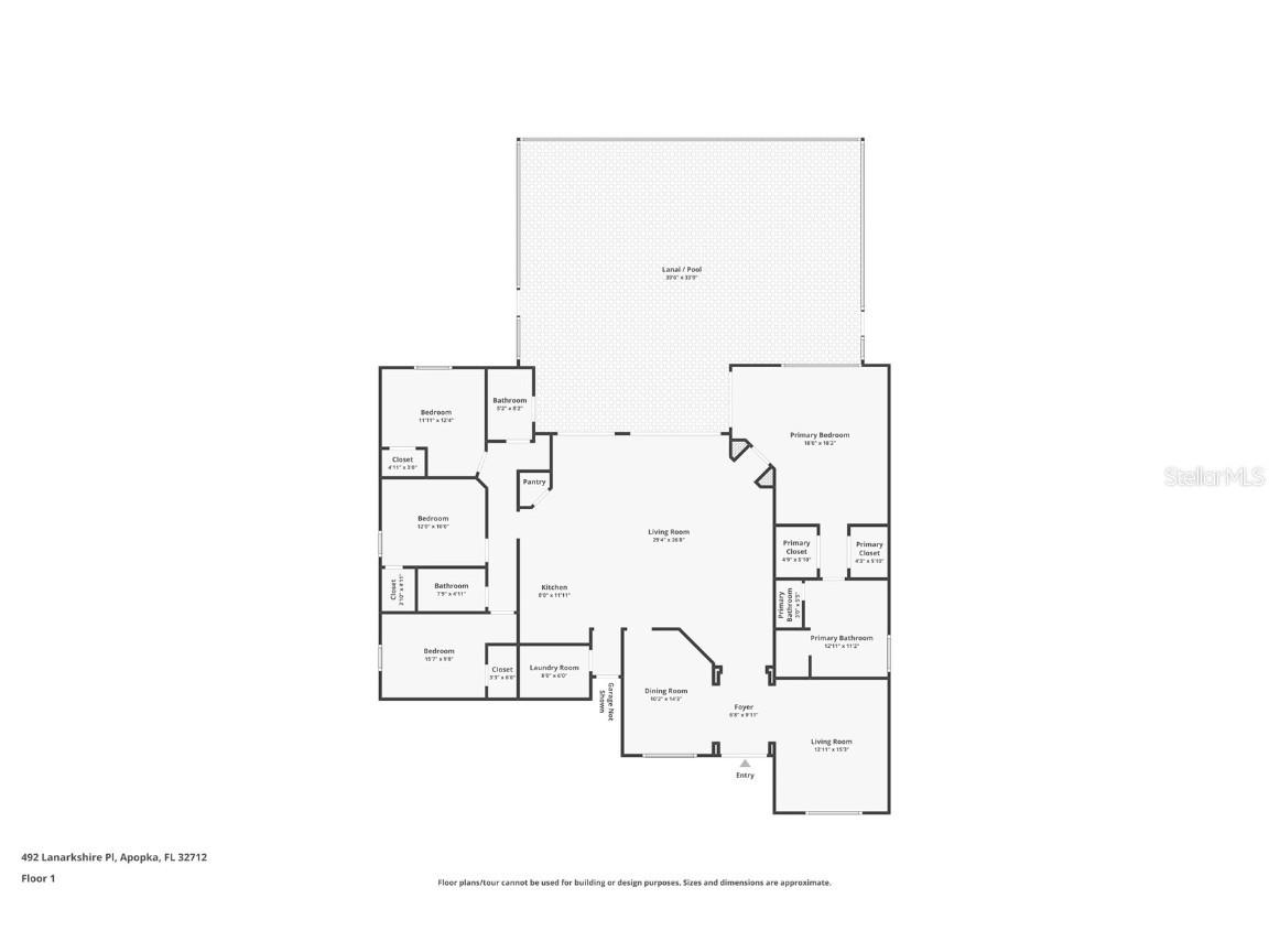
Description for 492 Lanarkshire Place, Apopka, FL, 32712
One or more photo(s) has been virtually staged. Welcome to Rock Springs Ridge—one of Apopka’s most beloved established communities, originally designed around a golf course and known for its wide streets, mature trees, and spacious homesites. This 4-bedroom, 3-bath pool home offers nearly 2,500 sq ft of living space and a 3-car garage on a generous lot backing to peaceful green space. Inside, a split-plan layout provides flexibility for today’s lifestyle. The kitchen features granite countertops, updated appliances, and a large breakfast bar that opens to the family room—perfect for entertaining. Tile, laminate, and carpet span the interior, while each bedroom includes ample closet storage. The primary suite offers pool access and a spa-style bath with soaking tub, dual vanities, and separate shower. Step outdoors to the screen-enclosed pool and covered lanai, where privacy and Florida sunshine meet. A three-car garage, inside laundry, and mature landscaping add everyday function and curb appeal. Minutes to Wekiwa Springs State Park, Rock Springs Run, and Northwest Recreation Complex, plus quick access to SR-429, Kelly Park Crossings, dining, shopping, and top-rated Kelly Park K-8 and Apopka High schools. Experience the best of Apopka living in Rock Springs Ridge—where comfort, community, and location come together beautifully. ** Roof is 2025**
Listing Information
Property Type: Residential, Single Family Residence
Status: Pending
Bedrooms: 4
Bathrooms: 3
Lot Size: 0.35 Acres
Square Feet: 2,465 sq ft
Year Built: 2000
Garage: Yes
Stories: 1 Story
Construction: Block,Stucco
Subdivision: Rock Spgs Ridge Ph 01
Foundation: Slab
County: Orange
Room Information
Main Floor
Living Room:
Kitchen:
Dining Room:
Bathroom 3:
Bathroom 2:
Bedroom 3:
Bedroom 2:
Bedroom 4:
Primary Bathroom:
Primary Bedroom:
Bathrooms
Full Baths: 3
Additonal Room Information
Laundry: Laundry Room
Interior Features
Appliances: Microwave, Range, Refrigerator
Flooring: Carpet,Ceramic Tile
Additional Interior Features: Ceiling Fan(s), Coffered Ceiling(s)
Utilities
Water: Public
Sewer: Public Sewer
Other Utilities: Municipal Utilities
Cooling: Ceiling Fan(s), Central Air
Heating: Central
Exterior / Lot Features
Attached Garage: Attached Garage
Garage Spaces: 3
Roof: Shingle
Pool: Screen Enclosure, In Ground
Lot View: Park/Greenbelt
Additional Exterior/Lot Features: Lighting, Rain Gutters, Screened, Covered, Landscaped, Oversized Lot
Community Features
Community Features: Sidewalks
Homeowners Association: Yes
HOA Dues: $137 / Quarterly
Driving Directions
From I-4, take Exit 94 for SR-434 West toward Longwood/Apopka. Continue on SR-434 W for several miles, then merge onto Wekiva Springs Road heading toward Apopka. Stay on Wekiva Springs Road as it curves and becomes Welch Road. Turn right onto Rock Springs Road, then left onto Lester Road. Continue straight, then turn right into the Rock Springs Ridge community. Follow the main road through the neighborhood and turn onto Lanarkshire Place
Financial Considerations
Terms: Cash,Conventional,FHA,VA Loan
Tax/Property ID: 21-20-28-8240-01-420
Tax Amount: 6766.75
Tax Year: 2024
A broker reciprocity listing courtesy: GLORY INTL. REAL ESTATE CO
Based on information provided by Stellar MLS as distributed by the MLS GRID. Information from the Internet Data Exchange is provided exclusively for consumers’ personal, non-commercial use, and such information may not be used for any purpose other than to identify prospective properties consumers may be interested in purchasing. This data is deemed reliable but is not guaranteed to be accurate by Edina Realty, Inc., or by the MLS. Edina Realty, Inc., is not a multiple listing service (MLS), nor does it offer MLS access.
Copyright 2025 Stellar MLS as distributed by the MLS GRID. All Rights Reserved.
Sales History & Tax Summary for 492 Lanarkshire Place
Sales History
| Date | Price | Change |
|---|---|---|
| Currently not available. | ||
Tax Summary
| Tax Year | Estimated Market Value | Total Tax |
|---|---|---|
| Currently not available. | ||
Data powered by ATTOM Data Solutions. Copyright© 2025. Information deemed reliable but not guaranteed.
Schools
Schools nearby 492 Lanarkshire Place
| Schools in attendance boundaries | Grades | Distance | Rating |
|---|---|---|---|
| Loading... | |||
| Schools nearby | Grades | Distance | Rating |
|---|---|---|---|
| Loading... | |||
Data powered by ATTOM Data Solutions. Copyright© 2025. Information deemed reliable but not guaranteed.
The schools shown represent both the assigned schools and schools by distance based on local school and district attendance boundaries. Attendance boundaries change based on various factors and proximity does not guarantee enrollment eligibility. Please consult your real estate agent and/or the school district to confirm the schools this property is zoned to attend. Information is deemed reliable but not guaranteed.
SchoolDigger ® Rating
The SchoolDigger rating system is a 1-5 scale with 5 as the highest rating. SchoolDigger ranks schools based on test scores supplied by each state's Department of Education. They calculate an average standard score by normalizing and averaging each school's test scores across all tests and grades.
Coming soon properties will soon be on the market, but are not yet available for showings.