4921 Tivoli Run Bradenton, FL 34211
For Sale MLS# A4673656
3 beds 3 baths 2,982 sq ft Single Family
Details for 4921 Tivoli Run
MLS# A4673656
Description for 4921 Tivoli Run, Bradenton, FL, 34211
Welcome to 4921 Tivoli Run, a beautifully appointed 3 bedroom plus den GOLF DEEDED pool home with a WHOLE HOUSE GENERATOR with a wonderful water view just a few steps away for the amenity center. PLUS, get a $25,000 flooring credit with acceptable offer. This home offers comfort, elegance, and a refined Florida lifestyle within one of Bradenton’s most desirable gated communities, Esplanade. This thoughtfully designed home blends spacious indoor living with inviting outdoor areas, creating an ideal environment for everyday relaxation as well as effortless entertaining. The moment you arrive, you are welcomed by a manicured exterior, a graceful architectural profile, and a warm sense of arrival. Inside, the foyer opens to a bright, open-concept layout enhanced by high ceilings, abundant natural light, and a seamless flow between the main living spaces. The great room serves as the heart of the home, offering generous space for gathering and a peaceful view of the backyard and surrounding greenery. The kitchen is designed for both style and function, featuring ample cabinetry, a large island for casual seating, and well-planned workspaces that make meal preparation comfortable and convenient. Directly connected to the main living area and dining space, the kitchen allows for effortless hosting, conversation, and daily living. The primary suite provides a restful retreat, complete with a spacious bedroom, a huge walk-in closet, and an en-suite bathroom with a very large walk in shower. Additional bedrooms are well-appointed and versatile, suitable for guests, a home office, or hobby spaces depending on your needs. A separate den or flex room further enhances the home’s adaptability. Large sliding doors open to the covered lanai, inviting you to enjoy Florida’s outdoor lifestyle. Just beyond, a beautifully designed outdoor pool with a soothing water feature becomes the focal point of the backyard, and the entire area is fully screened-in for year-round comfort. Whether you envision quiet mornings with a cup of coffee, al fresco dining, or space for future outdoor enhancements, the patio and backyard have a serene setting with room to personalize. 4921 Tivoli Run presents an exceptional opportunity to own a beautifully maintained home in a desirable Lakewood Ranch location. With its harmonious layout, quality finishes, and inviting outdoor spaces, this residence offers a balanced lifestyle suited to a variety of needs. Schedule your visit to fully appreciate the comfort, style, and setting this home provides. Enjoy an elevated lifestyle with two beautifully appointed clubhouses, a dedicated activities director curating events and live music, and resort-style pools with hot tubs, fire pits, and a waterside veranda. Wellness amenities include state-of-the-art fitness centers and classes, pickleball and tennis courts, a driving range, putting green, and bocce. Additional conveniences include a playground, dog park, and a full-service spa and salon. Dine at the Barrel House Restaurant & Bar, featuring a wraparound patio overlooking the 18th fairway, or unwind at the Bahama Bar & Grill by the main pool. This guard-gated community is ideally situated just minutes from UTC, Waterside, SRQ Airport, St. Armands Circle, and the pristine beaches of Lido Key, Siesta Key, Anna Maria Island, and Longboat Key.
Listing Information
Property Type: Residential, Single Family Residence
Status: Active
Bedrooms: 3
Bathrooms: 3
Lot Size: 0.23 Acres
Square Feet: 2,982 sq ft
Year Built: 2016
Garage: Yes
Stories: 1 Story
Construction: Block
Subdivision: Esplanade Phase Iii Subphases E, G & H
Foundation: Slab
County: Manatee
School Information
Elementary: Gullett Elementary
Middle: Dr Mona Jain Middle
High: Lakewood Ranch High
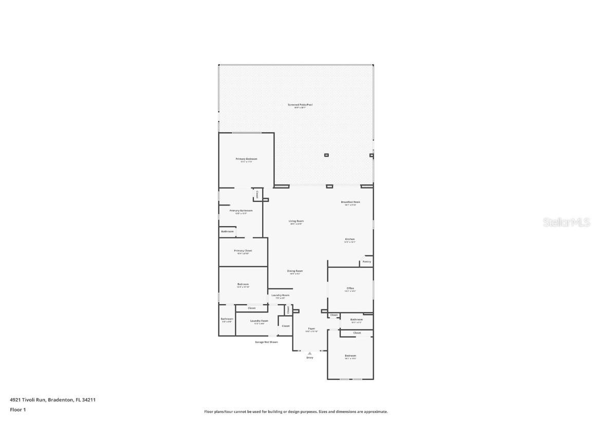
Room Information
Main Floor
Porch: 38x48
Living Room: 23x20
Foyer: 11x10
Office: 14x14
Laundry: 9x15
Bedroom 3: 15x14
Bedroom 2: 11x15
Primary Bathroom: 15x13
Primary Bedroom: 17x17
Kitchen: 16x14
Dining Room: 9x18
Bathrooms
Full Baths: 3
Additonal Room Information
Laundry: Laundry Room
Interior Features
Appliances: Range, Refrigerator, Washer, Dishwasher, Dryer, Microwave
Flooring: Carpet,Ceramic Tile,Luxury Vinyl
Additional Interior Features: Wet Bar, Eat-In Kitchen, Walk-In Closet(s), Split Bedrooms, Ceiling Fan(s), Open Floorplan, Living/Dining Room, Main Level Primary, Crown Molding, Tray Ceiling(s), Built-in Features, High Ceilings, Kitchen/Family Room Combo, Stone Counters, Wood Cabinets
Utilities
Water: Public
Sewer: Public Sewer
Other Utilities: Cable Available,Electricity Connected,Natural Gas Connected,High Speed Internet Available,Municipal Utilities,Sewer Connected,Underground Utilities,Water Connected
Cooling: Ceiling Fan(s), Central Air
Heating: Electric, Central
Exterior / Lot Features
Attached Garage: Attached Garage
Garage Spaces: 2
Parking Description: Oversized, driveway, Garage, Garage Door Opener
Roof: Tile
Pool: In Ground, Screen Enclosure, Community, Association
Lot View: Lake,Pool,Water
Additional Exterior/Lot Features: French Patio Doors, Rain Gutters, Covered, Patio, Screened, Landscaped
Community Features
Community Features: Pool, Sidewalks, Tennis Court(s), Clubhouse, Golf, Restaurant, Fitness, Recreation Area, Community Mailbox
Association Amenities: Pool, Recreation Facilities, Tennis Court(s), Fitness Center, Clubhouse, Golf Course, Pickleball
Homeowners Association: Yes
HOA Dues: $2,755 / Quarterly
Driving Directions
From I75 take exit 220 heading east on SR64 then turn right onto Lakewood Ranch Blvd then turn left onto Malachite Drive then turn right onto Tivoli Run and the home will be on the left.
Financial Considerations
Terms: Cash,Conventional,FHA,VA Loan
Tax/Property ID: 579953309
Tax Amount: 14277.57
Tax Year: 2025
A broker reciprocity listing courtesy: LPT REALTY, LLC
Based on information provided by Stellar MLS as distributed by the MLS GRID. Information from the Internet Data Exchange is provided exclusively for consumers’ personal, non-commercial use, and such information may not be used for any purpose other than to identify prospective properties consumers may be interested in purchasing. This data is deemed reliable but is not guaranteed to be accurate by Edina Realty, Inc., or by the MLS. Edina Realty, Inc., is not a multiple listing service (MLS), nor does it offer MLS access.
Copyright 2026 Stellar MLS as distributed by the MLS GRID. All Rights Reserved.
Payment Calculator
Interest rate and annual percentage rate (APR) are based on current market conditions, are for informational purposes only, are subject to change without notice and may be subject to pricing add-ons related to property type, loan amount, loan-to-value, credit score and other variables. Estimated closing costs used in the APR calculation are assumed to be paid by the borrower at closing. If the closing costs are financed, the loan, APR and payment amounts will be higher. If the down payment is less than 20%, mortgage insurance may be required and could increase the monthly payment and APR. Contact us for details. Additional loan programs may be available. Accuracy is not guaranteed, and all products may not be available in all borrower's geographical areas and are based on their individual situation. This is not a credit decision or a commitment to lend.
Sales History & Tax Summary for 4921 Tivoli Run
Sales History
| Date | Price | |
|---|---|---|
| Currently not available. | ||
Tax Summary
| Tax Year | Estimated Market Value | Total Tax |
|---|---|---|
| Currently not available. | ||
Data powered by ATTOM Data Solutions. Copyright© 2026. Information deemed reliable but not guaranteed.
Schools
Schools nearby 4921 Tivoli Run
| Schools in attendance boundaries | Grades | Distance | Rating |
|---|---|---|---|
| Loading... | |||
| Schools nearby | Grades | Distance | Rating |
|---|---|---|---|
| Loading... | |||
Data powered by ATTOM Data Solutions. Copyright© 2026. Information deemed reliable but not guaranteed.
The schools shown represent both the assigned schools and schools by distance based on local school and district attendance boundaries. Attendance boundaries change based on various factors and proximity does not guarantee enrollment eligibility. Please consult your real estate agent and/or the school district to confirm the schools this property is zoned to attend. Information is deemed reliable but not guaranteed.
SchoolDigger ® Rating
The SchoolDigger rating system is a 1-5 scale with 5 as the highest rating. SchoolDigger ranks schools based on test scores supplied by each state's Department of Education. They calculate an average standard score by normalizing and averaging each school's test scores across all tests and grades.
Coming soon properties will soon be on the market, but are not yet available for showings.