$625,000
4931 Pelican Dr New Port Richey, FL 34652
For Sale MLS# TB8394219
3 beds 2 baths 1,638 sq ft Single Family
Details for 4931 Pelican Dr
MLS# TB8394219
Description for 4931 Pelican Dr, New Port Richey, FL, 34652
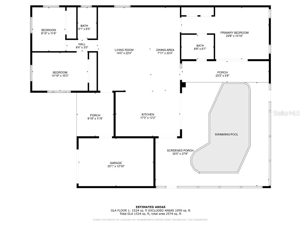
Live the vacation life year round in this deep water canal front 3 bedroom, 2 bath pool home with a 10,0000 lb boat lift a boat davit and both a stationary and a floating dock. Hop in your boat and get to the Gulf before you finish your first beer. Watch the sunset poolside from your screened land pavered anai The modern kitchen and baths add a touch of luxury. The owners suite features sliding doors leading to the pool and an ensuite bath which doubles as a pool bath, preventing swimmers from tracking water through the house. Fully owned solar panels heat the pool and the home, leading to great savings. The HOA is less than $11 per month and is voluntary. For a fee of $200 you can have access to the private neighborhood beach which is directly on the Gulf. This home will make the perfect vacation home, rental home or you can live here full time and feel like you are permanently on vacation. There are many waterfront restaurants and Publix and some shops immediately outside of the neighborhood. Downtown New Port Richey is about a mile up the road and filled with interesting boutiques, restaurants and breweries as well as a picturesque park.
Listing Information
Property Type: Residential, Single Family Residence
Status: Active
Bedrooms: 3
Bathrooms: 2
Lot Size: 0.17 Acres
Square Feet: 1,638 sq ft
Year Built: 1968
Garage: Yes
Stories: 1 Story
Construction: Block,Stucco
Construction Display: New Construction
Subdivision: Flor A Mar
Foundation: Slab
County: Pasco
Construction Status: New Construction
School Information
Elementary: Richey Elementary School
Middle: Gulf Middle-Po
High: Gulf High-Po
Room Information
Main Floor
Great Room:
Kitchen:
Bedroom 3:
Bedroom 2:
Bathroom 2:
Primary Bathroom:
Primary Bedroom:
Bathrooms
Full Baths: 2
Additonal Room Information
Laundry: Washer Hookup, Electric Dryer Hookup, In Garage
Interior Features
Appliances: Electric Water Heater, Microwave, Range, Refrigerator, Dishwasher
Flooring: Carpet,Ceramic Tile,Terrazzo
Doors/Windows: Blinds, Window Treatments, Aluminum Frames
Additional Interior Features: Ceiling Fan(s), Eat-In Kitchen, Window Treatments, Built-in Features, Split Bedrooms, Kitchen/Family Room Combo, Open Floorplan, Stone Counters, Wood Cabinets, Main Level Primary
Utilities
Water: Public
Sewer: Public Sewer
Other Utilities: Electricity Connected,Sewer Connected,Water Connected
Cooling: Central Air, Ceiling Fan(s)
Heating: Heat Pump
Exterior / Lot Features
Attached Garage: Attached Garage
Garage Spaces: 1
Parking Description: Garage, Garage Door Opener
Roof: Tile
Pool: Pool Cover, Screen Enclosure, Gunite, In Ground, Heated
Lot View: Canal,Water
Fencing: fenced
Additional Exterior/Lot Features: Rain Gutters, Screened, Covered, Deck, Landscaped, Dead End, Flood Zone
Waterfront Details
Water Front Features: Canal Access
Community Features
Community Features: Golf Carts OK, Waterfront, Boat Facilities, Clubhouse
Association Amenities: Clubhouse
Homeowners Association: Yes
HOA Dues: $10 / Monthly
Driving Directions
From US HWY 19 turn left on Flor a Mar, left on Shell Stream, right on Top Sail, left on Pelican. The home will be on your right
Financial Considerations
Terms: Cash,Conventional,VA Loan
Tax/Property ID: 18-26-16-0280-02500-0070
Tax Amount: 3806
Tax Year: 2024
A broker reciprocity listing courtesy: REMARKABLE RENTALS
Based on information provided by Stellar MLS as distributed by the MLS GRID. Information from the Internet Data Exchange is provided exclusively for consumers’ personal, non-commercial use, and such information may not be used for any purpose other than to identify prospective properties consumers may be interested in purchasing. This data is deemed reliable but is not guaranteed to be accurate by Edina Realty, Inc., or by the MLS. Edina Realty, Inc., is not a multiple listing service (MLS), nor does it offer MLS access.
Copyright 2025 Stellar MLS as distributed by the MLS GRID. All Rights Reserved.
Payment Calculator
Interest rate and annual percentage rate (APR) are based on current market conditions, are for informational purposes only, are subject to change without notice and may be subject to pricing add-ons related to property type, loan amount, loan-to-value, credit score and other variables. Estimated closing costs used in the APR calculation are assumed to be paid by the borrower at closing. If the closing costs are financed, the loan, APR and payment amounts will be higher. If the down payment is less than 20%, mortgage insurance may be required and could increase the monthly payment and APR. Contact us for details. Additional loan programs may be available. Accuracy is not guaranteed, and all products may not be available in all borrower's geographical areas and are based on their individual situation. This is not a credit decision or a commitment to lend.
Sales History & Tax Summary for 4931 Pelican Dr
Sales History
| Date | Price | Change |
|---|---|---|
| Currently not available. | ||
Tax Summary
| Tax Year | Estimated Market Value | Total Tax |
|---|---|---|
| Currently not available. | ||
Data powered by ATTOM Data Solutions. Copyright© 2025. Information deemed reliable but not guaranteed.
Schools
Schools nearby 4931 Pelican Dr
| Schools in attendance boundaries | Grades | Distance | Rating |
|---|---|---|---|
| Loading... | |||
| Schools nearby | Grades | Distance | Rating |
|---|---|---|---|
| Loading... | |||
Data powered by ATTOM Data Solutions. Copyright© 2025. Information deemed reliable but not guaranteed.
The schools shown represent both the assigned schools and schools by distance based on local school and district attendance boundaries. Attendance boundaries change based on various factors and proximity does not guarantee enrollment eligibility. Please consult your real estate agent and/or the school district to confirm the schools this property is zoned to attend. Information is deemed reliable but not guaranteed.
SchoolDigger ® Rating
The SchoolDigger rating system is a 1-5 scale with 5 as the highest rating. SchoolDigger ranks schools based on test scores supplied by each state's Department of Education. They calculate an average standard score by normalizing and averaging each school's test scores across all tests and grades.
Coming soon properties will soon be on the market, but are not yet available for showings.