$419,000
4934 Clubview Court E Bradenton, FL 34203
For Sale MLS# A4672756
2 beds 2 baths 1,413 sq ft Single Family
Details for 4934 Clubview Court E
MLS# A4672756
Description for 4934 Clubview Court E, Bradenton, FL, 34203
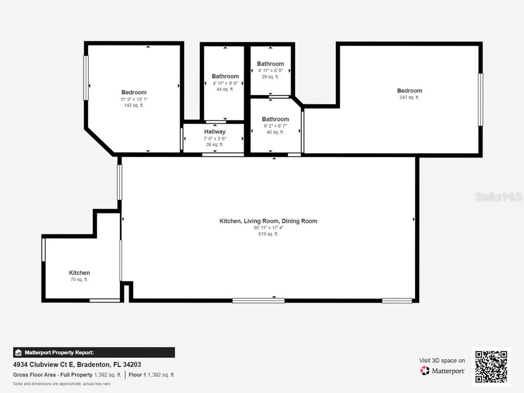
EXCEPTIONAL LOCATION! EXCEPTIONAL LOT! Golf course and water views on a quiet end-of-loop setting create a serene living space inside and out. This beautifully updated 2BR/2BA + Pool patio home offers an open kitchen, dining, and family room layout with seamless indoor/outdoor flow. The kitchen features custom solid-wood cabinetry, quartz countertops, a vented hood range, built-in microwave, double farm sink, and pull-out trash/recycle drawer. An inside laundry area with a custom barn door includes a new front-load washer and dryer (10/2024). Plantation shutters, wood flooring in the main living areas, and bamboo flooring in the primary bedroom add warmth throughout. The updated primary bath provides double sinks, quartz counters, and a tiled shower with glass enclosure. Additional updates include A/C (2023), a Rainbird sprinkler system, and an epoxy-coated garage floor. Enjoy outdoor living with a screened lanai, paver patio, and a private pool with a new heater and motor (July 2025). Exterior fire pit present but not warranted. Thoughtful upgrades and peaceful views make this home move-in ready! Peridia Golf & Country Club features an 18-hole executive golf course, pro shop, pool, and tennis/pickleball courts, plus on-site dining at the restaurant and tiki bar. Additional member activities include private events, clubs, and recreational leagues. Community fees include an $877 quarterly master fee, $260 quarterly yard-maintenance fee, $450 annual food &beverage minimum, $200 application fee, and a one-time $4,000 capital reserve fee. NO CDD Fees! Located near I-75, UTC Mall, medical facilities, and numerous dining options.
Listing Information
Property Type: Residential, Single Family Residence
Status: Active
Bedrooms: 2
Bathrooms: 2
Lot Size: 0.22 Acres
Square Feet: 1,413 sq ft
Year Built: 1988
Garage: Yes
Stories: 1 Story
Construction: Block,Stucco
Subdivision: Peridia
Foundation: Slab
County: Manatee
Room Information
Main Floor
Great Room: 25x17
Kitchen: 16x10
Bedroom 2: 13x11
Primary Bedroom: 17x14
Bathrooms
Full Baths: 2
Additonal Room Information
Laundry: Laundry Closet, Inside
Interior Features
Appliances: Washer, Dishwasher, Disposal, Dryer, Microwave, Range, Refrigerator
Flooring: Bamboo,Wood
Additional Interior Features: Ceiling Fan(s)
Utilities
Water: Public
Sewer: Public Sewer
Other Utilities: Cable Connected
Cooling: Central Air, Ceiling Fan(s)
Heating: Central
Exterior / Lot Features
Attached Garage: Attached Garage
Garage Spaces: 2
Roof: Tile
Pool: Association, Community, In Ground, Screen Enclosure, Gunite
Community Features
Community Features: Sidewalks
Association Amenities: Pickleball, Golf Course, Pool, Tennis Court(s)
HOA Dues Include: Cable TV, Pool(s), Reserve Fund
Homeowners Association: Yes
HOA Dues: $260 / Quarterly
Driving Directions
From I-75 take Exit for Sr-70, head West to Peridia Blvd and turn right. Left onto Pro Am Ave. Right onto Clubview Ct E. Follow to address.
Financial Considerations
Terms: Cash,Conventional
Tax/Property ID: 1698006309
Tax Amount: 2127
Tax Year: 2025
A broker reciprocity listing courtesy: RE/MAX ALLIANCE GROUP
Based on information provided by Stellar MLS as distributed by the MLS GRID. Information from the Internet Data Exchange is provided exclusively for consumers’ personal, non-commercial use, and such information may not be used for any purpose other than to identify prospective properties consumers may be interested in purchasing. This data is deemed reliable but is not guaranteed to be accurate by Edina Realty, Inc., or by the MLS. Edina Realty, Inc., is not a multiple listing service (MLS), nor does it offer MLS access.
Copyright 2025 Stellar MLS as distributed by the MLS GRID. All Rights Reserved.
Payment Calculator
Interest rate and annual percentage rate (APR) are based on current market conditions, are for informational purposes only, are subject to change without notice and may be subject to pricing add-ons related to property type, loan amount, loan-to-value, credit score and other variables. Estimated closing costs used in the APR calculation are assumed to be paid by the borrower at closing. If the closing costs are financed, the loan, APR and payment amounts will be higher. If the down payment is less than 20%, mortgage insurance may be required and could increase the monthly payment and APR. Contact us for details. Additional loan programs may be available. Accuracy is not guaranteed, and all products may not be available in all borrower's geographical areas and are based on their individual situation. This is not a credit decision or a commitment to lend.
Sales History & Tax Summary for 4934 Clubview Court E
Sales History
| Date | Price | Change |
|---|---|---|
| Currently not available. | ||
Tax Summary
| Tax Year | Estimated Market Value | Total Tax |
|---|---|---|
| Currently not available. | ||
Data powered by ATTOM Data Solutions. Copyright© 2025. Information deemed reliable but not guaranteed.
Schools
Schools nearby 4934 Clubview Court E
| Schools in attendance boundaries | Grades | Distance | Rating |
|---|---|---|---|
| Loading... | |||
| Schools nearby | Grades | Distance | Rating |
|---|---|---|---|
| Loading... | |||
Data powered by ATTOM Data Solutions. Copyright© 2025. Information deemed reliable but not guaranteed.
The schools shown represent both the assigned schools and schools by distance based on local school and district attendance boundaries. Attendance boundaries change based on various factors and proximity does not guarantee enrollment eligibility. Please consult your real estate agent and/or the school district to confirm the schools this property is zoned to attend. Information is deemed reliable but not guaranteed.
SchoolDigger ® Rating
The SchoolDigger rating system is a 1-5 scale with 5 as the highest rating. SchoolDigger ranks schools based on test scores supplied by each state's Department of Education. They calculate an average standard score by normalizing and averaging each school's test scores across all tests and grades.
Coming soon properties will soon be on the market, but are not yet available for showings.