4936 Bellthorn Drive Orlando, FL 32837
For Sale MLS# O6352630
4 beds 3 baths 2,369 sq ft Single Family
Details for 4936 Bellthorn Drive
MLS# O6352630
Description for 4936 Bellthorn Drive, Orlando, FL, 32837
This beautifully updated 4-bedroom, 3-bathroom home, located in the award-winning master planned Hunters Creek master Community, offers a stylish and spacious opportunity. Fresh Interior and Exterior Paint. The luxury vinyl plank flooring throughout the main areas, loft, and bedrooms, and tile in all wet areas, offers not only a great look but also adds durability. The chef’s kitchen features stunning quartz countertops and flows seamlessly into the open concept, living, and family rooms, perfect for entertaining. The primary bedroom is on the 2nd floor, but the 4th bedroom and 3rd full bathroom are conveniently located on the 1st floor. Outdoor living is enhanced by a rear covered patio and an extended paver area ideal for grilling. The two-car garage and brick paver driveway add curb appeal and convenience. Located just minutes from Osprey Park, top-rated schools, major shopping centers, and highway access, this home combines comfort, charm, and accessibility. Schedule your private tour today and see all this home has to offer.
Listing Information
Property Type: Residential, Single Family Residence
Status: Active
Bedrooms: 4
Bathrooms: 3
Lot Size: 0.12 Acres
Square Feet: 2,369 sq ft
Year Built: 1999
Garage: Yes
Stories: 2 Story
Construction: Block,Stucco
Subdivision: Hunters Creek Tr 545
Foundation: Slab
County: Orange
School Information
Elementary: West Creek Elem
Middle: Hunter's Creek Middle
High: Freedom High School
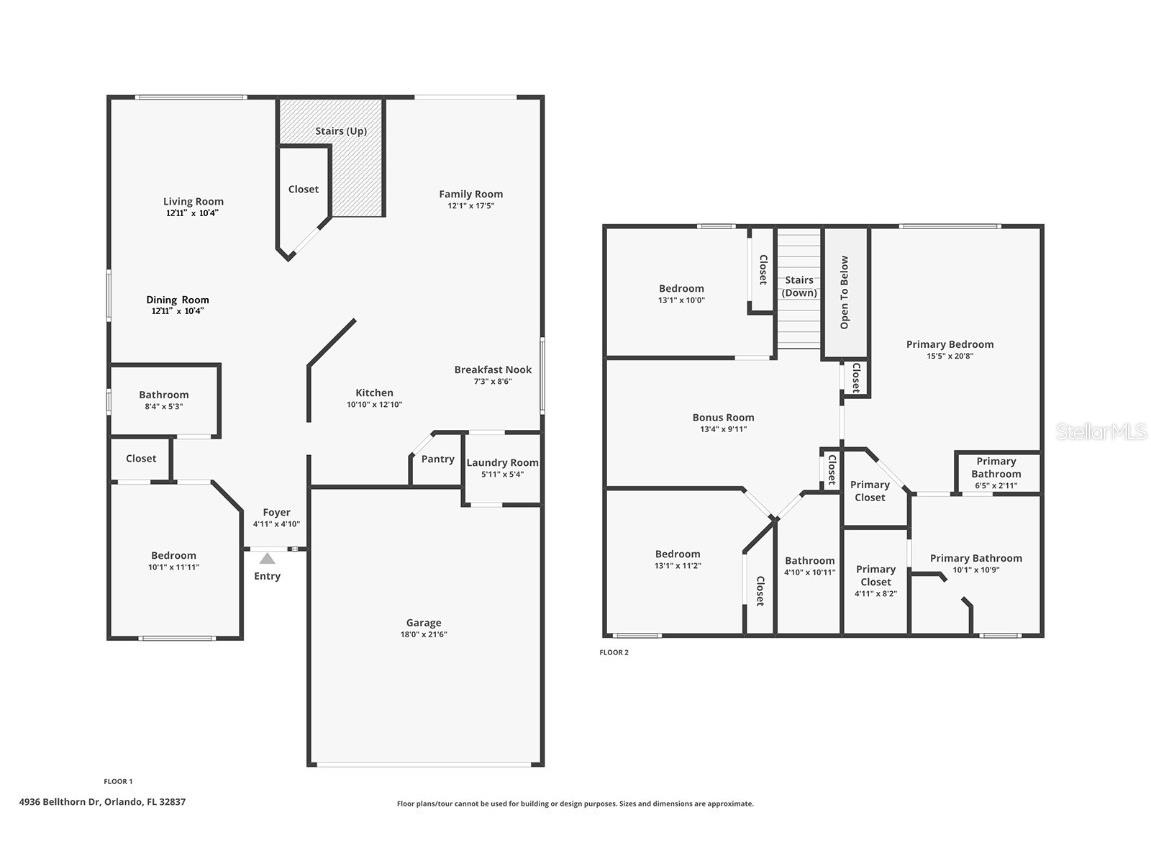
Room Information
Main Floor
Bedroom 4: 12x10
Kitchen: 13x11
Dining Room: 10x13
Living Room: 10x13
Upper Floor
Bonus Room: 10x13
Bedroom 3: 10x13
Bedroom 2: 11x13
Primary Bedroom: 20x15
Family Room: 17x12
Bathrooms
Full Baths: 3
Additonal Room Information
Laundry: Inside, Washer Hookup, Laundry Room, Electric Dryer Hookup
Interior Features
Flooring: Luxury Vinyl,Tile
Additional Interior Features: Loft, Walk-In Closet(s), Ceiling Fan(s), Living/Dining Room, Open Floorplan, Upper Level Primary, Stone Counters
Utilities
Water: Public
Sewer: Public Sewer
Other Utilities: Electricity Connected,Water Connected
Cooling: Ceiling Fan(s), Central Air
Heating: Electric, Central
Exterior / Lot Features
Attached Garage: Attached Garage
Garage Spaces: 2
Parking Description: Garage Door Opener, Garage, driveway
Roof: Shingle
Additional Exterior/Lot Features: Rear Porch, Covered
Community Features
Community Features: Sidewalks, Tennis Court(s), Playground, Dog Park, Park
Association Amenities: Recreation Facilities, Playground, Tennis Court(s), Park
HOA Dues Include: Recreation Facilities
Homeowners Association: Yes
HOA Dues: $302 / Quarterly
Driving Directions
From S John Young Pkwy, turn onto Town Center Blvd traveling West, turn right Westshire Dr, right onto Bellthorn Dr, and it is the first home on your right.
Financial Considerations
Terms: Cash,Conventional,FHA,VA Loan
Tax/Property ID: 31-24-29-3865-00-940
Tax Amount: 7029
Tax Year: 2024
A broker reciprocity listing courtesy: BERKSHIRE HATHAWAY HOMESERVICES RESULTS REALTY
Based on information provided by Stellar MLS as distributed by the MLS GRID. Information from the Internet Data Exchange is provided exclusively for consumers’ personal, non-commercial use, and such information may not be used for any purpose other than to identify prospective properties consumers may be interested in purchasing. This data is deemed reliable but is not guaranteed to be accurate by Edina Realty, Inc., or by the MLS. Edina Realty, Inc., is not a multiple listing service (MLS), nor does it offer MLS access.
Copyright 2025 Stellar MLS as distributed by the MLS GRID. All Rights Reserved.
Payment Calculator
Interest rate and annual percentage rate (APR) are based on current market conditions, are for informational purposes only, are subject to change without notice and may be subject to pricing add-ons related to property type, loan amount, loan-to-value, credit score and other variables. Estimated closing costs used in the APR calculation are assumed to be paid by the borrower at closing. If the closing costs are financed, the loan, APR and payment amounts will be higher. If the down payment is less than 20%, mortgage insurance may be required and could increase the monthly payment and APR. Contact us for details. Additional loan programs may be available. Accuracy is not guaranteed, and all products may not be available in all borrower's geographical areas and are based on their individual situation. This is not a credit decision or a commitment to lend.
Sales History & Tax Summary for 4936 Bellthorn Drive
Sales History
| Date | Price | Change |
|---|---|---|
| Currently not available. | ||
Tax Summary
| Tax Year | Estimated Market Value | Total Tax |
|---|---|---|
| Currently not available. | ||
Data powered by ATTOM Data Solutions. Copyright© 2025. Information deemed reliable but not guaranteed.
Schools
Schools nearby 4936 Bellthorn Drive
| Schools in attendance boundaries | Grades | Distance | Rating |
|---|---|---|---|
| Loading... | |||
| Schools nearby | Grades | Distance | Rating |
|---|---|---|---|
| Loading... | |||
Data powered by ATTOM Data Solutions. Copyright© 2025. Information deemed reliable but not guaranteed.
The schools shown represent both the assigned schools and schools by distance based on local school and district attendance boundaries. Attendance boundaries change based on various factors and proximity does not guarantee enrollment eligibility. Please consult your real estate agent and/or the school district to confirm the schools this property is zoned to attend. Information is deemed reliable but not guaranteed.
SchoolDigger ® Rating
The SchoolDigger rating system is a 1-5 scale with 5 as the highest rating. SchoolDigger ranks schools based on test scores supplied by each state's Department of Education. They calculate an average standard score by normalizing and averaging each school's test scores across all tests and grades.
Coming soon properties will soon be on the market, but are not yet available for showings.