4994 Klosterman Oaks Boulevard Palm Harbor, FL 34683
For Sale MLS# TB8441453
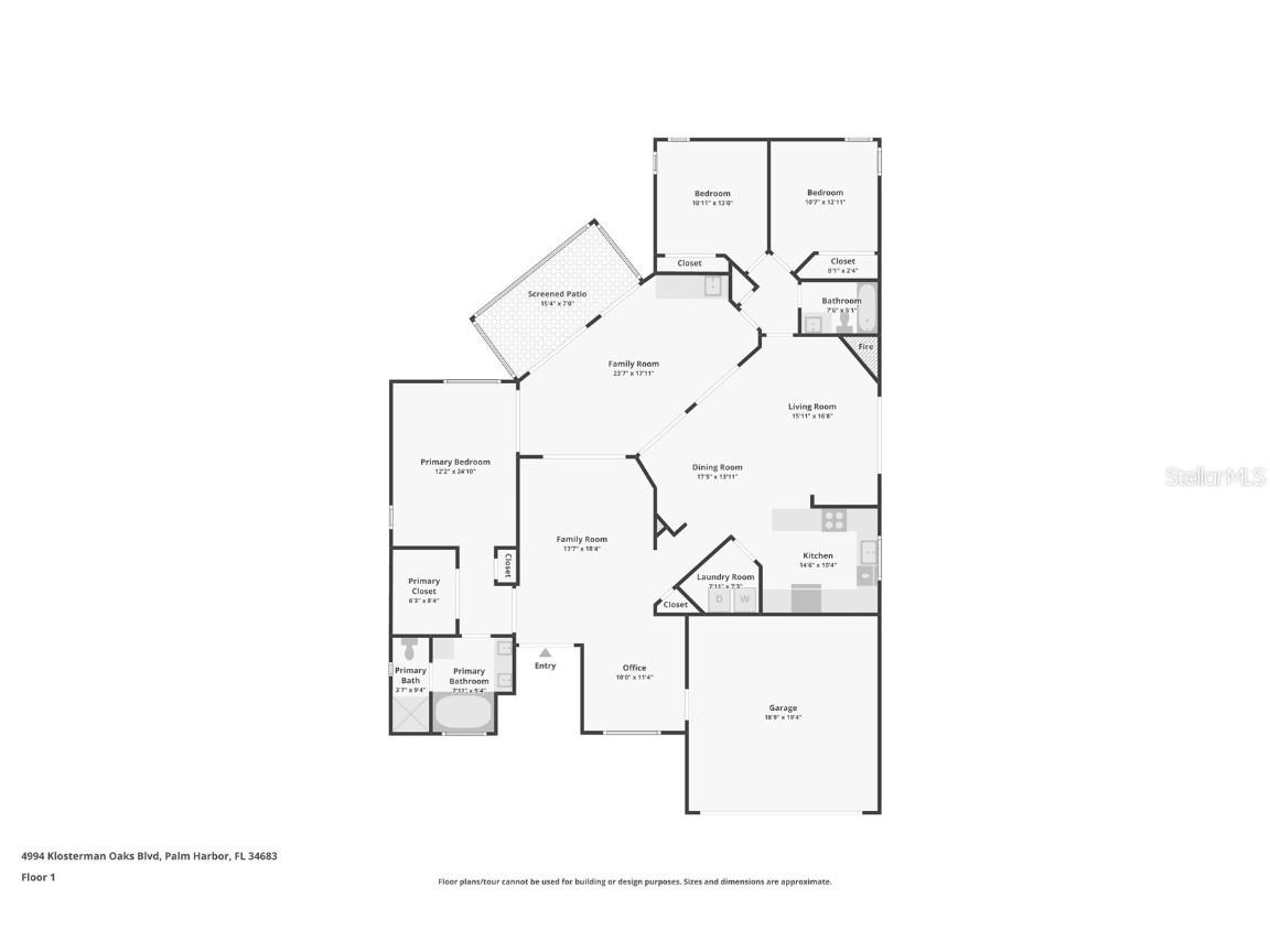
3 beds 2 baths 1,804 sq ft Single Family
Details for 4994 Klosterman Oaks Boulevard
MLS# TB8441453
Description for 4994 Klosterman Oaks Boulevard, Palm Harbor, FL, 34683
Welcome to this beautifully updated 3-bedroom, 2-bath home in the desirable Klosterman Oaks Village. Offering 1,804 square feet of comfortable living space, this home features high ceilings, a freshly renovated kitchen, perfect for cooking and gathering. Recent improvements include a new roof (November 2024), impact-rated hurricane windows, sliders and doors (2022), New HVAC and duct work (September 2025), and a new fence for added privacy and peace of mind. The thoughtfully designed layout provides a warm and inviting atmosphere with natural light throughout. Conveniently located near shopping, dining, parks, and the Gulf beaches, this home blends modern updates with everyday comfort in a quiet, well-kept community.
Listing Information
Property Type: Residential, Single Family Residence
Status: Active
Bedrooms: 3
Bathrooms: 2
Lot Size: 0.23 Acres
Square Feet: 1,804 sq ft
Year Built: 1992
Garage: Yes
Stories: 1 Story
Construction: Block,Stucco
Subdivision: Klosterman Oaks Village
Foundation: Slab
County: Pinellas
Room Information
Main Floor
Primary Bedroom: 12x16
Primary Bathroom:
Living Room: 12x13
Kitchen: 12x12
Great Room: 12x24
Dining Room: 11x10
Bathrooms
Full Baths: 2
Additonal Room Information
Laundry: Inside
Interior Features
Flooring: Carpet,Ceramic Tile,Laminate
Doors/Windows: Blinds
Fireplaces: Other
Additional Interior Features: Ceiling Fan(s), Vaulted Ceiling(s), Walk-In Closet(s), Kitchen/Family Room Combo, Open Floorplan, Separate/Formal Living Room, Split Bedrooms, Separate/Formal Dining Room, Cathedral Ceiling(s), High Ceilings
Utilities
Water: Public
Sewer: Public Sewer
Other Utilities: Cable Available,Electricity Connected
Cooling: Central Air, Ceiling Fan(s)
Heating: Central
Exterior / Lot Features
Attached Garage: Attached Garage
Garage Spaces: 2
Parking Description: Garage Door Opener, Garage, Parking Pad
Roof: Shingle
Lot Dimensions: 89.0X103.0
Fencing: fenced
Additional Exterior/Lot Features: Sprinkler/Irrigation, Rain Gutters, Corner Lot, Landscaped, Outside City Limits
Community Features
Community Features: Sidewalks
Security Features: Smoke Detector(s), Fire Hydrant(s)
Homeowners Association: Yes
HOA Dues: $700 / Annually
Driving Directions
Starting from US 19 W on Klosterman, make a left onto Klosterman Oaks. The property is the first house on the right.
Financial Considerations
Tax/Property ID: 24-27-15-46915-000-0370
Tax Amount: 124.9
Tax Year: 2024
A broker reciprocity listing courtesy: REDFIN CORPORATION
Based on information provided by Stellar MLS as distributed by the MLS GRID. Information from the Internet Data Exchange is provided exclusively for consumers’ personal, non-commercial use, and such information may not be used for any purpose other than to identify prospective properties consumers may be interested in purchasing. This data is deemed reliable but is not guaranteed to be accurate by Edina Realty, Inc., or by the MLS. Edina Realty, Inc., is not a multiple listing service (MLS), nor does it offer MLS access.
Copyright 2025 Stellar MLS as distributed by the MLS GRID. All Rights Reserved.
Payment Calculator
Interest rate and annual percentage rate (APR) are based on current market conditions, are for informational purposes only, are subject to change without notice and may be subject to pricing add-ons related to property type, loan amount, loan-to-value, credit score and other variables. Estimated closing costs used in the APR calculation are assumed to be paid by the borrower at closing. If the closing costs are financed, the loan, APR and payment amounts will be higher. If the down payment is less than 20%, mortgage insurance may be required and could increase the monthly payment and APR. Contact us for details. Additional loan programs may be available. Accuracy is not guaranteed, and all products may not be available in all borrower's geographical areas and are based on their individual situation. This is not a credit decision or a commitment to lend.
Sales History & Tax Summary for 4994 Klosterman Oaks Boulevard
Sales History
| Date | Price | Change |
|---|---|---|
| Currently not available. | ||
Tax Summary
| Tax Year | Estimated Market Value | Total Tax |
|---|---|---|
| Currently not available. | ||
Data powered by ATTOM Data Solutions. Copyright© 2025. Information deemed reliable but not guaranteed.
Schools
Schools nearby 4994 Klosterman Oaks Boulevard
| Schools in attendance boundaries | Grades | Distance | Rating |
|---|---|---|---|
| Loading... | |||
| Schools nearby | Grades | Distance | Rating |
|---|---|---|---|
| Loading... | |||
Data powered by ATTOM Data Solutions. Copyright© 2025. Information deemed reliable but not guaranteed.
The schools shown represent both the assigned schools and schools by distance based on local school and district attendance boundaries. Attendance boundaries change based on various factors and proximity does not guarantee enrollment eligibility. Please consult your real estate agent and/or the school district to confirm the schools this property is zoned to attend. Information is deemed reliable but not guaranteed.
SchoolDigger ® Rating
The SchoolDigger rating system is a 1-5 scale with 5 as the highest rating. SchoolDigger ranks schools based on test scores supplied by each state's Department of Education. They calculate an average standard score by normalizing and averaging each school's test scores across all tests and grades.
Coming soon properties will soon be on the market, but are not yet available for showings.