$368,295
Off-Market Date: 04/19/20265 Oakleaf Court Palm Coast, FL 32137
Pending MLS# FC317549
4 beds 3 baths 1,987 sq ft Single Family
Details for 5 Oakleaf Court
MLS# FC317549
Description for 5 Oakleaf Court, Palm Coast, FL, 32137
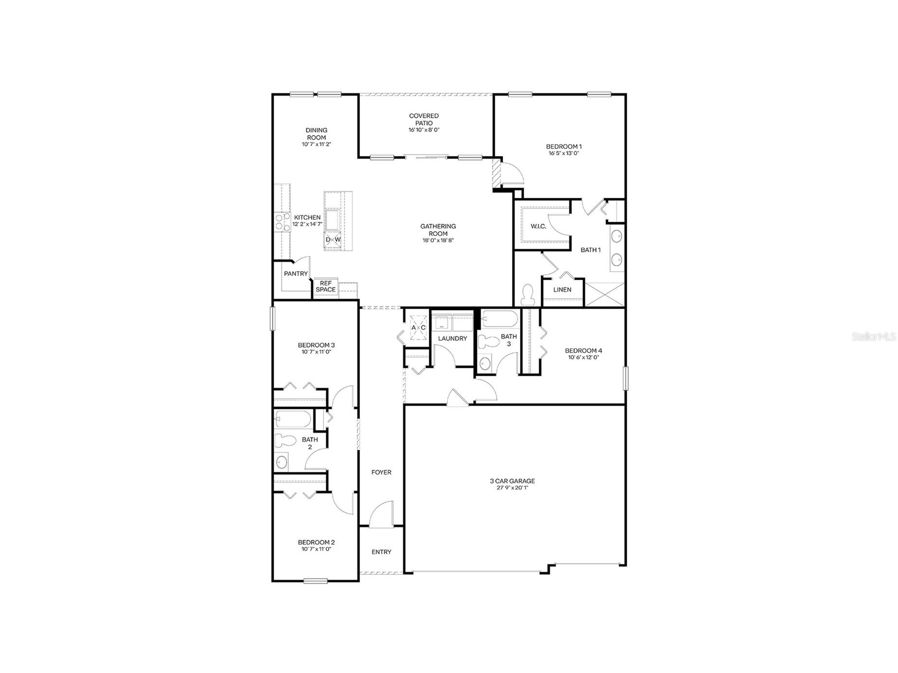
Under Construction. The Madison floor plan offers 1,987 square feet of beautifully designed living space with 4 bedrooms, 3 bathrooms, and a 3-car garage which is ideal for families who want space, comfort, and versatility. This thoughtfully crafted layout features a spacious open-concept design where the kitchen, dining niche, and large gathering room all flow together seamlessly in one expansive living area. The covered patio is perfect for outdoor entertaining. The bonus is the 3-car garage that gives enough space for 3 cars and all the toys a family can want. The kitchen is the true heart of the home, showcasing a large center island ideal for hosting, casual meals, or gathering with friends and family. With generous counter space for meal prep and entertaining, you’ll have room for everything you need while staying connected to the main living areas. The private owner’s suite is a relaxing retreat featuring a spacious walk-in closet, dual sinks, and a convenient linen closet. Two secondary bedrooms are connected by a Jack and Jill bathroom, offering both privacy and functionality, while an additional bedroom includes its own private bath, perfect for guests or multi-generational living. Built with energy-efficient features and smart home technology, this Madison floor plan combines modern convenience, thoughtful design, and the perfect layout for entertaining. Call our Online Sales Concierge to get started today!
Listing Information
Property Type: Residential, Single Family Residence
Status: Pending
Bedrooms: 4
Bathrooms: 3
Lot Size: 0.13 Acres
Square Feet: 1,987 sq ft
Year Built: 2026
Garage: Yes
Stories: 1 Story
Construction: Cement Siding,Wood Frame
Construction Display: New Construction
Subdivision: Sawmill Branch
Builder: DR Horton
Foundation: Slab
County: Flagler
Construction Status: Under Construction
School Information
Elementary: Belle Terre Elementary
Middle: Indian Trails Middle-Fc
High: Matanzas High
Room Information
Main Floor
Primary Bedroom: 14x12
Kitchen: 13x15
Great Room: 12x23
Bathrooms
Full Baths: 3
Additonal Room Information
Laundry: Inside, Laundry Room
Interior Features
Appliances: Electric Water Heater, Range, Dishwasher, Disposal, Microwave
Flooring: Carpet,Vinyl
Doors/Windows: Window Treatments
Additional Interior Features: Split Bedrooms, Walk-In Closet(s), Window Treatments, Living/Dining Room, Open Floorplan, Kitchen/Family Room Combo
Utilities
Sewer: Public Sewer
Other Utilities: Municipal Utilities,Water Not Available
Cooling: Central Air
Heating: Electric
Exterior / Lot Features
Attached Garage: Attached Garage
Garage Spaces: 3
Roof: Shingle
Pool: Association
Lot View: Pond,Water
Additional Exterior/Lot Features: Sprinkler/Irrigation
Community Features
Association Amenities: Pool, Playground, Clubhouse, Fitness Center
Homeowners Association: Yes
HOA Dues: $249 / Annually
Driving Directions
From I-95 take exit 298 toward Bunnell. Merge right onto US-1 S for approx. 4 miles. At the traffic circle, take the 1st exit onto Matanzas Woods Pkwy. Continue ahead to the next traffic circle and take the 1st exit at Matanzas Village Ave. Model Homes will be just ahead on the right at Summerwood Rd. S.
Financial Considerations
Terms: Cash,Conventional,FHA,VA Loan
Tax/Property ID: 21-10-30-5416-00000-2770
Tax Year: 2025
A broker reciprocity listing courtesy: DR HORTON REALTY INC.
Based on information provided by Stellar MLS as distributed by the MLS GRID. Information from the Internet Data Exchange is provided exclusively for consumers’ personal, non-commercial use, and such information may not be used for any purpose other than to identify prospective properties consumers may be interested in purchasing. This data is deemed reliable but is not guaranteed to be accurate by Edina Realty, Inc., or by the MLS. Edina Realty, Inc., is not a multiple listing service (MLS), nor does it offer MLS access.
Copyright 2026 Stellar MLS as distributed by the MLS GRID. All Rights Reserved.
Sales History & Tax Summary for 5 Oakleaf Court
Sales History
| Date | Price | |
|---|---|---|
| Currently not available. | ||
Tax Summary
| Tax Year | Estimated Market Value | Total Tax |
|---|---|---|
| Currently not available. | ||
Data powered by ATTOM Data Solutions. Copyright© 2026. Information deemed reliable but not guaranteed.
Schools
Schools nearby 5 Oakleaf Court
| Schools in attendance boundaries | Grades | Distance | Rating |
|---|---|---|---|
| Loading... | |||
| Schools nearby | Grades | Distance | Rating |
|---|---|---|---|
| Loading... | |||
Data powered by ATTOM Data Solutions. Copyright© 2026. Information deemed reliable but not guaranteed.
The schools shown represent both the assigned schools and schools by distance based on local school and district attendance boundaries. Attendance boundaries change based on various factors and proximity does not guarantee enrollment eligibility. Please consult your real estate agent and/or the school district to confirm the schools this property is zoned to attend. Information is deemed reliable but not guaranteed.
SchoolDigger ® Rating
The SchoolDigger rating system is a 1-5 scale with 5 as the highest rating. SchoolDigger ranks schools based on test scores supplied by each state's Department of Education. They calculate an average standard score by normalizing and averaging each school's test scores across all tests and grades.
Coming soon properties will soon be on the market, but are not yet available for showings.