50 Buccaneer Bend Placida, FL 33946
For Sale MLS# C7515314
5 beds 4 baths 4,642 sq ft Single Family
Details for 50 Buccaneer Bend
MLS# C7515314
Description for 50 Buccaneer Bend, Placida, FL, 33946
Paradise Found in Cape Haze! This majestic two-story luxury waterfront estate embodies the very best of Florida living, combining timeless design with exceptional upgrades and direct access to the Gulf of America. With 5 spacious bedrooms, 4 full bathrooms, a private elevator, and an expansive resort-style pool and spa, this home is as functional as it is breathtaking. From the moment you arrive, the curb appeal captivates with mature tropical landscaping with 3 wells on site, a circular drive, new pavers, and a welcoming entry. At the water’s edge, a brand-new tiki hut and lounge area create the perfect private retreat for sunset gatherings, overlooking the wide canal with a small island beyond the dock that provides privacy from houses across the canal. Step inside to soaring vaulted ceilings, French doors, and walls of glass that flood the home with natural light and frame panoramic water views. The main living level offers an open-concept design blending elegance with comfort: a great room with custom built-ins and fireplace, a gourmet kitchen with Cambria quartz counters, premium appliances including LG refrigerator and two-drawer dishwasher, upgraded cabinetry, and a glass-railed covered porch for year-round indoor/outdoor living. Off the porch is a spiral staircase to the Crow's Nest with 360 views of the nearby Intercoastal waterway, Gulf, and Boca Bridge. The primary suite is a sanctuary of luxury with balcony access, dual walk-in closets, and a spa-style bath featuring soaking tub, glass shower, and dual vanities. Also off the living room is a guest bedroom with built in murphy bed and en suite bathroom. Just past the kitchen, the 2nd guest bedroom with beautiful faux paint and extra space for relaxing is ideal and the 3rd guest bedroom has a built-in murphy bed and doubles as an office with access to the lanai. Also on this side of the home is the large laundry room and shared guest bathroom. The lower level expands the lifestyle with a 38’ x 27’ bonus room opening to the pool, a full bath, a large guest suite with den/walk-in closet, a 3-car garage, and dedicated workshop/storage areas—perfect for entertaining, hobbies, or multi-generational living. Recent upgrades ensure peace of mind and modern convenience: new pavers, new panoramic two-story pool cage, new Pentair pool heater/motor/controls, new AC, new water heater, new LG & GE appliances, new lawn and landscaping, plantation shutters, designer lighting, hurricane protection, generator connection, and more. Boaters will appreciate the deep-water canal with seawall, extended dock, two boat lifts, and a brand-new jet ski lift—all just 15 minutes to open Gulf waters via the Intracoastal. As part of Cape Haze Property Owner's Association, residents can opt-in to the optional HOA and enjoy deeded beach access to Don Pedro Island, and clubhouse access, offering a rare combination of Gulf-front beach lifestyle and deep-water boating from your backyard. Located minutes from world-class fishing, golf, fine dining, shopping, and set within golf cart-friendly streets, this home truly captures the essence of the Southwest Florida lifestyle. Luxury. Lifestyle. Location. This home has it all. Be sure to view the full virtual tour for every detail.
Listing Information
Property Type: Residential, Single Family Residence
Status: Active
Bedrooms: 5
Bathrooms: 4
Lot Size: 0.46 Acres
Square Feet: 4,642 sq ft
Year Built: 2005
Garage: Yes
Stories: 2 Story
Construction: Block,Stucco
Construction Display: New Construction
Subdivision: Cape Haze
Foundation: Slab,Stem Wall
County: Charlotte
Construction Status: New Construction
School Information
Elementary: Vineland Elementary
Middle: L.A. Ainger Middle
High: Lemon Bay High
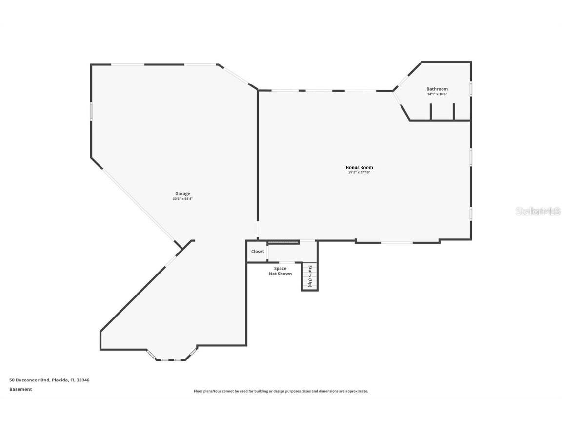
Room Information
Main Floor
Porch: 62x16
Workshop: 25x20
Bonus Room: 27x38
Bedroom 5: 20x19
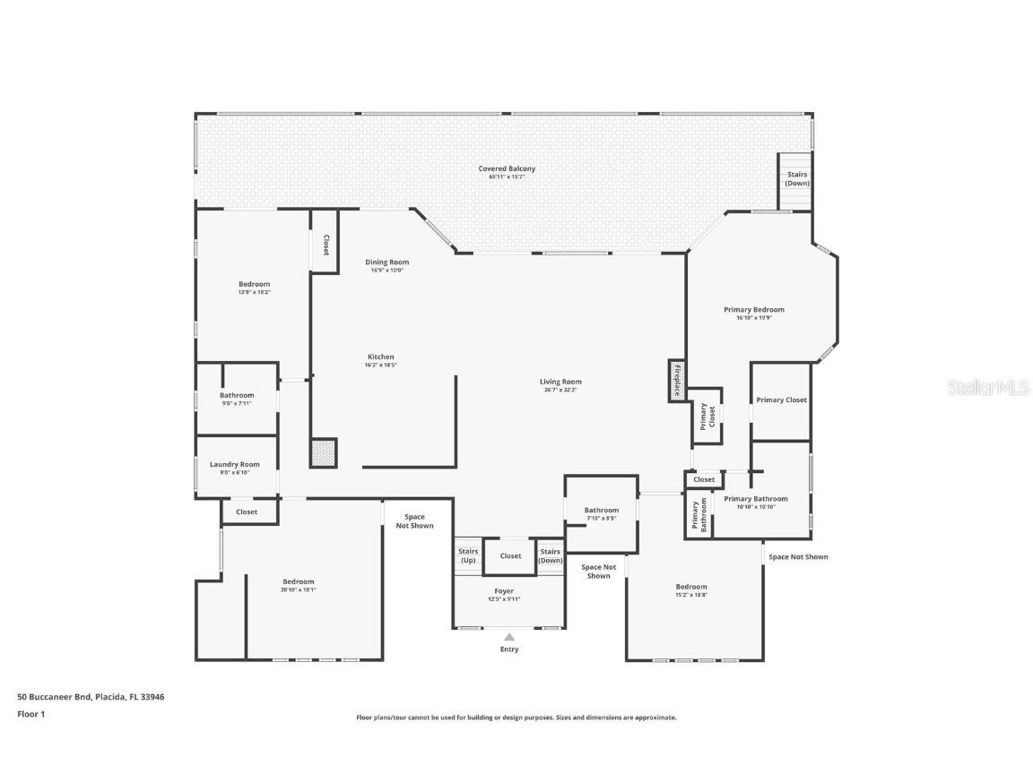
Upper Floor
Porch: 62x16
Primary Bedroom: 20x16
Dining Room: 12x13
Kitchen: 17x15
Living Room: 26x24
Bedroom 4: 15x15
Bedroom 3: 17x13
Bedroom 2: 20x19
Primary Bathroom: 11x9
Bathrooms
Full Baths: 4
Additonal Room Information
Laundry: Laundry Room, Inside
Interior Features
Appliances: Built-In Oven, Bar Fridge, Convection Oven, Electric Water Heater, Range Hood, Cooktop, Dishwasher, Disposal, Dryer, Washer, Microwave, Refrigerator
Flooring: Carpet,Ceramic Tile,Engineered Hardwood
Doors/Windows: Blinds, Shutters, Window Treatments, Drapes, Skylight(s)
Fireplaces: Living Room
Additional Interior Features: Eat-In Kitchen, Vaulted Ceiling(s), Ceiling Fan(s), Elevator, High Ceilings, Built-in Features, Cathedral Ceiling(s), Walk-In Closet(s), Split Bedrooms, Skylights, Window Treatments, Wood Cabinets, Stone Counters, Open Floorplan, Kitchen/Family Room Combo, Main Level Primary
Utilities
Water: Well, Public
Sewer: Septic Tank
Other Utilities: Cable Available,Electricity Connected,Municipal Utilities,Water Connected
Cooling: Ceiling Fan(s), Central Air, Ductless
Heating: Heat Pump, Central, Electric
Exterior / Lot Features
Attached Garage: Attached Garage
Garage Spaces: 3
Parking Description: Garage, Tandem, Garage Door Opener, driveway, Circular Driveway, Garage Faces Side, Oversized, Workshop in Garage
Roof: Metal
Pool: Heated, Screen Enclosure, Outside Bath Access, In Ground, Gunite
Lot View: Canal,Pool,Water
Lot Dimensions: 100x226x178x111
Additional Exterior/Lot Features: French Patio Doors, Rain Gutters, Storm/Security Shutters, Lighting, Outdoor Shower, Sprinkler/Irrigation, Balcony, Balcony, Covered, Deck, Porch, Screened, Rear Porch, Front Porch, Flat, Level, Landscaped, Oversized Lot, Flood Zone, Near Golf Course, Outside City Limits
Waterfront Details
Water Front Features: Canal Access, Bay Access, Creek, Beach Access, Gulf Access, River Access
Community Features
Community Features: Water Access, Fishing, Golf Carts OK, Park, Golf, Waterfront, Clubhouse, Sidewalks
Security Features: Security System
Association Amenities: Clubhouse, Recreation Facilities
Homeowners Association: Yes
HOA Dues: $500 / Annually
Driving Directions
Starting on Cape Haze Dr, follow South. At the traffic circle continue straight to stay on Cape Haze Drive. Turn right onto Buccaneer Bend. The home is on the right.
Financial Considerations
Terms: Cash,Conventional
Tax/Property ID: 422003256002
Tax Amount: 24129.17
Tax Year: 2025
A broker reciprocity listing courtesy: COLDWELL BANKER SUNSTAR REALTY
Based on information provided by Stellar MLS as distributed by the MLS GRID. Information from the Internet Data Exchange is provided exclusively for consumers’ personal, non-commercial use, and such information may not be used for any purpose other than to identify prospective properties consumers may be interested in purchasing. This data is deemed reliable but is not guaranteed to be accurate by Edina Realty, Inc., or by the MLS. Edina Realty, Inc., is not a multiple listing service (MLS), nor does it offer MLS access.
Copyright 2026 Stellar MLS as distributed by the MLS GRID. All Rights Reserved.
Payment Calculator
Interest rate and annual percentage rate (APR) are based on current market conditions, are for informational purposes only, are subject to change without notice and may be subject to pricing add-ons related to property type, loan amount, loan-to-value, credit score and other variables. Estimated closing costs used in the APR calculation are assumed to be paid by the borrower at closing. If the closing costs are financed, the loan, APR and payment amounts will be higher. If the down payment is less than 20%, mortgage insurance may be required and could increase the monthly payment and APR. Contact us for details. Additional loan programs may be available. Accuracy is not guaranteed, and all products may not be available in all borrower's geographical areas and are based on their individual situation. This is not a credit decision or a commitment to lend.
Sales History & Tax Summary for 50 Buccaneer Bend
Sales History
| Date | Price | |
|---|---|---|
| Currently not available. | ||
Tax Summary
| Tax Year | Estimated Market Value | Total Tax |
|---|---|---|
| Currently not available. | ||
Data powered by ATTOM Data Solutions. Copyright© 2026. Information deemed reliable but not guaranteed.
Schools
Schools nearby 50 Buccaneer Bend
| Schools in attendance boundaries | Grades | Distance | Rating |
|---|---|---|---|
| Loading... | |||
| Schools nearby | Grades | Distance | Rating |
|---|---|---|---|
| Loading... | |||
Data powered by ATTOM Data Solutions. Copyright© 2026. Information deemed reliable but not guaranteed.
The schools shown represent both the assigned schools and schools by distance based on local school and district attendance boundaries. Attendance boundaries change based on various factors and proximity does not guarantee enrollment eligibility. Please consult your real estate agent and/or the school district to confirm the schools this property is zoned to attend. Information is deemed reliable but not guaranteed.
SchoolDigger ® Rating
The SchoolDigger rating system is a 1-5 scale with 5 as the highest rating. SchoolDigger ranks schools based on test scores supplied by each state's Department of Education. They calculate an average standard score by normalizing and averaging each school's test scores across all tests and grades.
Coming soon properties will soon be on the market, but are not yet available for showings.