500 Forest Lake Drive Altamonte Springs, FL 32714
For Sale MLS# V4944996
3 beds 3 baths 2,715 sq ft Single Family
Details for 500 Forest Lake Drive
MLS# V4944996
Description for 500 Forest Lake Drive, Altamonte Springs, FL, 32714
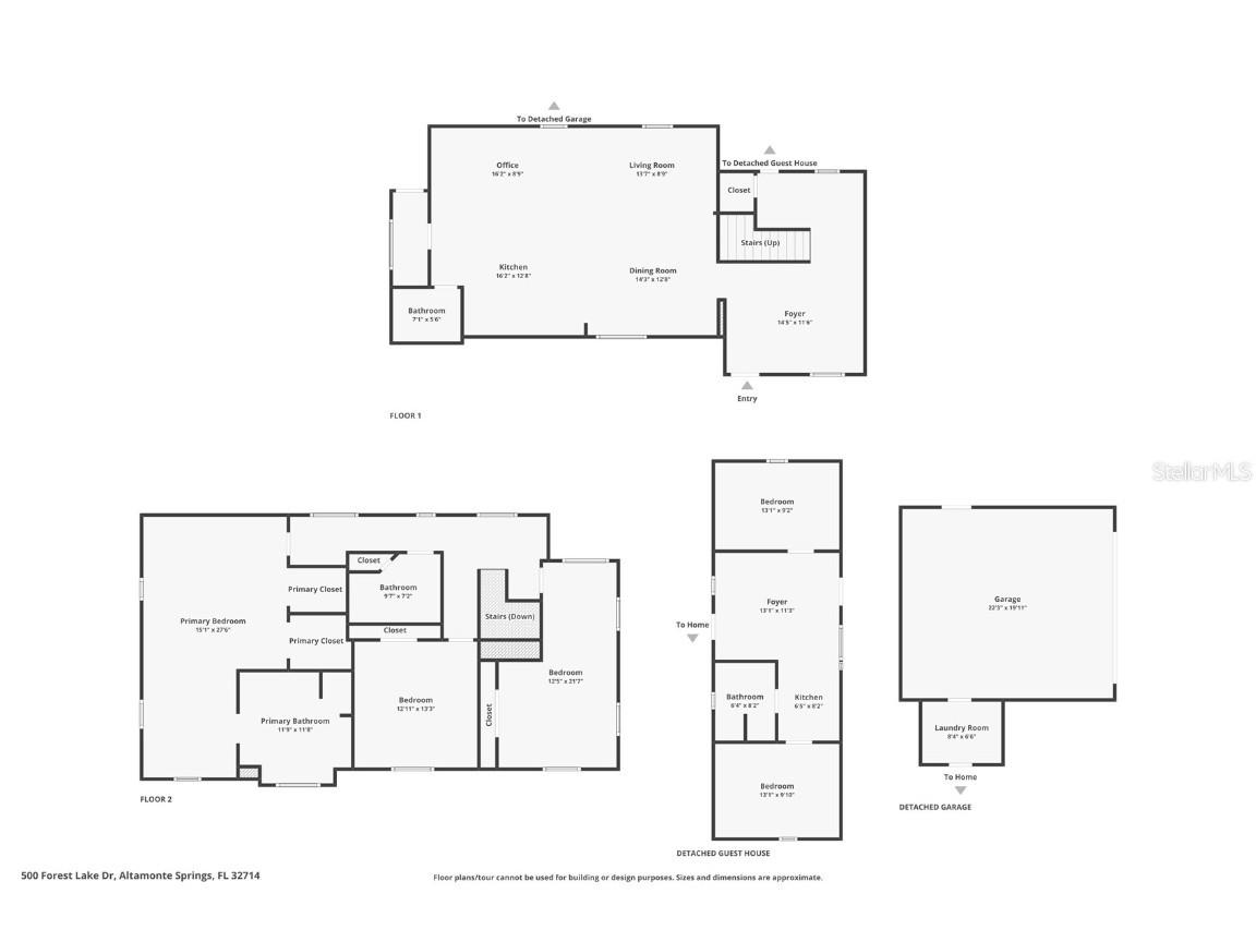
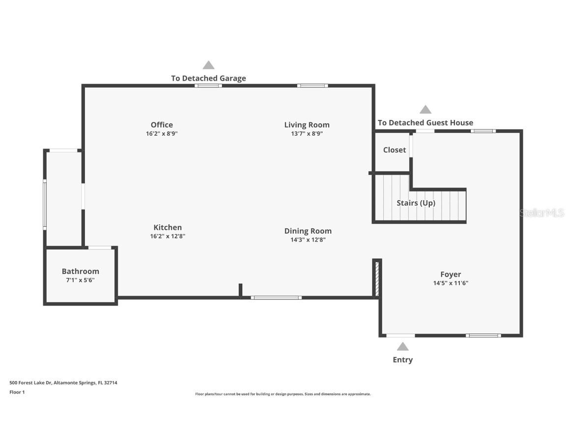
APPRAISED AT $730,000! This fully renovated and meticulously kept estate home sits high on 1.81 acres in the country with DETACHED GARAGE, DETACHED GUEST HOUSE and huge WORKSHOP just a short distance from I-4, shopping, and restaurants, providing the best of the quiet life in the country combined with easy access to everything you want or need. Inside, this beautiful kitchen features gorgeous granite countertops and granite-topped island, an abundance of cabinetry, custom tile backsplash, newer appliances, recessed lighting, and the perfect space for a home office. The spacious main living area is adjacent to the kitchen and features gorgeous luxury vinyl plank flooring that flows throughout most of this home. The 26’ X 15’ primary bedroom suite w/sitting area boasts a large walk-in closet and ensuite bath with dual sinks in the large granite topped vanity, jetted soaking tub, and beautifully tiled walk-in shower. Outside, the oversized detached 2-car garage is connected to the main home by a covered breezeway and short paver-lined walkway. The detached 672 square-foot home with 2-bedrooms and 1-bath is well updated and includes a small, private sitting patio. The huge workshop with two garage doors and interior office space is the perfect opportunity for the backyard mechanic or anyone that enjoys working with their hands, or for storing your outdoor toys. The chicken coop is perfect for home-grown eggs every morning. Grow your vegetables in the raised garden bed or start new beds elsewhere as there’s plenty of room here. Being just outside the city limits, this home features a well and septic, ensuring fresh water and no water bills. Boasting a new roof and HVAC in 2017 and electrical and plumbing in 2018, the major components are covered for years to come. This gorgeous home has NO HOA and is well updated with newer paint, knockdown ceilings, fixtures, and yes…this parcel goes all the way to the lake! Ask your Realtor® for the link to the unbranded virtual walking tour to this beautiful home in the country. All measurements are approximate and should be independently verified.
Listing Information
Property Type: Residential, Single Family Residence
Status: Active
Bedrooms: 3
Bathrooms: 3
Lot Size: 1.81 Acres
Square Feet: 2,715 sq ft
Year Built: 1952
Garage: Yes
Stories: 2 Story
Construction: Block,Vinyl Siding,Wood Frame
Subdivision: Forest Lake Sub
Foundation: Slab
County: Seminole
Room Information
Main Floor
Living Room: 14x20
Family Room: 13x21
Kitchen: 12x13
Upper Floor
Bedroom 3: 13x13
Bedroom 2: 12x21
Primary Bedroom: 15x26
Bathrooms
Full Baths: 2
1/2 Baths: 1
Additonal Room Information
Laundry: Outside, Laundry Room
Interior Features
Appliances: Water Softener, Dishwasher, Dryer, Range, Refrigerator, Washer
Flooring: Carpet,Luxury Vinyl
Additional Interior Features: Ceiling Fan(s), Walk-In Closet(s), Upper Level Primary, Kitchen/Family Room Combo
Utilities
Water: Well
Sewer: Septic Tank
Other Utilities: Electricity Connected
Cooling: Ceiling Fan(s), Central Air
Heating: Central
Exterior / Lot Features
Garage Spaces: 2
Roof: Shingle
Lot View: Pond,Water
Additional Exterior/Lot Features: Storage, Rain Gutters, Outdoor Kitchen, Lighting, Courtyard, Rear Porch, Side Porch, Covered, Porch
Out Buildings: Workshop, Guest House, Second Residence
Waterfront Details
Water Front Features: Pond
Driving Directions
From I-4 exit 92 head west on 436 and turn left onto Forest Lake Drive. Home on right.
Financial Considerations
Terms: Cash,Conventional,FHA,VA Loan
Tax/Property ID: 17-21-29-507-0000-0170
Tax Amount: 5168
Tax Year: 2024
A broker reciprocity listing courtesy: KELLER WILLIAMS HERITAGE REALTY
Based on information provided by Stellar MLS as distributed by the MLS GRID. Information from the Internet Data Exchange is provided exclusively for consumers’ personal, non-commercial use, and such information may not be used for any purpose other than to identify prospective properties consumers may be interested in purchasing. This data is deemed reliable but is not guaranteed to be accurate by Edina Realty, Inc., or by the MLS. Edina Realty, Inc., is not a multiple listing service (MLS), nor does it offer MLS access.
Copyright 2026 Stellar MLS as distributed by the MLS GRID. All Rights Reserved.
Payment Calculator
Interest rate and annual percentage rate (APR) are based on current market conditions, are for informational purposes only, are subject to change without notice and may be subject to pricing add-ons related to property type, loan amount, loan-to-value, credit score and other variables. Estimated closing costs used in the APR calculation are assumed to be paid by the borrower at closing. If the closing costs are financed, the loan, APR and payment amounts will be higher. If the down payment is less than 20%, mortgage insurance may be required and could increase the monthly payment and APR. Contact us for details. Additional loan programs may be available. Accuracy is not guaranteed, and all products may not be available in all borrower's geographical areas and are based on their individual situation. This is not a credit decision or a commitment to lend.
Sales History & Tax Summary for 500 Forest Lake Drive
Sales History
| Date | Price | Change |
|---|---|---|
| Currently not available. | ||
Tax Summary
| Tax Year | Estimated Market Value | Total Tax |
|---|---|---|
| Currently not available. | ||
Data powered by ATTOM Data Solutions. Copyright© 2026. Information deemed reliable but not guaranteed.
Schools
Schools nearby 500 Forest Lake Drive
| Schools in attendance boundaries | Grades | Distance | Rating |
|---|---|---|---|
| Loading... | |||
| Schools nearby | Grades | Distance | Rating |
|---|---|---|---|
| Loading... | |||
Data powered by ATTOM Data Solutions. Copyright© 2026. Information deemed reliable but not guaranteed.
The schools shown represent both the assigned schools and schools by distance based on local school and district attendance boundaries. Attendance boundaries change based on various factors and proximity does not guarantee enrollment eligibility. Please consult your real estate agent and/or the school district to confirm the schools this property is zoned to attend. Information is deemed reliable but not guaranteed.
SchoolDigger ® Rating
The SchoolDigger rating system is a 1-5 scale with 5 as the highest rating. SchoolDigger ranks schools based on test scores supplied by each state's Department of Education. They calculate an average standard score by normalizing and averaging each school's test scores across all tests and grades.
Coming soon properties will soon be on the market, but are not yet available for showings.