$255,000
500 New York Avenue #34 Dunedin, FL 34698
For Sale MLS# TB8482116
2 beds 2 baths 1,100 sq ft Townhouse/Twinhome
Details for 500 New York Avenue #34
MLS# TB8482116
Description for 500 New York Avenue #34, Dunedin, FL, 34698
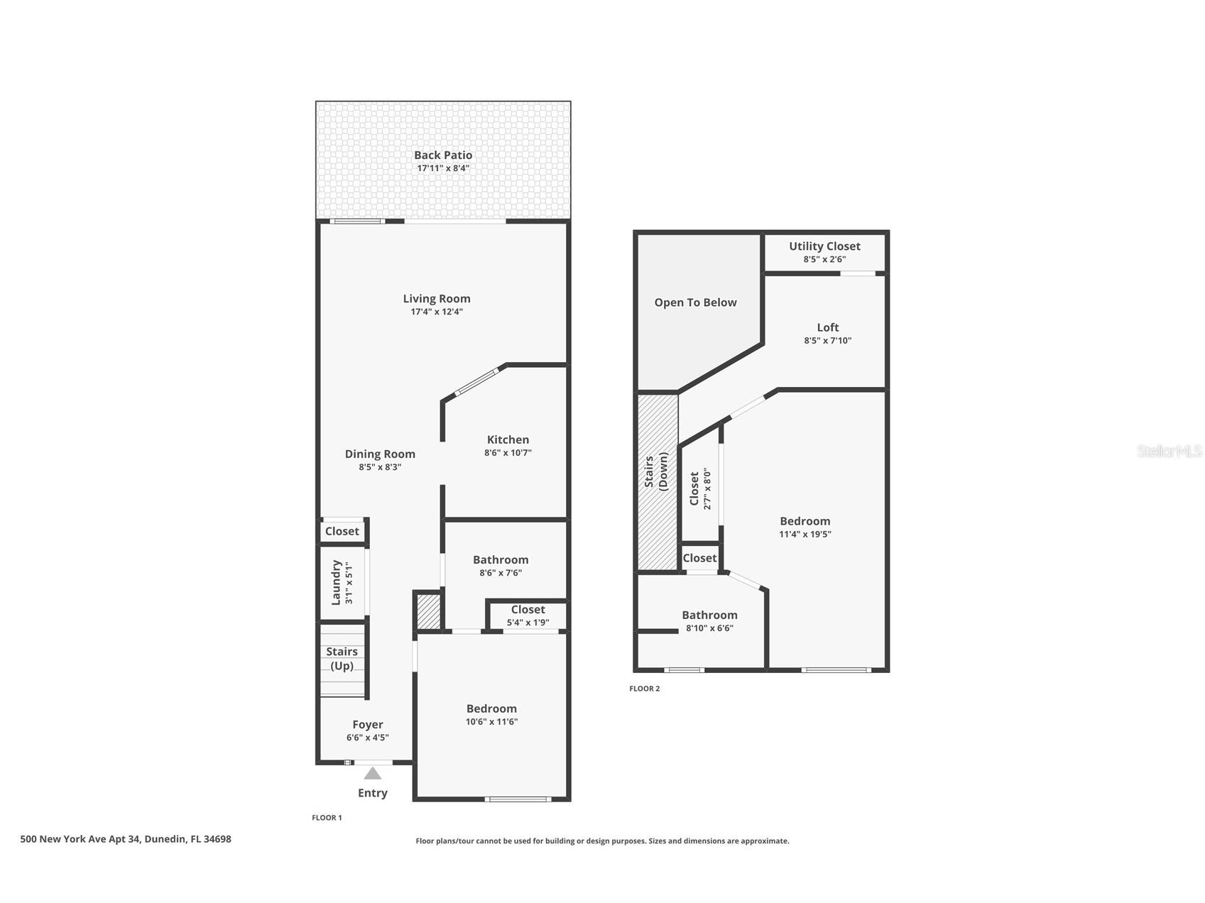
Move-in ready townhome-style condo featuring two bedrooms plus a loft with skylight, offering a flexible and light-filled layout. One bedroom and bath is conveniently located on the first floor, while a private master suite is upstairs. The open-concept living, dining, and kitchen areas feature cathedral ceilings creating a bright and spacious feel. Sliding glass doors open to a private outdoor space perfect for grilling and relaxing. Recent updates include quartz kitchen countertops, wood soft-close cabinets with lazy Susan, farmhouse sink, garbage disposal, custom dishwasher, new appliances, and 5-inch baseboards. The downstairs bathroom has been upgraded, and new carpet leads up the stairs to the second floor. New ceiling fans in both bedrooms. Washer and dryer are included. Sunlight pours through large windows and a skylight, complemented by energy-efficient window tinting and custom honeycomb shades. The upstairs loft provides excellent options for a home office, reading nook, or additional living space. Located in Loch Lomond Estates, this quiet tight knit community offers a pool, pond areas, and plenty of guest parking. The home includes a deeded carport space #34. Enjoy being (very walkable or bike) less than a mile from vibrant downtown Dunedin, well known for its art shows, farmers market, parks, breweries, shops, marinas, pier, golf courses, waterfront restaurants, Blue Jays stadium, and the Pinellas Trail. Just a short drive to Clearwater Beach, Honeymoon Island, and Caladesi Island. Monthly fee includes cable, internet, water, sewer, trash, termite bond, and pool access. This is a conscientiously maintained home offering the perfect blend of comfort, convenience, and the charming Dunedin lifestyle. No flood insurance required!!
Listing Information
Property Type: Residential, Townhouse
Status: Active
Bedrooms: 2
Bathrooms: 2
Lot Size: 2.44 Acres
Square Feet: 1,100 sq ft
Year Built: 1984
Stories: 2 Story
Construction: Block,Vinyl Siding,Wood Frame
Subdivision: Loch Lomond Estates Condo
Foundation: Slab
County: Pinellas
School Information
Elementary: San Jose Elementary-Pn
Middle: Dunedin Highland Middle-Pn
High: Dunedin High-Pn
Room Information
Main Floor
Primary Bedroom: 11x10
Dining Room: 9x8
Kitchen: 11x9
Living Room: 17x11
Upper Floor
Loft: 7x7
Primary Bedroom: 19x11
Bathrooms
Full Baths: 2
Additonal Room Information
Laundry: Laundry Closet
Interior Features
Appliances: Electric Water Heater, Washer, Range, Refrigerator, Dryer
Flooring: Ceramic Tile,Laminate
Doors/Windows: Skylight(s), Blinds
Additional Interior Features: Ceiling Fan(s), Wet Bar, Living/Dining Room, Main Level Primary, Upper Level Primary, Skylights, Cathedral Ceiling(s), Loft
Utilities
Water: Public
Sewer: Public Sewer
Other Utilities: Cable Connected,Electricity Connected,Municipal Utilities,Water Connected
Cooling: Central Air, Ceiling Fan(s)
Heating: Central
Exterior / Lot Features
Roof: Shingle
Pool: Association, Gunite, Community
Fencing: Wood, fenced
Additional Exterior/Lot Features: Patio, Buyer Approval Required
Community Features
Community Features: Street Lights, Sidewalks, Pool, Lake
Association Amenities: Pool
HOA Dues Include: Cable TV, Trash, Water, Sewer, Maintenance Structure, Pool(s), Insurance, Maintenance Grounds, Reserve Fund
Homeowners Association: Yes
HOA Dues: $526 / Monthly
Driving Directions
I-275 and W Hillborough Ave, to W on W Hillsborough Ave to State Street W/ Main Street to New York Ave. (Main St to New York Ave.)
Financial Considerations
Terms: Cash,Conventional
Tax/Property ID: 34-28-15-52390-000-0340
Tax Amount: 2823
Tax Year: 2025
A broker reciprocity listing courtesy: EZ CHOICE REALTY
Based on information provided by Stellar MLS as distributed by the MLS GRID. Information from the Internet Data Exchange is provided exclusively for consumers’ personal, non-commercial use, and such information may not be used for any purpose other than to identify prospective properties consumers may be interested in purchasing. This data is deemed reliable but is not guaranteed to be accurate by Edina Realty, Inc., or by the MLS. Edina Realty, Inc., is not a multiple listing service (MLS), nor does it offer MLS access.
Copyright 2026 Stellar MLS as distributed by the MLS GRID. All Rights Reserved.
Payment Calculator
Interest rate and annual percentage rate (APR) are based on current market conditions, are for informational purposes only, are subject to change without notice and may be subject to pricing add-ons related to property type, loan amount, loan-to-value, credit score and other variables. Estimated closing costs used in the APR calculation are assumed to be paid by the borrower at closing. If the closing costs are financed, the loan, APR and payment amounts will be higher. If the down payment is less than 20%, mortgage insurance may be required and could increase the monthly payment and APR. Contact us for details. Additional loan programs may be available. Accuracy is not guaranteed, and all products may not be available in all borrower's geographical areas and are based on their individual situation. This is not a credit decision or a commitment to lend.
Sales History & Tax Summary for 500 New York Avenue #34
Sales History
| Date | Price | |
|---|---|---|
| Currently not available. | ||
Tax Summary
| Tax Year | Estimated Market Value | Total Tax |
|---|---|---|
| Currently not available. | ||
Data powered by ATTOM Data Solutions. Copyright© 2026. Information deemed reliable but not guaranteed.
Schools
Schools nearby 500 New York Avenue #34
| Schools in attendance boundaries | Grades | Distance | Rating |
|---|---|---|---|
| Loading... | |||
| Schools nearby | Grades | Distance | Rating |
|---|---|---|---|
| Loading... | |||
Data powered by ATTOM Data Solutions. Copyright© 2026. Information deemed reliable but not guaranteed.
The schools shown represent both the assigned schools and schools by distance based on local school and district attendance boundaries. Attendance boundaries change based on various factors and proximity does not guarantee enrollment eligibility. Please consult your real estate agent and/or the school district to confirm the schools this property is zoned to attend. Information is deemed reliable but not guaranteed.
SchoolDigger ® Rating
The SchoolDigger rating system is a 1-5 scale with 5 as the highest rating. SchoolDigger ranks schools based on test scores supplied by each state's Department of Education. They calculate an average standard score by normalizing and averaging each school's test scores across all tests and grades.
Coming soon properties will soon be on the market, but are not yet available for showings.