$1,475,000
500 S Riverside Drive New Smyrna Beach, FL 32168 - INTRACOASTAL WATERWAY
For Sale MLS# NS1086457
4 beds 3 baths 1,905 sq ft Single Family
Details for 500 S Riverside Drive
MLS# NS1086457
Description for 500 S Riverside Drive, New Smyrna Beach, FL, 32168 - INTRACOASTAL WATERWAY
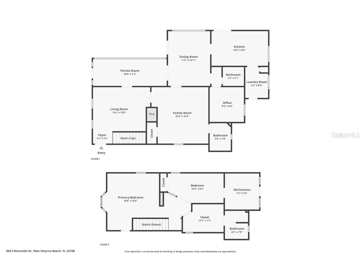
For the first time in decades, this rare riverfront treasure on historic Riverside Drive in New Smyrna Beach is available—an authentic circa 1900 4BR/3BA home with riparian rights to a deepwater dock & boathouse (needs repair) just across the street. Perfectly positioned on a corner lot with a detached oversized 2-car garage (32x24), this charming property sits within the exclusive Bed & Breakfast Overlay Zone (allowing short-term rentals with a 2-night minimum)—a truly uncommon find on golf cart-friendly Riverside Drive. Step onto the covered front porch and enjoy the serenity of boats passing by and gentle ocean and river breezes, just four blocks from the vibrant Canal Street Historic District, where you can stroll or golf cart to shops, restaurants, breweries, art shows, and the weekly farmers market. The first floor boasts river views from the living room, dining room, kitchen, and sunroom—all of which open to wraparound porches and decks perfect for entertaining. Two spacious bedrooms and two full baths are conveniently located downstairs, along with a laundry/mudroom that opens to the rear courtyard and garage. The second floor features a private primary suite with panoramic river views and access to a large balcony overlooking the water, plus an additional guest bedroom, full bath, and a second kitchen with its own balcony and stairway to the courtyard—ideal for rental income or extended family. With original hardwood floors throughout, charming period details like French doors, tall windows, herringbone brick entry, and exposed roof rafters under a certified metal roof (10–15 years of life remaining), this home embodies timeless craftsmanship. The kitchen blends history with modern convenience, featuring wood cabinetry, stone countertops, and stainless-steel appliances. Just across the bridge, you’ll find the lively Flagler Avenue beachside district for more shopping, dining, and nightlife—all just minutes from your porch swing. With a transferable termite bond, a solid power grid near Advent Hospital, and endless possibilities to restore or reimagine a new home, this property offers both historic charm and unmatched location in the heart of coastal New Smyrna Beach living. ALL INFORMATION IS ASSUMED ACCURATE BUT NOT GUARANTEED. ALL MEASUREMENTS ARE ESTIMATED. BUYERS AND THEIR AGENTS TO VERIFY ALL INFORMATION DEEMED IMPORTANT TO THEM.
Listing Information
Property Type: Residential, Single Family Residence
Status: Active
Bedrooms: 4
Bathrooms: 3
Lot Size: 0.17 Acres
Square Feet: 1,905 sq ft
Year Built: 1943
Garage: Yes
Stories: 2 Story
Construction: Wood Siding,Wood Frame
Subdivision: Andrews New Smyrna
Foundation: Crawlspace,Pillar/Post/Pier
County: Volusia
Room Information
Main Floor
Florida Room:
Dining Room:
Kitchen:
Living Room:
Bedroom 4:
Bedroom 3:
Upper Floor
Bedroom 2:
Primary Bedroom:
Bathrooms
Full Baths: 3
Additonal Room Information
Laundry: Inside, Laundry Room
Interior Features
Appliances: Wine Refrigerator, Washer, Range, Refrigerator, Microwave, Dishwasher, Disposal, Dryer
Flooring: Wood
Basement: Crawl Space
Fireplaces: Living Room
Additional Interior Features: Built-in Features, Ceiling Fan(s), Wood Cabinets, Stone Counters
Utilities
Water: Public
Sewer: Public Sewer
Other Utilities: Cable Available,Electricity Connected,Natural Gas Connected,High Speed Internet Available
Cooling: Ceiling Fan(s), Central Air
Heating: Electric
Exterior / Lot Features
Garage Spaces: 2
Parking Description: Alley Access, Garage Faces Side, Golf Cart Garage, Off Street, Oversized, Workshop in Garage
Roof: Metal
Lot View: Intercoastal,River,Water
Lot Dimensions: 50X150 + 50X60
Additional Exterior/Lot Features: Rain Barrel/Cistern(s), Balcony, Storage, Deck, Front Porch, Balcony, Patio, Porch, Covered, Rear Porch, Side Porch, Wrap Around, Landscaped, City Lot, Historic District
Out Buildings: Workshop
Waterfront Details
Standard Water Body: INTRACOASTAL WATERWAY
Water Front Features: Gulf Access, Intracoastal Access, River Front, River Access
Community Features
Community Features: Sidewalks
Driving Directions
4 Blocks South of Canal St (1 block South of S Causeway), SE corner of Riverside Dr and Andrew St.
Financial Considerations
Tax/Property ID: 7441-38-05-0250
Tax Amount: 4313
Tax Year: 2024
A broker reciprocity listing courtesy: COLLADO REAL ESTATE
Based on information provided by Stellar MLS as distributed by the MLS GRID. Information from the Internet Data Exchange is provided exclusively for consumers’ personal, non-commercial use, and such information may not be used for any purpose other than to identify prospective properties consumers may be interested in purchasing. This data is deemed reliable but is not guaranteed to be accurate by Edina Realty, Inc., or by the MLS. Edina Realty, Inc., is not a multiple listing service (MLS), nor does it offer MLS access.
Copyright 2026 Stellar MLS as distributed by the MLS GRID. All Rights Reserved.
Payment Calculator
Interest rate and annual percentage rate (APR) are based on current market conditions, are for informational purposes only, are subject to change without notice and may be subject to pricing add-ons related to property type, loan amount, loan-to-value, credit score and other variables. Estimated closing costs used in the APR calculation are assumed to be paid by the borrower at closing. If the closing costs are financed, the loan, APR and payment amounts will be higher. If the down payment is less than 20%, mortgage insurance may be required and could increase the monthly payment and APR. Contact us for details. Additional loan programs may be available. Accuracy is not guaranteed, and all products may not be available in all borrower's geographical areas and are based on their individual situation. This is not a credit decision or a commitment to lend.
Sales History & Tax Summary for 500 S Riverside Drive
Sales History
| Date | Price | |
|---|---|---|
| Currently not available. | ||
Tax Summary
| Tax Year | Estimated Market Value | Total Tax |
|---|---|---|
| Currently not available. | ||
Data powered by ATTOM Data Solutions. Copyright© 2026. Information deemed reliable but not guaranteed.
Schools
Schools nearby 500 S Riverside Drive
| Schools in attendance boundaries | Grades | Distance | Rating |
|---|---|---|---|
| Loading... | |||
| Schools nearby | Grades | Distance | Rating |
|---|---|---|---|
| Loading... | |||
Data powered by ATTOM Data Solutions. Copyright© 2026. Information deemed reliable but not guaranteed.
The schools shown represent both the assigned schools and schools by distance based on local school and district attendance boundaries. Attendance boundaries change based on various factors and proximity does not guarantee enrollment eligibility. Please consult your real estate agent and/or the school district to confirm the schools this property is zoned to attend. Information is deemed reliable but not guaranteed.
SchoolDigger ® Rating
The SchoolDigger rating system is a 1-5 scale with 5 as the highest rating. SchoolDigger ranks schools based on test scores supplied by each state's Department of Education. They calculate an average standard score by normalizing and averaging each school's test scores across all tests and grades.
Coming soon properties will soon be on the market, but are not yet available for showings.