5016 Swallow Drive Land O Lakes, FL 34639
For Sale MLS# TB8446502
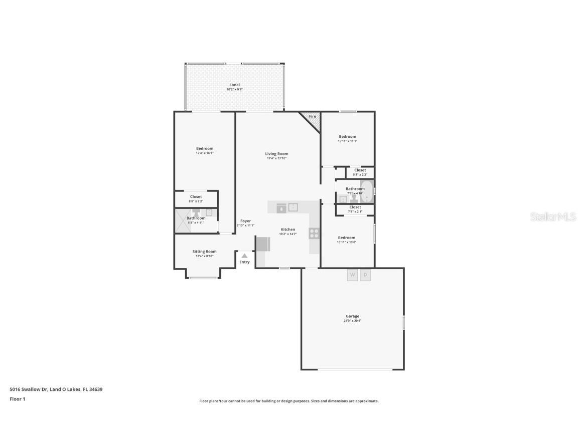
3 beds 2 baths 1,463 sq ft Single Family
Details for 5016 Swallow Drive
MLS# TB8446502
Description for 5016 Swallow Drive, Land O Lakes, FL, 34639
Welcome to this beautifully updated and move-in ready home located in the heart of Land O’ Lakes! This meticulously maintained 3-bedroom, 2-bath home with a dedicated office/den offers the perfect combination of comfort, efficiency, and Florida living at its best. Step inside to a bright open floor plan featuring new flooring throughout (2024), professionally painted interior and exterior (2024/2025), and an inviting living space that flows seamlessly into the dining and kitchen areas. The updated kitchen is a showstopper with modern quartz countertops, gorgeous custom cabinets, and Frigidaire stainless steel appliances including a double-door refrigerator, range, and microwave. The primary suite was completely renovated in 2024 with a luxurious walk-in shower, new vanity, mirror, and toilet, offering a true spa-like retreat. The home also includes newer energy-efficient double-hung windows and doors, custom blinds, and honeycomb shades in the living room and master bedroom for added style and privacy. Enjoy peace of mind and major energy savings thanks to the TESLA Solar Panel System (installed 7/2020), keeping monthly bills between just $69–$100, even with the A/C running 24/7 at 74°. Additional upgrades include a New Roof (2020), New A/C with Heat Pump (2020), New Water Softener System (1/2024), New 40-Gallon Hot Water Heater (1/2024), and epoxy-coated garage and lanai floors for a clean, polished look. Step outside to your private fenced backyard filled with beautiful tropical and citrus trees, including avocado, papaya, lemon, lime, orange, coconut, and passion fruit, surrounded by lush landscaping that creates a peaceful outdoor oasis. Located in a quiet, established neighborhood with no CDD and low HOA, this home offers unbeatable convenience just minutes from walking trails, a county recreation center with pool, ball fields, and tennis courts, plus a public library, gyms, Publix, restaurants, and plenty of shopping options. Truly move-in ready and beautifully maintained. schedule your private showing today and make this exceptional home yours!
Listing Information
Property Type: Residential, Single Family Residence
Status: Active
Bedrooms: 3
Bathrooms: 2
Lot Size: 0.31 Acres
Square Feet: 1,463 sq ft
Year Built: 1987
Garage: Yes
Stories: 1 Story
Construction: Block,Stucco
Subdivision: Lake Padgett Pines
Foundation: Slab
County: Pasco
School Information
Elementary: Pine View Elementary-Po
Middle: Pine View Middle-Po
High: Land O' Lakes High-Po
Room Information
Main Floor
Kitchen:
Office: 9x10
Bedroom 3: 10x10
Bedroom 2: 10x10
Primary Bedroom: 14x13
Living Room: 18x20
Bathrooms
Full Baths: 2
Additonal Room Information
Laundry: In Garage
Interior Features
Appliances: Electric Water Heater, Water Softener, Washer, Microwave, Range, Refrigerator, Dishwasher, Disposal, Dryer
Flooring: Ceramic Tile,Luxury Vinyl
Fireplaces: Living Room
Additional Interior Features: Kitchen/Family Room Combo, Main Level Primary, Ceiling Fan(s), Stone Counters
Utilities
Water: Public
Sewer: Public Sewer
Other Utilities: Cable Available,Electricity Available,High Speed Internet Available,Sewer Available,Water Available
Cooling: Ceiling Fan(s), Central Air
Heating: Electric, Central
Exterior / Lot Features
Attached Garage: Attached Garage
Garage Spaces: 2
Roof: Shingle
Lot View: Park/Greenbelt,Garden,Lake,Water
Additional Exterior/Lot Features: Dog Run, Garden, French Patio Doors, Lighting, Enclosed, Screened, Rear Porch, Patio, Covered, Cul-de-Sac, City Lot, Oversized Lot
Waterfront Details
Water Front Features: Lake Privileges
Community Features
Community Features: Sidewalks
Homeowners Association: Yes
HOA Dues: $15 / Monthly
Driving Directions
From US-41 (Land O’ Lakes Blvd), head east on Hale Road. Turn right onto Collier Parkway, then left onto Parkway Blvd. Continue to Whippoorwill Dr, then turn right onto Swallow Dr. The home will be on your left.
Financial Considerations
Terms: Cash,Conventional,FHA,VA Loan
Tax/Property ID: 09-26-19-0020-00000-0220
Tax Amount: 3058.31
Tax Year: 2024
A broker reciprocity listing courtesy: REALTY ONE GROUP ADVANTAGE
Based on information provided by Stellar MLS as distributed by the MLS GRID. Information from the Internet Data Exchange is provided exclusively for consumers’ personal, non-commercial use, and such information may not be used for any purpose other than to identify prospective properties consumers may be interested in purchasing. This data is deemed reliable but is not guaranteed to be accurate by Edina Realty, Inc., or by the MLS. Edina Realty, Inc., is not a multiple listing service (MLS), nor does it offer MLS access.
Copyright 2025 Stellar MLS as distributed by the MLS GRID. All Rights Reserved.
Payment Calculator
Interest rate and annual percentage rate (APR) are based on current market conditions, are for informational purposes only, are subject to change without notice and may be subject to pricing add-ons related to property type, loan amount, loan-to-value, credit score and other variables. Estimated closing costs used in the APR calculation are assumed to be paid by the borrower at closing. If the closing costs are financed, the loan, APR and payment amounts will be higher. If the down payment is less than 20%, mortgage insurance may be required and could increase the monthly payment and APR. Contact us for details. Additional loan programs may be available. Accuracy is not guaranteed, and all products may not be available in all borrower's geographical areas and are based on their individual situation. This is not a credit decision or a commitment to lend.
Sales History & Tax Summary for 5016 Swallow Drive
Sales History
| Date | Price | Change |
|---|---|---|
| Currently not available. | ||
Tax Summary
| Tax Year | Estimated Market Value | Total Tax |
|---|---|---|
| Currently not available. | ||
Data powered by ATTOM Data Solutions. Copyright© 2025. Information deemed reliable but not guaranteed.
Schools
Schools nearby 5016 Swallow Drive
| Schools in attendance boundaries | Grades | Distance | Rating |
|---|---|---|---|
| Loading... | |||
| Schools nearby | Grades | Distance | Rating |
|---|---|---|---|
| Loading... | |||
Data powered by ATTOM Data Solutions. Copyright© 2025. Information deemed reliable but not guaranteed.
The schools shown represent both the assigned schools and schools by distance based on local school and district attendance boundaries. Attendance boundaries change based on various factors and proximity does not guarantee enrollment eligibility. Please consult your real estate agent and/or the school district to confirm the schools this property is zoned to attend. Information is deemed reliable but not guaranteed.
SchoolDigger ® Rating
The SchoolDigger rating system is a 1-5 scale with 5 as the highest rating. SchoolDigger ranks schools based on test scores supplied by each state's Department of Education. They calculate an average standard score by normalizing and averaging each school's test scores across all tests and grades.
Coming soon properties will soon be on the market, but are not yet available for showings.