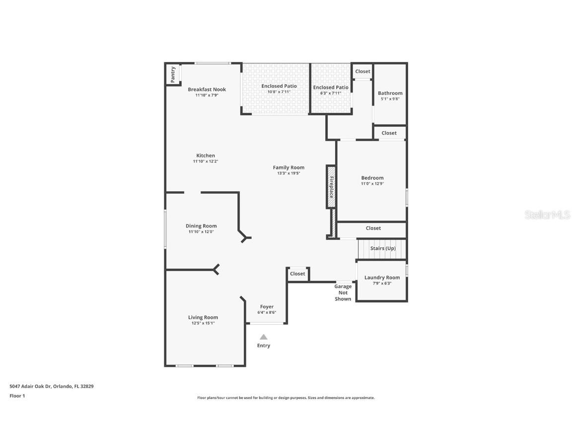
5047 Adair Oak Drive Orlando, FL 32829
For Sale MLS# O6324127
5 beds 4 baths 3,439 sq ft Single Family
Details for 5047 Adair Oak Drive
MLS# O6324127
Description for 5047 Adair Oak Drive, Orlando, FL, 32829
Spacious 5-bed, 4-bath home in Tivoli Woods with over 3,400 sqft of living space! Enjoy peace of mind with a new roof (Sept 2023) and new AC (Jan 2024). The home features a freshly painted exterior, solar panels for energy savings, and a large open layout with modern upgrades throughout. The kitchen offers granite counters, a sleek island, and tons of cabinet space. Downstairs includes bright tile floors, built-in shelving, a cozy electric fireplace, and an independent bedroom with a private entrance—perfect for a rental, guest room, or mother-in-law suite. Upstairs you'll find roomy bedrooms and a huge primary suite with a spa-style bath. Outside, relax in the side fenced backyard with no rear neighbors, a patio, and a beautiful long trail ideal for walking or running. Great location near MCO, schools, shops, and the parks. Move-in ready!
Listing Information
Property Type: Residential, Single Family Residence
Status: Active
Bedrooms: 5
Bathrooms: 4
Lot Size: 0.13 Acres
Square Feet: 3,439 sq ft
Year Built: 2005
Garage: Yes
Stories: 2 Story
Construction: Block,Stucco
Subdivision: Tivoli Woods Village C 51 84
Builder: K HOVNANIAN CAMBRIDGE HOMES LLC
Foundation: Slab
County: Orange
Days On Market: 64
Room Information
Main Floor
Bedroom 5: 11x11
Family Room: 14x12
Kitchen: 12x17
Living Room: 12x12
Upper Floor
Bedroom 4: 11x11
Bedroom 3: 11x11
Bedroom 2: 11x12
Primary Bedroom: 14x19
Loft: 15x15
Bathrooms
Full Baths: 4
Additonal Room Information
Laundry: Inside, Washer Hookup, Laundry Room, Electric Dryer Hookup
Interior Features
Appliances: Tankless Water Heater, Microwave, Range, Refrigerator
Flooring: Laminate,Tile
Additional Interior Features: Ceiling Fan(s), Eat-In Kitchen, Walk-In Closet(s), Open Floorplan, Kitchen/Family Room Combo, Separate/Formal Dining Room
Utilities
Water: Public
Sewer: Public Sewer
Other Utilities: Cable Available,Electricity Available,Electricity Connected,High Speed Internet Available,Municipal Utilities,Phone Available,Water Available
Cooling: Ceiling Fan(s), Central Air
Heating: Electric, Central
Exterior / Lot Features
Attached Garage: Attached Garage
Garage Spaces: 2
Roof: Shingle
Pool: Community
Lot View: Trees/Woods
Lot Dimensions: 50x110
Additional Exterior/Lot Features: Rear Porch, Covered, Screened
Community Features
Community Features: Sidewalks, Pool, Tennis Court(s), Playground, Street Lights
Homeowners Association: Yes
Association Name: Sanctuary at Tivoli Woods HOA, Inc
HOA Dues: $250 / Quarterly
Driving Directions
From FL-417, head West on Curry Ford Rd. Turn Left on Econ Trail, then Left into the Sanctuary at Tivoli Woods. Turn Left on Bennington Dr, then Left on Adair Oak Dr. Home is on the Left.
Financial Considerations
Terms: Cash,Conventional,FHA,VA Loan
Tax/Property ID: 18-23-31-2014-00-720
Tax Amount: 8178
Tax Year: 2024
A broker reciprocity listing courtesy: CROWN LEGACY REALTY LLC
Based on information provided by Stellar MLS as distributed by the MLS GRID. Information from the Internet Data Exchange is provided exclusively for consumers’ personal, non-commercial use, and such information may not be used for any purpose other than to identify prospective properties consumers may be interested in purchasing. This data is deemed reliable but is not guaranteed to be accurate by Edina Realty, Inc., or by the MLS. Edina Realty, Inc., is not a multiple listing service (MLS), nor does it offer MLS access.
Copyright 2026 Stellar MLS as distributed by the MLS GRID. All Rights Reserved.
Payment Calculator
Interest rate and annual percentage rate (APR) are based on current market conditions, are for informational purposes only, are subject to change without notice and may be subject to pricing add-ons related to property type, loan amount, loan-to-value, credit score and other variables. Estimated closing costs used in the APR calculation are assumed to be paid by the borrower at closing. If the closing costs are financed, the loan, APR and payment amounts will be higher. If the down payment is less than 20%, mortgage insurance may be required and could increase the monthly payment and APR. Contact us for details. Additional loan programs may be available. Accuracy is not guaranteed, and all products may not be available in all borrower's geographical areas and are based on their individual situation. This is not a credit decision or a commitment to lend.
Sales History & Tax Summary for 5047 Adair Oak Drive
Sales History
| Date | Price | |
|---|---|---|
| Currently not available. | ||
Tax Summary
| Tax Year | Estimated Market Value | Total Tax |
|---|---|---|
| Currently not available. | ||
Data powered by ATTOM Data Solutions. Copyright© 2026. Information deemed reliable but not guaranteed.
Schools
Schools nearby 5047 Adair Oak Drive
| Schools in attendance boundaries | Grades | Distance | Rating |
|---|---|---|---|
| Loading... | |||
| Schools nearby | Grades | Distance | Rating |
|---|---|---|---|
| Loading... | |||
Data powered by ATTOM Data Solutions. Copyright© 2026. Information deemed reliable but not guaranteed.
The schools shown represent both the assigned schools and schools by distance based on local school and district attendance boundaries. Attendance boundaries change based on various factors and proximity does not guarantee enrollment eligibility. Please consult your real estate agent and/or the school district to confirm the schools this property is zoned to attend. Information is deemed reliable but not guaranteed.
SchoolDigger ® Rating
The SchoolDigger rating system is a 1-5 scale with 5 as the highest rating. SchoolDigger ranks schools based on test scores supplied by each state's Department of Education. They calculate an average standard score by normalizing and averaging each school's test scores across all tests and grades.
Coming soon properties will soon be on the market, but are not yet available for showings.