$347,500
505 Venetian Palms Boulevard New Smyrna Beach, FL 32168
For Sale MLS# O6375891
3 beds 3 baths 1,758 sq ft Single Family
Details for 505 Venetian Palms Boulevard
MLS# O6375891
Description for 505 Venetian Palms Boulevard, New Smyrna Beach, FL, 32168
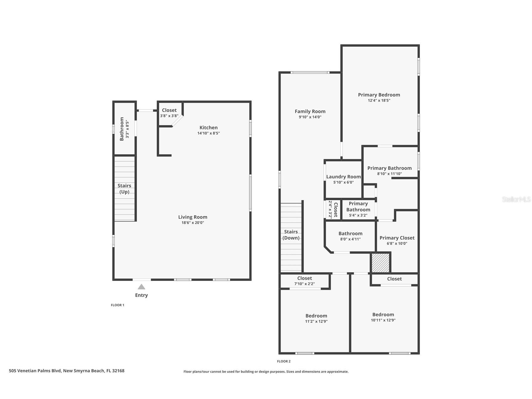
Welcome to this move-in ready 3-bedroom, 2.5-bathroom home in the community of Venetian Bay, featuring a 2022 roof for added peace of mind. Start your day with coffee or unwind in the evening on the front porch, perfect for relaxed afternoon sitting. Step inside to discover an inviting open floor plan that seamlessly blends the living and kitchen areas—ideal for everyday living and entertaining. The kitchen is a chef’s delight with stainless steel appliances, granite countertops, a convenient pantry, and a spacious countertop bar with additional seating. A half bathroom and access to the attached 2-car garage add extra convenience on the main level. Upstairs, enjoy the flexibility of a versatile loft space—perfect as a secondary living area, playroom, home office, or media room. Retreat to the spacious primary suite tucked away at the rear of the home, featuring elegant tray ceilings, a large walk-in closet, and an en-suite bathroom with double vanities, a relaxing garden tub, and a standalone shower. Down the hallway for added privacy, you’ll find two additional guest bedrooms and a full bathroom with a tub/shower combo. The second-floor laundry room adds everyday convenience. Venetian Bay is an active lifestyle community, home to The Club at Venetian Bay, offering an 18-hole golf course. The community also boasts a vibrant town center with shopping, dining, and playgrounds. Ideally located just minutes from beaches, additional shopping and dining options, and major highways I-95 and I-4.
Listing Information
Property Type: Residential, Single Family Residence
Status: Active
Bedrooms: 3
Bathrooms: 3
Lot Size: 0.10 Acres
Square Feet: 1,758 sq ft
Year Built: 2022
Garage: Yes
Stories: 2 Story
Construction: Block,Concrete,Stucco
Subdivision: Palms-Ph 5
Foundation: Slab
County: Volusia
Room Information
Main Floor
Living Room: 20x18
Kitchen: 8x14
Upper Floor
Loft: 14x9
Bedroom 3: 12x10
Bedroom 2: 12x11
Primary Bedroom: 18x12
Bathrooms
Full Baths: 2
1/2 Baths: 1
Additonal Room Information
Laundry: Inside, Laundry Room
Interior Features
Appliances: Microwave, Range, Refrigerator, Washer, Dishwasher, Dryer
Flooring: Carpet,Tile
Additional Interior Features: Ceiling Fan(s), Walk-In Closet(s), Tray Ceiling(s), Open Floorplan, Stone Counters
Utilities
Water: Public
Sewer: Public Sewer
Other Utilities: Electricity Connected,Water Connected
Cooling: Ceiling Fan(s), Central Air
Heating: Electric
Exterior / Lot Features
Attached Garage: Attached Garage
Garage Spaces: 2
Roof: Shingle
Community Features
Community Features: Sidewalks
Homeowners Association: Yes
HOA Dues: $95 / Monthly
Driving Directions
I-95 N, Take exit 249 toward FL-44 W, Turn left onto FL-44 W ,Turn right onto Airport Rd/O Reilly Rd, Continue to follow Airport Rd, Turn left onto Portofino Blvd, Turn right onto Venetian Palms Blvd, Turn right, Destination will be on the right 505 Venetian Palms Blvd, New Smyrna Beach, FL 32168
Financial Considerations
Terms: Cash,Conventional,FHA,VA Loan
Tax/Property ID: 17-33-17-07-00-5320
Tax Amount: 5135
Tax Year: 2024
A broker reciprocity listing courtesy: EXP REALTY LLC
Based on information provided by Stellar MLS as distributed by the MLS GRID. Information from the Internet Data Exchange is provided exclusively for consumers’ personal, non-commercial use, and such information may not be used for any purpose other than to identify prospective properties consumers may be interested in purchasing. This data is deemed reliable but is not guaranteed to be accurate by Edina Realty, Inc., or by the MLS. Edina Realty, Inc., is not a multiple listing service (MLS), nor does it offer MLS access.
Copyright 2026 Stellar MLS as distributed by the MLS GRID. All Rights Reserved.
Payment Calculator
Interest rate and annual percentage rate (APR) are based on current market conditions, are for informational purposes only, are subject to change without notice and may be subject to pricing add-ons related to property type, loan amount, loan-to-value, credit score and other variables. Estimated closing costs used in the APR calculation are assumed to be paid by the borrower at closing. If the closing costs are financed, the loan, APR and payment amounts will be higher. If the down payment is less than 20%, mortgage insurance may be required and could increase the monthly payment and APR. Contact us for details. Additional loan programs may be available. Accuracy is not guaranteed, and all products may not be available in all borrower's geographical areas and are based on their individual situation. This is not a credit decision or a commitment to lend.
Sales History & Tax Summary for 505 Venetian Palms Boulevard
Sales History
| Date | Price | |
|---|---|---|
| Currently not available. | ||
Tax Summary
| Tax Year | Estimated Market Value | Total Tax |
|---|---|---|
| Currently not available. | ||
Data powered by ATTOM Data Solutions. Copyright© 2026. Information deemed reliable but not guaranteed.
Schools
Schools nearby 505 Venetian Palms Boulevard
| Schools in attendance boundaries | Grades | Distance | Rating |
|---|---|---|---|
| Loading... | |||
| Schools nearby | Grades | Distance | Rating |
|---|---|---|---|
| Loading... | |||
Data powered by ATTOM Data Solutions. Copyright© 2026. Information deemed reliable but not guaranteed.
The schools shown represent both the assigned schools and schools by distance based on local school and district attendance boundaries. Attendance boundaries change based on various factors and proximity does not guarantee enrollment eligibility. Please consult your real estate agent and/or the school district to confirm the schools this property is zoned to attend. Information is deemed reliable but not guaranteed.
SchoolDigger ® Rating
The SchoolDigger rating system is a 1-5 scale with 5 as the highest rating. SchoolDigger ranks schools based on test scores supplied by each state's Department of Education. They calculate an average standard score by normalizing and averaging each school's test scores across all tests and grades.
Coming soon properties will soon be on the market, but are not yet available for showings.