5082 Fox Cliff Drive Lakeland, FL 33810
For Sale MLS# TB8442981
2 beds 2 baths 1,352 sq ft Single Family
Details for 5082 Fox Cliff Drive
MLS# TB8442981
Description for 5082 Fox Cliff Drive, Lakeland, FL, 33810
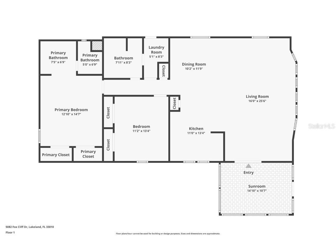
Welcome to Foxwood Lake Estates, a highly sought-after 55+ community where you own the land! This beautiful 2-bedroom, 2-bath home offers a spacious open floor plan featuring a large breakfast bar that seamlessly connects the kitchen, dining, and living areas—perfect for entertaining. The kitchen is a true highlight, showcasing all-wood cabinets, soft-close drawers, quartz countertops, and stainless steel appliances. Stylish laminate flooring flows throughout the main living spaces, adding warmth and easy maintenance. Enjoy extra living space in the comfortable Florida room with acrylic windows and air conditioning (not included in the 1,352 sq. ft. of living area), plus an additional screened room that wraps around the storage area—ideal for a workshop, hobby space, or relaxing retreat. Residents can take advantage of a variety of amenities, including a spacious clubhouse, game and billiards rooms, fitness center, library, sauna, and a heated pool with hot tub. Outdoor recreation abounds with pickleball, shuffleboard, bocce ball, basketball, and horseshoe courts, plus a scenic paved walking trail that winds around the lake. There’s always something happening here—from social gatherings and themed dinners to live entertainment, dances, fitness classes, and holiday celebrations. Whether you enjoy morning coffee with neighbors, pool aerobics, Zumba, or golf cart parades, this friendly community offers an abundance of ways to stay active, social, and engaged year-round.
Listing Information
Property Type: Residential, Manufactured Home
Status: Active
Bedrooms: 2
Bathrooms: 2
Lot Size: 0.11 Acres
Square Feet: 1,352 sq ft
Year Built: 1985
Stories: 1 Story
Construction: Metal Siding
Subdivision: Foxwood Lake Estates Ph 01
Foundation: Crawlspace
County: Polk
Room Information
Main Floor
Dining Room: 12x10
Kitchen: 13x11
Living Room: 26x16
Bedroom 2: 13x11
Primary Bedroom: 15x12
Bathrooms
Full Baths: 2
Interior Features
Appliances: Refrigerator, Dishwasher, Electric Water Heater, Microwave
Flooring: Carpet,Ceramic Tile,Laminate
Basement: Crawl Space
Additional Interior Features: Built-in Features, Cathedral Ceiling(s), High Ceilings, Living/Dining Room, Ceiling Fan(s), Eat-In Kitchen, Vaulted Ceiling(s), Open Floorplan
Utilities
Water: Public
Sewer: Public Sewer
Other Utilities: High Speed Internet Available,Underground Utilities
Cooling: Ceiling Fan(s), Central Air
Heating: Central
Exterior / Lot Features
Parking Description: driveway
Roof: Metal
Pool: Community
Additional Exterior/Lot Features: Rain Gutters, Sprinkler/Irrigation, Patio, Porch, Deck, Screened, Flat, Level, Landscaped, City Lot, Private Road, Buyer Approval Required
Out Buildings: Shed(s)
Community Features
Community Features: Fishing, Fitness, Community Mailbox, Clubhouse, Pool
HOA Dues Include: Recreation Facilities, Taxes, Security, Pool(s), Common Areas, Reserve Fund, Road Maintenance
Homeowners Association: Yes
HOA Dues: $684 / Annually
Driving Directions
From I-4 Exit 32: Head north on US Hwy 98, turn left (west) onto Gib-Galloway Road, then left onto Foxwood Blvd. At the stop sign, turn left again to stay on Foxwood Blvd, then left onto Fox Cliff Dr. The home will be on the right.
Financial Considerations
Terms: Cash,Conventional,FHA,VA Loan
Tax/Property ID: 23-27-26-010010-005610
Tax Amount: 203
Tax Year: 2024
A broker reciprocity listing courtesy: WEICHERT REALTORS EXCLUSIVE PROPERTIES
Based on information provided by Stellar MLS as distributed by the MLS GRID. Information from the Internet Data Exchange is provided exclusively for consumers’ personal, non-commercial use, and such information may not be used for any purpose other than to identify prospective properties consumers may be interested in purchasing. This data is deemed reliable but is not guaranteed to be accurate by Edina Realty, Inc., or by the MLS. Edina Realty, Inc., is not a multiple listing service (MLS), nor does it offer MLS access.
Copyright 2025 Stellar MLS as distributed by the MLS GRID. All Rights Reserved.
Payment Calculator
Interest rate and annual percentage rate (APR) are based on current market conditions, are for informational purposes only, are subject to change without notice and may be subject to pricing add-ons related to property type, loan amount, loan-to-value, credit score and other variables. Estimated closing costs used in the APR calculation are assumed to be paid by the borrower at closing. If the closing costs are financed, the loan, APR and payment amounts will be higher. If the down payment is less than 20%, mortgage insurance may be required and could increase the monthly payment and APR. Contact us for details. Additional loan programs may be available. Accuracy is not guaranteed, and all products may not be available in all borrower's geographical areas and are based on their individual situation. This is not a credit decision or a commitment to lend.
Sales History & Tax Summary for 5082 Fox Cliff Drive
Sales History
| Date | Price | Change |
|---|---|---|
| Currently not available. | ||
Tax Summary
| Tax Year | Estimated Market Value | Total Tax |
|---|---|---|
| Currently not available. | ||
Data powered by ATTOM Data Solutions. Copyright© 2025. Information deemed reliable but not guaranteed.
Schools
Schools nearby 5082 Fox Cliff Drive
| Schools in attendance boundaries | Grades | Distance | Rating |
|---|---|---|---|
| Loading... | |||
| Schools nearby | Grades | Distance | Rating |
|---|---|---|---|
| Loading... | |||
Data powered by ATTOM Data Solutions. Copyright© 2025. Information deemed reliable but not guaranteed.
The schools shown represent both the assigned schools and schools by distance based on local school and district attendance boundaries. Attendance boundaries change based on various factors and proximity does not guarantee enrollment eligibility. Please consult your real estate agent and/or the school district to confirm the schools this property is zoned to attend. Information is deemed reliable but not guaranteed.
SchoolDigger ® Rating
The SchoolDigger rating system is a 1-5 scale with 5 as the highest rating. SchoolDigger ranks schools based on test scores supplied by each state's Department of Education. They calculate an average standard score by normalizing and averaging each school's test scores across all tests and grades.
Coming soon properties will soon be on the market, but are not yet available for showings.