509 Ridgewood Street NW Port Charlotte, FL 33952
For Sale MLS# A4663932
3 beds 3 baths 2,412 sq ft Single Family
Details for 509 Ridgewood Street NW
MLS# A4663932
Description for 509 Ridgewood Street NW, Port Charlotte, FL, 33952
Welcome to this beautifully maintained 3 bedroom, 3 bathroom home in the heart of Port Charlotte! Designed for both comfort and efficiency, this home is equipped with a durable metal roof and solar panels—giving you peace of mind and lower utility costs. Step inside to find a spacious floor plan with a well appointed kitchen, featuring new appliances, perfect for everyday living and entertaining. The oversized primary en-suite is a true retreat, featuring dual vanities, a relaxing soaker tub, and a separate shower. Every room features ample closet space making storage a breeze. Step outside to experience the new covered lanai overlooking the highlight of this home, the sparkling saltwater heated pool featuring a jetted bench—an ideal spot to unwind and enjoy Florida living year-round. A new large shed adds even more storage and functionality to the property. Conveniently located near shopping, dining, schools, and just a short drive to Gulf beaches, this home offers the perfect blend of relaxation and accessibility. Don’t miss the chance to own this Port Charlotte gem with modern upgrades and resort-style outdoor living!
Listing Information
Property Type: Residential, Single Family Residence
Status: Active
Bedrooms: 3
Bathrooms: 3
Lot Size: 0.23 Acres
Square Feet: 2,412 sq ft
Year Built: 1970
Stories: 1 Story
Construction: Block,Stucco
Subdivision: Port Charlotte Sec 005
Foundation: Slab
County: Charlotte
School Information
Elementary: Peace River Elementary
Middle: Murdock Middle
High: Port Charlotte High
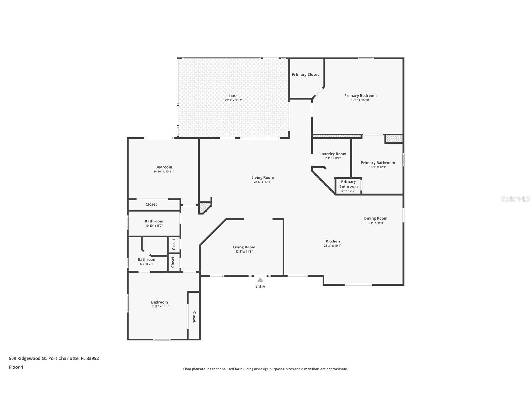
Room Information
Main Floor
Porch: 16x23
Primary Bathroom: 12x10
Primary Bedroom: 15x19
Bedroom 2: 14x14
Bedroom 1: 14x14
Foyer: 11x17
Dining Room: 10x11
Kitchen: 19x25
Living Room: 17x28
Bathrooms
Full Baths: 3
Additonal Room Information
Laundry: Laundry Room
Interior Features
Appliances: Electric Water Heater, Dishwasher, Dryer, Microwave, Range, Refrigerator, Washer
Flooring: Laminate,Tile
Additional Interior Features: Open Floorplan
Utilities
Water: Public
Sewer: Public Sewer
Other Utilities: Municipal Utilities
Cooling: Central Air
Heating: Central
Exterior / Lot Features
Roof: Metal
Pool: In Ground
Additional Exterior/Lot Features: Other
Driving Directions
From US 41 turn right on Port Charlotte Blvd, turn right on Center Ave NW, turn right on Ridgewood St NW house is on the right
Financial Considerations
Tax/Property ID: 402221231008
Tax Amount: 6497.77
Tax Year: 2024
A broker reciprocity listing courtesy: BETTER HOMES AND GARDENS REAL ESTATE ATCHLEY PROPE
Based on information provided by Stellar MLS as distributed by the MLS GRID. Information from the Internet Data Exchange is provided exclusively for consumers’ personal, non-commercial use, and such information may not be used for any purpose other than to identify prospective properties consumers may be interested in purchasing. This data is deemed reliable but is not guaranteed to be accurate by Edina Realty, Inc., or by the MLS. Edina Realty, Inc., is not a multiple listing service (MLS), nor does it offer MLS access.
Copyright 2026 Stellar MLS as distributed by the MLS GRID. All Rights Reserved.
Payment Calculator
Interest rate and annual percentage rate (APR) are based on current market conditions, are for informational purposes only, are subject to change without notice and may be subject to pricing add-ons related to property type, loan amount, loan-to-value, credit score and other variables. Estimated closing costs used in the APR calculation are assumed to be paid by the borrower at closing. If the closing costs are financed, the loan, APR and payment amounts will be higher. If the down payment is less than 20%, mortgage insurance may be required and could increase the monthly payment and APR. Contact us for details. Additional loan programs may be available. Accuracy is not guaranteed, and all products may not be available in all borrower's geographical areas and are based on their individual situation. This is not a credit decision or a commitment to lend.
Sales History & Tax Summary for 509 Ridgewood Street NW
Sales History
| Date | Price | |
|---|---|---|
| Currently not available. | ||
Tax Summary
| Tax Year | Estimated Market Value | Total Tax |
|---|---|---|
| Currently not available. | ||
Data powered by ATTOM Data Solutions. Copyright© 2026. Information deemed reliable but not guaranteed.
Schools
Schools nearby 509 Ridgewood Street NW
| Schools in attendance boundaries | Grades | Distance | Rating |
|---|---|---|---|
| Loading... | |||
| Schools nearby | Grades | Distance | Rating |
|---|---|---|---|
| Loading... | |||
Data powered by ATTOM Data Solutions. Copyright© 2026. Information deemed reliable but not guaranteed.
The schools shown represent both the assigned schools and schools by distance based on local school and district attendance boundaries. Attendance boundaries change based on various factors and proximity does not guarantee enrollment eligibility. Please consult your real estate agent and/or the school district to confirm the schools this property is zoned to attend. Information is deemed reliable but not guaranteed.
SchoolDigger ® Rating
The SchoolDigger rating system is a 1-5 scale with 5 as the highest rating. SchoolDigger ranks schools based on test scores supplied by each state's Department of Education. They calculate an average standard score by normalizing and averaging each school's test scores across all tests and grades.
Coming soon properties will soon be on the market, but are not yet available for showings.