$279,000
Off-Market Date: 02/17/202651 Denver Drive Port Charlotte, FL 33954
Pending MLS# C7517644
3 beds 2 baths 1,243 sq ft Single Family
Details for 51 Denver Drive
MLS# C7517644
Description for 51 Denver Drive, Port Charlotte, FL, 33954
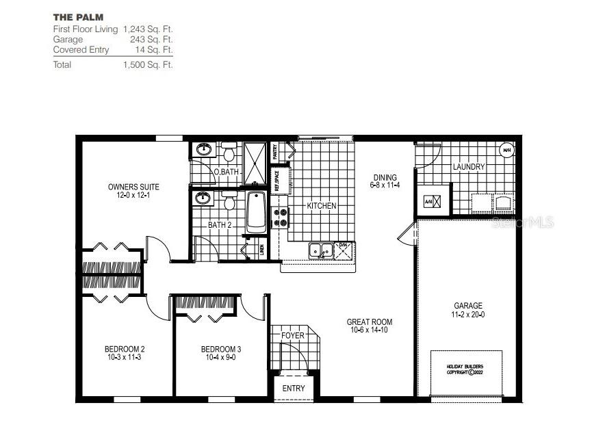
READY NOW!! AVAILABLE IMMEDIATELY! Introducing the captivating Palm floorplan from our Inspire collection of homes. This modest yet charming residence offers three bedrooms, two full baths, an indoor laundry room, and a one-car garage. The contemporary kitchen design seamlessly overlooks the combined dining and great room area, creating a spacious and inviting atmosphere. Enjoy casual dining at the countertop breakfast bar while taking in the breathtaking view of the expansive backyard and the beautiful Florida weather through the sliding glass door. Designed with practicality and efficiency in mind, the Palm floorplan eliminates the need for traditional “formal” living and dining rooms, optimizing the use of space for family living and entertaining. Revel in the cozy and bright ambiance of this open layout, perfectly suited for creating cherished memories.
Listing Information
Property Type: Residential, Single Family Residence
Status: Pending
Bedrooms: 3
Bathrooms: 2
Lot Size: 0.23 Acres
Square Feet: 1,243 sq ft
Year Built: 2026
Garage: Yes
Stories: 1 Story
Construction: Block,Stucco
Construction Display: New Construction
Subdivision: Port Charlotte Section 17
Builder: Holiday Builders
Foundation: Slab
County: Charlotte
Construction Status: New Construction
Room Information
Main Floor
Dining Room: 11.04x6.08
Bedroom 3: 9x10.04
Bedroom 2: 11.03x10.03
Great Room: 15x10.06
Kitchen: 7.05x11
Primary Bedroom: 12.01x12
Bathrooms
Full Baths: 2
Additonal Room Information
Laundry: Inside
Interior Features
Appliances: Dishwasher, Range, Electric Water Heater
Flooring: Carpet,Vinyl
Additional Interior Features: Walk-In Closet(s), Main Level Primary, Open Floorplan
Utilities
Water: Public
Sewer: Septic Tank
Other Utilities: Electricity Available,Electricity Connected,Municipal Utilities,Underground Utilities,Water Available,Water Connected
Cooling: Central Air
Heating: Central, Electric
Exterior / Lot Features
Attached Garage: Attached Garage
Garage Spaces: 1
Roof: Shingle
Driving Directions
Heading North on Veterans Blvd. Take a Right on Paulson Dr. Take Right on Prineville St. Take a Right on E Hillsborough Blvd. Turn Right on Denver Dr. Home will be down on Right.
Financial Considerations
Terms: Cash,Conventional,FHA,VA Loan
Tax/Property ID: 402205232012
Tax Amount: 544
Tax Year: 2024
A broker reciprocity listing courtesy: HOLIDAY BUILDERS GULF COAST
Based on information provided by Stellar MLS as distributed by the MLS GRID. Information from the Internet Data Exchange is provided exclusively for consumers’ personal, non-commercial use, and such information may not be used for any purpose other than to identify prospective properties consumers may be interested in purchasing. This data is deemed reliable but is not guaranteed to be accurate by Edina Realty, Inc., or by the MLS. Edina Realty, Inc., is not a multiple listing service (MLS), nor does it offer MLS access.
Copyright 2026 Stellar MLS as distributed by the MLS GRID. All Rights Reserved.
Sales History & Tax Summary for 51 Denver Drive
Sales History
| Date | Price | |
|---|---|---|
| Currently not available. | ||
Tax Summary
| Tax Year | Estimated Market Value | Total Tax |
|---|---|---|
| Currently not available. | ||
Data powered by ATTOM Data Solutions. Copyright© 2026. Information deemed reliable but not guaranteed.
Schools
Schools nearby 51 Denver Drive
| Schools in attendance boundaries | Grades | Distance | Rating |
|---|---|---|---|
| Loading... | |||
| Schools nearby | Grades | Distance | Rating |
|---|---|---|---|
| Loading... | |||
Data powered by ATTOM Data Solutions. Copyright© 2026. Information deemed reliable but not guaranteed.
The schools shown represent both the assigned schools and schools by distance based on local school and district attendance boundaries. Attendance boundaries change based on various factors and proximity does not guarantee enrollment eligibility. Please consult your real estate agent and/or the school district to confirm the schools this property is zoned to attend. Information is deemed reliable but not guaranteed.
SchoolDigger ® Rating
The SchoolDigger rating system is a 1-5 scale with 5 as the highest rating. SchoolDigger ranks schools based on test scores supplied by each state's Department of Education. They calculate an average standard score by normalizing and averaging each school's test scores across all tests and grades.
Coming soon properties will soon be on the market, but are not yet available for showings.