$395,000
5119 Lazy Lake Circle Orlando, FL 32821
For Sale MLS# O6365854
3 beds 2 baths 1,612 sq ft Single Family
Details for 5119 Lazy Lake Circle
MLS# O6365854
Description for 5119 Lazy Lake Circle, Orlando, FL, 32821
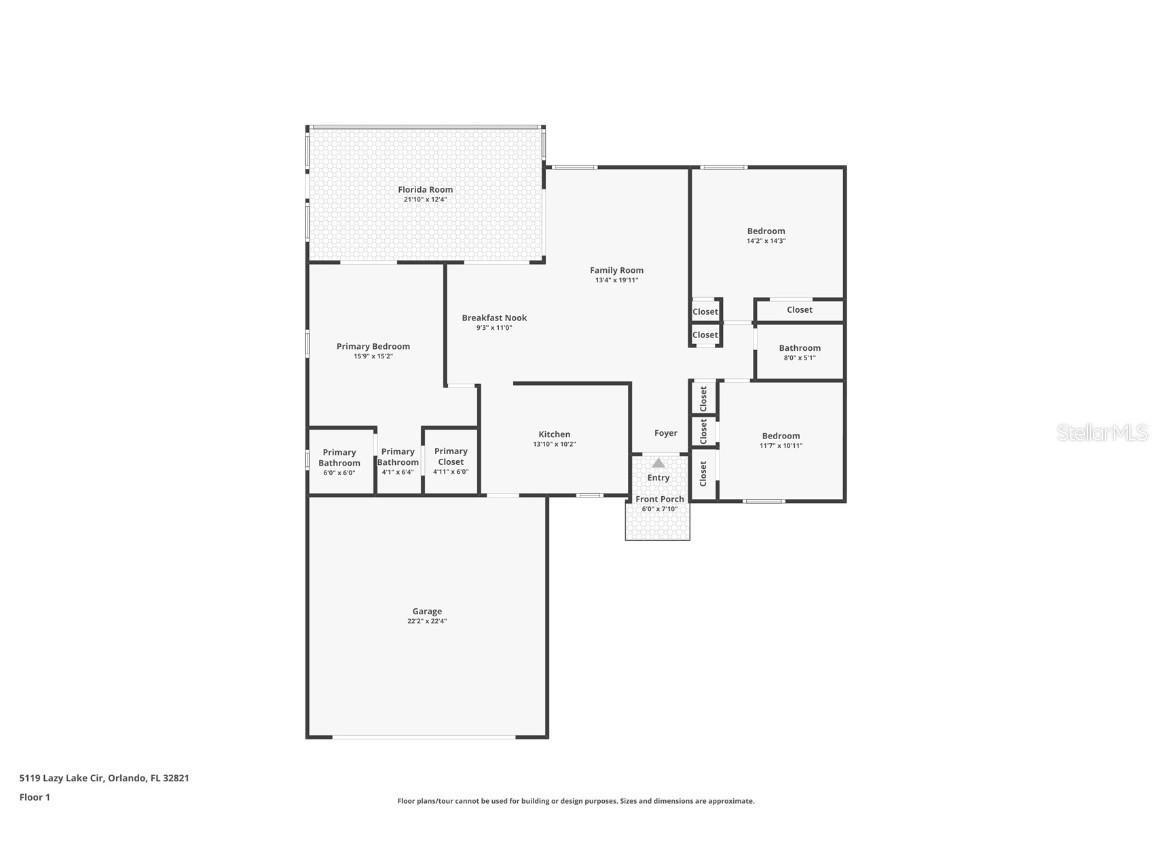
One or more photo(s) has been virtually staged. Presenting 5119 Lazy Lake Circle, Orlando, FL 32821, a single-family residence located in the Lake Ridge Village subdivision of Williamsburg. Built in 1983, this home offers 1,612 square feet of heated living space and a total area of 2,162 square feet. The interior features tile flooring throughout the entire property, creating a consistent look from room to room. The floor plan is designed with a split-bedroom layout that centers around an open living and dining area. Large windows allow for abundant natural light to fill these common spaces. The kitchen is equipped with granite counters, wood cabinetry, stainless steel appliances, and a gas range. Adjacent to the main living area, the primary suite is positioned for privacy and includes direct access to the rear of the home. An enclosed Florida room extends the living area, featuring tile floors and looking out toward the north-facing backyard and mature landscaping. This space offers a quiet area for relaxation protected from the elements. Practical features include an attached two-car garage, which houses the laundry area and includes a newer washer and dryer. Residents of this community have access to a pool and clubhouse, covered by a monthly HOA fee of $95. The location provides convenient access to major highways and is situated near SeaWorld, Universal Studios, International Drive, and the dining options along Sand Lake Restaurant Row. Schedule your showing today before it's too late.
Listing Information
Property Type: Residential, Single Family Residence
Status: Active
Bedrooms: 3
Bathrooms: 2
Lot Size: 0.14 Acres
Square Feet: 1,612 sq ft
Year Built: 1983
Garage: Yes
Stories: 1 Story
Construction: Block,Stucco
Subdivision: Lake Ridge Village
Foundation: Slab
County: Orange
School Information
Elementary: Sunshine Elementary
Middle: Freedom Middle
High: Lake Buena Vista High School
Room Information
Main Floor
Primary Bedroom: 15x16
Dining Room: 10x11
Great Room: 14x20
Kitchen: 10x13
Bathrooms
Full Baths: 2
Additonal Room Information
Laundry: In Garage
Interior Features
Appliances: Washer, Microwave, Range, Refrigerator, Dishwasher, Disposal, Dryer
Flooring: Tile
Additional Interior Features: Vaulted Ceiling(s), Built-in Features, Open Floorplan, Stone Counters, Wood Cabinets, Main Level Primary
Utilities
Water: Public
Sewer: Public Sewer
Other Utilities: Cable Available,Electricity Connected,Natural Gas Connected,High Speed Internet Available,Sewer Connected,Water Connected
Cooling: Central Air
Heating: Central
Exterior / Lot Features
Attached Garage: Attached Garage
Garage Spaces: 2
Parking Description: Garage, Garage Door Opener, driveway
Roof: Shingle
Pool: Association, Community
Additional Exterior/Lot Features: Rain Gutters, Sprinkler/Irrigation, Landscaped, Outside City Limits
Community Features
Community Features: Sidewalks
Association Amenities: Pickleball, Shuffleboard Court, Clubhouse, Pool, Tennis Court(s)
HOA Dues Include: Recreation Facilities, Pool(s)
Homeowners Association: Yes
HOA Dues: $95 / Monthly
Driving Directions
Heading West on I-4, take exit 72 for FL-528 Toll E toward Int'l Airport/Cape Canaveral. Continue onto FL-528 E/FL-528 Toll E. Use the right lane to take exit 2 to merge onto Orangewood Blvd. Merge onto Orangewood Blvd. Turn left onto Larissa St. Turn right onto Lazy Lake Dr. Turn right onto Lazy Lake Cir. Home is on the right.
Financial Considerations
Terms: Cash,Conventional,FHA,VA Loan
Tax/Property ID: 07-24-29-4720-02-620
Tax Amount: 2918
Tax Year: 2024
A broker reciprocity listing courtesy: LAKESIDE REALTY WINDERMERE INC
Based on information provided by Stellar MLS as distributed by the MLS GRID. Information from the Internet Data Exchange is provided exclusively for consumers’ personal, non-commercial use, and such information may not be used for any purpose other than to identify prospective properties consumers may be interested in purchasing. This data is deemed reliable but is not guaranteed to be accurate by Edina Realty, Inc., or by the MLS. Edina Realty, Inc., is not a multiple listing service (MLS), nor does it offer MLS access.
Copyright 2025 Stellar MLS as distributed by the MLS GRID. All Rights Reserved.
Payment Calculator
Interest rate and annual percentage rate (APR) are based on current market conditions, are for informational purposes only, are subject to change without notice and may be subject to pricing add-ons related to property type, loan amount, loan-to-value, credit score and other variables. Estimated closing costs used in the APR calculation are assumed to be paid by the borrower at closing. If the closing costs are financed, the loan, APR and payment amounts will be higher. If the down payment is less than 20%, mortgage insurance may be required and could increase the monthly payment and APR. Contact us for details. Additional loan programs may be available. Accuracy is not guaranteed, and all products may not be available in all borrower's geographical areas and are based on their individual situation. This is not a credit decision or a commitment to lend.
Sales History & Tax Summary for 5119 Lazy Lake Circle
Sales History
| Date | Price | Change |
|---|---|---|
| Currently not available. | ||
Tax Summary
| Tax Year | Estimated Market Value | Total Tax |
|---|---|---|
| Currently not available. | ||
Data powered by ATTOM Data Solutions. Copyright© 2025. Information deemed reliable but not guaranteed.
Schools
Schools nearby 5119 Lazy Lake Circle
| Schools in attendance boundaries | Grades | Distance | Rating |
|---|---|---|---|
| Loading... | |||
| Schools nearby | Grades | Distance | Rating |
|---|---|---|---|
| Loading... | |||
Data powered by ATTOM Data Solutions. Copyright© 2025. Information deemed reliable but not guaranteed.
The schools shown represent both the assigned schools and schools by distance based on local school and district attendance boundaries. Attendance boundaries change based on various factors and proximity does not guarantee enrollment eligibility. Please consult your real estate agent and/or the school district to confirm the schools this property is zoned to attend. Information is deemed reliable but not guaranteed.
SchoolDigger ® Rating
The SchoolDigger rating system is a 1-5 scale with 5 as the highest rating. SchoolDigger ranks schools based on test scores supplied by each state's Department of Education. They calculate an average standard score by normalizing and averaging each school's test scores across all tests and grades.
Coming soon properties will soon be on the market, but are not yet available for showings.