5119 Puritan Circle #1125 Tampa, FL 33617
For Sale MLS# TB8407117
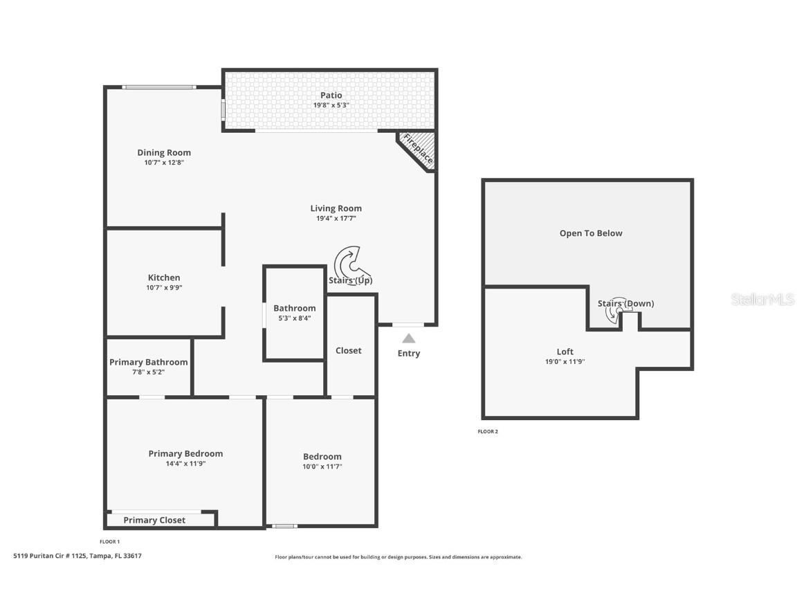
2 beds 2 baths 1,328 sq ft Condo
Details for 5119 Puritan Circle #1125
MLS# TB8407117
Description for 5119 Puritan Circle #1125, Tampa, FL, 33617
Corner Unit Condo with Pool Views, Modern Updates, and Resort-Style Amenities This move-in-ready 2-bedroom, 2-bathroom corner unit offers privacy, natural light, and a thoughtfully updated interior in a gated, pet-friendly community along the Hillsborough River. Overlooking the community pool, the home combines comfort with convenience in a setting that feels like a retreat just minutes from the city. Recent upgrades include fresh interior paint, new luxury vinyl plank flooring throughout, and a new A/C system. The kitchen has been completely redone with granite countertops, espresso wood cabinetry, stainless steel appliances, and a new backsplash. Both bathrooms feature updated vanities and toilets. A cozy fireplace warms the open living area, while a spacious upstairs loft offers flexible space for a home office, guest suite, or media room. Step out onto your private balcony and enjoy tranquil pool views. The HOA covers water, sewer, trash, exterior maintenance, and access to resort-style amenities—two community pools, a boat dock, kayak storage, and lushly landscaped grounds. You'll only pay electric. With pet-friendly policies (2 pets max) and a location outside a flood zone, everyday living is easy. Ideally situated just 15 minutes from Downtown Tampa, Water Street, and Channelside, and only 10 minutes to USF, I-275, and Busch Gardens, this home offers an unbeatable blend of lifestyle, location, and value. Schedule your private tour today.
Listing Information
Property Type: Residential, Condominium
Status: Active
Bedrooms: 2
Bathrooms: 2
Square Feet: 1,328 sq ft
Year Built: 1981
Stories: 2 Story
Construction: Vinyl Siding
Subdivision: River Oaks Condo I
Foundation: Slab
County: Hillsborough
Room Information
Main Floor
Porch:
Dining Room:
Bedroom 2:
Primary Bedroom:
Kitchen:
Living Room:
Upper Floor
Loft:
Bathrooms
Full Baths: 2
Additonal Room Information
Laundry: Inside, Laundry Closet
Interior Features
Appliances: Dryer, Microwave, Range, Refrigerator, Dishwasher, Washer
Flooring: Luxury Vinyl
Fireplaces: Wood Burning
Additional Interior Features: Ceiling Fan(s), Vaulted Ceiling(s), Stone Counters, Kitchen/Family Room Combo, Walk-In Closet(s), Cathedral Ceiling(s), Open Floorplan
Utilities
Water: Public
Sewer: Public Sewer
Other Utilities: Cable Available,Electricity Available,High Speed Internet Available,Phone Available,Sewer Available,Water Available
Cooling: Central Air, Ceiling Fan(s)
Heating: Central
Exterior / Lot Features
Roof: Shingle
Pool: Community
Lot View: Pool
Additional Exterior/Lot Features: Balcony, Balcony, Near Public Transit
Community Features
Community Features: Pool, Dock, Water Access
HOA Dues Include: Water, Trash, Maintenance Structure, Sewer, Pool(s)
Homeowners Association: Yes
HOA Dues: $554 / Monthly
Driving Directions
Head east on E Busch Blvd. Turn right onto FL-583 S/N 56th St. Turn right onto Puritan Rd. Destination will be on the left
Financial Considerations
Terms: Cash,Conventional,FHA,VA Loan
Tax/Property ID: 039053-0208
Tax Amount: 553.21
Tax Year: 2024
A broker reciprocity listing courtesy: LPT REALTY, LLC
Based on information provided by Stellar MLS as distributed by the MLS GRID. Information from the Internet Data Exchange is provided exclusively for consumers’ personal, non-commercial use, and such information may not be used for any purpose other than to identify prospective properties consumers may be interested in purchasing. This data is deemed reliable but is not guaranteed to be accurate by Edina Realty, Inc., or by the MLS. Edina Realty, Inc., is not a multiple listing service (MLS), nor does it offer MLS access.
Copyright 2026 Stellar MLS as distributed by the MLS GRID. All Rights Reserved.
Payment Calculator
Interest rate and annual percentage rate (APR) are based on current market conditions, are for informational purposes only, are subject to change without notice and may be subject to pricing add-ons related to property type, loan amount, loan-to-value, credit score and other variables. Estimated closing costs used in the APR calculation are assumed to be paid by the borrower at closing. If the closing costs are financed, the loan, APR and payment amounts will be higher. If the down payment is less than 20%, mortgage insurance may be required and could increase the monthly payment and APR. Contact us for details. Additional loan programs may be available. Accuracy is not guaranteed, and all products may not be available in all borrower's geographical areas and are based on their individual situation. This is not a credit decision or a commitment to lend.
Sales History & Tax Summary for 5119 Puritan Circle #1125
Sales History
| Date | Price | Change |
|---|---|---|
| Currently not available. | ||
Tax Summary
| Tax Year | Estimated Market Value | Total Tax |
|---|---|---|
| Currently not available. | ||
Data powered by ATTOM Data Solutions. Copyright© 2026. Information deemed reliable but not guaranteed.
Schools
Schools nearby 5119 Puritan Circle #1125
| Schools in attendance boundaries | Grades | Distance | Rating |
|---|---|---|---|
| Loading... | |||
| Schools nearby | Grades | Distance | Rating |
|---|---|---|---|
| Loading... | |||
Data powered by ATTOM Data Solutions. Copyright© 2026. Information deemed reliable but not guaranteed.
The schools shown represent both the assigned schools and schools by distance based on local school and district attendance boundaries. Attendance boundaries change based on various factors and proximity does not guarantee enrollment eligibility. Please consult your real estate agent and/or the school district to confirm the schools this property is zoned to attend. Information is deemed reliable but not guaranteed.
SchoolDigger ® Rating
The SchoolDigger rating system is a 1-5 scale with 5 as the highest rating. SchoolDigger ranks schools based on test scores supplied by each state's Department of Education. They calculate an average standard score by normalizing and averaging each school's test scores across all tests and grades.
Coming soon properties will soon be on the market, but are not yet available for showings.