$215,000
5120 W Marge Lane Dunnellon, FL 34433
For Sale MLS# OM722349
3 beds 2 baths 1,560 sq ft Single Family
Details for 5120 W Marge Lane
MLS# OM722349
Description for 5120 W Marge Lane, Dunnellon, FL, 34433
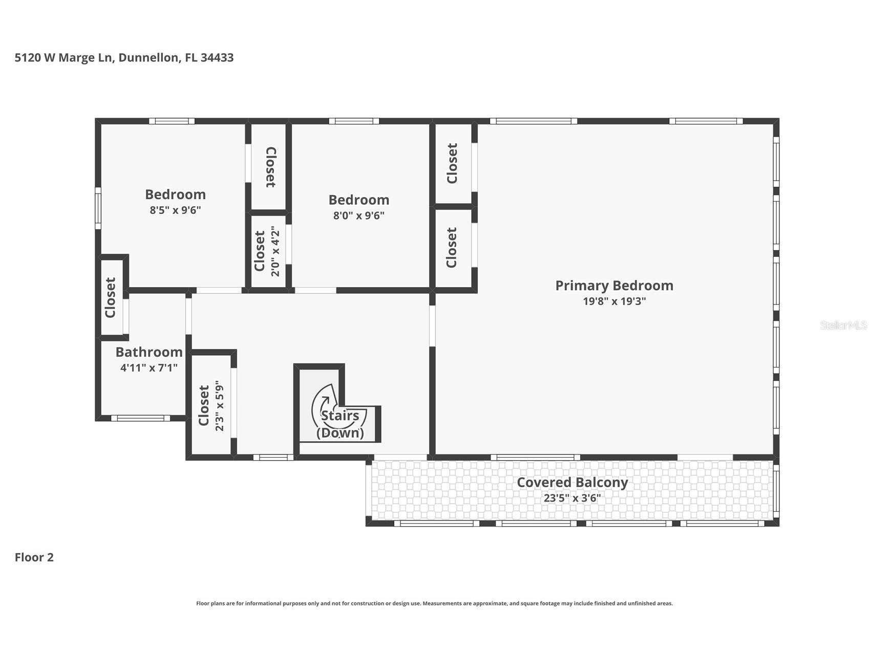
Tucked away in the heart of Dunnellon, this charming cabin-style retreat offers the perfect blend of rustic character and outdoor adventure. Featuring laminate flooring throughout, a newer water heater, an 8-year-old roof, and a brand-new A/C installed in 2026, this home is well-equipped for comfort and peace of mind. A unique and versatile layout includes both an interior spiral staircase and a separate exterior wider wooden staircase, providing convenient access to the second floor. Upstairs, enjoy a breezy screened lanai—an ideal spot to relax and take in the peaceful surroundings. What truly sets this property apart is the deeded access to a canal lot on the Withlacoochee River—renowned as one of Florida’s top fishing destinations and offering connectivity to the Rainbow River. Whether you enjoy boating, kayaking, or casting a line, endless outdoor recreation is right at your fingertips. Plus, the nearby Goldendale boat ramp makes getting on the water quick and easy. Whether you’re searching for a cozy seasonal getaway, an income-producing Airbnb opportunity, or a full-time residence surrounded by nature, this property delivers the lifestyle you’ve been looking for.
Listing Information
Property Type: Residential, Single Family Residence
Status: Active
Bedrooms: 3
Bathrooms: 2
Lot Size: 0.31 Acres
Square Feet: 1,560 sq ft
Year Built: 1971
Stories: 2 Story
Construction: Wood Frame
Construction Display: New Construction
Subdivision: Ellsworth Pt 1st Add
Foundation: Slab
County: Citrus
Construction Status: New Construction
Room Information
Main Floor
Living Room: 18.1x20.9
Kitchen: 14x6.1
Upper Floor
Primary Bedroom: 19.3x19.8
Bathrooms
Full Baths: 1
1/2 Baths: 1
Additonal Room Information
Laundry: Inside, Laundry Room
Interior Features
Appliances: Dryer, Range, Washer
Flooring: Laminate,Tile
Additional Interior Features: Other, Ceiling Fan(s), Upper Level Primary, Kitchen/Family Room Combo
Utilities
Water: Public
Sewer: Septic Tank
Other Utilities: Electricity Connected
Cooling: Ceiling Fan(s), Central Air
Heating: Electric, Heat Pump, Central
Exterior / Lot Features
Roof: Shingle
Lot View: Canal,Water
Lot Dimensions: 110x125
Additional Exterior/Lot Features: Other
Driving Directions
From SR 200, Right on 484, Left on S Williams Street, Right on W. Dunnellon Road, Right on N. Bearl Terrace, House on Left.
Financial Considerations
Terms: Cash,Conventional,FHA,VA Loan
Tax/Property ID: 18E-16S-31-0210-00070-0020
Tax Amount: 2632.46
Tax Year: 2025
A broker reciprocity listing courtesy: NEXTHOME PROFESSIONAL REALTY
Based on information provided by Stellar MLS as distributed by the MLS GRID. Information from the Internet Data Exchange is provided exclusively for consumers’ personal, non-commercial use, and such information may not be used for any purpose other than to identify prospective properties consumers may be interested in purchasing. This data is deemed reliable but is not guaranteed to be accurate by Edina Realty, Inc., or by the MLS. Edina Realty, Inc., is not a multiple listing service (MLS), nor does it offer MLS access.
Copyright 2026 Stellar MLS as distributed by the MLS GRID. All Rights Reserved.
Payment Calculator
Interest rate and annual percentage rate (APR) are based on current market conditions, are for informational purposes only, are subject to change without notice and may be subject to pricing add-ons related to property type, loan amount, loan-to-value, credit score and other variables. Estimated closing costs used in the APR calculation are assumed to be paid by the borrower at closing. If the closing costs are financed, the loan, APR and payment amounts will be higher. If the down payment is less than 20%, mortgage insurance may be required and could increase the monthly payment and APR. Contact us for details. Additional loan programs may be available. Accuracy is not guaranteed, and all products may not be available in all borrower's geographical areas and are based on their individual situation. This is not a credit decision or a commitment to lend.
Sales History & Tax Summary for 5120 W Marge Lane
Sales History
| Date | Price | |
|---|---|---|
| Currently not available. | ||
Tax Summary
| Tax Year | Estimated Market Value | Total Tax |
|---|---|---|
| Currently not available. | ||
Data powered by ATTOM Data Solutions. Copyright© 2026. Information deemed reliable but not guaranteed.
Schools
Schools nearby 5120 W Marge Lane
| Schools in attendance boundaries | Grades | Distance | Rating |
|---|---|---|---|
| Loading... | |||
| Schools nearby | Grades | Distance | Rating |
|---|---|---|---|
| Loading... | |||
Data powered by ATTOM Data Solutions. Copyright© 2026. Information deemed reliable but not guaranteed.
The schools shown represent both the assigned schools and schools by distance based on local school and district attendance boundaries. Attendance boundaries change based on various factors and proximity does not guarantee enrollment eligibility. Please consult your real estate agent and/or the school district to confirm the schools this property is zoned to attend. Information is deemed reliable but not guaranteed.
SchoolDigger ® Rating
The SchoolDigger rating system is a 1-5 scale with 5 as the highest rating. SchoolDigger ranks schools based on test scores supplied by each state's Department of Education. They calculate an average standard score by normalizing and averaging each school's test scores across all tests and grades.
Coming soon properties will soon be on the market, but are not yet available for showings.