515 Bosphorous Avenue Tampa, FL 33606
For Sale MLS# TB8347898
5 beds 6 baths 5,573 sq ft Single Family
Details for 515 Bosphorous Avenue
MLS# TB8347898
Description for 515 Bosphorous Avenue, Tampa, FL, 33606
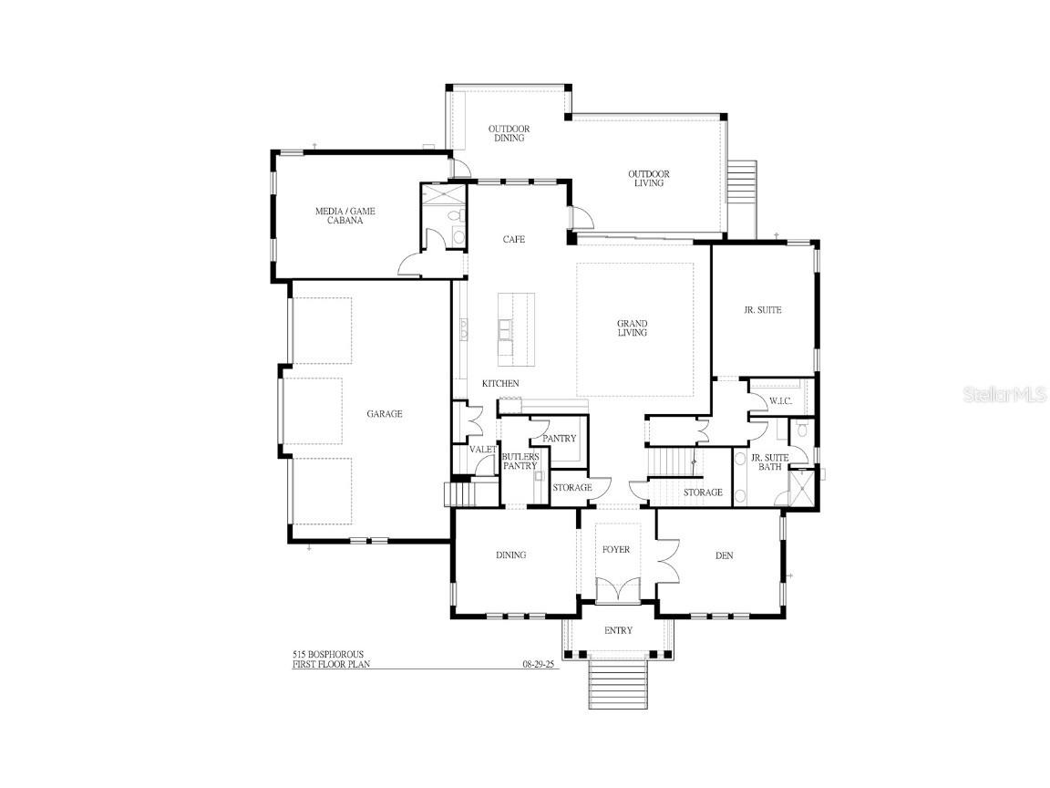
Under Construction. Under Construction. Look book with the custom selections available for the home. Welcome to a remarkable chance to own a brand-new, custom-built residence on a tranquil street in the highly sought-after Davis Islands neighborhood. This exquisite home by Mobley Homes Custom epitomizes modern luxury and exceptional craftsmanship. Bedrooms/Bathrooms: Five spacious bedrooms plus a Bonus Game/Media area and Loft, and six elegantly appointed bathrooms. First floor has a junior suite with large bath and walk-in closet, perfect for guests or in-laws, and wonderful fireplace in the family room. Gourmet Kitchen: Featuring all-wood custom inset cabinets with double stack uppers, a large walk-in pantry, a substantial island with a Kohler 36” farmhouse sink, and a top-of-the-line Wolf/Subzero appliance package, and high-end Quartz countertops. Well finished and functional Butler's pantry with wine fridge. Enjoy the convenience of under-counter lighting and backsplash. Master Suite: A private sanctuary on the second floor with two generous walk-in closets, inlayed accent wall and pendant lights, luxurious bathroom which includes marble tile, freestanding tub, a double sink vanity, high end Quartz countertops, all-wood inset cabinets, and a walk-in shower. Secondary baths with square sinks, marble tile and ceramic, Mantra Omni Cabinets, and Kohler toilets; Additional Features: Standing seam metal roof, gas drops and pre-piping for generator, Level 4 smooth drywall, 7” wood flooring throughout the first floor, stairs, bedrooms, and upstairs hallways. The home is enhanced with 10' ceilings, 5.25" crown molding, 7” baseboards, and superior trim carpentry. Garage & Driveway: A large two-car oversized garage, a paver driveway, front porch, and lanai. Entertainment: Enjoy an extra large rear lanai leading to a spacious backyard, complete with an outdoor kitchen featuring a grill and fridge, and a pool and spa with a gas heater. Modern Amenities: Impact-resistant windows and doors, gas piping with 4 drops, Delta Trinsic faucets and fixtures, Kohler toilets, and engineered hardwood floors throughout. The home also includes a designer lighting package. Located on beautiful Davis Islands this location is walkable to the urban core and its many restaurants and shop, and a short distance to the walking and bike path. Bring your golf cart and enjoy the Island lifestyle with walking / biking paths, baseball fields, public tennis courts, public historic pool, two dog parks, a beach, public marina, and an airport. Additionally, located only minutes from Downtown Tampa, Water Street, Sparkman Wharf, and the Tampa Riverwalk, makes this neighborhood the most desired in South Tampa.
Listing Information
Property Type: Residential, Single Family Residence
Status: Active
Bedrooms: 5
Bathrooms: 6
Lot Size: 0.32 Acres
Square Feet: 5,573 sq ft
Year Built: 2025
Garage: Yes
Stories: 2 Story
Construction: Block,Cement Siding,Stucco,Wood Frame
Construction Display: New Construction
Subdivision: Davis Islands Pb10 Pg52 To 57
Builder: Mobley Custom Homes LLC
Foundation: Block,Slab,Stem Wall
County: Hillsborough
Construction Status: Under Construction
School Information
Elementary: Gorrie-Hb
Middle: Wilson-Hb
High: Plant-Hb
Room Information
Main Floor
Game Room:
Kitchen: 21x15
Great Room: 24x19
Den: 15x17
Bedroom 2: 18x15
Upper Floor
Loft: 13x17
Bedroom 5: 15x14
Bedroom 4: 15x14
Bedroom 3: 14x14
Primary Bedroom: 20x16
Bathrooms
Full Baths: 6
Additonal Room Information
Laundry: Inside, Laundry Room, Upper Level
Interior Features
Appliances: Wine Refrigerator, Built-In Oven, Cooktop, Dishwasher, Disposal, Microwave, Range, Refrigerator
Flooring: Luxury Vinyl,Tile
Doors/Windows: Storm Window(s), Low-Emissivity Windows
Fireplaces: Living Room
Additional Interior Features: Ceiling Fan(s), Elevator, Eat-In Kitchen, Split Bedrooms, Solid Surface Counters, Kitchen/Family Room Combo, Open Floorplan, Upper Level Primary, Crown Molding, High Ceilings, Loft, Walk-In Closet(s), Built-in Features, Wood Cabinets
Utilities
Water: Public
Sewer: Public Sewer
Other Utilities: Cable Available,Electricity Connected,Natural Gas Connected,High Speed Internet Available,Phone Available,Sewer Connected,Water Connected
Cooling: Zoned, Central Air, Ceiling Fan(s)
Heating: Heat Pump, Electric, Zoned, Central
Exterior / Lot Features
Attached Garage: Attached Garage
Garage Spaces: 3
Parking Description: Garage Faces Side, Garage, driveway, Garage Door Opener
Roof: Built-Up, Metal
Pool: In Ground, Gunite
Lot Dimensions: 103x133
Fencing: fenced, Vinyl
Additional Exterior/Lot Features: Awning(s), Outdoor Kitchen, Sprinkler/Irrigation, Rain Gutters, Lighting, Covered, Rear Porch, Front Porch, Landscaped, City Lot, Flood Zone
Out Buildings: Outdoor Kitchen
Community Features
Community Features: Airport/Runway, Park, Golf Carts OK, Street Lights, Dog Park, Restaurant, Sidewalks, Tennis Court(s), Playground
Security Features: Security System, Fire Alarm, Secured Garage/Parking, Smoke Detector(s)
Driving Directions
Davis Blvd. to East Davis to Bosphorous to Address
Financial Considerations
Terms: Cash,Conventional,FHA,VA Loan
Tax/Property ID: A-36-29-18-509-000094-00009.0
Tax Amount: 21822
Tax Year: 2024
A broker reciprocity listing courtesy: SMITH & ASSOCIATES REAL ESTATE
Based on information provided by Stellar MLS as distributed by the MLS GRID. Information from the Internet Data Exchange is provided exclusively for consumers’ personal, non-commercial use, and such information may not be used for any purpose other than to identify prospective properties consumers may be interested in purchasing. This data is deemed reliable but is not guaranteed to be accurate by Edina Realty, Inc., or by the MLS. Edina Realty, Inc., is not a multiple listing service (MLS), nor does it offer MLS access.
Copyright 2025 Stellar MLS as distributed by the MLS GRID. All Rights Reserved.
Payment Calculator
Interest rate and annual percentage rate (APR) are based on current market conditions, are for informational purposes only, are subject to change without notice and may be subject to pricing add-ons related to property type, loan amount, loan-to-value, credit score and other variables. Estimated closing costs used in the APR calculation are assumed to be paid by the borrower at closing. If the closing costs are financed, the loan, APR and payment amounts will be higher. If the down payment is less than 20%, mortgage insurance may be required and could increase the monthly payment and APR. Contact us for details. Additional loan programs may be available. Accuracy is not guaranteed, and all products may not be available in all borrower's geographical areas and are based on their individual situation. This is not a credit decision or a commitment to lend.
Sales History & Tax Summary for 515 Bosphorous Avenue
Sales History
| Date | Price | Change |
|---|---|---|
| Currently not available. | ||
Tax Summary
| Tax Year | Estimated Market Value | Total Tax |
|---|---|---|
| Currently not available. | ||
Data powered by ATTOM Data Solutions. Copyright© 2025. Information deemed reliable but not guaranteed.
Schools
Schools nearby 515 Bosphorous Avenue
| Schools in attendance boundaries | Grades | Distance | Rating |
|---|---|---|---|
| Loading... | |||
| Schools nearby | Grades | Distance | Rating |
|---|---|---|---|
| Loading... | |||
Data powered by ATTOM Data Solutions. Copyright© 2025. Information deemed reliable but not guaranteed.
The schools shown represent both the assigned schools and schools by distance based on local school and district attendance boundaries. Attendance boundaries change based on various factors and proximity does not guarantee enrollment eligibility. Please consult your real estate agent and/or the school district to confirm the schools this property is zoned to attend. Information is deemed reliable but not guaranteed.
SchoolDigger ® Rating
The SchoolDigger rating system is a 1-5 scale with 5 as the highest rating. SchoolDigger ranks schools based on test scores supplied by each state's Department of Education. They calculate an average standard score by normalizing and averaging each school's test scores across all tests and grades.
Coming soon properties will soon be on the market, but are not yet available for showings.