5203 Rosado Run Bradenton, FL 34211
For Sale MLS# A4681469
4 beds 3 baths 3,313 sq ft Single Family
Details for 5203 Rosado Run
MLS# A4681469
Description for 5203 Rosado Run, Bradenton, FL, 34211
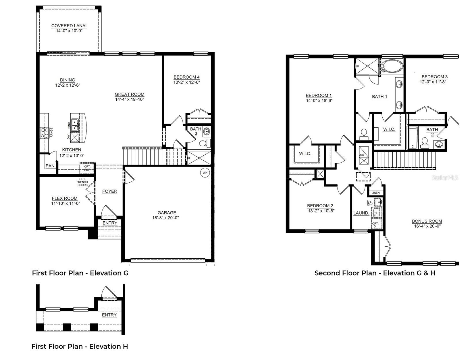
Under Construction. ALL CLOSING COSTS PAID, $5,000 towards upgrades + Special Interest Rates with the use of our preferred lender - Now through 3/31. Don't miss your chance - only a few homes left in this community! This two-story, all concrete block constructed home has a large open concept first floor with a kitchen overlooking the great room, dining area, and a covered lanai. A flex room at the entrance of the home, as well as a spacious guest bedroom and full bathroom, complete the first floor. Upstairs, Bedroom 1 with ensuite bathroom, three additional bedrooms, a third full bathroom, and a well-appointed laundry room surround a large bonus living room. This home comes with an installed stainless-steel dishwasher, electric range, and microwave. Pictures, photographs, colors, features, and sizes are for illustration purposes only and will vary from the homes as built. Home and community information including pricing, included features, terms, availability, and amenities are subject to change and prior sale at any time without notice or obligation. Room Feature: Linen Closet In Bath (Primary Bedroom).
Listing Information
Property Type: Residential, Single Family Residence
Status: Active
Bedrooms: 4
Bathrooms: 3
Lot Size: 0.15 Acres
Square Feet: 3,313 sq ft
Year Built: 2026
Garage: Yes
Stories: 2 Story
Construction: Block,Stucco
Construction Display: New Construction
Subdivision: Solera At Lakewood Ranch
Builder: D.R.Horton
Foundation: Slab
County: Manatee
Construction Status: Under Construction
School Information
Elementary: Gullett Elementary
Middle: Dr Mona Jain Middle
High: Lakewood Ranch High
Room Information
Main Floor
Great Room: 16x19
Office: 11x12
Bedroom 4: 11x12
Porch: 10x14
Dining Room: 13x12
Kitchen: 11x12
Upper Floor
Bonus Room: 17x19
Bedroom 3: 11x16
Bedroom 2: 13x18
Primary Bedroom: 13x16
Bathrooms
Full Baths: 3
Additonal Room Information
Laundry: Laundry Room
Interior Features
Appliances: Electric Water Heater, Dishwasher, Disposal, Microwave, Range
Flooring: Carpet,Luxury Vinyl
Additional Interior Features: Stone Counters, Open Floorplan, Kitchen/Family Room Combo, Smart Home, Walk-In Closet(s), Tray Ceiling(s)
Utilities
Water: Public
Sewer: Public Sewer
Other Utilities: Cable Available,Electricity Connected,Phone Available,Sewer Connected,Water Connected
Cooling: Central Air
Heating: Central, Electric, Heat Pump
Exterior / Lot Features
Attached Garage: Attached Garage
Garage Spaces: 2
Roof: Shingle
Pool: Community, Association
Lot View: Pond,Trees/Woods,Water
Additional Exterior/Lot Features: Sprinkler/Irrigation, Storm/Security Shutters, Covered, Landscaped
Community Features
Community Features: Pool, Sidewalks
Association Amenities: Clubhouse, Pool, Playground
HOA Dues Include: Maintenance Grounds, Pool(s)
Homeowners Association: Yes
HOA Dues: $270 / Monthly
Driving Directions
From I-75 north, take exit 217 for E. SR-70. Continue east for approximately 5 miles. Take a left onto Uihlein Road and proceed for approximately 1 mile. Community entrance will be on your right.
Financial Considerations
Terms: Cash,Conventional,FHA,VA Loan
Tax/Property ID: 581144309
Tax Year: 2026
A broker reciprocity listing courtesy: D.R. HORTON REALTY OF SARASOTA
Based on information provided by Stellar MLS as distributed by the MLS GRID. Information from the Internet Data Exchange is provided exclusively for consumers’ personal, non-commercial use, and such information may not be used for any purpose other than to identify prospective properties consumers may be interested in purchasing. This data is deemed reliable but is not guaranteed to be accurate by Edina Realty, Inc., or by the MLS. Edina Realty, Inc., is not a multiple listing service (MLS), nor does it offer MLS access.
Copyright 2026 Stellar MLS as distributed by the MLS GRID. All Rights Reserved.
Payment Calculator
Interest rate and annual percentage rate (APR) are based on current market conditions, are for informational purposes only, are subject to change without notice and may be subject to pricing add-ons related to property type, loan amount, loan-to-value, credit score and other variables. Estimated closing costs used in the APR calculation are assumed to be paid by the borrower at closing. If the closing costs are financed, the loan, APR and payment amounts will be higher. If the down payment is less than 20%, mortgage insurance may be required and could increase the monthly payment and APR. Contact us for details. Additional loan programs may be available. Accuracy is not guaranteed, and all products may not be available in all borrower's geographical areas and are based on their individual situation. This is not a credit decision or a commitment to lend.
Sales History & Tax Summary for 5203 Rosado Run
Sales History
| Date | Price | |
|---|---|---|
| Currently not available. | ||
Tax Summary
| Tax Year | Estimated Market Value | Total Tax |
|---|---|---|
| Currently not available. | ||
Data powered by ATTOM Data Solutions. Copyright© 2026. Information deemed reliable but not guaranteed.
Schools
Schools nearby 5203 Rosado Run
| Schools in attendance boundaries | Grades | Distance | Rating |
|---|---|---|---|
| Loading... | |||
| Schools nearby | Grades | Distance | Rating |
|---|---|---|---|
| Loading... | |||
Data powered by ATTOM Data Solutions. Copyright© 2026. Information deemed reliable but not guaranteed.
The schools shown represent both the assigned schools and schools by distance based on local school and district attendance boundaries. Attendance boundaries change based on various factors and proximity does not guarantee enrollment eligibility. Please consult your real estate agent and/or the school district to confirm the schools this property is zoned to attend. Information is deemed reliable but not guaranteed.
SchoolDigger ® Rating
The SchoolDigger rating system is a 1-5 scale with 5 as the highest rating. SchoolDigger ranks schools based on test scores supplied by each state's Department of Education. They calculate an average standard score by normalizing and averaging each school's test scores across all tests and grades.
Coming soon properties will soon be on the market, but are not yet available for showings.