$750,000
5208 Churchill Road Port Charlotte, FL 33981
For Sale MLS# C7514343
3 beds 3 baths 2,193 sq ft Single Family
Details for 5208 Churchill Road
MLS# C7514343
Description for 5208 Churchill Road, Port Charlotte, FL, 33981
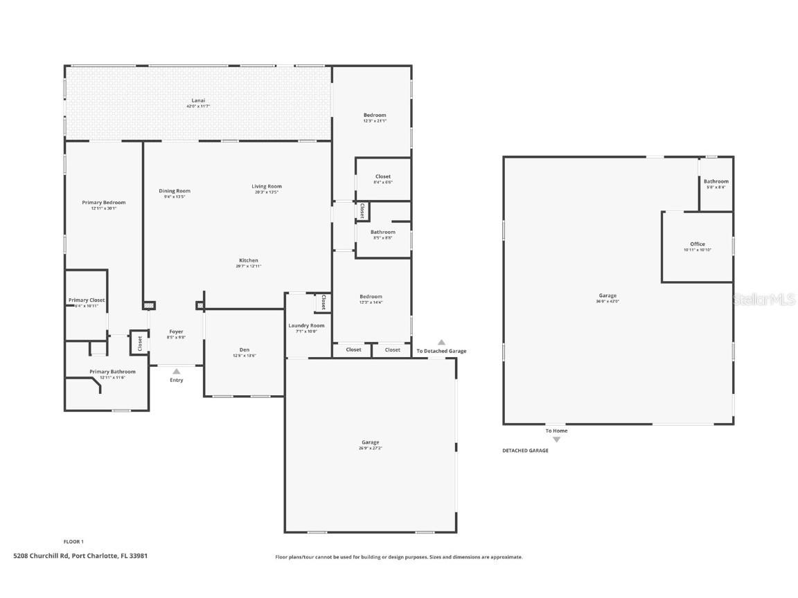
ALL THE SPACE YOU NEED! This property is five lots spreading OVER an acre of land in Gulf Cove at 50,000 square feet with NO HOA and NO DEED RESTRICTIONS. Featuring a HUGE 36x40 DETACHED GARAGE that can fit multiple boats, cars and any other toys you may have, as well an office and bathroom. There is also an RV Carport attached with a 50 AMP POWER HOOK UP. The main house by itself is filled with tons of custom updates and features a den/BONUS ROOM that could even serve as a 4TH BEDROOM and another HUGE garage that is very deep that can fit EVEN MORE TOYS IF NEEDED. The property is located just up the road from Gulf Cove's BOAT RAMP that can be accessed for a modest $75 a year granting GULF ACCESS. The property is outfitted with custom wood flooring and feels very airy with tall cathedral ceilings in the living room. The GOURMET KITCHEN is super spacious and features QUARTZ COUNTERTOPS, PULL OUT DRAWERS, CUSTOM WOOD/SOFT CLOSE CABINETS, STAINLESS STEEL APPLIANCES with an ITALIAN GAS RANGE, DRY BAR and charming UNDER CABINET LIGHTING. The Primary Bedroom boasts a tray ceiling and a very large walk-in closet and French doors to the back patio. Primary Bathroom features a HEATED BIDET TOILET, QUARTZ COUNTERTOPS, WALK-IN SHOWER with BENCH and more. The secondary bedrooms are VERY LARGE and have updated tile flooring with one bedroom featuring a HUGE WALK-IN CLOSET and DOORS TO THE PATIO. Enjoy meticulously maintained home updated with small features that go a long way like dimmers on the lights switches, extra-large ceiling fans, crown molding throughout, commercial venting above the range and MORE. The Side yard has a 50x50 IRON FENCE. The DETACHED GARAGE can fit up to FIVE CARS and comes with a full bathroom and PRIVATE OFFICE that can be repurposed to whatever you would like to use it for. There is also an additional STORAGE SHED providing even more space. Property is hooked up to PUBLIC WATER. The homes back patio has a convenient walkway to the detached garage providing easy access. Outdoor shower included. on the side of the home. Lots of charming tropical plants all around the property. Enjoy close proximity to Boca Grande Beach, Manasota Key Beach, Historic Dearborn Street, Historic Downtown Punta Gorda, Wellen Park, Tampa Ray and Atlanta Braves Spring Training. This property is also close to many restaurants, places to shop, doctor's offices, hospitals, farmers markets and MORE. Call your agent today. BE SURE TO ASK FOR THE FEATURE SHEET and VIEW THE 3D VIRTUAL TOUR ON ZILLOW.
Listing Information
Property Type: Residential, Single Family Residence
Status: Active
Bedrooms: 3
Bathrooms: 3
Lot Size: 1.15 Acres
Square Feet: 2,193 sq ft
Year Built: 2013
Garage: Yes
Stories: 1 Story
Construction: Block,Stucco
Construction Display: New Construction
Subdivision: Port Charlotte Sec 053
Foundation: Slab
County: Charlotte
Construction Status: New Construction
Room Information
Main Floor
Kitchen:
Living Room:
Primary Bathroom:
Primary Bedroom:
Bathrooms
Full Baths: 3
Additonal Room Information
Laundry: Laundry Room
Interior Features
Appliances: Dishwasher, Microwave, Range, Refrigerator, Electric Water Heater
Flooring: Tile,Wood
Additional Interior Features: Ceiling Fan(s), Split Bedrooms, Walk-In Closet(s), Built-in Features, Cathedral Ceiling(s), High Ceilings, Living/Dining Room, Open Floorplan, Main Level Primary, Kitchen/Family Room Combo, Stone Counters, Wood Cabinets
Utilities
Water: Public
Sewer: Septic Tank
Other Utilities: Cable Available,Electricity Connected,High Speed Internet Available,Propane,Phone Available,Underground Utilities,Water Connected
Cooling: Ceiling Fan(s), Central Air
Heating: Central
Exterior / Lot Features
Attached Garage: Attached Garage
Garage Spaces: 7
Parking Description: Boat, Garage Faces Side, RV Access/Parking, driveway, Garage, Garage Door Opener
Roof: Shingle
Lot View: Trees/Woods
Fencing: fenced, Other, Chain Link
Additional Exterior/Lot Features: Lighting, Enclosed, Screened, Covered, Patio, Porch, Rear Porch, Landscaped, Cleared, Oversized Lot
Waterfront Details
Water Front Features: Gulf Access, River Access
Driving Directions
South down El Jobean, right onto Gillot, Right onto Mahoney, Left onto Churchill, Property is on the right side
Financial Considerations
Terms: Cash,Conventional,FHA
Tax/Property ID: 402132180007
Tax Amount: 4548.62
Tax Year: 2024
A broker reciprocity listing courtesy: ERA ADVANTAGE REALTY, INC.
Based on information provided by Stellar MLS as distributed by the MLS GRID. Information from the Internet Data Exchange is provided exclusively for consumers’ personal, non-commercial use, and such information may not be used for any purpose other than to identify prospective properties consumers may be interested in purchasing. This data is deemed reliable but is not guaranteed to be accurate by Edina Realty, Inc., or by the MLS. Edina Realty, Inc., is not a multiple listing service (MLS), nor does it offer MLS access.
Copyright 2025 Stellar MLS as distributed by the MLS GRID. All Rights Reserved.
Payment Calculator
Interest rate and annual percentage rate (APR) are based on current market conditions, are for informational purposes only, are subject to change without notice and may be subject to pricing add-ons related to property type, loan amount, loan-to-value, credit score and other variables. Estimated closing costs used in the APR calculation are assumed to be paid by the borrower at closing. If the closing costs are financed, the loan, APR and payment amounts will be higher. If the down payment is less than 20%, mortgage insurance may be required and could increase the monthly payment and APR. Contact us for details. Additional loan programs may be available. Accuracy is not guaranteed, and all products may not be available in all borrower's geographical areas and are based on their individual situation. This is not a credit decision or a commitment to lend.
Sales History & Tax Summary for 5208 Churchill Road
Sales History
| Date | Price | Change |
|---|---|---|
| Currently not available. | ||
Tax Summary
| Tax Year | Estimated Market Value | Total Tax |
|---|---|---|
| Currently not available. | ||
Data powered by ATTOM Data Solutions. Copyright© 2025. Information deemed reliable but not guaranteed.
Schools
Schools nearby 5208 Churchill Road
| Schools in attendance boundaries | Grades | Distance | Rating |
|---|---|---|---|
| Loading... | |||
| Schools nearby | Grades | Distance | Rating |
|---|---|---|---|
| Loading... | |||
Data powered by ATTOM Data Solutions. Copyright© 2025. Information deemed reliable but not guaranteed.
The schools shown represent both the assigned schools and schools by distance based on local school and district attendance boundaries. Attendance boundaries change based on various factors and proximity does not guarantee enrollment eligibility. Please consult your real estate agent and/or the school district to confirm the schools this property is zoned to attend. Information is deemed reliable but not guaranteed.
SchoolDigger ® Rating
The SchoolDigger rating system is a 1-5 scale with 5 as the highest rating. SchoolDigger ranks schools based on test scores supplied by each state's Department of Education. They calculate an average standard score by normalizing and averaging each school's test scores across all tests and grades.
Coming soon properties will soon be on the market, but are not yet available for showings.