5212 Santa Ana Dr Orlando, FL 32837
For Sale MLS# O6359287
4 beds 3 baths 2,434 sq ft Single Family
Details for 5212 Santa Ana Dr
MLS# O6359287
Description for 5212 Santa Ana Dr, Orlando, FL, 32837
One or more photo(s) has been virtually staged. *One or more photo(s) was virtually staged* Beautiful Pool Home with Newer Roof! Welcome to 5212 Santa Ana Drive, Orlando FL 32837! Located in the highly desired Hunters Creek / South Orlando corridor. This beautifully maintained *POOL* home offers the perfect blend of location, comfort, and lifestyle. Featuring 4 Bedrooms, 2.5 Bathrooms, *LOFT* and a spacious open layout, this home is ideal for buyers searching for a *Move-In Ready* single family home. Step into a bright and airy interior where high and *Vaulted Ceilings* pair perfectly with *Natural Lighting* and *Modern Light Fixtures* to create an open and inviting atmosphere. The foyer opens with a double story ceiling, setting the tone for the elegance throughout. The*Open-Floorplan* and continuous *Tile Flooring* flows seamlessly through every room, enhancing the home's cohesive and clean aesthetic. The formal areas include a gracious living room and a formal dining room. The heart of the home is the chef’s dream kitchen with Eat-In Space and two *Breakfast Bars*. The *First Floor* primary suite provides a peaceful retreat with a large walk-in closet and ensuite bathroom with dual sink vanity. Enjoy the Florida lifestyle with a *Covered and Screened POOL Lanai*, extended patio, and private *Fenced* backyard – great for relaxing evenings, pets, gardening, or future outdoor upgrades like a summer kitchen or pool. Major updates include a Roof (2020). Located near restaurants, shopping, top-rated schools, theme parks and major highways. Minutes from The Loop, Hunters Creek Town Center, Lake Nona Medical City, International Drive, Orlando International Airport, SeaWorld, Universal, and Disney—this home puts you in the center of all Orlando has to offer. Easy access to major routes 417, 528, I-4, Turnpike makes commuting a breeze in every direction. Don’t miss this South Orlando gem. Schedule your private showing today!
Listing Information
Property Type: Residential, Single Family Residence
Status: Active
Bedrooms: 4
Bathrooms: 3
Lot Size: 0.15 Acres
Square Feet: 2,434 sq ft
Year Built: 2001
Garage: Yes
Stories: 2 Story
Construction: Block,Stucco
Subdivision: Hunters Creek
Foundation: Block
County: Orange
School Information
Elementary: West Creek Elem
Middle: Hunter's Creek Middle
High: Freedom High School
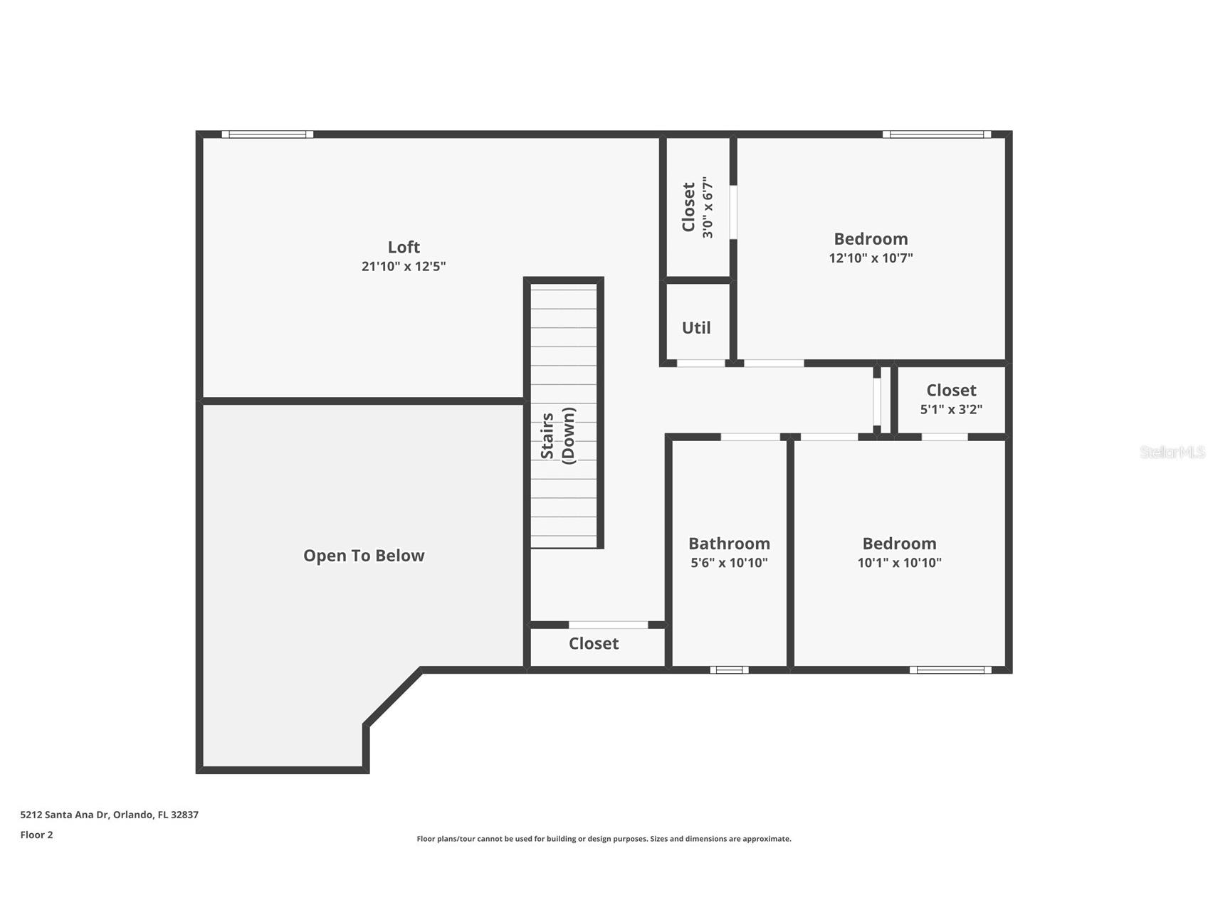
Room Information
Main Floor
Bedroom 2: 13x11
Primary Bedroom: 13x14
Dining Room: 13x17
Kitchen: 13x13
Living Room: 23x16
Upper Floor
Bedroom 3: 10x12
Loft: 12x21
Bedroom 4: 10x10
Bathrooms
Full Baths: 2
1/2 Baths: 1
Additonal Room Information
Laundry: Laundry Closet
Interior Features
Appliances: Dishwasher, Disposal, Dryer, Microwave, Refrigerator, Washer
Flooring: Laminate,Tile
Additional Interior Features: Ceiling Fan(s), Eat-In Kitchen, Walk-In Closet(s), High Ceilings, Living/Dining Room, Main Level Primary, Open Floorplan, Stone Counters
Utilities
Water: Public
Sewer: Public Sewer
Other Utilities: Electricity Connected,Municipal Utilities,Water Connected
Cooling: Ceiling Fan(s), Central Air
Heating: Central
Exterior / Lot Features
Attached Garage: Attached Garage
Garage Spaces: 2
Roof: Shingle
Pool: In Ground
Additional Exterior/Lot Features: Sprinkler/Irrigation
Community Features
Homeowners Association: Yes
HOA Dues: $306 / Quarterly
Driving Directions
From John Young Pkwy, turn Right onto Town Center Blvd, turn Right onto Hunter's Vista Blvd, turn Left onto Vida Vista Dr., turn Right onto Santa Ana Dr. Home will be on the Left
Financial Considerations
Terms: Cash,Conventional,FHA,VA Loan
Tax/Property ID: 30-24-29-3829-00-170
Tax Amount: 7650.28
Tax Year: 2024
A broker reciprocity listing courtesy: LPT REALTY, LLC
Based on information provided by Stellar MLS as distributed by the MLS GRID. Information from the Internet Data Exchange is provided exclusively for consumers’ personal, non-commercial use, and such information may not be used for any purpose other than to identify prospective properties consumers may be interested in purchasing. This data is deemed reliable but is not guaranteed to be accurate by Edina Realty, Inc., or by the MLS. Edina Realty, Inc., is not a multiple listing service (MLS), nor does it offer MLS access.
Copyright 2026 Stellar MLS as distributed by the MLS GRID. All Rights Reserved.
Payment Calculator
Interest rate and annual percentage rate (APR) are based on current market conditions, are for informational purposes only, are subject to change without notice and may be subject to pricing add-ons related to property type, loan amount, loan-to-value, credit score and other variables. Estimated closing costs used in the APR calculation are assumed to be paid by the borrower at closing. If the closing costs are financed, the loan, APR and payment amounts will be higher. If the down payment is less than 20%, mortgage insurance may be required and could increase the monthly payment and APR. Contact us for details. Additional loan programs may be available. Accuracy is not guaranteed, and all products may not be available in all borrower's geographical areas and are based on their individual situation. This is not a credit decision or a commitment to lend.
Sales History & Tax Summary for 5212 Santa Ana Dr
Sales History
| Date | Price | |
|---|---|---|
| Currently not available. | ||
Tax Summary
| Tax Year | Estimated Market Value | Total Tax |
|---|---|---|
| Currently not available. | ||
Data powered by ATTOM Data Solutions. Copyright© 2026. Information deemed reliable but not guaranteed.
Schools
Schools nearby 5212 Santa Ana Dr
| Schools in attendance boundaries | Grades | Distance | Rating |
|---|---|---|---|
| Loading... | |||
| Schools nearby | Grades | Distance | Rating |
|---|---|---|---|
| Loading... | |||
Data powered by ATTOM Data Solutions. Copyright© 2026. Information deemed reliable but not guaranteed.
The schools shown represent both the assigned schools and schools by distance based on local school and district attendance boundaries. Attendance boundaries change based on various factors and proximity does not guarantee enrollment eligibility. Please consult your real estate agent and/or the school district to confirm the schools this property is zoned to attend. Information is deemed reliable but not guaranteed.
SchoolDigger ® Rating
The SchoolDigger rating system is a 1-5 scale with 5 as the highest rating. SchoolDigger ranks schools based on test scores supplied by each state's Department of Education. They calculate an average standard score by normalizing and averaging each school's test scores across all tests and grades.
Coming soon properties will soon be on the market, but are not yet available for showings.