5246 Mayapple Circle Orlando, FL 32821
For Sale MLS# TB8405806
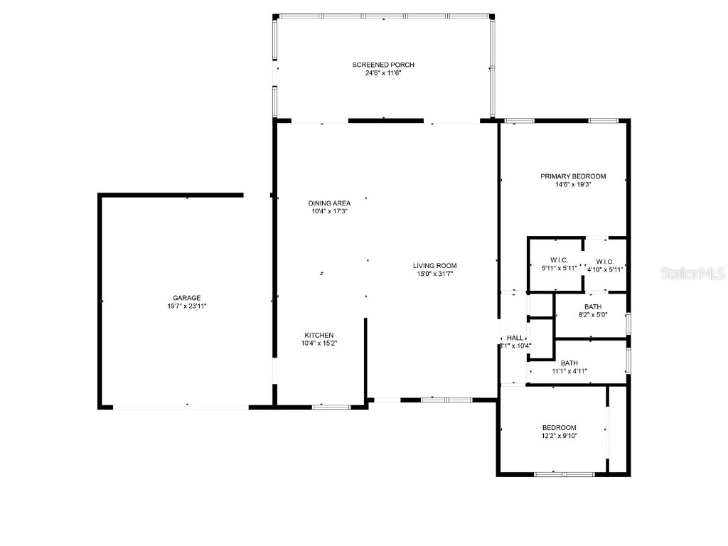
2 beds 2 baths 1,554 sq ft Single Family
Details for 5246 Mayapple Circle
MLS# TB8405806
Description for 5246 Mayapple Circle, Orlando, FL, 32821
Welcome to Lime Tree Village – Where Cozy Charm Meets Modern Living in the Heart of Williamsburg! Step into this beautifully maintained two-bedroom, two-bath home that perfectly blends comfort, style, and thoughtful updates. From the moment you arrive, the inviting front porch sets the tone—a charming spot to sip your morning coffee or unwind with your favorite book. The interior has been fully remodeled, the electric panel was updated in 2020, a new tile roof was installed in 2021, the HVAC was replaced in 2022, and the water heater have been updated ensuring peace of mind for years to come. Inside, the open-concept layout creates a warm and functional living space, with a seamless flow between the kitchen, dining, and living areas—ideal for both everyday living and entertaining. The kitchen is a true highlight, featuring stunning countertops crafted from a unique blend of quartz and granite, offering both elegance and durability. The spacious primary bedroom offers a peaceful retreat with a walk-in closet and a beautifully updated en-suite bathroom, complete with a jetted bathtub—perfect for relaxing after a long day—and generous storage for all your essentials. The second bedroom is bright and airy with a large closet, while the renovated hall bath features a stylish tiled shower. Step through the double sliding doors to the covered and screened back patio—perfect for enjoying breezy afternoons or evenings outdoors. The home also includes a two-car garage, offering plenty of room for parking and storage. Recent updates include beautifully installed windows throughout, improving both curb appeal and energy efficiency. This home has been lovingly upgraded since the seller took ownership. Living in Lime Tree Village means enjoying a host of community amenities, including a clubhouse, pool, tennis courts, shuffleboard, volleyball, billiards, gym, ballroom, mowing and irrigation system—all covered by the low monthly HOA fee. Tucked in a prime location less than 2.5 miles from SeaWorld and 3.5 miles from Epic, with quick access to multiple shopping malls, great dining, major banks, and plenty of entertainment options— offering the ideal blend of convenience and community. Don’t miss your opportunity to call this beautifully updated home yours!
Listing Information
Property Type: Residential, Single Family Residence
Status: Active
Bedrooms: 2
Bathrooms: 2
Lot Size: 0.19 Acres
Square Feet: 1,554 sq ft
Year Built: 1979
Garage: Yes
Stories: 1 Story
Construction: Block
Subdivision: Orangewood Shadowwood
Foundation: Slab
County: Orange
School Information
Elementary: Sunshine Elementary
Middle: Freedom Middle
High: Lake Buena Vista High School
Room Information
Main Floor
Bedroom 2: 10x12
Primary Bedroom: 19x14.5
Kitchen: 15x10.5
Living Room: 31x15
Bathrooms
Full Baths: 2
Additonal Room Information
Laundry: In Garage
Interior Features
Appliances: Electric Water Heater, Dishwasher, Microwave, Range, Refrigerator
Flooring: Laminate,Tile
Additional Interior Features: Ceiling Fan(s), Built-in Features, Main Level Primary, Living/Dining Room, Open Floorplan, Stone Counters, Wood Cabinets
Utilities
Water: Public
Sewer: Public Sewer
Other Utilities: Cable Available,Electricity Connected,High Speed Internet Available,Sewer Connected,Water Connected
Cooling: Central Air, Ceiling Fan(s)
Heating: Central
Exterior / Lot Features
Attached Garage: Attached Garage
Garage Spaces: 2
Parking Description: Garage, Garage Door Opener, driveway
Roof: Tile
Pool: Community, Association
Additional Exterior/Lot Features: Rain Gutters, Sprinkler/Irrigation, City Lot, Outside City Limits
Community Features
Association Amenities: Spa/Hot Tub, Clubhouse, Fitness Center, Shuffleboard Court, Basketball Court, Tennis Court(s), Playground, Pool
HOA Dues Include: Taxes, Association Management, Common Areas, Pool(s)
Homeowners Association: Yes
HOA Dues: $111 / Monthly
Driving Directions
Heading East on I-4 towards Orlando, Take Exit 72 (SR-528), 1.7 miles Take Exit 2 onto Universal Blvd towards Orangewood Blvd, .3 Keep right toward Orangewood Blvd, .5 Turn Right onto Dayflower Way, 300 ft Left on Wildflower, 200 ft Left onto Mayapple Cir
Financial Considerations
Terms: Cash,Conventional,FHA,VA Loan
Tax/Property ID: 07-24-29-8286-02-620
Tax Amount: 3411
Tax Year: 2024
A broker reciprocity listing courtesy: HOFACKER & ASSOCIATES INC
Based on information provided by Stellar MLS as distributed by the MLS GRID. Information from the Internet Data Exchange is provided exclusively for consumers’ personal, non-commercial use, and such information may not be used for any purpose other than to identify prospective properties consumers may be interested in purchasing. This data is deemed reliable but is not guaranteed to be accurate by Edina Realty, Inc., or by the MLS. Edina Realty, Inc., is not a multiple listing service (MLS), nor does it offer MLS access.
Copyright 2026 Stellar MLS as distributed by the MLS GRID. All Rights Reserved.
Payment Calculator
Interest rate and annual percentage rate (APR) are based on current market conditions, are for informational purposes only, are subject to change without notice and may be subject to pricing add-ons related to property type, loan amount, loan-to-value, credit score and other variables. Estimated closing costs used in the APR calculation are assumed to be paid by the borrower at closing. If the closing costs are financed, the loan, APR and payment amounts will be higher. If the down payment is less than 20%, mortgage insurance may be required and could increase the monthly payment and APR. Contact us for details. Additional loan programs may be available. Accuracy is not guaranteed, and all products may not be available in all borrower's geographical areas and are based on their individual situation. This is not a credit decision or a commitment to lend.
Sales History & Tax Summary for 5246 Mayapple Circle
Sales History
| Date | Price | |
|---|---|---|
| Currently not available. | ||
Tax Summary
| Tax Year | Estimated Market Value | Total Tax |
|---|---|---|
| Currently not available. | ||
Data powered by ATTOM Data Solutions. Copyright© 2026. Information deemed reliable but not guaranteed.
Schools
Schools nearby 5246 Mayapple Circle
| Schools in attendance boundaries | Grades | Distance | Rating |
|---|---|---|---|
| Loading... | |||
| Schools nearby | Grades | Distance | Rating |
|---|---|---|---|
| Loading... | |||
Data powered by ATTOM Data Solutions. Copyright© 2026. Information deemed reliable but not guaranteed.
The schools shown represent both the assigned schools and schools by distance based on local school and district attendance boundaries. Attendance boundaries change based on various factors and proximity does not guarantee enrollment eligibility. Please consult your real estate agent and/or the school district to confirm the schools this property is zoned to attend. Information is deemed reliable but not guaranteed.
SchoolDigger ® Rating
The SchoolDigger rating system is a 1-5 scale with 5 as the highest rating. SchoolDigger ranks schools based on test scores supplied by each state's Department of Education. They calculate an average standard score by normalizing and averaging each school's test scores across all tests and grades.
Coming soon properties will soon be on the market, but are not yet available for showings.