525 W Blue Springs Avenue Orange City, FL 32763
For Sale MLS# V4944648
3 beds 2 baths 2,168 sq ft Single Family
Details for 525 W Blue Springs Avenue
MLS# V4944648
Description for 525 W Blue Springs Avenue, Orange City, FL, 32763
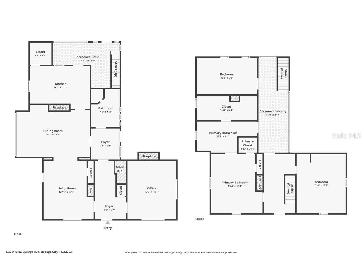
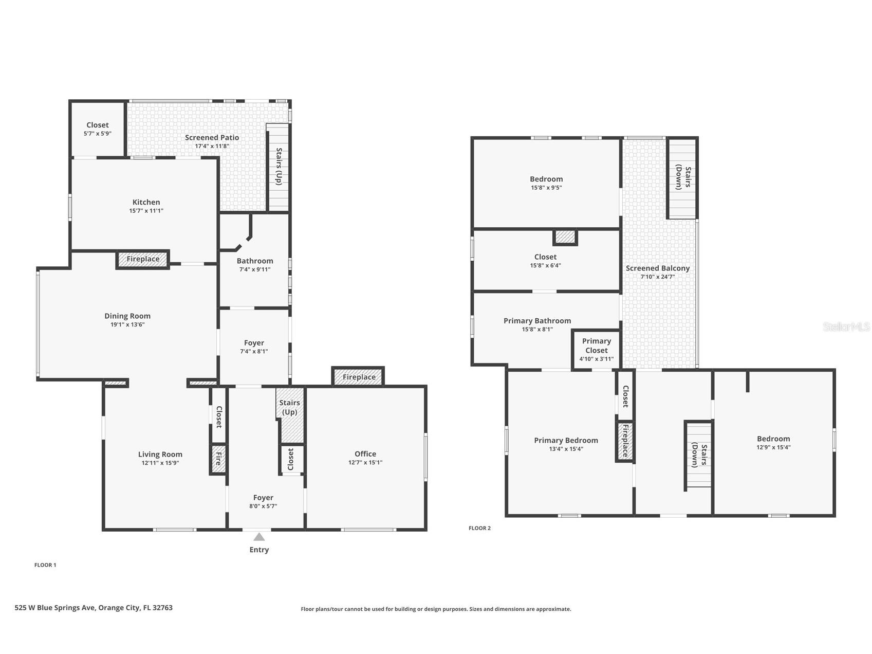
One or more photo(s) has been virtually staged. Step Into History And Discover The Timeless Beauty Of This Charming 1886 Victorian Home, A True Landmark Right Here In Orange City. Nestled On 1.76 Acres Of Peaceful, Park-Like Land, This Property Welcomes You With A Majestic Palm-Lined Driveway That Once Guided Horse-Drawn Carriages To The Front Porch. The Grand Wraparound Porch, Multiple Screened Porches, And Second-Floor Balcony Create Endless Opportunities To Relax, Host Gatherings, Or Simply Enjoy The Gentle Breeze And Shaded Outdoor Living Spaces. Inside, Every Room Reflects Warmth And Historic Character, From The Handcrafted Woodwork To The Many Fireplaces Found Throughout. Large Windows Invite Natural Light Into The Living Room And Dining Room, Both Of Which Feature Beautiful Fireplace Details And Built-Ins. The Updated Kitchen, Located Just Off The Dining Room, Offers Stainless Steel Appliances, A 6x6 Walk-In Pantry, And Easy Access To The Back Screened Porch And Charming Garden Area. The Main Level Also Includes A Bright, Spacious Room With A Fireplace That The Previous Owners Used As A Primary Suite, But It Would Also Make A Wonderful Sitting Room, Office, Library, Or Guest Space. Use The Beautiful Wooden Staircase At The Front Of The Home To Reach The Second Floor, Where You’ll Find The True Primary Suite Featuring A Large 6x16 Walk-In Closet, A Soaking Tub, And Peaceful Views Of The Grounds. Across The Hall Sits Another Bedroom. One Very Unique Feature Of This Property Is The Private Back Entrance, Located Off The Kitchen And Screened Porch, Providing Direct Access To The Third Bedroom Upstairs Without Going Through The Main Living Areas. This Is Perfect For Someone Who Works From Home, Needs A Private Studio Or Office, Or Wants A Comfortable Guest Space With Extra Privacy. Outside, You’ll Find A Detached Two-Car Garage Complete With An Electric Vehicle Charging Station, Along With Ample Areas For Gardening, Pets, Play, Or Simply Enjoying The Quiet Surroundings. The Property Feels Tucked Away Yet Remains Convenient To Everything — Shopping, Restaurants, Medical Facilities, And More. Blue Spring State Park Is Only Minutes Away, Along With Downtown Deland, New Smyrna Beach, Downtown Orlando, And I-4. This Is A Rare Opportunity To Own A Beautiful Piece Of Orange City’s History With All The Charm, Space, And Timeless Appeal You’ve Been Looking For.
Listing Information
Property Type: Residential, Single Family Residence
Status: Active
Bedrooms: 3
Bathrooms: 2
Lot Size: 1.76 Acres
Square Feet: 2,168 sq ft
Year Built: 1886
Garage: Yes
Stories: 2 Story
Construction: Wood Siding,Wood Frame
Construction Display: New Construction
Subdivision: Orange City
Foundation: Pillar/Post/Pier
County: Volusia
Construction Status: New Construction
Room Information
Main Floor
Porch: 17x11
Office: 15x13
Living Room: 16x13
Kitchen: 16x11
Dining Room: 19x14
Upper Floor
Porch: 25x8
Bedroom 3: 16x10
Bedroom 2: 15x13
Primary Bedroom: 15x13
Bathrooms
Full Baths: 2
Additonal Room Information
Laundry: Inside
Interior Features
Appliances: Ice Maker, Range, Refrigerator, Washer, Dryer
Flooring: Wood
Fireplaces: Wood Burning
Additional Interior Features: Ceiling Fan(s), Walk-In Closet(s), High Ceilings, Main Level Primary, Crown Molding, Chair Rail
Utilities
Water: Public
Sewer: Septic Tank
Other Utilities: Propane,Municipal Utilities,Water Connected
Cooling: Ceiling Fan(s), Central Air
Heating: Window Unit, Wall Furnace, Central
Exterior / Lot Features
Garage Spaces: 2
Parking Description: Electric Vehicle Charging Station(s)
Roof: Metal
Additional Exterior/Lot Features: Balcony, Balcony, Front Porch, Porch, Screened, Flat, Level, Landscaped, Cleared, City Lot, Oversized Lot
Driving Directions
USE HARRISON AVE ENTRANCE- From 17-92 turn onto W. Blue Springs Ave turn on Carpenter turn left on Harrison. You have arrived at the house once you see the fencing with brown privacy covering.
Financial Considerations
Terms: Cash,Conventional
Tax/Property ID: 8011-08-25-0389
Tax Amount: 1840.5
Tax Year: 2024
A broker reciprocity listing courtesy: WATSON REALTY CORP
Based on information provided by Stellar MLS as distributed by the MLS GRID. Information from the Internet Data Exchange is provided exclusively for consumers’ personal, non-commercial use, and such information may not be used for any purpose other than to identify prospective properties consumers may be interested in purchasing. This data is deemed reliable but is not guaranteed to be accurate by Edina Realty, Inc., or by the MLS. Edina Realty, Inc., is not a multiple listing service (MLS), nor does it offer MLS access.
Copyright 2026 Stellar MLS as distributed by the MLS GRID. All Rights Reserved.
Payment Calculator
Interest rate and annual percentage rate (APR) are based on current market conditions, are for informational purposes only, are subject to change without notice and may be subject to pricing add-ons related to property type, loan amount, loan-to-value, credit score and other variables. Estimated closing costs used in the APR calculation are assumed to be paid by the borrower at closing. If the closing costs are financed, the loan, APR and payment amounts will be higher. If the down payment is less than 20%, mortgage insurance may be required and could increase the monthly payment and APR. Contact us for details. Additional loan programs may be available. Accuracy is not guaranteed, and all products may not be available in all borrower's geographical areas and are based on their individual situation. This is not a credit decision or a commitment to lend.
Sales History & Tax Summary for 525 W Blue Springs Avenue
Sales History
| Date | Price | |
|---|---|---|
| Currently not available. | ||
Tax Summary
| Tax Year | Estimated Market Value | Total Tax |
|---|---|---|
| Currently not available. | ||
Data powered by ATTOM Data Solutions. Copyright© 2026. Information deemed reliable but not guaranteed.
Schools
Schools nearby 525 W Blue Springs Avenue
| Schools in attendance boundaries | Grades | Distance | Rating |
|---|---|---|---|
| Loading... | |||
| Schools nearby | Grades | Distance | Rating |
|---|---|---|---|
| Loading... | |||
Data powered by ATTOM Data Solutions. Copyright© 2026. Information deemed reliable but not guaranteed.
The schools shown represent both the assigned schools and schools by distance based on local school and district attendance boundaries. Attendance boundaries change based on various factors and proximity does not guarantee enrollment eligibility. Please consult your real estate agent and/or the school district to confirm the schools this property is zoned to attend. Information is deemed reliable but not guaranteed.
SchoolDigger ® Rating
The SchoolDigger rating system is a 1-5 scale with 5 as the highest rating. SchoolDigger ranks schools based on test scores supplied by each state's Department of Education. They calculate an average standard score by normalizing and averaging each school's test scores across all tests and grades.
Coming soon properties will soon be on the market, but are not yet available for showings.