$320,000
Off-Market Date: 01/31/2026526 Grant Road Venice, FL 34293
Pending MLS# N6142536
2 beds 2 baths 1,164 sq ft Single Family
Details for 526 Grant Road
MLS# N6142536
Description for 526 Grant Road, Venice, FL, 34293
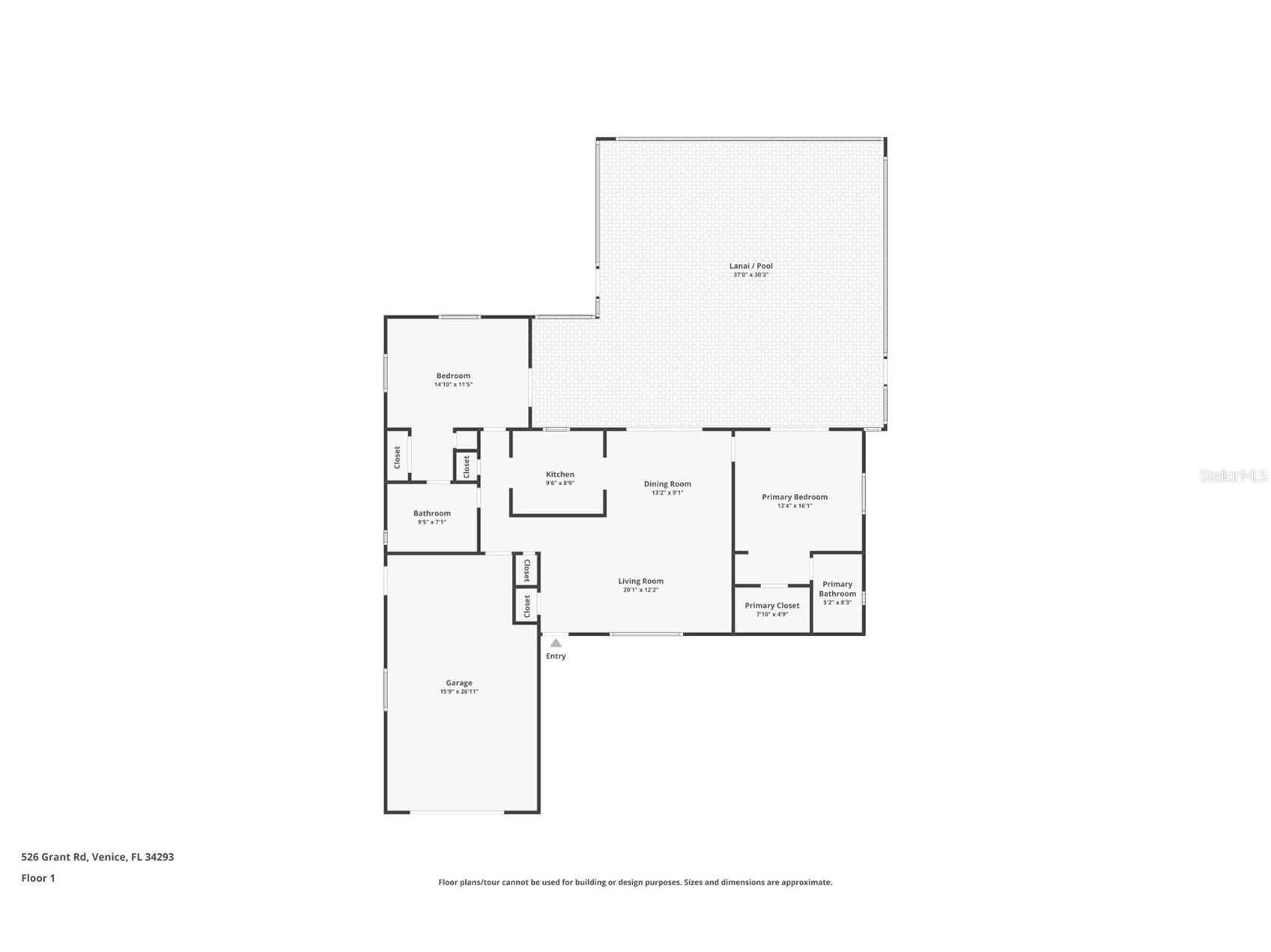
Under contract-accepting backup offers. Rare opportunity in Venice with room to grow. This two bedroom, two bathroom pool home is offered with an additional adjacent independent lot, providing a level of space and flexibility that is uncommon in many established Venice neighborhoods. The home sits on a cleared parcel, while the neighboring lot is lightly cleared with brush and mature trees, creating added privacy and separation. Together, the two parcels offer options for outdoor use, storage, or future consideration depending on buyer needs and verification. Several major items have already been addressed, including a 2023 roof, a 2025 AC system, and the home is not located in a flood zone. Both bathroom vanities were replaced in 2025, along with a new tiled shower, and the driveway and front walkway have been recently refreshed. The garage has also been updated with a freshly painted interior. An on site RV waste pump out connected to the septic system provides added convenience for RV owners or visiting guests. The interior layout is comfortable and functional, with spacious living areas and a screened pool that is well suited for enjoying Florida’s year round outdoor lifestyle. The home presents an opportunity for buyers who prefer to update finishes over time while living in the property, without the pressure of immediate large scale renovations. The Venice location is a key part of the appeal. The property is just minutes from Downtown Venice, known for its walkable streets, charming shops, and relaxed coastal feel. Shamrock Park is located less than two miles away and offers access to the Legacy Trail, walking paths, and outdoor recreation. Nearby waterfront favorites include Sharky’s On the Pier and the more upscale Fins located above it, offering Gulf front dining and sunset views. Multiple beaches are close by, including a dog friendly beach, along with parks, shopping, dining, and everyday conveniences. The home is also located just over a mile from the Intracoastal Waterway. Optional membership is available for access to the Ferry and boat ramp, adding to the lifestyle appeal for those who enjoy time on the water. Whether used as a full time residence, seasonal home, or long term hold, this property offers space, flexibility, and a desirable Venice location.
Listing Information
Property Type: Residential, Single Family Residence
Status: Pending
Bedrooms: 2
Bathrooms: 2
Lot Size: 0.18 Acres
Square Feet: 1,164 sq ft
Year Built: 1973
Garage: Yes
Stories: 1 Story
Construction: Block
Subdivision: South Venice
Foundation: Slab
County: Sarasota
School Information
Elementary: Venice Elementary
Middle: Venice Area Middle
High: Venice Senior High
Room Information
Main Floor
Porch: 30x37
Living Room: 12x20
Kitchen: 8x9
Bedroom 2: 11x14
Primary Bedroom: 16x13
Bathrooms
Full Baths: 2
Additonal Room Information
Laundry: In Garage
Interior Features
Appliances: Electric Water Heater, Dishwasher, Disposal, Dryer, Microwave, Range, Refrigerator
Flooring: Carpet,Ceramic Tile
Doors/Windows: Window Treatments
Additional Interior Features: Window Treatments, Ceiling Fan(s)
Utilities
Water: Well
Sewer: Septic Tank
Other Utilities: Cable Available,Electricity Connected
Cooling: Ceiling Fan(s), Central Air
Heating: Central
Exterior / Lot Features
Attached Garage: Attached Garage
Garage Spaces: 1
Roof: Shingle
Pool: In Ground, Screen Enclosure, Gunite
Lot Dimensions: 80x100
Fencing: Wood
Additional Exterior/Lot Features: Rain Gutters, Covered, Screened
Community Features
Community Features: Street Lights
Driving Directions
Traveling North on US 41 from Alligator Dr, turn Left onto W Seminole Dr. Take 2nd Right onto Datura Rd. Take 2nd Left onto Grant Rd. Home will be on your Right.
Financial Considerations
Terms: Cash,Conventional,FHA,VA Loan
Tax/Property ID: 0451100037
Tax Amount: 1095.94
Tax Year: 2025
A broker reciprocity listing courtesy: RE/MAX PALM REALTY OF VENICE
Based on information provided by Stellar MLS as distributed by the MLS GRID. Information from the Internet Data Exchange is provided exclusively for consumers’ personal, non-commercial use, and such information may not be used for any purpose other than to identify prospective properties consumers may be interested in purchasing. This data is deemed reliable but is not guaranteed to be accurate by Edina Realty, Inc., or by the MLS. Edina Realty, Inc., is not a multiple listing service (MLS), nor does it offer MLS access.
Copyright 2026 Stellar MLS as distributed by the MLS GRID. All Rights Reserved.
Sales History & Tax Summary for 526 Grant Road
Sales History
| Date | Price | |
|---|---|---|
| Currently not available. | ||
Tax Summary
| Tax Year | Estimated Market Value | Total Tax |
|---|---|---|
| Currently not available. | ||
Data powered by ATTOM Data Solutions. Copyright© 2026. Information deemed reliable but not guaranteed.
Schools
Schools nearby 526 Grant Road
| Schools in attendance boundaries | Grades | Distance | Rating |
|---|---|---|---|
| Loading... | |||
| Schools nearby | Grades | Distance | Rating |
|---|---|---|---|
| Loading... | |||
Data powered by ATTOM Data Solutions. Copyright© 2026. Information deemed reliable but not guaranteed.
The schools shown represent both the assigned schools and schools by distance based on local school and district attendance boundaries. Attendance boundaries change based on various factors and proximity does not guarantee enrollment eligibility. Please consult your real estate agent and/or the school district to confirm the schools this property is zoned to attend. Information is deemed reliable but not guaranteed.
SchoolDigger ® Rating
The SchoolDigger rating system is a 1-5 scale with 5 as the highest rating. SchoolDigger ranks schools based on test scores supplied by each state's Department of Education. They calculate an average standard score by normalizing and averaging each school's test scores across all tests and grades.
Coming soon properties will soon be on the market, but are not yet available for showings.