5264 Idlewild Street New Port Richey, FL 34653
For Sale MLS# TB8425467
3 beds 2 baths 1,700 sq ft Single Family
Details for 5264 Idlewild Street
MLS# TB8425467
Description for 5264 Idlewild Street, New Port Richey, FL, 34653
NO HOA OR CDD. Discover this beautifully maintained 3-bedroom, 2-bathroom single-family home in the heart of New Port Richey. Designed with efficiency and convenience in mind, One of the most overlooked expenses in homeownership is the electric bill—this home flips that script. With solar panels in place, the current average electric bill is approximately $35–$45/month, compared to $400+ for similar homes without solar. That’s thousands saved annually and a meaningful advantage built right into the home., a new upgraded electric service panel, a newer HVAC (2019), roof (2018), and storm impact windows for lasting peace of mind. The plumbing has been upgraded to current building materials and functionality. Inside, the upgraded kitchen and bathrooms showcase granite countertops, custom finishes, and modern touches throughout. A thoughtful addition provides a huge walk-in closet in the primary suite and a spacious walk-in pantry off the kitchen, creating both style and functionality. The home also features plantation shutters, which highlight the abundant natural light and further add to the home’s appeal!. The above-ground pool has been integrated seamlessly into the backyard, providing a cool oasis on a sunny day. A circular driveway ensures ample parking for you and your guests and the golf cart carport provides a space for your smaller vehicles. The home's enhanced landscape includes customized drainage and a communal area in the front yard. Perfectly located around the corner from Gulf High School and a local fire station, the home also offers quick access to downtown New Port Richey, shops, dining, Gulf beaches, and the scenic Pithlachascotee River. Move-in ready and filled with smart upgrades, this home is the perfect blend of comfort, convenience, and long-term value.
Listing Information
Property Type: Residential, Single Family Residence
Status: Active
Bedrooms: 3
Bathrooms: 2
Lot Size: 0.14 Acres
Square Feet: 1,700 sq ft
Year Built: 1974
Garage: Yes
Stories: 1 Story
Construction: Block,Concrete,Stucco
Subdivision: Tanglewood Terrace
Foundation: Slab
County: Pasco
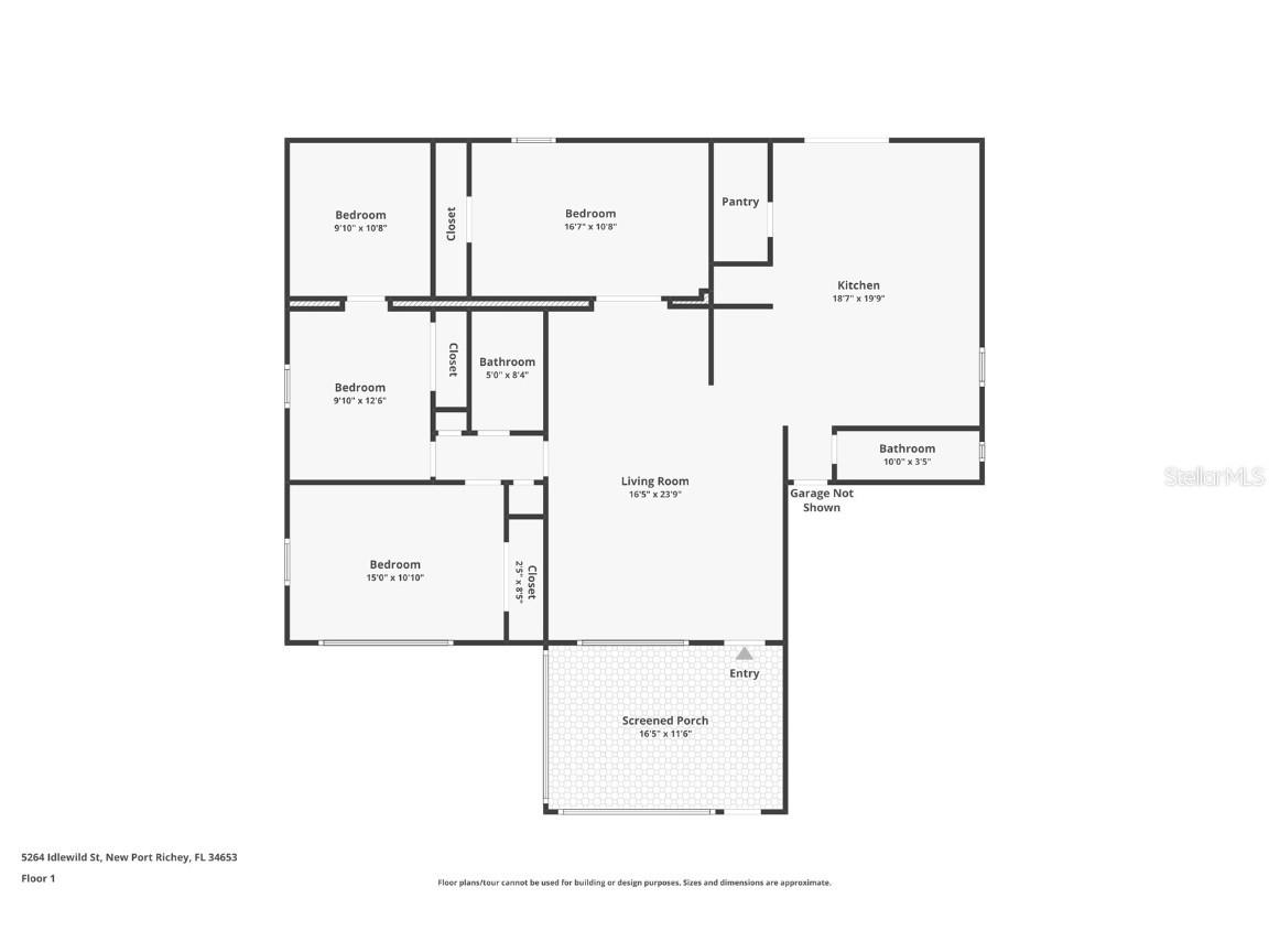
Room Information
Main Floor
Porch: 11x16
Bathroom 2: 3x10
Bathroom 1: 8x5
Bedroom 2: 12x9
Bedroom 3: 10x15
Primary Bedroom: 10x16
Kitchen: 19x18
Living Room: 23x16
Bathrooms
Full Baths: 2
Interior Features
Appliances: Range, Refrigerator, Dishwasher, Disposal, Microwave
Flooring: Laminate,Tile
Additional Interior Features: Walk-In Closet(s), Built-in Features, Eat-In Kitchen, Open Floorplan, Wood Cabinets
Utilities
Water: Public
Sewer: Public Sewer
Other Utilities: Cable Available,Electricity Available,High Speed Internet Available,Phone Available,Sewer Available,Water Available
Cooling: Central Air
Heating: Central
Exterior / Lot Features
Attached Garage: Attached Garage
Garage Spaces: 1
Roof: Shingle
Pool: Above Ground
Fencing: Wood, fenced
Additional Exterior/Lot Features: Rain Gutters, Lighting, City Lot
Community Features
Community Features: Sidewalks
Driving Directions
Head east toward River Rd. Turn right onto River Rd. Turn left onto Gulf Dr. Turn right onto Madison St. Turn left onto High St. Turn right onto Idlewild St. home on left
Financial Considerations
Terms: Cash,Conventional,FHA,VA Loan
Tax/Property ID: 09-26-16-019A-00000-1570
Tax Amount: 1107.28
Tax Year: 2024
A broker reciprocity listing courtesy: LPT REALTY, LLC
Based on information provided by Stellar MLS as distributed by the MLS GRID. Information from the Internet Data Exchange is provided exclusively for consumers’ personal, non-commercial use, and such information may not be used for any purpose other than to identify prospective properties consumers may be interested in purchasing. This data is deemed reliable but is not guaranteed to be accurate by Edina Realty, Inc., or by the MLS. Edina Realty, Inc., is not a multiple listing service (MLS), nor does it offer MLS access.
Copyright 2026 Stellar MLS as distributed by the MLS GRID. All Rights Reserved.
Payment Calculator
Interest rate and annual percentage rate (APR) are based on current market conditions, are for informational purposes only, are subject to change without notice and may be subject to pricing add-ons related to property type, loan amount, loan-to-value, credit score and other variables. Estimated closing costs used in the APR calculation are assumed to be paid by the borrower at closing. If the closing costs are financed, the loan, APR and payment amounts will be higher. If the down payment is less than 20%, mortgage insurance may be required and could increase the monthly payment and APR. Contact us for details. Additional loan programs may be available. Accuracy is not guaranteed, and all products may not be available in all borrower's geographical areas and are based on their individual situation. This is not a credit decision or a commitment to lend.
Sales History & Tax Summary for 5264 Idlewild Street
Sales History
| Date | Price | |
|---|---|---|
| Currently not available. | ||
Tax Summary
| Tax Year | Estimated Market Value | Total Tax |
|---|---|---|
| Currently not available. | ||
Data powered by ATTOM Data Solutions. Copyright© 2026. Information deemed reliable but not guaranteed.
Schools
Schools nearby 5264 Idlewild Street
| Schools in attendance boundaries | Grades | Distance | Rating |
|---|---|---|---|
| Loading... | |||
| Schools nearby | Grades | Distance | Rating |
|---|---|---|---|
| Loading... | |||
Data powered by ATTOM Data Solutions. Copyright© 2026. Information deemed reliable but not guaranteed.
The schools shown represent both the assigned schools and schools by distance based on local school and district attendance boundaries. Attendance boundaries change based on various factors and proximity does not guarantee enrollment eligibility. Please consult your real estate agent and/or the school district to confirm the schools this property is zoned to attend. Information is deemed reliable but not guaranteed.
SchoolDigger ® Rating
The SchoolDigger rating system is a 1-5 scale with 5 as the highest rating. SchoolDigger ranks schools based on test scores supplied by each state's Department of Education. They calculate an average standard score by normalizing and averaging each school's test scores across all tests and grades.
Coming soon properties will soon be on the market, but are not yet available for showings.