53 Woodfield Circle Homosassa, FL 34446
For Sale MLS# O6324694
3 beds 2 baths 2,008 sq ft Single Family
Details for 53 Woodfield Circle
MLS# O6324694
Description for 53 Woodfield Circle, Homosassa, FL, 34446
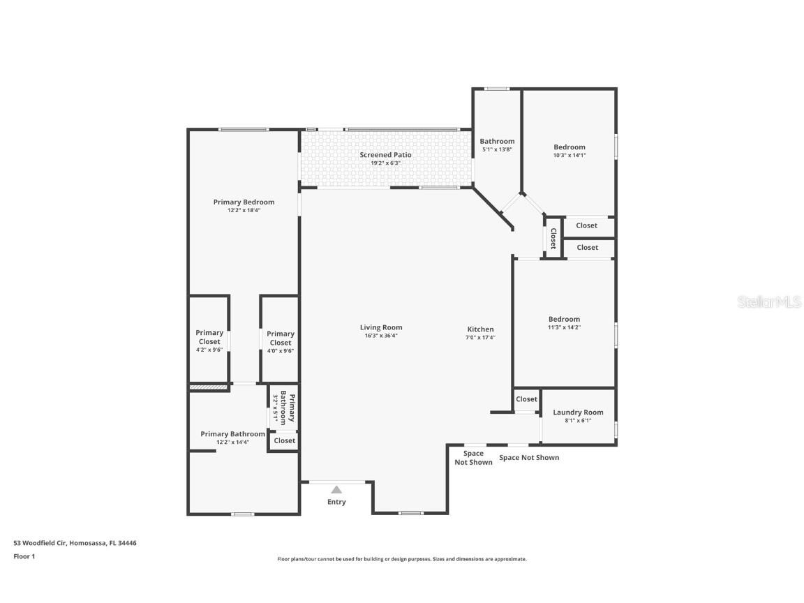
2025 NEW BUILD, this custom updated Genesis Model from Commence has 3 Bedrooms 2 Bathrooms + Full 2 Car Garage + 0.23 Acres + Golf Course Frontage with 2,000+ square feet of living space in the Golf Course Community of Southern Woods at SugarMill Woods. Walking through the Front Double Doors, this brand new home features an open concept split plan home with beautiful finishes throughout. The kitchen is complete with Quartz countertops, tile backsplash, crown molding with staggered white cabinets, silver hardware, and large kitchen island with bar top seating. The kitchen opens to the living room area with tons of natural light. The primary bedroom spans the entire length of the left side of the home and features: tray ceiling, his & hers closets, single French Door access to the covered fully screened in rear patio. The primary bathroom is complete with a Quartz countertop dual vanity, along with an oversized Wet Room - a large glass enclosure shower area with a sitting ledge and 2 shower niches, with a free standing tub opposite. Off of the living room on the right side of the home are the two bedrooms and full bathroom. The second full bathroom has a Quartz countertop dual vanity, tile to ceiling in tub shower, along with a door that accesses the rear patio. There is a set of Triple Glass Sliders that open to the fully screened in and covered rear patio space with views of the golf course. The laundry room has a wash sink and a Brand New Washer & Dryer. This new construction home has Luxury Vinyl Plank flooring throughout! The Builder Preferred LENDER IS OFFERING 1% OF PURCHASE PRICE TOWARDS BUYER’S CLOSING COSTS! 2-10 Home Buyers Warranty INCLUDED! Call to make an appointment to see this home today!
Listing Information
Property Type: Residential, Single Family Residence
Status: Active
Bedrooms: 3
Bathrooms: 2
Lot Size: 0.23 Acres
Square Feet: 2,008 sq ft
Year Built: 2025
Garage: Yes
Stories: 1 Story
Construction: Block,Concrete,Stucco
Construction Display: New Construction
Subdivision: Southern Woods/Sugarmill Woods
Builder: Commence
Foundation: Slab
County: Citrus
Construction Status: New Construction
School Information
Elementary: Lecanto Primary School
Middle: Lecanto Middle School
High: Lecanto High School
Room Information
Main Floor
Porch: 6x19
Laundry: 6x8
Bedroom 3: 14x11
Bedroom 2: 14x10
Primary Bathroom: 14x12
Primary Bedroom: 18x12
Kitchen: 17x7
Living Room: 36x16
Bathrooms
Full Baths: 2
Additonal Room Information
Laundry: Laundry Room
Interior Features
Appliances: Range, Refrigerator, Washer, Dishwasher, Dryer, Microwave, Electric Water Heater
Flooring: Carpet,Tile,Vinyl
Additional Interior Features: Walk-In Closet(s), Tray Ceiling(s), Built-in Features, Living/Dining Room, Open Floorplan, Main Level Primary, Stone Counters, Wood Cabinets
Utilities
Water: Public
Sewer: Public Sewer
Other Utilities: Cable Available,High Speed Internet Available
Cooling: Central Air
Heating: Central, Electric
Exterior / Lot Features
Attached Garage: Attached Garage
Garage Spaces: 2
Parking Description: driveway
Roof: Shingle
Lot View: Golf Course
Lot Dimensions: 65x145
Additional Exterior/Lot Features: Rear Porch, Screened, On Golf Course
Community Features
HOA Dues Include: Internet, Cable TV
Homeowners Association: Yes
HOA Dues: $992 / Annually
Driving Directions
Heading East on W Oak Park Blvd from Oak Village Blvd turn LEFT onto Corkwood Blvd, turn RIGHT onto Woodfield Circle, home is on RIGHT.
Financial Considerations
Terms: Cash,Conventional,FHA,VA Loan
Tax/Property ID: 18E-20S-21-0060-000F0-0260
Tax Amount: 395.41
Tax Year: 2024
A broker reciprocity listing courtesy: THE WILKINS WAY LLC
Based on information provided by Stellar MLS as distributed by the MLS GRID. Information from the Internet Data Exchange is provided exclusively for consumers’ personal, non-commercial use, and such information may not be used for any purpose other than to identify prospective properties consumers may be interested in purchasing. This data is deemed reliable but is not guaranteed to be accurate by Edina Realty, Inc., or by the MLS. Edina Realty, Inc., is not a multiple listing service (MLS), nor does it offer MLS access.
Copyright 2025 Stellar MLS as distributed by the MLS GRID. All Rights Reserved.
Payment Calculator
Interest rate and annual percentage rate (APR) are based on current market conditions, are for informational purposes only, are subject to change without notice and may be subject to pricing add-ons related to property type, loan amount, loan-to-value, credit score and other variables. Estimated closing costs used in the APR calculation are assumed to be paid by the borrower at closing. If the closing costs are financed, the loan, APR and payment amounts will be higher. If the down payment is less than 20%, mortgage insurance may be required and could increase the monthly payment and APR. Contact us for details. Additional loan programs may be available. Accuracy is not guaranteed, and all products may not be available in all borrower's geographical areas and are based on their individual situation. This is not a credit decision or a commitment to lend.
Sales History & Tax Summary for 53 Woodfield Circle
Sales History
| Date | Price | Change |
|---|---|---|
| Currently not available. | ||
Tax Summary
| Tax Year | Estimated Market Value | Total Tax |
|---|---|---|
| Currently not available. | ||
Data powered by ATTOM Data Solutions. Copyright© 2025. Information deemed reliable but not guaranteed.
Schools
Schools nearby 53 Woodfield Circle
| Schools in attendance boundaries | Grades | Distance | Rating |
|---|---|---|---|
| Loading... | |||
| Schools nearby | Grades | Distance | Rating |
|---|---|---|---|
| Loading... | |||
Data powered by ATTOM Data Solutions. Copyright© 2025. Information deemed reliable but not guaranteed.
The schools shown represent both the assigned schools and schools by distance based on local school and district attendance boundaries. Attendance boundaries change based on various factors and proximity does not guarantee enrollment eligibility. Please consult your real estate agent and/or the school district to confirm the schools this property is zoned to attend. Information is deemed reliable but not guaranteed.
SchoolDigger ® Rating
The SchoolDigger rating system is a 1-5 scale with 5 as the highest rating. SchoolDigger ranks schools based on test scores supplied by each state's Department of Education. They calculate an average standard score by normalizing and averaging each school's test scores across all tests and grades.
Coming soon properties will soon be on the market, but are not yet available for showings.