5300 N Ocean Shore Boulevard Palm Coast, FL 32137
For Sale MLS# FC305266
2 beds 3 baths 1,704 sq ft Single Family
Details for 5300 N Ocean Shore Boulevard
MLS# FC305266
Description for 5300 N Ocean Shore Boulevard, Palm Coast, FL, 32137
INCREDIBLE BUSINESS OPPORTUNITY!! UNIQUE RESIDENTIAL/COMMERCIAL (R/C) ZONED PROPERTY 150 FT A1A FRONTAGE W/ OPPORTUNITY TO SUBDIVIDE INTO MULTIPLE LOTS - Nestled in a prime, fully cleared corner lot along historic scenic A1A in the highly desirable Hammock area of Palm Coast, Florida, with close proximity to the beach, public boat launch and the Intracoastal Waterway, this 2-bedroom, 3-bathroom mid-century modern home offers both coastal charm and a wealth of possibilities for living and future business opportunities. This custom built 2-story home is thoughtfully designed with a spacious layout that offers flexibility for various living arrangements. The first floor provides a flexible living space that can easily serve as a home office, den, or additional living room. This floor also includes a full ADA accessible bathroom, adding to the versatility of the space and offering convenience for family or guests. On the second floor, the kitchen and living areas enjoy abundant natural light and flow seamlessly to create a comfortable, open space perfect for relaxing or entertaining. The fully enclosed patio offers a versatile area that can be used as a sunroom, office, or additional living space, making it a perfect spot to enjoy the Florida sunshine year-round. Both bedrooms are located on the second floor and feature their own ensuite bathrooms for added privacy and convenience. An oversized two-car garage, plumbed for a bathroom, is perfect for a workshop or studio. A fully equipped shed with electricity and plumbing can serve as an in-law suite. NO HOA or CDD. The property is ZONED R/C (RESIDENTIAL/COMMERCIAL) and is in unincorporated Flagler County. It has the option to be subdivided into 3 lots - a single family residential home (max. building height 35 feet) can be built on each lot. It can also be subdivided into 2 lots - an approved commercial use building on a 10,000 sq.ft lot and a single family residential home on the 2nd lot possible. NEW ROOF (2023), HVAC (2022), WATER HEATER (2024), HURRICANE RESISTANT IMPACT WINDOWS, NEW FLOORING (Luxury Vinyl Plank) IN BOTH UPSTAIRS BATHROOMS, FRESHLY PAINTED INTERIOR & EXTERIOR.
Listing Information
Property Type: Residential, Single Family Residence
Status: Active
Bedrooms: 2
Bathrooms: 3
Lot Size: 0.39 Acres
Square Feet: 1,704 sq ft
Year Built: 2002
Garage: Yes
Stories: 2 Story
Construction: Block,Stucco
Subdivision: Artesia
Foundation: Slab
County: Flagler
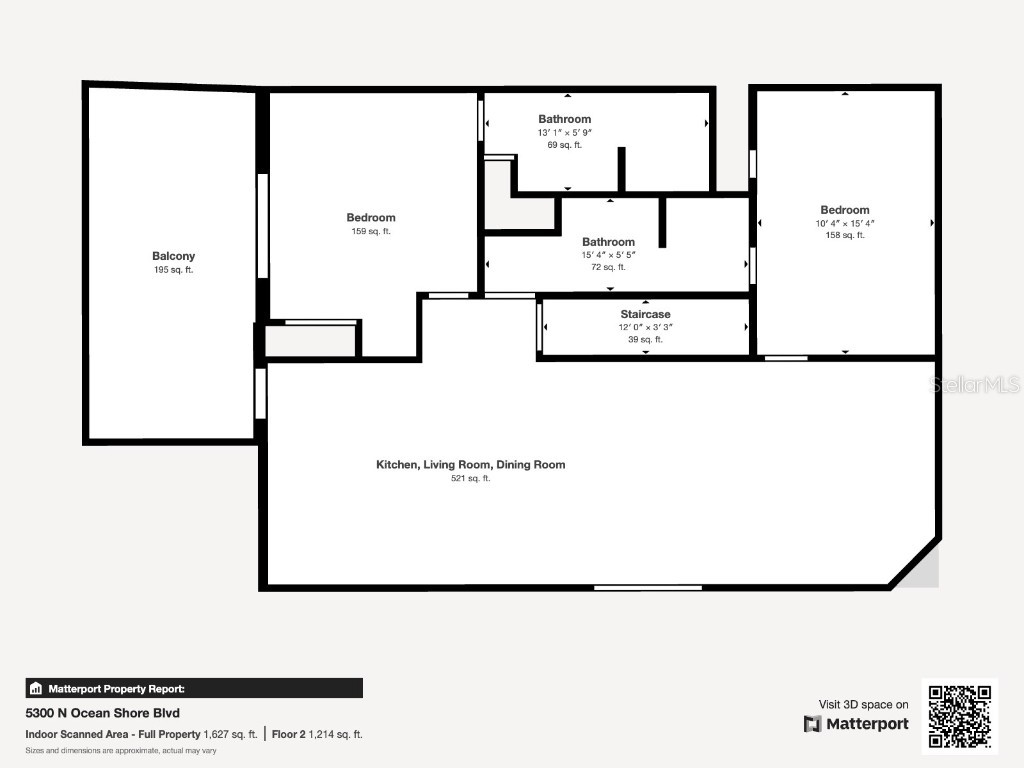
Room Information
Main Floor
Bathroom 1:
Upper Floor
Primary Bedroom:
Florida Room:
Primary Bedroom:
Bathroom 3:
Primary Bathroom:
Living Room:
Kitchen:
Bathrooms
Full Baths: 3
Additonal Room Information
Laundry: In Garage
Interior Features
Appliances: Dishwasher, Range, Refrigerator
Flooring: Carpet,Concrete,Epoxy,Linoleum,Luxury Vinyl
Additional Interior Features: Upper Level Primary, Living/Dining Room
Utilities
Water: Public
Sewer: Septic Tank
Other Utilities: Electricity Connected,Sewer Connected,Water Connected
Cooling: Central Air, Wall/Window Unit(s)
Heating: Electric, Central, Window Unit, Wall Furnace
Exterior / Lot Features
Attached Garage: Attached Garage
Garage Spaces: 2
Parking Description: Garage Faces Side, Oversized
Roof: Built-Up
Additional Exterior/Lot Features: Courtyard, Garden, Storage, Corner Lot, Landscaped, Oversized Lot
Out Buildings: Shed(s), Workshop
Driving Directions
Head North from SR 100 on A1A. Property will be on your left. Next to Hammock Baptist.
Financial Considerations
Terms: Cash,Conventional,FHA,VA Loan
Tax/Property ID: 40-10-31-0010-00020-0150
Tax Amount: 6894
Tax Year: 2024
A broker reciprocity listing courtesy: LPT REALTY LLC (PALM COAST)
Based on information provided by Stellar MLS as distributed by the MLS GRID. Information from the Internet Data Exchange is provided exclusively for consumers’ personal, non-commercial use, and such information may not be used for any purpose other than to identify prospective properties consumers may be interested in purchasing. This data is deemed reliable but is not guaranteed to be accurate by Edina Realty, Inc., or by the MLS. Edina Realty, Inc., is not a multiple listing service (MLS), nor does it offer MLS access.
Copyright 2025 Stellar MLS as distributed by the MLS GRID. All Rights Reserved.
Payment Calculator
Interest rate and annual percentage rate (APR) are based on current market conditions, are for informational purposes only, are subject to change without notice and may be subject to pricing add-ons related to property type, loan amount, loan-to-value, credit score and other variables. Estimated closing costs used in the APR calculation are assumed to be paid by the borrower at closing. If the closing costs are financed, the loan, APR and payment amounts will be higher. If the down payment is less than 20%, mortgage insurance may be required and could increase the monthly payment and APR. Contact us for details. Additional loan programs may be available. Accuracy is not guaranteed, and all products may not be available in all borrower's geographical areas and are based on their individual situation. This is not a credit decision or a commitment to lend.
Sales History & Tax Summary for 5300 N Ocean Shore Boulevard
Sales History
| Date | Price | Change |
|---|---|---|
| Currently not available. | ||
Tax Summary
| Tax Year | Estimated Market Value | Total Tax |
|---|---|---|
| Currently not available. | ||
Data powered by ATTOM Data Solutions. Copyright© 2025. Information deemed reliable but not guaranteed.
Schools
Schools nearby 5300 N Ocean Shore Boulevard
| Schools in attendance boundaries | Grades | Distance | Rating |
|---|---|---|---|
| Loading... | |||
| Schools nearby | Grades | Distance | Rating |
|---|---|---|---|
| Loading... | |||
Data powered by ATTOM Data Solutions. Copyright© 2025. Information deemed reliable but not guaranteed.
The schools shown represent both the assigned schools and schools by distance based on local school and district attendance boundaries. Attendance boundaries change based on various factors and proximity does not guarantee enrollment eligibility. Please consult your real estate agent and/or the school district to confirm the schools this property is zoned to attend. Information is deemed reliable but not guaranteed.
SchoolDigger ® Rating
The SchoolDigger rating system is a 1-5 scale with 5 as the highest rating. SchoolDigger ranks schools based on test scores supplied by each state's Department of Education. They calculate an average standard score by normalizing and averaging each school's test scores across all tests and grades.
Coming soon properties will soon be on the market, but are not yet available for showings.