531 Madrid Boulevard Punta Gorda, FL 33950
For Sale MLS# C7511261
3 beds 2 baths 2,083 sq ft Single Family
Details for 531 Madrid Boulevard
MLS# C7511261
Description for 531 Madrid Boulevard, Punta Gorda, FL, 33950
WATERFRONT GEM IN BURNT STORE ISLES – MOVE-IN READY W/SAIL ACCESS & INCREDIBLE VIEWS Perfectly positioned on a wide canal in Burnt Store Isles, this 3 bed/2 bath pool home w/just over 2,000 sqft. of living space offers 84 feet of seawall, southern rear exposure, and a wide view of intersecting canals. Home is the perfect opportunity for those who want a livable home now. Inside, you'll find a layout that is both comfortable and functional, featuring a large central kitchen, formal living and dining rooms, and a family room with a canal view. The kitchen features a breakfast bar, a recipe desk, stainless steel appliances & an abundance of cabinet/counter space. Architectural details include cathedral ceilings, multiple skylights, large windows & sliding glass doors plus tile flooring throughout. The space is generous—and the home is absolutely move-in ready. The master suite offers pool & canal views, direct access to the lanai, and a spacious en-suite bath w/oversized walk-in closet. Master bath has split sinks, private water closet, corner shower & large linen closet for additional storage. Guest rooms are well-sized, and the split floor plan adds privacy for family or visiting guests. Outside, the screen-enclosed lanai features a classically styled brick-trimmed pool w/attached spa, covered outdoor living/dining space, and panoramic water views. Thanks to southern rear exposure, the lanai and pool are bathed in sunlight throughout the day. Colorful sunsets/painted skies over the water are another benefit of the southern rear exposure. The mature tropical landscape that surrounds the lanai creates the feel of being in a private oasis. A concrete dock is already in place, complete with power and water hookups, providing sailboat access to Charlotte Harbor. Location on a wide canal provides added maneuverability when docking. Other amenities include an attached two-car garage, screened front entry, and hurricane protection. Home is located in Burnt Store Isles, one of Punta Gorda’s most desirable boating and golfing communities. Property is an exceptional opportunity to create your ideal Southwest Florida lifestyle. Whether you're looking to update, invest, or simply move in. This is one of the best waterfront values in Burnt Store Isles. Schedule your showing today.
Listing Information
Property Type: Residential, Single Family Residence
Status: Active
Bedrooms: 3
Bathrooms: 2
Lot Size: 0.22 Acres
Square Feet: 2,083 sq ft
Year Built: 1989
Garage: Yes
Stories: 1 Story
Construction: Block,Stucco
Subdivision: Punta Gorda Isles Sec 15
Foundation: Stem Wall
County: Charlotte
School Information
Elementary: Sallie Jones Elementary
Middle: Punta Gorda Middle
High: Charlotte High
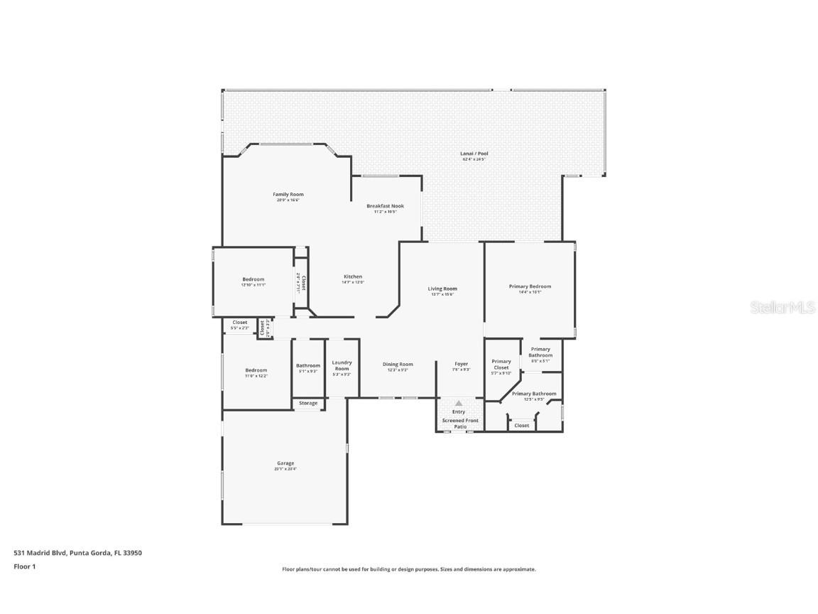
Room Information
Main Floor
Porch: 23x10
Kitchen: 14x10
Dining Room: 12x10
Living Room: 15x13
Laundry: 9x5
Bathroom 2: 9x5
Bedroom 3: 12x11
Bedroom 2: 10x10
Primary Bathroom: 12x6
Primary Bedroom: 15x14
Family Room: 19x14
Dinette: 10x10
Bathrooms
Full Baths: 2
Additonal Room Information
Laundry: Inside, Laundry Room
Interior Features
Appliances: Electric Water Heater, Washer, Dishwasher, Dryer, Microwave, Range, Refrigerator
Flooring: Tile
Doors/Windows: Skylight(s)
Additional Interior Features: Split Bedrooms, Separate/Formal Dining Room, Cathedral Ceiling(s), Skylights, Separate/Formal Living Room
Utilities
Water: Public
Sewer: Public Sewer
Other Utilities: Cable Available,Electricity Connected,High Speed Internet Available,Phone Available,Sewer Connected,Water Connected
Cooling: Central Air
Heating: Central, Electric
Exterior / Lot Features
Attached Garage: Attached Garage
Garage Spaces: 2
Parking Description: Garage Door Opener, Garage
Roof: Tile
Pool: Gunite, Screen Enclosure, In Ground
Lot View: Canal,Water
Lot Dimensions: 75x120x84x120
Additional Exterior/Lot Features: Storm/Security Shutters, Sprinkler/Irrigation, Screened, Landscaped, City Lot, Flood Zone, Near Golf Course
Waterfront Details
Water Front Features: Canal Access, Gulf Access, River Access
Community Features
Security Features: Closed Circuit Camera(s), Smoke Detector(s)
Homeowners Association: Yes
HOA Dues: $50 / Annually
Driving Directions
From US41, go west on Monaco Dr. Right on Madrid Blvd. Home is on left.
Financial Considerations
Terms: Cash,Conventional,FHA,VA Loan
Tax/Property ID: 412320354005
Tax Amount: 5307
Tax Year: 2024
A broker reciprocity listing courtesy: RE/MAX HARBOR REALTY
Based on information provided by Stellar MLS as distributed by the MLS GRID. Information from the Internet Data Exchange is provided exclusively for consumers’ personal, non-commercial use, and such information may not be used for any purpose other than to identify prospective properties consumers may be interested in purchasing. This data is deemed reliable but is not guaranteed to be accurate by Edina Realty, Inc., or by the MLS. Edina Realty, Inc., is not a multiple listing service (MLS), nor does it offer MLS access.
Copyright 2025 Stellar MLS as distributed by the MLS GRID. All Rights Reserved.
Payment Calculator
Interest rate and annual percentage rate (APR) are based on current market conditions, are for informational purposes only, are subject to change without notice and may be subject to pricing add-ons related to property type, loan amount, loan-to-value, credit score and other variables. Estimated closing costs used in the APR calculation are assumed to be paid by the borrower at closing. If the closing costs are financed, the loan, APR and payment amounts will be higher. If the down payment is less than 20%, mortgage insurance may be required and could increase the monthly payment and APR. Contact us for details. Additional loan programs may be available. Accuracy is not guaranteed, and all products may not be available in all borrower's geographical areas and are based on their individual situation. This is not a credit decision or a commitment to lend.
Sales History & Tax Summary for 531 Madrid Boulevard
Sales History
| Date | Price | Change |
|---|---|---|
| Currently not available. | ||
Tax Summary
| Tax Year | Estimated Market Value | Total Tax |
|---|---|---|
| Currently not available. | ||
Data powered by ATTOM Data Solutions. Copyright© 2025. Information deemed reliable but not guaranteed.
Schools
Schools nearby 531 Madrid Boulevard
| Schools in attendance boundaries | Grades | Distance | Rating |
|---|---|---|---|
| Loading... | |||
| Schools nearby | Grades | Distance | Rating |
|---|---|---|---|
| Loading... | |||
Data powered by ATTOM Data Solutions. Copyright© 2025. Information deemed reliable but not guaranteed.
The schools shown represent both the assigned schools and schools by distance based on local school and district attendance boundaries. Attendance boundaries change based on various factors and proximity does not guarantee enrollment eligibility. Please consult your real estate agent and/or the school district to confirm the schools this property is zoned to attend. Information is deemed reliable but not guaranteed.
SchoolDigger ® Rating
The SchoolDigger rating system is a 1-5 scale with 5 as the highest rating. SchoolDigger ranks schools based on test scores supplied by each state's Department of Education. They calculate an average standard score by normalizing and averaging each school's test scores across all tests and grades.
Coming soon properties will soon be on the market, but are not yet available for showings.