5323 73rd Street N Saint Petersburg, FL 33709
For Sale MLS# TB8396625
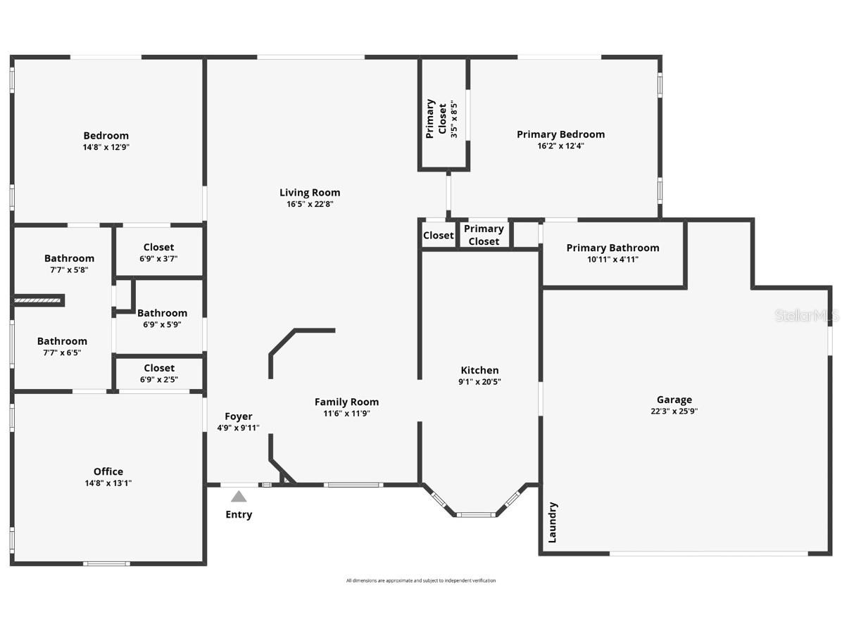
3 beds 2 baths 1,706 sq ft Single Family
Details for 5323 73rd Street N
MLS# TB8396625
Description for 5323 73rd Street N, Saint Petersburg, FL, 33709
Welcome to this well loved 3-bedroom, 2-bathroom home, ideally situated at the end of a peaceful dead-end street adjacent to Joe’s Creek. Centrally located in unincorporated Pinellas County—where short-term rentals are legally permitted—this home offers incredible flexibility. Whether you're searching for a full-time residence, a winter retreat, or an AirBnB opportunity, this property is ready to meet your needs. Owned by the same family since it was custom-built in 1992, the home blends privacy, comfort, & thoughtful upgrades. Upon entry, you're welcomed by a spacious foyer with Saltillo tile flooring. To the right is the formal dining room, featuring a vaulted ceiling & a skylight. Eco-friendly bamboo flooring continues into the adjacent living room, creating a seamless flow. Bedrooms 2 & 3 are located on the north side of the home, both with carpeting, ceiling fans, and generously sized closets featuring double shelving and hanging racks. Bedroom 2 also includes a charming window seat with built-in storage. These 2 bedrooms share a Jack-and-Jill bathroom, designed with a large soaking tub, glass block wall, and skylight—perfect for relaxing in a naturally lit space with plenty of room to unwind. The primary suite, located on the opposite side of the home, offers privacy and comfort with neutral-tone luxury vinyl flooring, a ceiling fan, and both a walk-in closet and wall closet. A sliding glass door provides private access to the backyard oasis. The UPDATED EN SUITE BATH features a modern double vanity, a walk-in shower, and a linen closet. The kitchen, thoughtfully RENOVATED in 2009, is a highlight of the home. With rich wood cabinetry, SILESTONE U-shaped countertops, stainless steel appliances (including a propane gas range), and four Lazy Susan cabinets, it offers exceptional functionality. Additional touches include a spice cabinet, pull-out shelving, under- and over-cabinet lighting, bay window, a skylight, and space for a dinette—plus a breakfast bar/pass-through to the living room. Step outside to your private backyard retreat, complete with a covered lanai, shade from mature trees, and a 3600-gallon in-ground saltwater fiberglass pool with integrated jacuzzi—perfect for year-round relaxation. A wood fence (2024) and low-maintenance landscaping add privacy and ease. The oversized 2-car garage provides additional storage with built-in shelving and cabinetry. Other key features include: Circular driveway, RING doorbell & spotlight cameras, 2020 HVAC system with UV light,2008 roof,2024 pool pump, Tinted windows for energy efficiency, Hurricane protection for all doors and windows, Tankless electric water heater (2019),Water softener (recent),Leased propane tank, Electric hookup for a 35’ RV, Convenient sewer clean-out access, Solar lighting on fencing. Located in a quiet, no-through-traffic neighborhood, this home is just minutes from shopping, beaches, airports & local amenities—yet feels like a private enclave all your own. Whether you're an investor, snowbird, or year-round resident, this home is ready to welcome its next chapter. Please view the 360° virtual tour & schedule your private showing today. Claims made in this listing are provided by the seller and are believed to be accurate; however, buyers are responsible to verify, as some information could change from time of listing. ( PLEASE NOTE: RING DOORBELL & CAMERAS are RECORDING AUDIO & VISUAL) NEVER FLOODED. Only the southeast corner of the garage is in flood zone AE.
Listing Information
Property Type: Residential, Single Family Residence
Status: Active
Bedrooms: 3
Bathrooms: 2
Lot Size: 0.20 Acres
Square Feet: 1,706 sq ft
Year Built: 1992
Garage: Yes
Stories: 1 Story
Construction: Vinyl Siding,Wood Frame
Property Attached: Yes
Construction Display: New Construction
Subdivision: Bon Creek Park
Foundation: Concrete Perimeter
County: Pinellas
Construction Status: New Construction
Room Information
Main Floor
Bedroom 3: 13.1x12.9
Bedroom 2: 12.11x12.9
Living Room: 20.5x16.1
Primary Bedroom: 13.9x12
Kitchen: 9.11x8.7
Dinette: 8.1x8.7
Dining Room: 11.9x11.1
Bathrooms
Full Baths: 2
Additonal Room Information
Laundry: In Garage
Interior Features
Appliances: Tankless Water Heater, Electric Water Heater, Water Softener, Washer, Microwave, Range, Refrigerator, Dishwasher, Disposal, Dryer
Flooring: Bamboo,Carpet,Luxury Vinyl,Tile
Doors/Windows: Window Treatments, Tinted Windows, Skylight(s), Blinds
Additional Interior Features: Eat-In Kitchen, Vaulted Ceiling(s), Walk-In Closet(s), Split Bedrooms, Ceiling Fan(s), Separate/Formal Living Room, Stone Counters, Separate/Formal Dining Room, Skylights, Built-in Features, Window Treatments
Utilities
Water: Public
Sewer: Public Sewer
Other Utilities: Cable Connected,Electricity Connected,Propane,Sewer Connected,Water Connected
Cooling: Ceiling Fan(s), Central Air
Heating: Central, Electric
Exterior / Lot Features
Attached Garage: Attached Garage
Garage Spaces: 2
Parking Description: Garage Door Opener, Garage, driveway, RV Access/Parking, Circular Driveway, Oversized
Roof: Metal, Shingle
Pool: Salt Water, In Ground, Fiberglass
Lot View: Canal,Trees/Woods,Water
Lot Dimensions: 85x120
Fencing: Wood
Additional Exterior/Lot Features: Storm/Security Shutters, Covered, Deck, Patio, Corner Lot, Flat, Irregular Lot, Level, Landscaped, Near Public Transit, Dead End, Oversized Lot, Flood Zone, Outside City Limits, Drainage
Community Features
Community Features: Sidewalks
Driving Directions
54th Ave N to SOUTH on 73rd St to last house on EAST ( left) side.
Financial Considerations
Terms: Cash,Conventional
Tax/Property ID: 06-31-16-10170-002-0100
Tax Amount: 1856
Tax Year: 2024
A broker reciprocity listing courtesy: HIGH ENERGY REAL ESTATE
Based on information provided by Stellar MLS as distributed by the MLS GRID. Information from the Internet Data Exchange is provided exclusively for consumers’ personal, non-commercial use, and such information may not be used for any purpose other than to identify prospective properties consumers may be interested in purchasing. This data is deemed reliable but is not guaranteed to be accurate by Edina Realty, Inc., or by the MLS. Edina Realty, Inc., is not a multiple listing service (MLS), nor does it offer MLS access.
Copyright 2025 Stellar MLS as distributed by the MLS GRID. All Rights Reserved.
Payment Calculator
Interest rate and annual percentage rate (APR) are based on current market conditions, are for informational purposes only, are subject to change without notice and may be subject to pricing add-ons related to property type, loan amount, loan-to-value, credit score and other variables. Estimated closing costs used in the APR calculation are assumed to be paid by the borrower at closing. If the closing costs are financed, the loan, APR and payment amounts will be higher. If the down payment is less than 20%, mortgage insurance may be required and could increase the monthly payment and APR. Contact us for details. Additional loan programs may be available. Accuracy is not guaranteed, and all products may not be available in all borrower's geographical areas and are based on their individual situation. This is not a credit decision or a commitment to lend.
Sales History & Tax Summary for 5323 73rd Street N
Sales History
| Date | Price | Change |
|---|---|---|
| Currently not available. | ||
Tax Summary
| Tax Year | Estimated Market Value | Total Tax |
|---|---|---|
| Currently not available. | ||
Data powered by ATTOM Data Solutions. Copyright© 2025. Information deemed reliable but not guaranteed.
Schools
Schools nearby 5323 73rd Street N
| Schools in attendance boundaries | Grades | Distance | Rating |
|---|---|---|---|
| Loading... | |||
| Schools nearby | Grades | Distance | Rating |
|---|---|---|---|
| Loading... | |||
Data powered by ATTOM Data Solutions. Copyright© 2025. Information deemed reliable but not guaranteed.
The schools shown represent both the assigned schools and schools by distance based on local school and district attendance boundaries. Attendance boundaries change based on various factors and proximity does not guarantee enrollment eligibility. Please consult your real estate agent and/or the school district to confirm the schools this property is zoned to attend. Information is deemed reliable but not guaranteed.
SchoolDigger ® Rating
The SchoolDigger rating system is a 1-5 scale with 5 as the highest rating. SchoolDigger ranks schools based on test scores supplied by each state's Department of Education. They calculate an average standard score by normalizing and averaging each school's test scores across all tests and grades.
Coming soon properties will soon be on the market, but are not yet available for showings.