5335 Bentpine Cove Road Jacksonville, FL 32224
For Sale MLS# V4943597
5 beds 6 baths 4,800 sq ft Single Family
Details for 5335 Bentpine Cove Road
MLS# V4943597
Description for 5335 Bentpine Cove Road, Jacksonville, FL, 32224
Located within the exclusive guard-gated community of Pablo Creek Reserve in Jacksonville, FL, this well-appointed custom Mediterranean-style estate offers the perfect blend of luxury, functionality, and timeless design. Boasting 5 BEDROOMS, 5.5 BATHROOMS, a 3-CAR GARAGE, and over 4,800 SQFT of elevated living space, this home is designed for both grand entertaining and comfortable everyday living. The heart of the home is the chef’s kitchen, a dream for entertainers and culinary enthusiasts alike. Featuring dual islands, two farmhouse sinks, two dishwashers, TWO HIGH-END REFRIGERATORS, a gas cooktop with custom range hood, wet bar with wine fridge and ice maker, walk-in pantry, and new quartz countertops—this space is thoughtfully crafted for both form and function. The open-concept living area showcases new luxury vinyl plank flooring, a gas fireplace with floating built-ins, and gorgeous views of the pool and tranquil water beyond. Just off the main living area is the moody, design-forward primary suite, completely blacked out for serenity, with oversized drapes, tray ceiling, and an en-suite spa bathroom featuring dual vanities, a steam shower, and an oversized walk-in closet with built-ins and a center island ideal for watches, jewelry, or outfit planning. The first-floor office offers built-in cabinetry, French doors, and a shared view of the impressive saltwater pass-through fish tank. Nearby, you'll find a designer half bath, stylish mudroom cubbies, and a functional laundry space off the hallway leading to the garage. A versatile fifth bedroom on the main floor, currently used as a card room, offers direct access to the expansive covered patio. Outdoors, enjoy travertine tile flooring, built-in speakers, and a full summer kitchen, all overlooking the saltwater pool and spa. A bug-misting repellent system lines the gutters and fence for ultimate outdoor comfort. Upstairs, you'll find a spacious loft, three additional bedrooms—each with its own en-suite bath, and a second laundry room with space for stackable washer/dryer. Featuring a WHOLE HOME GENERAC GENERATOR this property is sure to give you peace of mind in the event of a power outage. This exceptional property is a rare opportunity to own in one of Jacksonville’s most coveted communities, where luxury meets thoughtful design in every detail. Call to schedule your private tour today!
Listing Information
Property Type: Residential, Single Family Residence
Status: Active
Bedrooms: 5
Bathrooms: 6
Lot Size: 0.74 Acres
Square Feet: 4,800 sq ft
Year Built: 2015
Garage: Yes
Stories: 2 Story
Construction: Stucco,Wood Frame
Subdivision: Pablo Creek Reserve Ph 05b
Foundation: Slab
County: Duval
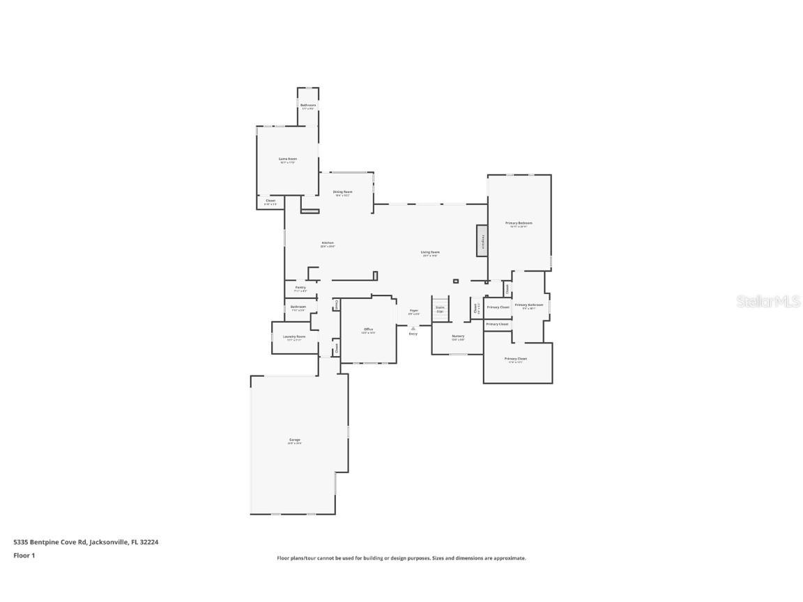
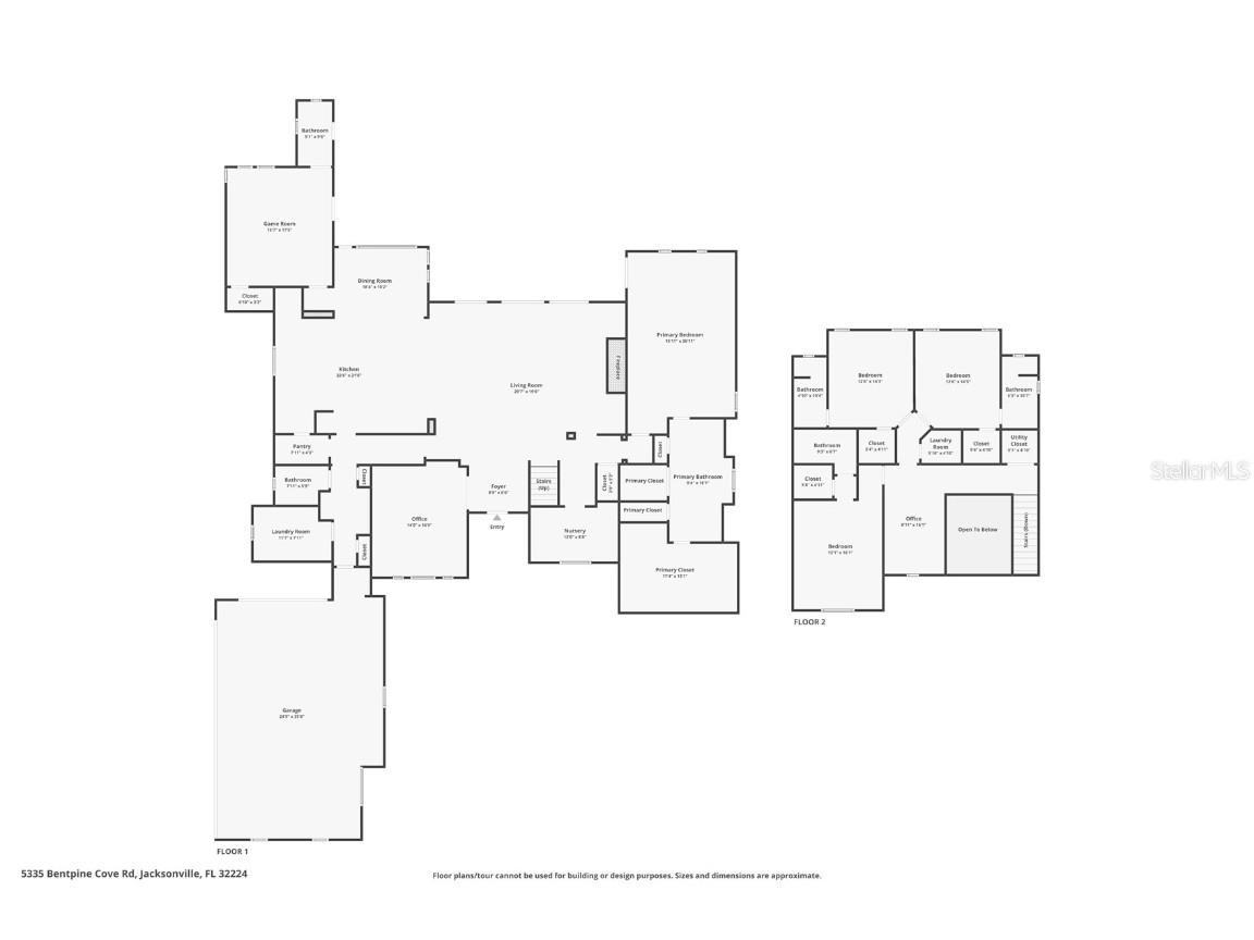
Room Information
Main Floor
Primary Bedroom:
Living Room:
Bonus Room:
Office:
Kitchen:
Bedroom 2:
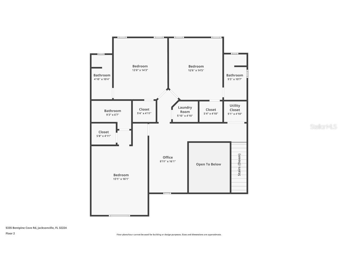
Upper Floor
Loft:
Bedroom 5:
Bedroom 4:
Bedroom 3:
Bathrooms
Full Baths: 5
1/2 Baths: 1
Additonal Room Information
Laundry: Inside, Laundry Room
Interior Features
Appliances: Wine Refrigerator, Washer, Dishwasher, Dryer, Refrigerator
Flooring: Carpet,Luxury Vinyl
Doors/Windows: Window Treatments
Fireplaces: Gas, Living Room
Additional Interior Features: Walk-In Closet(s), Ceiling Fan(s), Tray Ceiling(s), Window Treatments, High Ceilings, Main Level Primary, Living/Dining Room, Open Floorplan, Stone Counters, Kitchen/Family Room Combo
Utilities
Water: Public
Sewer: Public Sewer
Other Utilities: Cable Connected,Electricity Connected,Propane,Sewer Connected,Water Connected
Cooling: Ceiling Fan(s), Central Air
Heating: Electric, Central
Exterior / Lot Features
Attached Garage: Attached Garage
Garage Spaces: 3
Roof: Tile
Pool: In Ground, Salt Water
Lot View: Pond,Water
Additional Exterior/Lot Features: Sprinkler/Irrigation, Outdoor Kitchen
Community Features
Community Features: Playground, Gated, Park, Golf Carts OK
Security Features: Security System, Security System Owned, Gated Community, Gated with Guard
Association Amenities: Recreation Facilities, Playground
HOA Dues Include: Common Areas, Taxes, Security
Homeowners Association: Yes
HOA Dues: $512 / Monthly
Driving Directions
From Interstate 295, take Exit 5 for Baymeadows Road and head east. Continue on Baymeadows Road for approximately 3.5 miles, then turn right onto San Pablo Road South. Drive 1.5 miles and turn left into the gated entrance of Pablo Creek Reserve. Once through the gate, follow Pablo Creek Blvd to the roundabout and take the second exit to continue straight. Turn right onto Bentpine Cove Road—5335 Bentpine Cove Rd will be ahead on your left.
Financial Considerations
Terms: Cash,Conventional
Tax/Property ID: 167766-4940
Tax Amount: 22043.58
Tax Year: 2024
A broker reciprocity listing courtesy: KELLER WILLIAMS HERITAGE REALTY
Based on information provided by Stellar MLS as distributed by the MLS GRID. Information from the Internet Data Exchange is provided exclusively for consumers’ personal, non-commercial use, and such information may not be used for any purpose other than to identify prospective properties consumers may be interested in purchasing. This data is deemed reliable but is not guaranteed to be accurate by Edina Realty, Inc., or by the MLS. Edina Realty, Inc., is not a multiple listing service (MLS), nor does it offer MLS access.
Copyright 2025 Stellar MLS as distributed by the MLS GRID. All Rights Reserved.
Payment Calculator
Interest rate and annual percentage rate (APR) are based on current market conditions, are for informational purposes only, are subject to change without notice and may be subject to pricing add-ons related to property type, loan amount, loan-to-value, credit score and other variables. Estimated closing costs used in the APR calculation are assumed to be paid by the borrower at closing. If the closing costs are financed, the loan, APR and payment amounts will be higher. If the down payment is less than 20%, mortgage insurance may be required and could increase the monthly payment and APR. Contact us for details. Additional loan programs may be available. Accuracy is not guaranteed, and all products may not be available in all borrower's geographical areas and are based on their individual situation. This is not a credit decision or a commitment to lend.
Sales History & Tax Summary for 5335 Bentpine Cove Road
Sales History
| Date | Price | Change |
|---|---|---|
| Currently not available. | ||
Tax Summary
| Tax Year | Estimated Market Value | Total Tax |
|---|---|---|
| Currently not available. | ||
Data powered by ATTOM Data Solutions. Copyright© 2025. Information deemed reliable but not guaranteed.
Schools
Schools nearby 5335 Bentpine Cove Road
| Schools in attendance boundaries | Grades | Distance | Rating |
|---|---|---|---|
| Loading... | |||
| Schools nearby | Grades | Distance | Rating |
|---|---|---|---|
| Loading... | |||
Data powered by ATTOM Data Solutions. Copyright© 2025. Information deemed reliable but not guaranteed.
The schools shown represent both the assigned schools and schools by distance based on local school and district attendance boundaries. Attendance boundaries change based on various factors and proximity does not guarantee enrollment eligibility. Please consult your real estate agent and/or the school district to confirm the schools this property is zoned to attend. Information is deemed reliable but not guaranteed.
SchoolDigger ® Rating
The SchoolDigger rating system is a 1-5 scale with 5 as the highest rating. SchoolDigger ranks schools based on test scores supplied by each state's Department of Education. They calculate an average standard score by normalizing and averaging each school's test scores across all tests and grades.
Coming soon properties will soon be on the market, but are not yet available for showings.