534 Estuary Shore Lane Apollo Beach, FL 33572
For Sale MLS# T3513081
4 beds 3 baths 3,322 sq ft Single Family
Details for 534 Estuary Shore Lane
MLS# T3513081
Description for 534 Estuary Shore Lane, Apollo Beach, FL, 33572
Introducing a commanding presence at 534 Estuary Shore Lane in Apollo Beach, Florida. This 2023 masterpiece crafted by Bistro Builders stands as a testament to luxury waterfront living. With 4 bedrooms,3 baths, the home showcases high-end craftsmanship and meticulous design. Embark on a journey where every detail is tailored to an exceptional lifestyle, beginning with a heated pool and spa for ultimate relaxation. The estate features a private boat dock with a lift, offering seamless access to Tampa Bay. Enhanced waterfrontage, minimal HOA fees, and no CDD underscore the exclusivity of this gated property. The essence of robust elegance is evident throughout. An outdoor kitchen equipped with a grill, fridge, and icemaker sets the stage for unparalleled outdoor entertainment. The owner's suite serves as a retreat, boasting a standalone tub, expansive glass-encased walk-in shower, and a dual-sink vanity adjacent to built-in closets. A cozy fireplace in the master bath and a private balcony in the primary bedroom command views of the backyard, the canal, and Tampa Bay's iconic sunsets. Strength and sophistication merge with block construction and custom-laid epoxy floors throughout. The garage is a testament to functionality, featuring overhead built-in storage and premium epoxy flooring. Direct access to the private pool from the lower balcony emphasizes seamless indoor-outdoor living. The kitchen is a culinary stronghold, equipped with top-tier appliances, quartz waterfall countertops, custom-built cabinets, a double sink, and a pot filler. An adjacent bar/wine area enhances the kitchen's functionality. The living and dining areas, accentuated by a cozy fireplace, triple tray ceilings, and bespoke lighting, including LED and accent lights, create an atmosphere of refined masculinity. The home's exterior is formidable, with strategic lighting, comprehensive landscaping, an oversized driveway, and concrete steps. Constructed well above the flood plain, it offers both security and peace of mind. Bathrooms feature high-end mirrors and electric toilets, underscoring the property's luxury. The pervasive use of glass and light throughout amplifies its modern, inviting aesthetic. Safety is paramount, with solid concrete floors, hurricane-impact windows and doors, and a comprehensive alarm system ensuring both durability and a secure living environment. 534 Estuary Shore Lane isn't merely a property; it's a declaration of luxury, functionality, and unmatched beauty, awaiting your claim. Positioned near the Manatee Viewing Center and across from the Tampa Aquarium Turtle Rescue Center, it places you at the heart of Apollo Beach's natural splendors. With no bridges or obstructions, you're mere minutes from the bay. 534 Estuary Shore Lane is not just a home; it's a lifestyle. A lifestyle of luxury, convenience, and unparalleled beauty, ready for you to make it yours.
Listing Information
Property Type: Residential, Single Family Residence
Status: Active
Bedrooms: 4
Bathrooms: 3
Lot Size: 0.13 Acres
Square Feet: 3,322 sq ft
Year Built: 2023
Garage: Yes
Stories: 2 Story
Construction: Block,Concrete,Stucco
Construction Display: New Construction
Subdivision: Veneto Shores
Builder: Bistro Builders
Foundation: Concrete Perimeter,Slab,Stem Wall
County: Hillsborough
Construction Status: New Construction
School Information
Elementary: Apollo Beach-Hb
Middle: Eisenhower-Hb
High: East Bay-Hb
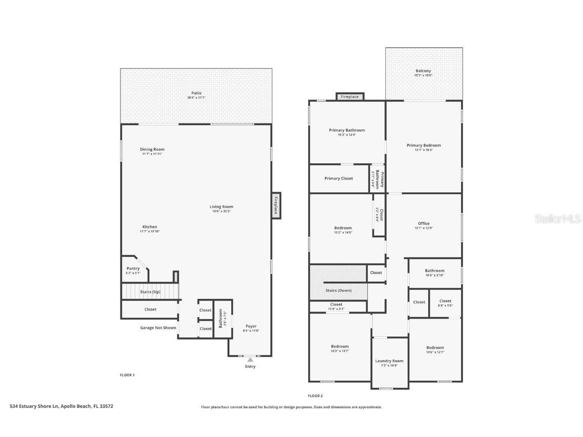
Room Information
Main Floor
Foyer: 11.3x8.8
Dining Room: 14.9x11.9
Living Room: 37x19.7
Kitchen: 18.8x11.6
Upper Floor
Primary Bathroom:
Primary Bedroom: 19x15
Bathrooms
Full Baths: 2
1/2 Baths: 1
Additonal Room Information
Laundry: Washer Hookup, Laundry Room
Interior Features
Appliances: Ice Maker, Tankless Water Heater, Gas Water Heater, Microwave, Indoor Grill, Dishwasher, Disposal, Refrigerator
Flooring: Concrete,Ceramic Tile,Epoxy
Doors/Windows: Storm Window(s)
Fireplaces: Electric
Additional Interior Features: Vaulted Ceiling(s), Eat-In Kitchen, Walk-In Closet(s), Ceiling Fan(s), Upper Level Primary, Crown Molding, Living/Dining Room, Cathedral Ceiling(s), High Ceilings, Tray Ceiling(s), Open Floorplan
Utilities
Water: Public
Sewer: Public Sewer
Other Utilities: Cable Available,Electricity Connected,Fiber Optic Available,Natural Gas Connected,High Speed Internet Available,Municipal Utilities,Sewer Connected
Cooling: Ceiling Fan(s), Central Air
Heating: Gas, Central
Exterior / Lot Features
Attached Garage: Attached Garage
Garage Spaces: 2
Parking Description: Electric Vehicle Charging Station(s), Off Street, Garage, driveway, Open, Garage Door Opener
Roof: Tile
Pool: Heated, Gunite, In Ground
Lot View: Canal,Water
Lot Dimensions: 42x135
Fencing: Other
Additional Exterior/Lot Features: Outdoor Grill, Sprinkler/Irrigation, Balcony, Outdoor Kitchen, Lighting, Balcony, Deck, Patio, Rear Porch, Front Porch, Flat, Level, Landscaped, Conservation Area, Outside City Limits
Waterfront Details
Water Front Features: Canal Access
Community Features
Community Features: Water Access, Street Lights, Sidewalks
Security Features: Security Lights, Security Gate, Smoke Detector(s), Fire Hydrant(s)
HOA Dues Include: Maintenance Grounds, Insurance
Homeowners Association: Yes
HOA Dues: $1,000 / Annually
Driving Directions
From Highway 41 at Big Bend driving south take a right onto Apollo Beach blvd, follow the blvd west to the first traffic light which is Dickman Road. Turn Right on Dickman Road. head north to the first left just over the small bridge to Estuary Shore Lane. This home is ahead on the left
Financial Considerations
Terms: Cash,Conventional,VA Loan
Tax/Property ID: U-21-31-19-9AU-000000-00004.0
Tax Amount: 14494
Tax Year: 2024
A broker reciprocity listing courtesy: 27NORTH REALTY
Based on information provided by Stellar MLS as distributed by the MLS GRID. Information from the Internet Data Exchange is provided exclusively for consumers’ personal, non-commercial use, and such information may not be used for any purpose other than to identify prospective properties consumers may be interested in purchasing. This data is deemed reliable but is not guaranteed to be accurate by Edina Realty, Inc., or by the MLS. Edina Realty, Inc., is not a multiple listing service (MLS), nor does it offer MLS access.
Copyright 2026 Stellar MLS as distributed by the MLS GRID. All Rights Reserved.
Payment Calculator
Interest rate and annual percentage rate (APR) are based on current market conditions, are for informational purposes only, are subject to change without notice and may be subject to pricing add-ons related to property type, loan amount, loan-to-value, credit score and other variables. Estimated closing costs used in the APR calculation are assumed to be paid by the borrower at closing. If the closing costs are financed, the loan, APR and payment amounts will be higher. If the down payment is less than 20%, mortgage insurance may be required and could increase the monthly payment and APR. Contact us for details. Additional loan programs may be available. Accuracy is not guaranteed, and all products may not be available in all borrower's geographical areas and are based on their individual situation. This is not a credit decision or a commitment to lend.
Sales History & Tax Summary for 534 Estuary Shore Lane
Sales History
| Date | Price | |
|---|---|---|
| Currently not available. | ||
Tax Summary
| Tax Year | Estimated Market Value | Total Tax |
|---|---|---|
| Currently not available. | ||
Data powered by ATTOM Data Solutions. Copyright© 2026. Information deemed reliable but not guaranteed.
Schools
Schools nearby 534 Estuary Shore Lane
| Schools in attendance boundaries | Grades | Distance | Rating |
|---|---|---|---|
| Loading... | |||
| Schools nearby | Grades | Distance | Rating |
|---|---|---|---|
| Loading... | |||
Data powered by ATTOM Data Solutions. Copyright© 2026. Information deemed reliable but not guaranteed.
The schools shown represent both the assigned schools and schools by distance based on local school and district attendance boundaries. Attendance boundaries change based on various factors and proximity does not guarantee enrollment eligibility. Please consult your real estate agent and/or the school district to confirm the schools this property is zoned to attend. Information is deemed reliable but not guaranteed.
SchoolDigger ® Rating
The SchoolDigger rating system is a 1-5 scale with 5 as the highest rating. SchoolDigger ranks schools based on test scores supplied by each state's Department of Education. They calculate an average standard score by normalizing and averaging each school's test scores across all tests and grades.
Coming soon properties will soon be on the market, but are not yet available for showings.