$179,999
534 Orange Drive #27 Altamonte Springs, FL 32701 - LAKE ORIENTA
For Sale MLS# O6396188
2 beds 2 baths 1,252 sq ft Condo
Details for 534 Orange Drive #27
MLS# O6396188
Description for 534 Orange Drive #27, Altamonte Springs, FL, 32701 - LAKE ORIENTA
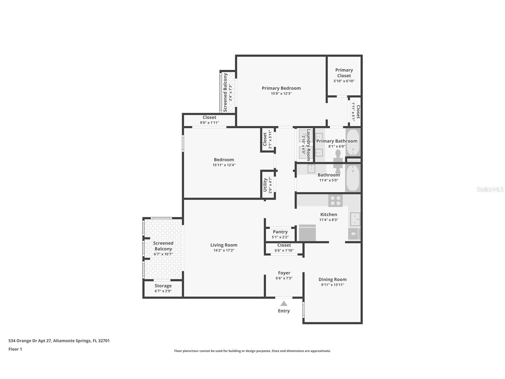
LAKE VIEWS, fresh UPDATES, and LOW MAINTENANCE LIVING come together in this well maintained 2-bedroom, 2-bath second-floor condo in the Royal Arms community of Altamonte Springs, overlooking beautiful LAKE ORIENTA! Major updates include a NEW A/C (2026) and UPDATED ELECTRICAL PANEL (2026), plus a newer dishwasher, offering peace of mind for the next owner. The interior delivers TILE & WOOD LAMINATE FLOORING throughout combined with CROWN MOLDING to create a clean, polished look that feels both comfortable and move-in ready. The floor plan offers separate living and dining areas that flow easily into the kitchen, creating a layout that works well for both everyday living and entertaining. Sliding doors from the living room lead to a SCREENED BALCONY complete with LAKE VIEWS – the perfect spot to start the day with coffee or unwind in the evening while enjoying the view. The PRIMARY SUITE also captures beautiful views of Lake Orienta and features its own private balcony, WALK-IN CLOSET, and dedicated en-suite bath, creating a relaxing retreat at the end of the day. The second bedroom sits just across from the second full bath, making it ideal for guests, roommates, or a home office setup. Storage is plentiful throughout the home, and an additional exterior storage closet on the balcony provides space for seasonal items or outdoor gear. The condo also offers the convenience of IN-UNIT LAUNDRY and the added benefit of being a second-floor unit with no neighbors above. Living in Royal Arms means enjoying a truly low-maintenance lifestyle, with HOA fees covering exterior maintenance, grounds care, water, sewer, trash, and more. Residents also have access to an impressive lineup of amenities including multiple community pools and direct access to Lake Orienta. Whether you enjoy boating, fishing, water skiing, or simply relaxing by the water, the community offers a BOAT RAMP and boat/trailer storage, which is a rare find in the Altamonte Springs area. Location is another major highlight – you are just minutes from Altamonte Mall, Uptown Altamonte, and Crane’s Roost Park, with easy access to shopping, dining, hospitals, and entertainment. I-4 is close by, making commuting to Downtown Orlando, Lake Mary, or Winter Park quick and convenient. Whether you are looking for a full-time residence, a lock-and-leave lifestyle, or a lakeside retreat, this Royal Arms condo on Lake Orienta delivers water views, fantastic amenities, and a prime Altamonte Springs location. Call today to schedule a tour!
Listing Information
Property Type: Residential, Condominium
Status: Active
Bedrooms: 2
Bathrooms: 2
Lot Size: 0.01 Acres
Square Feet: 1,252 sq ft
Year Built: 1972
Stories: 1 Story
Construction: Block,Stucco
Subdivision: Royal Arms Condo
Foundation: Slab
County: Seminole
School Information
Elementary: Lake Orienta Elementary
Middle: Milwee Middle
High: Lyman High
Room Information
Main Floor
Bathroom 2: 5x11
Bedroom 2: 12x13
Primary Bathroom: 6x8
Primary Bedroom: 12x15
Dining Room: 10x13
Living Room: 14x17
Kitchen: 8x11
Bathrooms
Full Baths: 2
Additonal Room Information
Laundry: Laundry Closet
Interior Features
Appliances: Washer, Range, Refrigerator, Dishwasher, Disposal, Dryer, Microwave
Flooring: Laminate,Tile
Doors/Windows: Blinds, Window Treatments
Additional Interior Features: Walk-In Closet(s), Window Treatments, Crown Molding
Utilities
Water: Public
Sewer: Public Sewer
Other Utilities: Cable Available,Electricity Connected,High Speed Internet Available,Municipal Utilities,Sewer Connected,Water Connected
Cooling: Central Air
Heating: Central
Exterior / Lot Features
Roof: Other
Pool: Community
Lot View: Lake,Water
Additional Exterior/Lot Features: Lighting, Balcony, Storage, Balcony, Covered, Screened, Landscaped
Waterfront Details
Standard Water Body: LAKE ORIENTA
Water Front Features: Lake Privileges
Community Features
Community Features: Pool, Sidewalks, Lake, Clubhouse, Waterfront, Boat Facilities, Fishing, Water Access, Community Mailbox
HOA Dues Include: Trash, Recreation Facilities, Water, Maintenance Grounds, Maintenance Structure, Pool(s), Sewer, Association Management
Driving Directions
From FL-436 E, turn right onto Essex Ave, turn left onto Orange Dr, turn right, turn right, turn left. Home will be on the left.
Financial Considerations
Terms: Cash,Conventional
Tax/Property ID: 13-21-29-522-5340-0270
Tax Amount: 2740
Tax Year: 2025
A broker reciprocity listing courtesy: WEMERT GROUP REALTY LLC
Based on information provided by Stellar MLS as distributed by the MLS GRID. Information from the Internet Data Exchange is provided exclusively for consumers’ personal, non-commercial use, and such information may not be used for any purpose other than to identify prospective properties consumers may be interested in purchasing. This data is deemed reliable but is not guaranteed to be accurate by Edina Realty, Inc., or by the MLS. Edina Realty, Inc., is not a multiple listing service (MLS), nor does it offer MLS access.
Copyright 2026 Stellar MLS as distributed by the MLS GRID. All Rights Reserved.
Payment Calculator
Interest rate and annual percentage rate (APR) are based on current market conditions, are for informational purposes only, are subject to change without notice and may be subject to pricing add-ons related to property type, loan amount, loan-to-value, credit score and other variables. Estimated closing costs used in the APR calculation are assumed to be paid by the borrower at closing. If the closing costs are financed, the loan, APR and payment amounts will be higher. If the down payment is less than 20%, mortgage insurance may be required and could increase the monthly payment and APR. Contact us for details. Additional loan programs may be available. Accuracy is not guaranteed, and all products may not be available in all borrower's geographical areas and are based on their individual situation. This is not a credit decision or a commitment to lend.
Sales History & Tax Summary for 534 Orange Drive #27
Sales History
| Date | Price | |
|---|---|---|
| Currently not available. | ||
Tax Summary
| Tax Year | Estimated Market Value | Total Tax |
|---|---|---|
| Currently not available. | ||
Data powered by ATTOM Data Solutions. Copyright© 2026. Information deemed reliable but not guaranteed.
Schools
Schools nearby 534 Orange Drive #27
| Schools in attendance boundaries | Grades | Distance | Rating |
|---|---|---|---|
| Loading... | |||
| Schools nearby | Grades | Distance | Rating |
|---|---|---|---|
| Loading... | |||
Data powered by ATTOM Data Solutions. Copyright© 2026. Information deemed reliable but not guaranteed.
The schools shown represent both the assigned schools and schools by distance based on local school and district attendance boundaries. Attendance boundaries change based on various factors and proximity does not guarantee enrollment eligibility. Please consult your real estate agent and/or the school district to confirm the schools this property is zoned to attend. Information is deemed reliable but not guaranteed.
SchoolDigger ® Rating
The SchoolDigger rating system is a 1-5 scale with 5 as the highest rating. SchoolDigger ranks schools based on test scores supplied by each state's Department of Education. They calculate an average standard score by normalizing and averaging each school's test scores across all tests and grades.
Coming soon properties will soon be on the market, but are not yet available for showings.