540 77th Avenue Saint Pete Beach, FL 33706
For Sale MLS# TB8441703
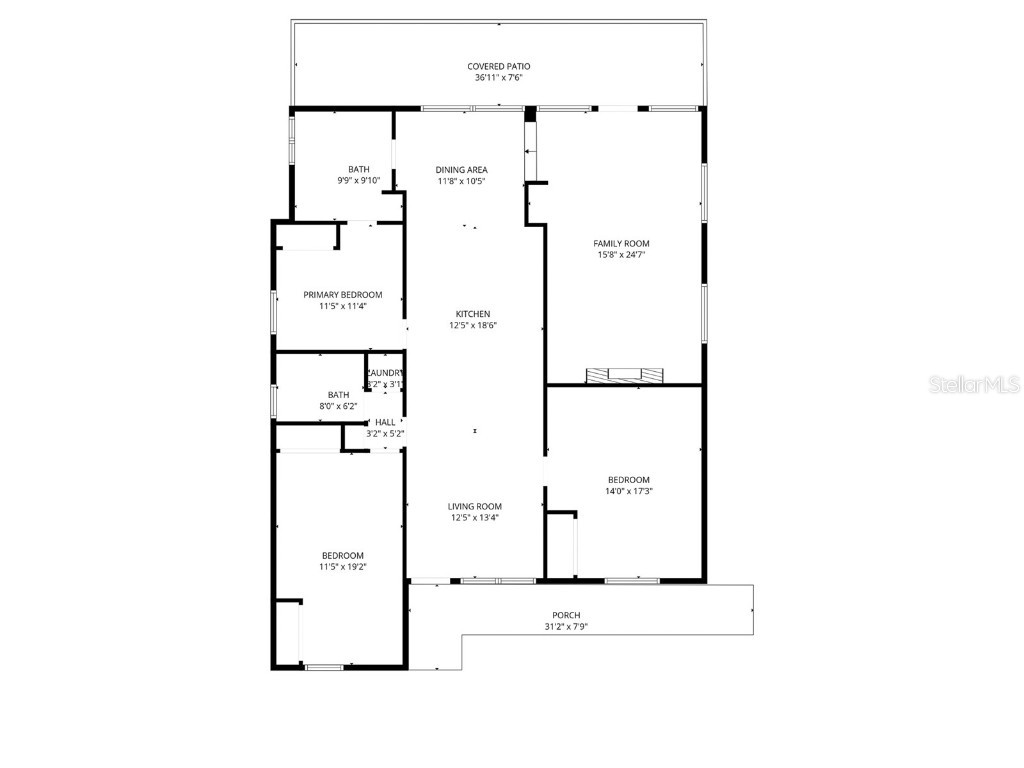
3 beds 2 baths 1,762 sq ft Single Family
Details for 540 77th Avenue
MLS# TB8441703
Description for 540 77th Avenue, Saint Pete Beach, FL, 33706
PRICE REDUCTION!!ABSOLUTELY STUNNING & RECENTLY renovated! This 3 bed 2 bath single story home is located only 1.5 blocks from the gulf in St Pete Beach (on the west/beachside not intercoastal)! This home has been very thoughtfully and beautifully designed & FULLY updated, it includes 1750+ sq ft, large backyard with LOW maintenance artificial turf and amazing tropical landscaping. Fully permitted improvements include impact doors and windows, roof replacement, full house electrical rewire & plumbing system replacement, chevron pattern plank luxury vinyl floors, and new insulation. The kitchen boasts lovely quartz countertops, a large 10 foot island, high quality white shaker cabinets, an open floating shelf layout, and new stainless steel appliances. Bathrooms will turn heads with floor to ceiling tile, bluetooth equipped exhaust fans with speakers, custom shower glass, & new fixtures, high ceiling with a skylight above the master shower and the elegant free-standing tub. In the spacious primary bedroom, enjoy separate his & her closets and laundry just steps away (new stackable washer/dryer). Moving to the large family room is the ULTIMATE entertaining space with a bumped out TV wall, electric fireplace, bar, and outdoor patio access. The AC and ducts have also been fully replaced and condenser has been lifted to new code. The backyard is a show stopper with a house-width covered patio/deck, rebuilt railings, and lots of privacy as you look out onto the LARGE fenced in & open backyard PERFECT for entertaining & playing (note plenty of room for a pool & electricity is coming from underground) enjoy your private fenced in oasis with low maintenance landscaping including artificial turf, oyster shell beds, and tropical palms/plants including an irrigation system. The front of the home features an inviting covered porch the with beautiful pine wrapped beams and pavers - . On the side of the house, you have a covered storage area and plenty of room for golf cart parking. This block of 77th Ave is quiet, family friendly, and charming with views of the intercoastal but what makes it unique is you’re still close to “the action” just a few blocks away from some of the best restaurants, coffee shops, bars, breweries, & retail in the area. North of the 75th & Gulf intersection means less noise and traffic versus to the South - and West of Gulf Blvd means you’ll enjoy easier & safer beach access and notice more higher end residences and new builds. The area’s best beach, Upham Beach, is an easy golf cart, bike ride, or walk away and booming downtown St Pete is 15-20 minutes and TPA Airport is 35 minutes (25 miles). This is an incredible opportunity to live the Florida beach lifestyle!!
Listing Information
Property Type: Residential, Single Family Residence
Status: Active
Bedrooms: 3
Bathrooms: 2
Lot Size: 0.14 Acres
Square Feet: 1,762 sq ft
Year Built: 1940
Stories: 1 Story
Construction: Wood Siding,Wood Frame
Construction Display: New Construction
Subdivision: St Petersburg Beach Rep
Foundation: Pillar/Post/Pier
County: Pinellas
Construction Status: New Construction
Room Information
Main Floor
Primary Bedroom: 19x11
Kitchen: 20x13
Living Room: 21x14
Bathrooms
Full Baths: 2
Additonal Room Information
Laundry: Laundry Closet, Inside
Interior Features
Appliances: Convection Oven, Tankless Water Heater, Washer, Dishwasher, Disposal, Dryer, Microwave, Range, Refrigerator
Flooring: Luxury Vinyl
Doors/Windows: Window Treatments, Blinds
Fireplaces: Decorative
Additional Interior Features: Eat-In Kitchen, Ceiling Fan(s), Open Floorplan, Solid Surface Counters, Window Treatments
Utilities
Water: Public
Sewer: Public Sewer
Other Utilities: Cable Available,Electricity Available,Sewer Connected
Cooling: Ceiling Fan(s), Central Air
Heating: Central
Exterior / Lot Features
Parking Description: driveway, Parking Pad
Roof: Shingle
Lot Dimensions: 55x107
Fencing: Vinyl, fenced
Additional Exterior/Lot Features: French Patio Doors, Storage, Covered, Deck, Front Porch, Rear Porch
Driving Directions
Gulf Blvd to 77th Ave head west to home on left
Financial Considerations
Terms: Cash,Conventional,FHA,VA Loan
Tax/Property ID: 36-31-15-77994-073-0050
Tax Amount: 5885.28
Tax Year: 2024
A broker reciprocity listing courtesy: REALTY EXPERTS
Based on information provided by Stellar MLS as distributed by the MLS GRID. Information from the Internet Data Exchange is provided exclusively for consumers’ personal, non-commercial use, and such information may not be used for any purpose other than to identify prospective properties consumers may be interested in purchasing. This data is deemed reliable but is not guaranteed to be accurate by Edina Realty, Inc., or by the MLS. Edina Realty, Inc., is not a multiple listing service (MLS), nor does it offer MLS access.
Copyright 2025 Stellar MLS as distributed by the MLS GRID. All Rights Reserved.
Payment Calculator
Interest rate and annual percentage rate (APR) are based on current market conditions, are for informational purposes only, are subject to change without notice and may be subject to pricing add-ons related to property type, loan amount, loan-to-value, credit score and other variables. Estimated closing costs used in the APR calculation are assumed to be paid by the borrower at closing. If the closing costs are financed, the loan, APR and payment amounts will be higher. If the down payment is less than 20%, mortgage insurance may be required and could increase the monthly payment and APR. Contact us for details. Additional loan programs may be available. Accuracy is not guaranteed, and all products may not be available in all borrower's geographical areas and are based on their individual situation. This is not a credit decision or a commitment to lend.
Sales History & Tax Summary for 540 77th Avenue
Sales History
| Date | Price | Change |
|---|---|---|
| Currently not available. | ||
Tax Summary
| Tax Year | Estimated Market Value | Total Tax |
|---|---|---|
| Currently not available. | ||
Data powered by ATTOM Data Solutions. Copyright© 2025. Information deemed reliable but not guaranteed.
Schools
Schools nearby 540 77th Avenue
| Schools in attendance boundaries | Grades | Distance | Rating |
|---|---|---|---|
| Loading... | |||
| Schools nearby | Grades | Distance | Rating |
|---|---|---|---|
| Loading... | |||
Data powered by ATTOM Data Solutions. Copyright© 2025. Information deemed reliable but not guaranteed.
The schools shown represent both the assigned schools and schools by distance based on local school and district attendance boundaries. Attendance boundaries change based on various factors and proximity does not guarantee enrollment eligibility. Please consult your real estate agent and/or the school district to confirm the schools this property is zoned to attend. Information is deemed reliable but not guaranteed.
SchoolDigger ® Rating
The SchoolDigger rating system is a 1-5 scale with 5 as the highest rating. SchoolDigger ranks schools based on test scores supplied by each state's Department of Education. They calculate an average standard score by normalizing and averaging each school's test scores across all tests and grades.
Coming soon properties will soon be on the market, but are not yet available for showings.