$2,180,000
5405 Tybee Island Drive Apollo Beach, FL 33572
For Sale MLS# TB8424260
4 beds 4 baths 4,095 sq ft Single Family
Details for 5405 Tybee Island Drive
MLS# TB8424260
Description for 5405 Tybee Island Drive, Apollo Beach, FL, 33572
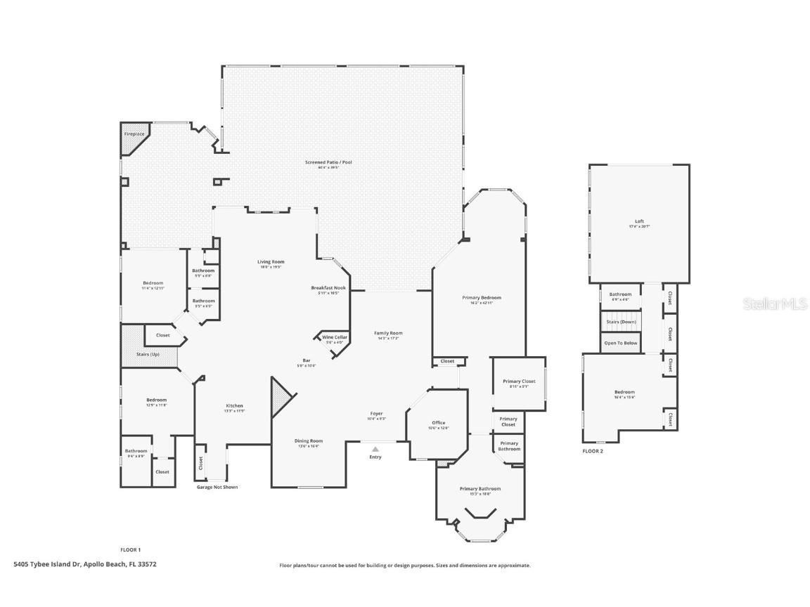
Exquisitely Updated Waterfront Estate in MiraBay’s impressive Bay Estates Experience the ultimate in Florida waterfront living with this stunning John Cannon custom home, perfectly positioned on a private cul-de-sac lot with approximately 200 feet of water frontage. Complete with a private dock and boat lift, this estate offers direct access to the lagoon and the best of the MiraBay lifestyle. Designed primarily as a single-story home, the layout blends elegance and livability. A long list of updates includes a new tile roof, new HVAC, new tankless water heater, new pool heater, wood flooring, designer lighting, and updated baths. At the heart of the home is a chef’s kitchen featuring top-of-the-line appliances, quartz countertops, custom cabinetry, an oversized island with seating, and a breakfast nook. The adjoining family room brings the outdoors in with fully retractable pocket sliding doors, opening to the lanai for seamless indoor-outdoor living. The first floor offers a thoughtful split-bedroom design: • A luxurious primary suite with sitting area, direct pool access, spa-style bath with oversized soaking tub, signature walk-in shower, and custom closets. • A full guest suite with its own private bath. • A third bedroom and a pool bath with direct lanai access, perfect for effortless entertaining and convenience. Formal living and dining rooms, plus a custom entertaining bar with wine storage, make hosting gatherings a delight. Upstairs, a remodeled guest suite with bath, spacious bonus room, and balcony provide privacy, comfort, and sweeping water views. The backyard oasis is truly exceptional. A resort-style heated pool and spa with travertine decking anchor the outdoor living space, complemented by a newly updated outdoor kitchen, covered dining area, cozy fireplace, extensive professional landscaping. Here, every evening feels special—whether you’re relaxing by the pool or taking in amazing sunsets over the lagoon. Additional features include: • Private office and wine closet • Custom closet systems • Tray ceilings • 2-car garage with epoxy floors and storage upgrades Living in MiraBay means more than just a home, it’s a lifestyle. This rare estate offers the perfect balance of luxury, comfort, and waterfront living—all set on one of the most sought-after cul-de-sacs lots in Bay Estates. As a resident of this gated resort-style coastal community, you will feel like you are on vacation every day. This home is located in the Beautiful waterfront, resort-style community of MiraBay!!!! Residents enjoy a clubhouse, resort-style pool, fitness center, tennis courts, parks, playgrounds, and a community boat lift allowing lagoon vessels up to 35 feet to access Tampa Bay. This resort-style community has a community clubhouse, heated-resort-style Olympic swimming pool, 136 ft water slide, parks, 3 playgrounds, gym, cafe with a full liquor license, basketball courts, tennis courts, fitness center, 135-acre lagoon where you can rent kayaks and paddle away, and much, much more. You will feel like you’re living in a 5-star resort! This community has it all. This home is centrally located and convenient to Tampa, Orlando, Bradenton, Sarasota, and St. Petersburg where you can experience the best Florida beaches, shopping, and entertainment. The Florida lifestyle you've been dreaming of awaits you. Paradise awaits! Call today for your private showing.
Listing Information
Property Type: Residential, Single Family Residence
Status: Active
Bedrooms: 4
Bathrooms: 4
Lot Size: 0.53 Acres
Square Feet: 4,095 sq ft
Year Built: 2007
Garage: Yes
Stories: 2 Story
Construction: Block,Stone,Stucco,Wood Frame
Construction Display: New Construction
Subdivision: Mirabay Ph 2a-4
Foundation: Slab
County: Hillsborough
Construction Status: New Construction
School Information
Elementary: Apollo Beach-Hb
Middle: Eisenhower-Hb
High: Lennard-Hb
Room Information
Main Floor
Bedroom 3: 15x15
Bedroom 2: 13x12
Bedroom 1: 13x12
Dining Room: 12.5x15
Bonus Room: 17x17
Great Room: 17x22
Living Room: 17x17
Kitchen: 14x17
Primary Bedroom: 16x29
Bathrooms
Full Baths: 4
Additonal Room Information
Laundry: Laundry Room, Inside
Interior Features
Appliances: Ice Maker, Built-In Oven, Exhaust Fan, Wine Refrigerator, Water Purifier, Bar Fridge, Convection Oven, Washer, Range, Refrigerator, Microwave, Dryer, Dishwasher, Disposal, Freezer, Cooktop, Tankless Water Heater, Range Hood, Water Softener
Flooring: Carpet,Ceramic Tile,Engineered Hardwood,Tile,Travertine
Doors/Windows: Blinds, Insulated Windows, Shutters, Window Treatments, Drapes, ENERGY STAR Qualified Windows
Fireplaces: Gas
Accessibility: Wheelchair Access
Additional Interior Features: Vaulted Ceiling(s), Eat-In Kitchen, Split Bedrooms, Walk-In Closet(s), Ceiling Fan(s), Kitchen/Family Room Combo, Open Floorplan, Wood Cabinets, Separate/Formal Living Room, Solid Surface Counters, Coffered Ceiling(s), Crown Molding, Dry Bar, High Ceilings, Tray Ceiling(s), Cathedral Ceiling(s), Window Treatments, Built-in Features, Living/Dining Room, Separate/Formal Dining Room
Utilities
Water: Public
Sewer: Public Sewer
Other Utilities: Cable Available,Electricity Connected,Natural Gas Connected,High Speed Internet Available,Municipal Utilities,Sewer Connected,Underground Utilities,Water Connected
Cooling: Ceiling Fan(s), Zoned, Central Air
Heating: Zoned, Central, Natural Gas
Exterior / Lot Features
Attached Garage: Attached Garage
Garage Spaces: 3
Parking Description: Electric Vehicle Charging Station(s), Garage Faces Side, Garage Door Opener, driveway, Garage
Roof: Tile
Pool: Heated, Association, Salt Water, Screen Enclosure, In Ground, Community, Gunite, Outside Bath Access
Lot View: Lagoon,Pool,Water
Lot Dimensions: 139.87x153
Fencing: fenced, Vinyl
Additional Exterior/Lot Features: Outdoor Grill, French Patio Doors, Sprinkler/Irrigation, Rain Gutters, Balcony, Outdoor Kitchen, Lighting, Enclosed, Screened, Balcony, Covered, Patio, Corner Lot, Flat, Level, Landscaped, Cul-de-Sac, Oversized Lot, Flood Zone
Out Buildings: Outdoor Kitchen
Waterfront Details
Water Front Features: Canal Access
Community Features
Community Features: Fishing, Fitness, Golf Carts OK, Water Access, Park, Boat Facilities, Gated, Playground, Clubhouse, Handicap Access, Street Lights, Pool, Tennis Court(s), Sidewalks, Dock
Security Features: Fire Alarm, Security System, Smoke Detector(s), Gated Community, Security Lights, Lobby Secured, Key Card Entry, Secured Garage/Parking, Security System Owned
Association Amenities: Recreation Facilities, Playground, Storage, Clubhouse, Fitness Center, Basketball Court, Sauna, Tennis Court(s), Pool, Cable TV, Elevator(s), Pickleball, Park, Maintenance Grounds, Spa/Hot Tub, Gated
HOA Dues Include: Pool(s), Recreation Facilities
Homeowners Association: Yes
HOA Dues: $173 / Annually
Driving Directions
Take I-75 South to Big Bend Rd- Exit 246. Go west on Big Bend Rd to US 41 South. Turn left onto US 41S. Follow for approximately 4 miles. Turn Right onto Mirabay Blvd. Go to visitor gate, but drivers license into kiosk, tell operator where you are going. Proceed through gate. Continue straight to roundabout. Go around roundabout(island). take 3rd right onto Tybee Island Dr. Follow Tybee Island dr to home, which in on the left at the cul-de-sac. 5405 Tybee Island Dr.
Financial Considerations
Terms: Cash,Conventional,VA Loan
Tax/Property ID: U-29-31-19-77V-000014-00009.0
Tax Amount: 44213.5
Tax Year: 2024
A broker reciprocity listing courtesy: KELLER WILLIAMS SOUTH SHORE
Based on information provided by Stellar MLS as distributed by the MLS GRID. Information from the Internet Data Exchange is provided exclusively for consumers’ personal, non-commercial use, and such information may not be used for any purpose other than to identify prospective properties consumers may be interested in purchasing. This data is deemed reliable but is not guaranteed to be accurate by Edina Realty, Inc., or by the MLS. Edina Realty, Inc., is not a multiple listing service (MLS), nor does it offer MLS access.
Copyright 2025 Stellar MLS as distributed by the MLS GRID. All Rights Reserved.
Payment Calculator
Interest rate and annual percentage rate (APR) are based on current market conditions, are for informational purposes only, are subject to change without notice and may be subject to pricing add-ons related to property type, loan amount, loan-to-value, credit score and other variables. Estimated closing costs used in the APR calculation are assumed to be paid by the borrower at closing. If the closing costs are financed, the loan, APR and payment amounts will be higher. If the down payment is less than 20%, mortgage insurance may be required and could increase the monthly payment and APR. Contact us for details. Additional loan programs may be available. Accuracy is not guaranteed, and all products may not be available in all borrower's geographical areas and are based on their individual situation. This is not a credit decision or a commitment to lend.
Sales History & Tax Summary for 5405 Tybee Island Drive
Sales History
| Date | Price | Change |
|---|---|---|
| Currently not available. | ||
Tax Summary
| Tax Year | Estimated Market Value | Total Tax |
|---|---|---|
| Currently not available. | ||
Data powered by ATTOM Data Solutions. Copyright© 2025. Information deemed reliable but not guaranteed.
Schools
Schools nearby 5405 Tybee Island Drive
| Schools in attendance boundaries | Grades | Distance | Rating |
|---|---|---|---|
| Loading... | |||
| Schools nearby | Grades | Distance | Rating |
|---|---|---|---|
| Loading... | |||
Data powered by ATTOM Data Solutions. Copyright© 2025. Information deemed reliable but not guaranteed.
The schools shown represent both the assigned schools and schools by distance based on local school and district attendance boundaries. Attendance boundaries change based on various factors and proximity does not guarantee enrollment eligibility. Please consult your real estate agent and/or the school district to confirm the schools this property is zoned to attend. Information is deemed reliable but not guaranteed.
SchoolDigger ® Rating
The SchoolDigger rating system is a 1-5 scale with 5 as the highest rating. SchoolDigger ranks schools based on test scores supplied by each state's Department of Education. They calculate an average standard score by normalizing and averaging each school's test scores across all tests and grades.
Coming soon properties will soon be on the market, but are not yet available for showings.