$399,999
5416 Frederick Lake Drive Port Orange, FL 32128
For Sale MLS# V4945897
4 beds 2 baths 1,622 sq ft Single Family
Details for 5416 Frederick Lake Drive
MLS# V4945897
Description for 5416 Frederick Lake Drive, Port Orange, FL, 32128
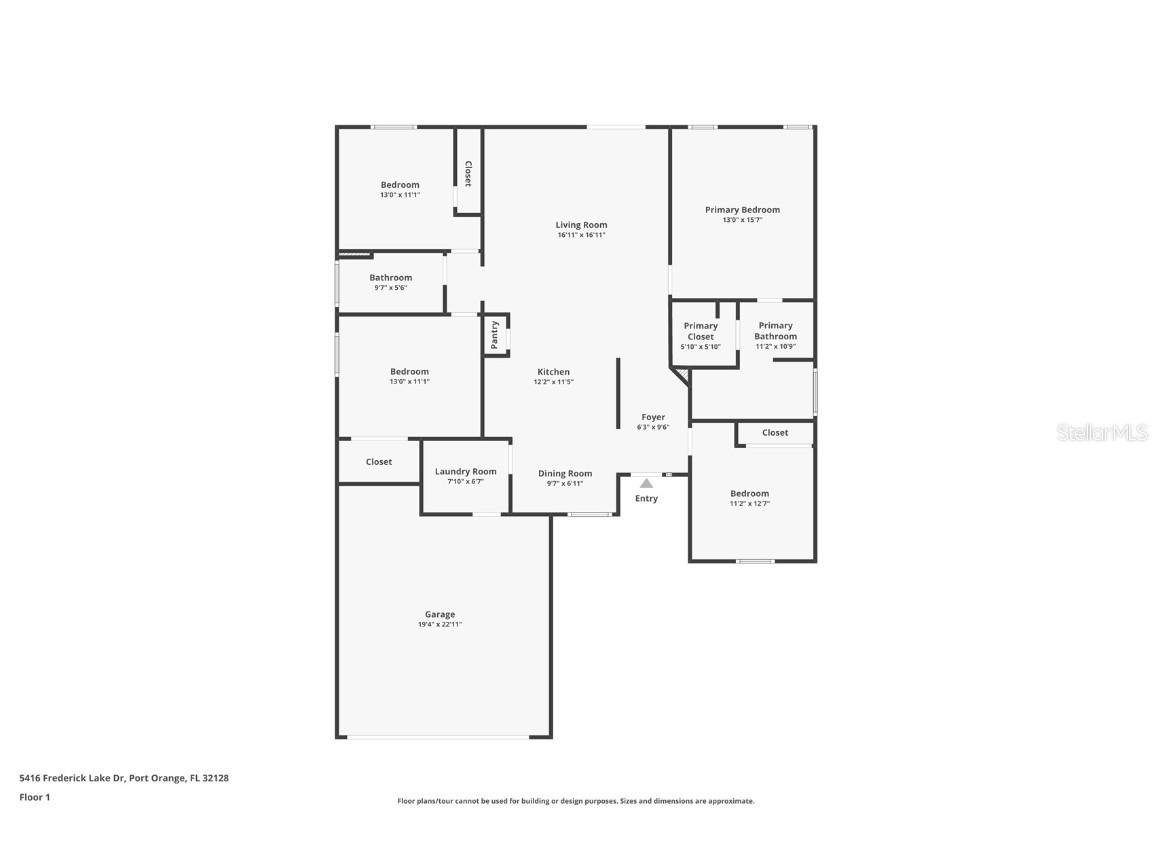
Welcome to 5416 Frederick Lake Drive, a beautifully maintained 4-bedroom, 2-bath home nestled in the sought-after Forest Lake Preserve community of Port Orange. This move-in ready gem combines comfort, convenience, and serious efficiency—just minutes from shopping, dining, the beach, I-95, and everything you could wish for. This home’s superpower is its financial and energy package: an assumable FHA mortgage at 3 percent with a current balance of $211,202 and total payment of approximately $1,668 per month (PITI, per seller; subject to lender approval and buyer qualification) paired with a 30-panel solar array installed with the new roof in 2022, producing an average of 1.22 MWh per month. In a high-rate, high-utility-cost environment, this combination offers a rare opportunity to lower both your monthly payment and your power bill. Step inside to a spacious, light-filled layout featuring vaulted ceilings and a natural flow between living, dining, and kitchen spaces. The living area opens through sliding glass doors to a screened lanai overlooking a tranquil nature preserve, offering a private backdrop for morning coffee or evening gatherings. Cat5 Ethernet with a 5 port switch will have your entire home poised for the future. The split-bedroom design provides privacy for everyone. The expansive primary suite boasts a tray ceiling, large walk-in closet, and a spa-style ensuite with dual vanities, a garden tub, and a separate walk-in shower. Three additional bedrooms offer flexibility for family, guests, or home office needs. The eat-in kitchen includes a breakfast bar, plenty of cabinet space, and an open view of the living area—perfect for everyday meals or entertaining. An indoor laundry room and two-car garage add extra convenience. Recent upgrades include: • New Roof (2022) with 20-year workmanship and 50-year manufacturer warranties • 30 Solar Panels (2022) producing an average of 1.22 MWh per month, dramatically reducing energy costs • Wrap-around Gutters (2022) • HVAC System (2019) Set within a quiet, family-friendly neighborhood, this home backs directly to a protected nature preserve, giving you both peace and privacy with easy access to everything Port Orange has to offer. Combined with the assumable 3 percent FHA loan and high-output solar system, this home delivers an exceptional value and a real financial edge for the right buyer.
Listing Information
Property Type: Residential, Single Family Residence
Status: Active
Bedrooms: 4
Bathrooms: 2
Lot Size: 0.14 Acres
Square Feet: 1,622 sq ft
Year Built: 2004
Garage: Yes
Stories: 1 Story
Construction: Block,Stucco
Subdivision: Forest Lake Preserve Ph 03
Foundation: Slab
County: Volusia
School Information
Elementary: Sweetwater Elem
Middle: Silver Sands Middle
High: Atlantic High
Room Information
Main Floor
Laundry: 7x6
Porch: 25x10
Living Room: 16.5x15.5
Kitchen: 11x18
Bedroom 4: 10.5x10
Bedroom 3: 10.5x12.25
Bedroom 2: 10x10
Primary Bathroom: 10.75x10
Primary Bedroom: 12.25x14.5
Bathrooms
Full Baths: 2
Additonal Room Information
Laundry: Inside, Laundry Room
Interior Features
Appliances: Electric Water Heater, Microwave, Range, Refrigerator, Dishwasher, Disposal
Flooring: Carpet,Ceramic Tile
Doors/Windows: Window Treatments, Drapes
Additional Interior Features: Eat-In Kitchen, Vaulted Ceiling(s), Ceiling Fan(s), Window Treatments, Split Bedrooms, Walk-In Closet(s), Open Floorplan, Kitchen/Family Room Combo
Utilities
Water: Public
Sewer: Public Sewer
Other Utilities: Cable Connected,Electricity Connected,Municipal Utilities,Sewer Connected,Water Connected
Cooling: Ceiling Fan(s), Central Air
Heating: Electric, Heat Pump, Central
Exterior / Lot Features
Attached Garage: Attached Garage
Garage Spaces: 2
Roof: Shingle
Lot Dimensions: 55x110
Additional Exterior/Lot Features: Rain Gutters, Sprinkler/Irrigation, Screened, Covered, Landscaped
Community Features
Community Features: Sidewalks
Homeowners Association: Yes
HOA Dues: $440 / Annually
Driving Directions
I-95 South to Exit 256, Merge on to FL-421 W/Taylor Rd, Turn right onto Forest Preserve Blvd, Turn right onto Ward Lake Dr, Turn left onto Chorpash Ln, Turn right onto Frederick Lake Drive, House will be on the right.
Financial Considerations
Terms: Assumable,Cash,Conventional,FHA,VA Loan
Tax/Property ID: 6224-05-00-1830
Tax Amount: 4073.24
Tax Year: 2024
A broker reciprocity listing courtesy: ADAMS, CAMERON & CO., REALTORS
Based on information provided by Stellar MLS as distributed by the MLS GRID. Information from the Internet Data Exchange is provided exclusively for consumers’ personal, non-commercial use, and such information may not be used for any purpose other than to identify prospective properties consumers may be interested in purchasing. This data is deemed reliable but is not guaranteed to be accurate by Edina Realty, Inc., or by the MLS. Edina Realty, Inc., is not a multiple listing service (MLS), nor does it offer MLS access.
Copyright 2025 Stellar MLS as distributed by the MLS GRID. All Rights Reserved.
Payment Calculator
Interest rate and annual percentage rate (APR) are based on current market conditions, are for informational purposes only, are subject to change without notice and may be subject to pricing add-ons related to property type, loan amount, loan-to-value, credit score and other variables. Estimated closing costs used in the APR calculation are assumed to be paid by the borrower at closing. If the closing costs are financed, the loan, APR and payment amounts will be higher. If the down payment is less than 20%, mortgage insurance may be required and could increase the monthly payment and APR. Contact us for details. Additional loan programs may be available. Accuracy is not guaranteed, and all products may not be available in all borrower's geographical areas and are based on their individual situation. This is not a credit decision or a commitment to lend.
Sales History & Tax Summary for 5416 Frederick Lake Drive
Sales History
| Date | Price | Change |
|---|---|---|
| Currently not available. | ||
Tax Summary
| Tax Year | Estimated Market Value | Total Tax |
|---|---|---|
| Currently not available. | ||
Data powered by ATTOM Data Solutions. Copyright© 2025. Information deemed reliable but not guaranteed.
Schools
Schools nearby 5416 Frederick Lake Drive
| Schools in attendance boundaries | Grades | Distance | Rating |
|---|---|---|---|
| Loading... | |||
| Schools nearby | Grades | Distance | Rating |
|---|---|---|---|
| Loading... | |||
Data powered by ATTOM Data Solutions. Copyright© 2025. Information deemed reliable but not guaranteed.
The schools shown represent both the assigned schools and schools by distance based on local school and district attendance boundaries. Attendance boundaries change based on various factors and proximity does not guarantee enrollment eligibility. Please consult your real estate agent and/or the school district to confirm the schools this property is zoned to attend. Information is deemed reliable but not guaranteed.
SchoolDigger ® Rating
The SchoolDigger rating system is a 1-5 scale with 5 as the highest rating. SchoolDigger ranks schools based on test scores supplied by each state's Department of Education. They calculate an average standard score by normalizing and averaging each school's test scores across all tests and grades.
Coming soon properties will soon be on the market, but are not yet available for showings.