$383,550
Off-Market Date: 01/26/20265449 Queens Drive NW Rochester, MN 55901
Pending MLS# 7002069
3 beds 3 baths 1,772 sq ft Townhouse/Twinhome
Details for 5449 Queens Drive NW
MLS# 7002069
Description for 5449 Queens Drive NW, Rochester, MN, 55901
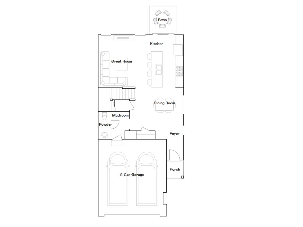
This end unit home is under construction and will be complete in February! Welcome to this stunning home, boasting a spacious two-car garage and a stylish kitchen complete with stainless steel appliances, a kitchen island and a cozy fireplace. The main floor features an open-concept layout, perfect for gatherings, with a welcoming family room and a dining area suited for every occasion. Upstairs, three well-appointed bedrooms, including a private owner's suite, provide comfortable retreats for the whole family. With its highly functional layout and modern features, this home is sure to attract attention - don't miss your chance to make it yours, as homes like this one won't stay on the market long. The home also features a low maintenance yard, adding to its appeal.Now selling in Rochester, MN, The Ponds of Highland Hills is a beautiful community featuring new single-family homes and twin homes. Nestled around a scenic onsite pond, this neighborhood offers a peaceful setting with thoughtfully designed homes for modern living.
Listing Information
Property Type: Residential, Side by Side
Status: Pending
Bedrooms: 3
Bathrooms: 3
Lot Size: 0.07 Acres
Square Feet: 1,772 sq ft
Year Built: 2025
Foundation: 777 sq ft
Garage: Yes
Stories: 2 Stories
Property Attached: Yes
Date Available: 2/28/2026
Construction Display: New Construction
Completion date: 2026-02-28T06:00:00Z
Subdivision: Ponds Of Highland Hills
Builder: LENNAR
County: Olmsted
Days On Market: 35
Construction Status: Under Construc/Spec Homes
School Information
District: 535 - Rochester
Elementary: George Gibbs
Middle: Dakota
High: John Marshall
Room Information
Main Floor
Dining Room: 14x9
Kitchen: 11x15
Living Room: 13x15
Upper Floor
Bedroom 1: 14x17
Bedroom 2: 13x10
Bedroom 3: 10x12
Bathrooms
Full Baths: 1
3/4 Baths: 1
1/2 Baths: 1
Additonal Room Information
Family: Great Room,Main Level
Dining: Informal Dining Room,Kitchen/Dining Room
Laundry: Washer Hookup, Laundry Room, Upper Level, Gas Dryer Hookup
Bath Description: Double Sink,3/4 Primary,Main Floor 1/2 Bath,Private Primary,Upper Level Full Bath
Interior Features
Square Footage above: 1,772 sq ft
Appliances: Stainless Steel Appliances, Gas Water Heater, Microwave, Range, Refrigerator, Air-To-Air Exchanger, Dishwasher, Disposal, Furnace Humidifier
Basement: Poured Concrete
Fireplaces: 1, Electric, Family Room
Additional Interior Features: Indoor Sprinklers, 3 BR on One Level, Paneled Doors, 2nd Floor Laundry, Walk-In Closet, Washer/Dryer Hookup, Kitchen Center Island, Primary Bdr Suite
Utilities
Water: City Water/Connected
Sewer: City Sewer/Connected
Cooling: Central
Heating: Forced Air, Natural Gas
Exterior / Lot Features
Attached Garage: Attached Garage
Garage Spaces: 2
Parking Description: Garage Door Opener, Driveway - Concrete, Attached Garage, Garage Sq Ft - 428.0
Exterior: Brick/Stone, Vinyl
Roof: Age 8 Years or Less, Asphalt Shingles
Lot Dimensions: TBD
Zoning: Residential-Single Family
Additional Exterior/Lot Features: Patio, Porch, End Unit, In-Ground Sprinkler, Sod Included in Price, Underground Utilities, Road Frontage - City, Curbs, Paved Streets
Community Features
HOA Dues Include: Sanitation, Snow Removal, Professional Mgmt, Outside Maintenance, Lawn Care
Homeowners Association: Yes
Association Name: Infinity Real Estate & Management Group
HOA Dues: $297 / Monthly
Driving Directions
Get on US-14 W/US-52 N/US-63 N from E Frontage Rd. Continue on US-52 N/US-63 N to 55th St NW. Continue on 55th St NW. Drive to Noble Rd NW.
Financial Considerations
Covenants/Deed Restrictions: Other
Tax/Property ID: TBD
Tax Year: 2025
HomeStead Description: Non-Homesteaded
A broker reciprocity listing courtesy: Lennar Sales Corp
The data relating to real estate for sale on this web site comes in part from the Broker Reciprocity℠ Program of the Regional Multiple Listing Service of Minnesota, Inc. Real estate listings held by brokerage firms other than Edina Realty, Inc. are marked with the Broker Reciprocity℠ logo or the Broker Reciprocity℠ thumbnail and detailed information about them includes the name of the listing brokers. Edina Realty, Inc. is not a Multiple Listing Service (MLS), nor does it offer MLS access. This website is a service of Edina Realty, Inc., a broker Participant of the Regional Multiple Listing Service of Minnesota, Inc. IDX information is provided exclusively for consumers personal, non-commercial use and may not be used for any purpose other than to identify prospective properties consumers may be interested in purchasing. Open House information is subject to change without notice. Information deemed reliable but not guaranteed.
Copyright 2026 Regional Multiple Listing Service of Minnesota, Inc. All Rights Reserved.
Sales History & Tax Summary for 5449 Queens Drive NW
Sales History
| Date | Price | |
|---|---|---|
| Currently not available. | ||
Tax Summary
| Tax Year | Estimated Market Value | Total Tax |
|---|---|---|
| Currently not available. | ||
Data powered by ATTOM Data Solutions. Copyright© 2026. Information deemed reliable but not guaranteed.
Schools
Schools nearby 5449 Queens Drive NW
| Schools in attendance boundaries | Grades | Distance | Rating |
|---|---|---|---|
| Loading... | |||
| Schools nearby | Grades | Distance | Rating |
|---|---|---|---|
| Loading... | |||
Data powered by ATTOM Data Solutions. Copyright© 2026. Information deemed reliable but not guaranteed.
The schools shown represent both the assigned schools and schools by distance based on local school and district attendance boundaries. Attendance boundaries change based on various factors and proximity does not guarantee enrollment eligibility. Please consult your real estate agent and/or the school district to confirm the schools this property is zoned to attend. Information is deemed reliable but not guaranteed.
SchoolDigger ® Rating
The SchoolDigger rating system is a 1-5 scale with 5 as the highest rating. SchoolDigger ranks schools based on test scores supplied by each state's Department of Education. They calculate an average standard score by normalizing and averaging each school's test scores across all tests and grades.
Coming soon properties will soon be on the market, but are not yet available for showings.