5458 Summit Glen Bradenton, FL 34203
Pending MLS# A4668165
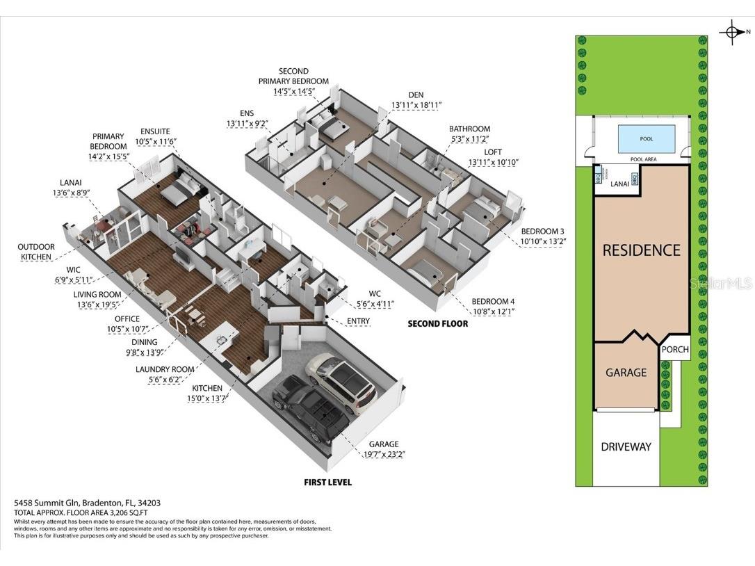
4 beds 4 baths 3,057 sq ft Single Family
Details for 5458 Summit Glen
MLS# A4668165
Description for 5458 Summit Glen, Bradenton, FL, 34203
Under contract-accepting backup offers. Welcome to The Heights at Grandview, a prestigious gated community where elegance and modern comfort come together in perfect harmony to create a lifestyle unlike any other. Nestled in one of the most picturesque and sought-after neighborhoods, this stunning residence captures the essence of refined living while offering the warmth and functionality that make a house feel like home. Step inside and be greeted by an inviting ambiance, highlighted by freshly painted interiors and newly installed luxury vinyl flooring that flows seamlessly throughout. The expansive kitchen serves as the heart of the home, featuring a gas cooktop, wall-mounted oven, pantry, striking backsplash, and generous counter space ideal for cooking and gathering. You will love the added bonus space downstairs that can be a man cave, den, or playroom. The opportunities are endless! The open-concept layout connects the kitchen to the dining and living areas, where large sliding glass doors frame the view of your private backyard retreat. Outdoors, discover a sparkling pool surrounded by beautiful brick pavers, a fully equipped outdoor kitchen, and a fenced backyard that makes entertaining effortless. Whether hosting friends for a summer cookout or enjoying a quiet evening under the stars, this fenced-in backyard oasis is designed for comfort and connection. Inside, the home offers the desirable double master suite option, with one suite conveniently located on the first floor and another upstairs, perfect for guests or multigenerational living. Each suite features dual vanities, a walk-in shower, and spacious closets that provide both luxury and practicality. Upstairs, a large bonus room and loft area create endless possibilities for relaxation or recreation. Whether you envision a media room, home office, play space, or reading nook, this flexible design adapts beautifully to your lifestyle. Two additional bedrooms complete the upper level, providing plenty of space for family or guests. Every detail of this home has been carefully curated for both comfort and elegance. Residents of The Heights at Grandview enjoy access to exclusive community amenities, including a private pool, basketball court, playground, and dog park, as well as opportunities for kayaking and paddle boarding on nearby Ward Lake. Best of all, the home backs directly to Mount Tumelo, a breathtaking, resident-only nature preserve featuring scenic walking trails, exercise stations, and serene overlooks. This exceptional home offers more than just a place to live—it offers a lifestyle defined by luxury, beauty, and the tranquility of nature. Experience life at The Heights at Grandview and discover what it truly means to live above it all.
Listing Information
Property Type: Residential, Single Family Residence
Status: Pending
Bedrooms: 4
Bathrooms: 4
Lot Size: 0.15 Acres
Square Feet: 3,057 sq ft
Year Built: 2022
Garage: Yes
Stories: 2 Story
Construction: Block,Stucco
Subdivision: Heights Ph Ii Subph B
Builder: Taylor Morrison
Foundation: Slab
County: Manatee
School Information
Elementary: Tara Elementary
Middle: Braden River Middle
High: Braden River High
Room Information
Main Floor
Great Room: 20x13.1
Primary Bedroom: 14x15.8
Kitchen: 8.6x10.6
Bathrooms
Full Baths: 3
1/2 Baths: 1
Additonal Room Information
Laundry: Washer Hookup, Gas Dryer Hookup, Laundry Room, Inside
Interior Features
Appliances: Built-In Oven, Gas Water Heater, Microwave, Refrigerator, Cooktop, Dishwasher, Disposal, Dryer, Washer
Flooring: Carpet,Luxury Vinyl
Additional Interior Features: Loft, Walk-In Closet(s), Ceiling Fan(s), Built-in Features, Split Bedrooms, Wood Cabinets, Main Level Primary, Upper Level Primary, Solid Surface Counters, Stone Counters, Open Floorplan
Utilities
Water: Public
Sewer: Public Sewer
Other Utilities: Cable Available,Cable Connected,Electricity Available,Electricity Connected,Natural Gas Available,Natural Gas Connected,Municipal Utilities,Water Available,Water Connected
Cooling: Ceiling Fan(s), Central Air
Heating: Electric, Heat Pump, Central
Exterior / Lot Features
Attached Garage: Attached Garage
Garage Spaces: 2
Parking Description: driveway
Roof: Shingle
Pool: Association, Other, Heated, Community, In Ground, Gunite
Fencing: fenced, Other
Additional Exterior/Lot Features: Storm/Security Shutters, Lighting, Sprinkler/Irrigation, Outdoor Grill, Covered, Patio, Porch, Landscaped, Buyer Approval Required, Outside City Limits
Out Buildings: Outdoor Kitchen
Community Features
Community Features: Community Mailbox, Clubhouse, Dog Park, Fitness, Golf Carts OK, Gated, Park, Pool, Sidewalks, Playground
Security Features: Gated Community, Smoke Detector(s)
Association Amenities: Recreation Facilities, Playground, Pool, Clubhouse, Fitness Center, Gated
HOA Dues Include: Association Management, Pool(s), Common Areas, Taxes, Reserve Fund
Homeowners Association: Yes
HOA Dues: $761 / Quarterly
Driving Directions
Traveling West on Honore Avenue, turn left onto Grandview Hill Court. Take your first left onto Summit Glen, home will be on the left.
Financial Considerations
Terms: Cash,Conventional,FHA,VA Loan
Tax/Property ID: 1878833859
Tax Amount: 7015.01
Tax Year: 2024
A broker reciprocity listing courtesy: KELLER WILLIAMS ON THE WATER
Based on information provided by Stellar MLS as distributed by the MLS GRID. Information from the Internet Data Exchange is provided exclusively for consumers’ personal, non-commercial use, and such information may not be used for any purpose other than to identify prospective properties consumers may be interested in purchasing. This data is deemed reliable but is not guaranteed to be accurate by Edina Realty, Inc., or by the MLS. Edina Realty, Inc., is not a multiple listing service (MLS), nor does it offer MLS access.
Copyright 2026 Stellar MLS as distributed by the MLS GRID. All Rights Reserved.
Sales History & Tax Summary for 5458 Summit Glen
Sales History
| Date | Price | |
|---|---|---|
| Currently not available. | ||
Tax Summary
| Tax Year | Estimated Market Value | Total Tax |
|---|---|---|
| Currently not available. | ||
Data powered by ATTOM Data Solutions. Copyright© 2026. Information deemed reliable but not guaranteed.
Schools
Schools nearby 5458 Summit Glen
| Schools in attendance boundaries | Grades | Distance | Rating |
|---|---|---|---|
| Loading... | |||
| Schools nearby | Grades | Distance | Rating |
|---|---|---|---|
| Loading... | |||
Data powered by ATTOM Data Solutions. Copyright© 2026. Information deemed reliable but not guaranteed.
The schools shown represent both the assigned schools and schools by distance based on local school and district attendance boundaries. Attendance boundaries change based on various factors and proximity does not guarantee enrollment eligibility. Please consult your real estate agent and/or the school district to confirm the schools this property is zoned to attend. Information is deemed reliable but not guaranteed.
SchoolDigger ® Rating
The SchoolDigger rating system is a 1-5 scale with 5 as the highest rating. SchoolDigger ranks schools based on test scores supplied by each state's Department of Education. They calculate an average standard score by normalizing and averaging each school's test scores across all tests and grades.
Coming soon properties will soon be on the market, but are not yet available for showings.