5471 N Highland Park Drive Hernando, FL 34442
Pending MLS# OM722275
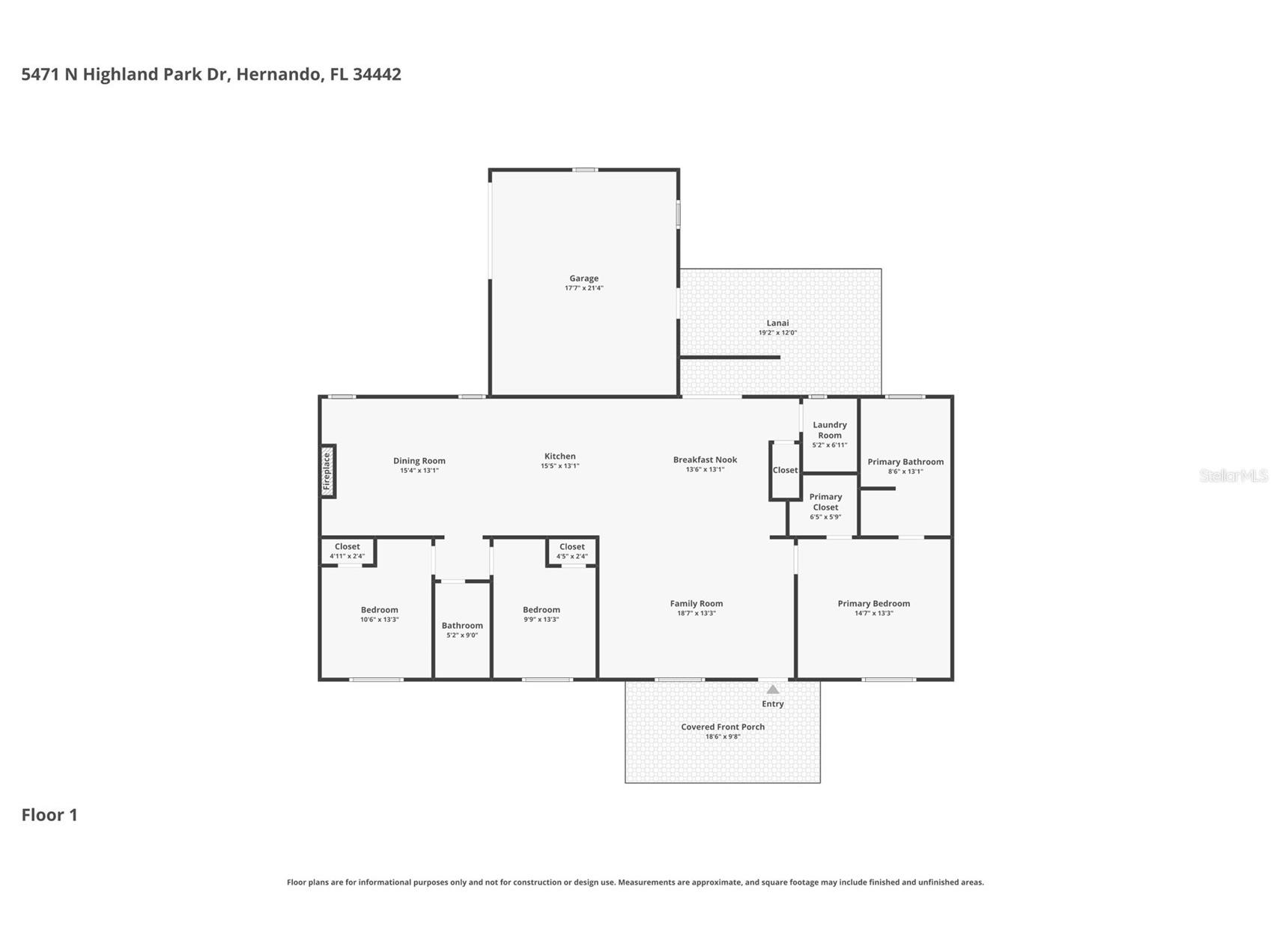
3 beds 2 baths 1,680 sq ft Single Family
Details for 5471 N Highland Park Drive
MLS# OM722275
Description for 5471 N Highland Park Drive, Hernando, FL, 34442
This 3/2/1 2022 1680 SF home is nestled on a beautiful 1.73 acre FENCED parcel conveniently situated between Crystal River and Inverness right behind the Withlacoochee State Trail. Prominent features include split floor plan, luxury vinyl plank in common areas, large farm style kitchen with island, living room with electronic fireplace with beamed ceilings and wood accents, front deck/porch, principal bedroom ensuite with both shower and garden tub, 20' x 36' pole barn, and perimeter backyard fencing. No HOA fees and regulations! Bring your RVs, boats, toys, and interests! Call today to schedule a personalized tour!
Listing Information
Property Type: Residential, Manufactured Home
Status: Pending
Bedrooms: 3
Bathrooms: 2
Lot Size: 1.73 Acres
Square Feet: 1,680 sq ft
Year Built: 2022
Garage: Yes
Stories: 1 Story
Construction: Vinyl Siding
Construction Display: New Construction
Subdivision: Forest Lake North
Foundation: Pillar/Post/Pier
County: Citrus
Construction Status: New Construction
School Information
Elementary: Central Ridge Elementary School
Middle: Citrus Springs Middle School
High: Lecanto High School
Room Information
Main Floor
Living Room:
Kitchen:
Primary Bedroom:
Bathrooms
Full Baths: 2
Additonal Room Information
Laundry: Inside, Laundry Room
Interior Features
Appliances: Electric Water Heater, Range, Refrigerator, Washer, Dishwasher, Dryer, Microwave
Flooring: Carpet,Luxury Vinyl,Vinyl
Fireplaces: Electric
Additional Interior Features: Ceiling Fan(s)
Utilities
Water: Well
Sewer: Septic Tank
Other Utilities: Cable Available,Electricity Connected,High Speed Internet Available
Cooling: Central Air, Ceiling Fan(s)
Heating: Electric, Central
Exterior / Lot Features
Attached Garage: Attached Garage
Garage Spaces: 1
Parking Description: RV Access/Parking
Roof: Shingle
Lot Dimensions: 292x364
Fencing: Wood, fenced
Additional Exterior/Lot Features: Other
Driving Directions
From US 41 (N. Florida Ave.), turn onto E. Overdrive Circle, then turn left onto N. Backdoor Dr., then turn left onto N. Highland Park Dr. Property is on the left.
Financial Considerations
Terms: Cash,Conventional,FHA,USDA Loan,VA Loan
Tax/Property ID: 19E-18S-15-0020-00000-2730
Tax Amount: 3100.48
Tax Year: 2025
A broker reciprocity listing courtesy: KELLER WILLIAMS REALTY-ELITE P
Based on information provided by Stellar MLS as distributed by the MLS GRID. Information from the Internet Data Exchange is provided exclusively for consumers’ personal, non-commercial use, and such information may not be used for any purpose other than to identify prospective properties consumers may be interested in purchasing. This data is deemed reliable but is not guaranteed to be accurate by Edina Realty, Inc., or by the MLS. Edina Realty, Inc., is not a multiple listing service (MLS), nor does it offer MLS access.
Copyright 2026 Stellar MLS as distributed by the MLS GRID. All Rights Reserved.
Sales History & Tax Summary for 5471 N Highland Park Drive
Sales History
| Date | Price | |
|---|---|---|
| Currently not available. | ||
Tax Summary
| Tax Year | Estimated Market Value | Total Tax |
|---|---|---|
| Currently not available. | ||
Data powered by ATTOM Data Solutions. Copyright© 2026. Information deemed reliable but not guaranteed.
Schools
Schools nearby 5471 N Highland Park Drive
| Schools in attendance boundaries | Grades | Distance | Rating |
|---|---|---|---|
| Loading... | |||
| Schools nearby | Grades | Distance | Rating |
|---|---|---|---|
| Loading... | |||
Data powered by ATTOM Data Solutions. Copyright© 2026. Information deemed reliable but not guaranteed.
The schools shown represent both the assigned schools and schools by distance based on local school and district attendance boundaries. Attendance boundaries change based on various factors and proximity does not guarantee enrollment eligibility. Please consult your real estate agent and/or the school district to confirm the schools this property is zoned to attend. Information is deemed reliable but not guaranteed.
SchoolDigger ® Rating
The SchoolDigger rating system is a 1-5 scale with 5 as the highest rating. SchoolDigger ranks schools based on test scores supplied by each state's Department of Education. They calculate an average standard score by normalizing and averaging each school's test scores across all tests and grades.
Coming soon properties will soon be on the market, but are not yet available for showings.