$7,200,000
550 Palmer Avenue Winter Park, FL 32789
For Sale MLS# O6349188
5 beds 7 baths 5,939 sq ft Single Family
Details for 550 Palmer Avenue
MLS# O6349188
Description for 550 Palmer Avenue, Winter Park, FL, 32789
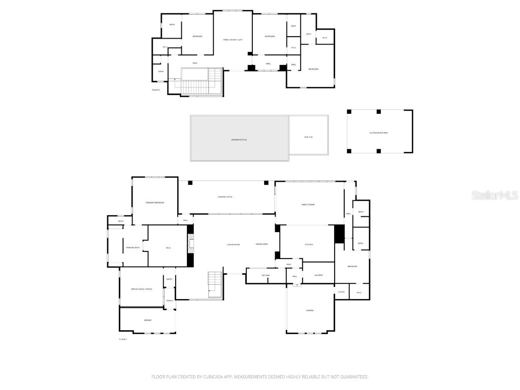
Exquisite new construction in the Heart of Winter Park perfectly positioned on an oversized lot just steps from Park Avenue’s renowned shops, fine dining, and the iconic Winter Park 9-hole golf course, this extraordinary custom residence is a showcase of timeless design and modern luxury. Conceived by acclaimed architect Dan Delong of Origins Residential Design and brought to life by Sean Wulff of Native Homes, every detail has been thoughtfully curated to impress even the most discerning buyer. The expansive floor plan encompasses 5 bedrooms, 6 full baths, and 1 half bath, blending sophistication and comfort across multiple living spaces. Highlights include a dramatic great room, inviting family room, private study, downstairs guest suite, a full bar featuring a 56-bottle wine refrigerator, and an upstairs game room ideal for both everyday living and elegant entertaining. A grand entry reveals the great room with soaring floor-to-ceiling windows and elegant Italian porcelain tile, all overlooking the serene pool and patio. The chef’s kitchen seamlessly connects to the family room and features Canadian-crafted European-style cabinetry, Wolf, Sub-Zero & Fisher & Paykel appliances (dual ovens, dual dishwashers, built-in coffee maker, wine cooler, and beverage center), quartzite countertops, a large island with bar seating, hidden walk-in pantry, plus whole house water softener and filtration systems for premium convenience. The first-floor primary suite is a true retreat with spa-inspired amenities and a custom-built walk-in closet complete with cabinetry and a spacious island. Also on the main level: a private guest suite and dedicated home office/study. Upstairs, a generous game room and three additional en suite bedrooms provide comfort and privacy for family and guests alike. Designed for seamless indoor-outdoor living, the residence boasts two covered lanais finished in Turkish Marble, disappearing screens, a summer kitchen with Urban Bonfire Cabinetry, refrigerator, and ice maker, along with a freestanding fire pit and lush tropical landscaping. The saltwater pool with sun shelf and heated gas spa ensures year-round enjoyment. Built to the highest standards, the home features R-14 block walls with core 500 insulation, open cell foam insulation in attic, Andersen windows, a flat concrete tile roof, and tongue-and-groove ceilings on all lanais. Additional luxuries include: Select European white oak wood floors and Italian porcelain flooring throughout 12’ ceilings on the main level, 10’ ceilings upstairs Cutting-edge construction for efficiency and durability
Listing Information
Property Type: Residential, Single Family Residence
Status: Active
Bedrooms: 5
Bathrooms: 7
Lot Size: 0.48 Acres
Square Feet: 5,939 sq ft
Year Built: 2025
Garage: Yes
Stories: 2 Story
Construction: Block,Stucco
Construction Display: New Construction
Subdivision: Osceola Place
Builder: Native Homes Inc
Foundation: Slab
County: Orange
Construction Status: New Construction
School Information
Elementary: Lakemont Elem
Middle: Maitland Middle
High: Winter Park High
Room Information
Main Floor
Office: 15x17
Dining Room: 21x12
Kitchen: 15x21
Family Room: 17x26
Great Room: 21x21
Porch: 35x16
Porch: 14x38
Bedroom 2: 14x14
Primary Bedroom: 20x18
Upper Floor
Bedroom 5: 17x13
Bedroom 4: 16x13
Bedroom 3: 16x13
Bonus Room: 16x13
Bathrooms
Full Baths: 6
1/2 Baths: 1
Additonal Room Information
Laundry: Laundry Room, Inside
Interior Features
Appliances: Convection Oven, Exhaust Fan, Wine Refrigerator, Range, Refrigerator, Dishwasher, Disposal, Freezer, Microwave, Tankless Water Heater, Gas Water Heater, Range Hood
Flooring: Engineered Hardwood,Porcelain Tile
Doors/Windows: Insulated Windows
Fireplaces: Other, Living Room, Electric
Additional Interior Features: Walk-In Closet(s), Eat-In Kitchen, Open Floorplan, Wood Cabinets, Kitchen/Family Room Combo, Stone Counters, High Ceilings, Split Bedrooms, Built-in Features, Living/Dining Room, Main Level Primary, Crown Molding, Dry Bar
Utilities
Water: Public
Sewer: Public Sewer
Other Utilities: Electricity Connected,Natural Gas Connected,Municipal Utilities,Sewer Connected,Underground Utilities,Water Connected
Cooling: Humidity Control, Zoned, Central Air
Heating: Zoned, Central, Heat Recovery System
Exterior / Lot Features
Attached Garage: Attached Garage
Garage Spaces: 3
Parking Description: Circular Driveway, Garage Door Opener, Garage, driveway
Roof: Concrete, Tile
Pool: In Ground, Salt Water, Gunite
Lot Dimensions: 150x130x100x50x160
Fencing: Other
Additional Exterior/Lot Features: Sprinkler/Irrigation, Rain Gutters, In-Wall Pest Control System, Lighting, Covered, Patio, Porch, Rear Porch, Landscaped, City Lot, Oversized Lot
Out Buildings: Outdoor Kitchen, Cabana
Community Features
Community Features: Street Lights, Sidewalks
Security Features: Security System, Security System Owned, Smoke Detector(s)
Driving Directions
Park Avenue to East on Stovin to right on Palmer Ave
Financial Considerations
Terms: Cash,Conventional
Tax/Property ID: 05-22-30-6468-00-011
Tax Amount: 10292
Tax Year: 2025
A broker reciprocity listing courtesy: FANNIE HILLMAN & ASSOCIATES
Based on information provided by Stellar MLS as distributed by the MLS GRID. Information from the Internet Data Exchange is provided exclusively for consumers’ personal, non-commercial use, and such information may not be used for any purpose other than to identify prospective properties consumers may be interested in purchasing. This data is deemed reliable but is not guaranteed to be accurate by Edina Realty, Inc., or by the MLS. Edina Realty, Inc., is not a multiple listing service (MLS), nor does it offer MLS access.
Copyright 2025 Stellar MLS as distributed by the MLS GRID. All Rights Reserved.
Payment Calculator
Interest rate and annual percentage rate (APR) are based on current market conditions, are for informational purposes only, are subject to change without notice and may be subject to pricing add-ons related to property type, loan amount, loan-to-value, credit score and other variables. Estimated closing costs used in the APR calculation are assumed to be paid by the borrower at closing. If the closing costs are financed, the loan, APR and payment amounts will be higher. If the down payment is less than 20%, mortgage insurance may be required and could increase the monthly payment and APR. Contact us for details. Additional loan programs may be available. Accuracy is not guaranteed, and all products may not be available in all borrower's geographical areas and are based on their individual situation. This is not a credit decision or a commitment to lend.
Sales History & Tax Summary for 550 Palmer Avenue
Sales History
| Date | Price | Change |
|---|---|---|
| Currently not available. | ||
Tax Summary
| Tax Year | Estimated Market Value | Total Tax |
|---|---|---|
| Currently not available. | ||
Data powered by ATTOM Data Solutions. Copyright© 2025. Information deemed reliable but not guaranteed.
Schools
Schools nearby 550 Palmer Avenue
| Schools in attendance boundaries | Grades | Distance | Rating |
|---|---|---|---|
| Loading... | |||
| Schools nearby | Grades | Distance | Rating |
|---|---|---|---|
| Loading... | |||
Data powered by ATTOM Data Solutions. Copyright© 2025. Information deemed reliable but not guaranteed.
The schools shown represent both the assigned schools and schools by distance based on local school and district attendance boundaries. Attendance boundaries change based on various factors and proximity does not guarantee enrollment eligibility. Please consult your real estate agent and/or the school district to confirm the schools this property is zoned to attend. Information is deemed reliable but not guaranteed.
SchoolDigger ® Rating
The SchoolDigger rating system is a 1-5 scale with 5 as the highest rating. SchoolDigger ranks schools based on test scores supplied by each state's Department of Education. They calculate an average standard score by normalizing and averaging each school's test scores across all tests and grades.
Coming soon properties will soon be on the market, but are not yet available for showings.