$850,000
Off-Market Date: 02/02/20265510 Venetian Boulevard NE Saint Petersburg, FL 33703
Pending MLS# TB8452873
3 beds 3 baths 2,154 sq ft Single Family
Details for 5510 Venetian Boulevard NE
MLS# TB8452873
Description for 5510 Venetian Boulevard NE, Saint Petersburg, FL, 33703
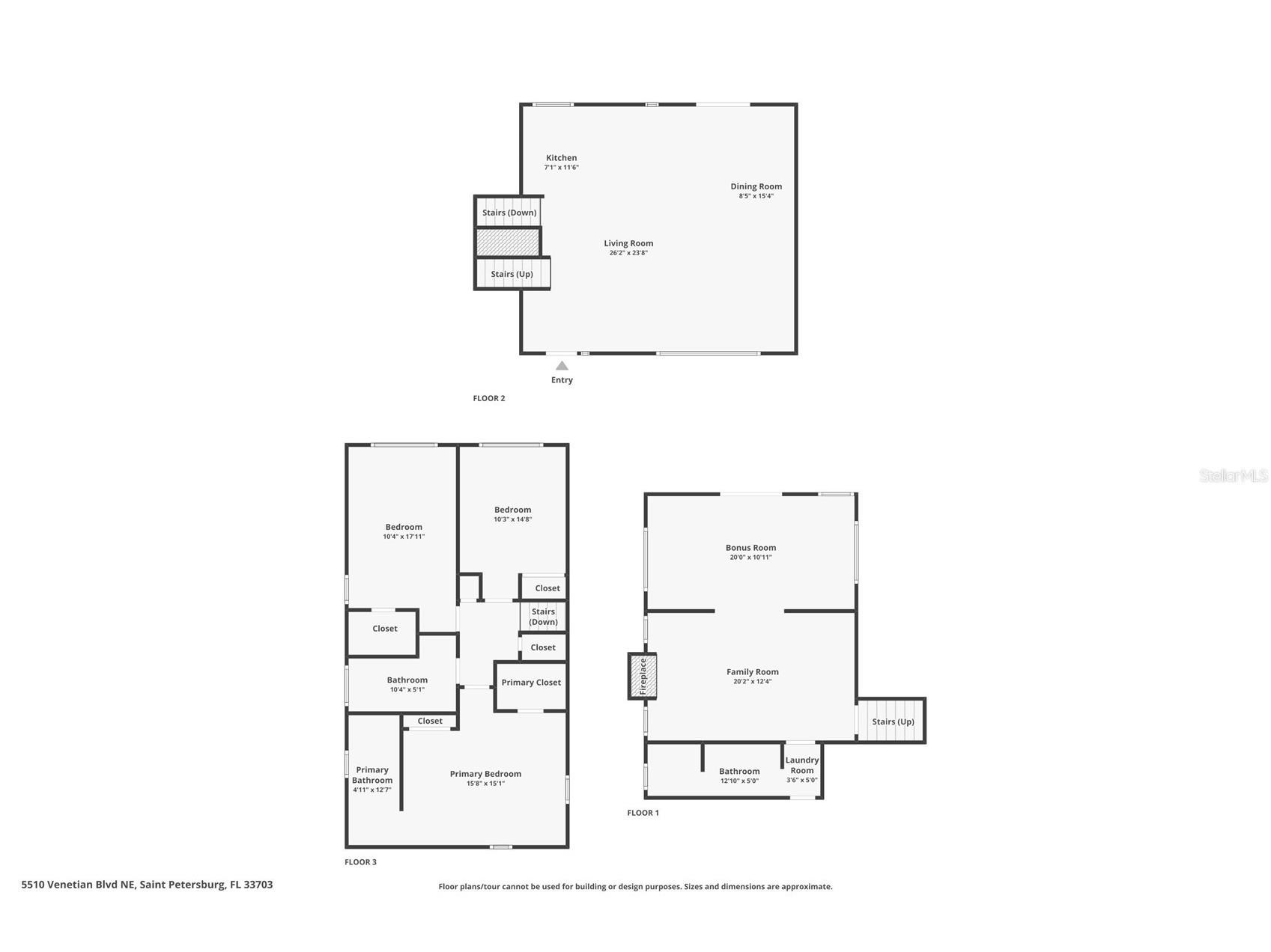
Welcome to this beautifully remodeled three-bedroom, two-and-a-half-bathroom pool home in the highly coveted Shore Acres neighborhood of St. Petersburg. The quintessential dream home, and also a great property to generate income! From the moment you arrive, you’ll feel the perfect blend of modern luxury and relaxed Florida living. Step inside to an open floor plan that seamlessly connects the living room, dining area, and the BRAND-NEW redesigned kitchen - all enhanced by a stunning vaulted shiplap ceiling and beautiful new wood flooring, sunlit through 2023 NEW WINDOWS AND DOORS. The kitchen is a true showpiece, featuring Quartz countertops, abundant cabinetry, hidden appliances, a beverage fridge, and a large island with pendant lighting, perfect for prepping, dining, and entertaining. The home offers multiple inviting living spaces, including a cozy family room with a wood-burning fireplace and wood-look tile flooring, plus a bright bonus sunroom overlooking the backyard. Upstairs, all three bedrooms provide comfort and privacy. The spacious primary suite feels like a private retreat with a spa-like ensuite bathroom featuring a two-sink stone-top vanity, new mirrors and lighting, a glass-enclosed tiled shower, and two closets, including a walk-in. A convenient laundry chute from the second floor adds practicality to everyday living. Step outside to your backyard oasis - a private, tree-lined sanctuary designed for relaxing and entertaining. Enjoy the sparkling pool with sun-shelf, a beautiful gazebo, multiple outdoor dining and lounging areas, and a wooden deck where you can fully soak up the Florida sunshine. The home also offers excellent storage throughout and a BRAND NEW 2025 HVAC for peace of mind. Perfectly located just minutes from 4th Street, you’ll have quick access to countless restaurants, shopping centers, and daily conveniences. You’re also just a short drive from downtown St. Pete, with its vibrant events, activities, museums, and waterfront parks, as well as nearby nature preserves. With modern updates, resort-style outdoor spaces, and a prime St. Pete location, this home truly captures the best of Florida living. Schedule your showing today!
Listing Information
Property Type: Residential, Single Family Residence
Status: Pending
Bedrooms: 3
Bathrooms: 3
Lot Size: 0.31 Acres
Square Feet: 2,154 sq ft
Year Built: 1973
Garage: Yes
Stories: 2 Story
Construction: Other
Subdivision: Shore Acres Bayou Grande Sec
Foundation: Slab
County: Pinellas
School Information
Elementary: Shore Acres Elementary-Pn
Middle: Meadowlawn Middle-Pn
High: Northeast High-Pn
Room Information
Main Floor
Living Room:
Kitchen:
Upper Floor
Primary Bedroom:
Bathrooms
Full Baths: 2
1/2 Baths: 1
Additonal Room Information
Laundry: Inside, Laundry Chute, Laundry Room
Interior Features
Appliances: Wine Refrigerator, Range Hood, Dishwasher, Range, Refrigerator
Flooring: Ceramic Tile,Engineered Hardwood,Tile,Wood
Fireplaces: Family Room, Wood Burning
Additional Interior Features: Vaulted Ceiling(s), Eat-In Kitchen, Ceiling Fan(s), Walk-In Closet(s), High Ceilings, Living/Dining Room, Upper Level Primary, Open Floorplan, Stone Counters
Utilities
Water: Public
Sewer: Public Sewer
Other Utilities: Cable Connected,Electricity Connected,Water Connected
Cooling: Ceiling Fan(s), Central Air
Heating: Central
Exterior / Lot Features
Attached Garage: Attached Garage
Garage Spaces: 2
Parking Description: driveway
Roof: Shingle
Pool: In Ground, Salt Water
Fencing: fenced
Additional Exterior/Lot Features: Rain Gutters, French Patio Doors, Private Yard, Lighting, Patio, Deck, Rear Porch
Out Buildings: Gazebo
Community Features
Community Features: Sidewalks
Driving Directions
East On 62 Nd Ave N, Turn Right On Bayou Grande Blvd NE, Follow To Venetian Blvd NE And Veer Right, To Address On Left
Financial Considerations
Terms: Cash,Conventional,FHA,VA Loan
Tax/Property ID: 33-30-17-81216-005-0220
Tax Amount: 11721
Tax Year: 2024
A broker reciprocity listing courtesy: EXP REALTY LLC
Based on information provided by Stellar MLS as distributed by the MLS GRID. Information from the Internet Data Exchange is provided exclusively for consumers’ personal, non-commercial use, and such information may not be used for any purpose other than to identify prospective properties consumers may be interested in purchasing. This data is deemed reliable but is not guaranteed to be accurate by Edina Realty, Inc., or by the MLS. Edina Realty, Inc., is not a multiple listing service (MLS), nor does it offer MLS access.
Copyright 2026 Stellar MLS as distributed by the MLS GRID. All Rights Reserved.
Sales History & Tax Summary for 5510 Venetian Boulevard NE
Sales History
| Date | Price | |
|---|---|---|
| Currently not available. | ||
Tax Summary
| Tax Year | Estimated Market Value | Total Tax |
|---|---|---|
| Currently not available. | ||
Data powered by ATTOM Data Solutions. Copyright© 2026. Information deemed reliable but not guaranteed.
Schools
Schools nearby 5510 Venetian Boulevard NE
| Schools in attendance boundaries | Grades | Distance | Rating |
|---|---|---|---|
| Loading... | |||
| Schools nearby | Grades | Distance | Rating |
|---|---|---|---|
| Loading... | |||
Data powered by ATTOM Data Solutions. Copyright© 2026. Information deemed reliable but not guaranteed.
The schools shown represent both the assigned schools and schools by distance based on local school and district attendance boundaries. Attendance boundaries change based on various factors and proximity does not guarantee enrollment eligibility. Please consult your real estate agent and/or the school district to confirm the schools this property is zoned to attend. Information is deemed reliable but not guaranteed.
SchoolDigger ® Rating
The SchoolDigger rating system is a 1-5 scale with 5 as the highest rating. SchoolDigger ranks schools based on test scores supplied by each state's Department of Education. They calculate an average standard score by normalizing and averaging each school's test scores across all tests and grades.
Coming soon properties will soon be on the market, but are not yet available for showings.