554 Nogales Court Kissimmee, FL 34758
For Sale MLS# S5136886
4 beds 2 baths 1,731 sq ft Single Family
Details for 554 Nogales Court
MLS# S5136886
Description for 554 Nogales Court, Kissimmee, FL, 34758
One or more photo(s) has been virtually staged. Stylish. Spacious. Fully Refreshed. This beautifully renovated 4-bedroom, 2-bathroom home at 554 Nogales Court combines modern updates with a layout designed for comfort and functionality. With fresh interior and exterior paint, new flooring throughout, and a brand-new microwave, the home feels crisp, bright, and move-in ready. Major improvements have already been taken care of — the roof was replaced in January 2024, and both the indoor and outdoor AC units were replaced in June 2023, giving peace of mind for years to come. Step through the front door into an inviting living and dining area that sets the stage for gatherings or quiet evenings in. Toward the back of the home, the kitchen opens to a generous second living area — the perfect setup for connecting with guests while cooking or relaxing. The kitchen features newer appliances, ample cabinetry, and a functional layout that flows easily into the living space. The spacious primary suite is a standout, offering a huge walk-in closet, a second built-in closet, and a private ensuite bathroom with dual sinks, a soaking tub, separate shower, and enclosed toilet. The popular split-bedroom floor plan provides privacy, with three additional bedrooms and a full bathroom located on the opposite side of the home. An oversized laundry room with built-in shelving adds extra convenience, keeping your essentials organized and out of sight. Step outside to a large covered patio, perfect for outdoor dining, lounging, or simply enjoying the Florida weather year-round. Located in the established Poinciana community, residents enjoy access to fantastic amenities, including a recreation center with a swimming pool, fitness center, and playground. The affordable monthly HOA dues also include cable and Wi-Fi, adding incredible value to everyday living. With its extensive updates, flexible floor plan, and move-in ready condition, this property offers an appealing blend of comfort and practicality — all in a welcoming Central Florida setting.
Listing Information
Property Type: Residential, Single Family Residence
Status: Active
Bedrooms: 4
Bathrooms: 2
Lot Size: 0.20 Acres
Square Feet: 1,731 sq ft
Year Built: 2004
Garage: Yes
Stories: 1 Story
Construction: Block,Stucco
Construction Display: New Construction
Subdivision: Poinciana Village 1 Nbhd 2
Foundation: Slab
County: Osceola
Construction Status: New Construction
School Information
Elementary: Koa Elementary
Middle: Discovery Intermediate
High: Liberty High
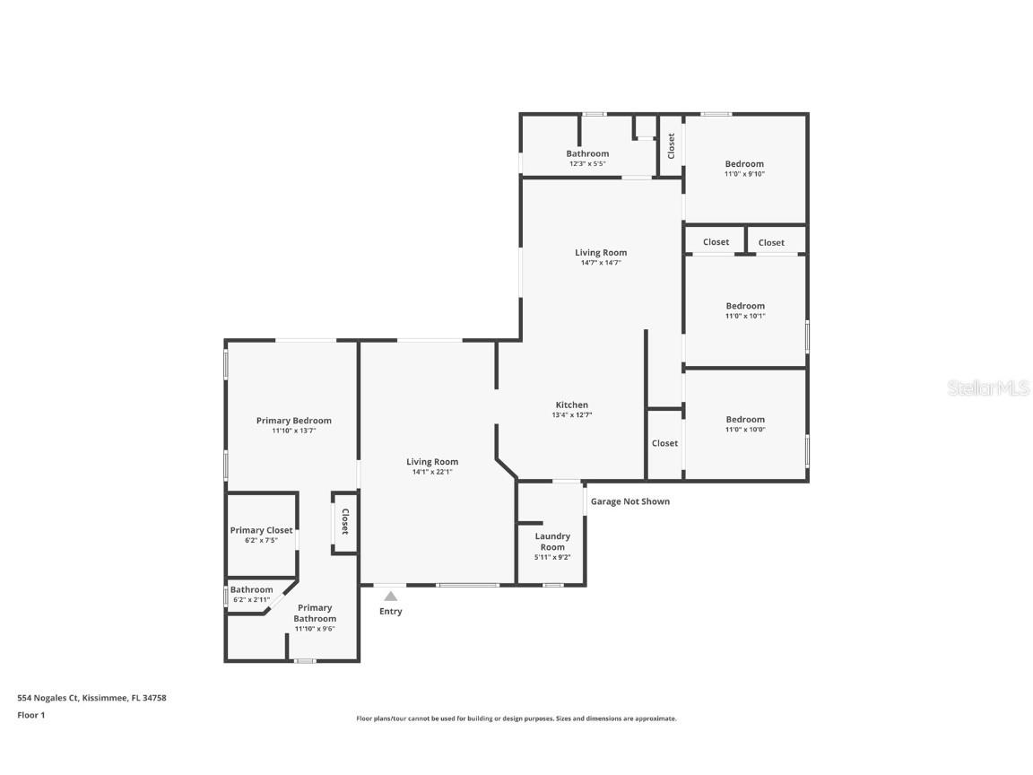
Room Information
Main Floor
Bedroom 4: 10x11
Bedroom 3: 10x11
Bedroom 2: 9x11
Primary Bedroom: 11x13
Family Room: 14x14
Kitchen: 12x13
Dining Room: 11x14
Living Room: 11x14
Bathrooms
Full Baths: 2
Additonal Room Information
Laundry: Laundry Room
Interior Features
Appliances: Electric Water Heater, Dishwasher, Microwave, Range, Refrigerator
Flooring: Laminate
Doors/Windows: Blinds, Drapes
Additional Interior Features: Eat-In Kitchen, Split Bedrooms, Walk-In Closet(s), Living/Dining Room, Open Floorplan, Separate/Formal Dining Room, Kitchen/Family Room Combo, Separate/Formal Living Room
Utilities
Water: Public
Sewer: Public Sewer
Other Utilities: Cable Connected,Electricity Connected,Municipal Utilities,Sewer Connected,Water Connected
Cooling: Central Air
Heating: Central, Electric
Exterior / Lot Features
Attached Garage: Attached Garage
Garage Spaces: 2
Roof: Shingle
Pool: Association, Community
Lot Dimensions: 159+53+159+107
Additional Exterior/Lot Features: Sprinkler/Irrigation, Rear Porch, Covered, Landscaped
Community Features
Community Features: Pool, Playground, Clubhouse
Security Features: Smoke Detector(s)
Association Amenities: Cable TV, Playground, Pool, Clubhouse, Fitness Center
HOA Dues Include: Internet, Cable TV
Homeowners Association: Yes
HOA Dues: $90 / Monthly
Driving Directions
San Lorenzo Road to Right onto Nogales Court.
Financial Considerations
Terms: Cash,Conventional,FHA,USDA Loan,VA Loan
Tax/Property ID: 25-26-28-6118-1531-0310
Tax Amount: 3594
Tax Year: 2024
A broker reciprocity listing courtesy: LA ROSA REALTY LLC
Based on information provided by Stellar MLS as distributed by the MLS GRID. Information from the Internet Data Exchange is provided exclusively for consumers’ personal, non-commercial use, and such information may not be used for any purpose other than to identify prospective properties consumers may be interested in purchasing. This data is deemed reliable but is not guaranteed to be accurate by Edina Realty, Inc., or by the MLS. Edina Realty, Inc., is not a multiple listing service (MLS), nor does it offer MLS access.
Copyright 2026 Stellar MLS as distributed by the MLS GRID. All Rights Reserved.
Payment Calculator
Interest rate and annual percentage rate (APR) are based on current market conditions, are for informational purposes only, are subject to change without notice and may be subject to pricing add-ons related to property type, loan amount, loan-to-value, credit score and other variables. Estimated closing costs used in the APR calculation are assumed to be paid by the borrower at closing. If the closing costs are financed, the loan, APR and payment amounts will be higher. If the down payment is less than 20%, mortgage insurance may be required and could increase the monthly payment and APR. Contact us for details. Additional loan programs may be available. Accuracy is not guaranteed, and all products may not be available in all borrower's geographical areas and are based on their individual situation. This is not a credit decision or a commitment to lend.
Sales History & Tax Summary for 554 Nogales Court
Sales History
| Date | Price | |
|---|---|---|
| Currently not available. | ||
Tax Summary
| Tax Year | Estimated Market Value | Total Tax |
|---|---|---|
| Currently not available. | ||
Data powered by ATTOM Data Solutions. Copyright© 2026. Information deemed reliable but not guaranteed.
Schools
Schools nearby 554 Nogales Court
| Schools in attendance boundaries | Grades | Distance | Rating |
|---|---|---|---|
| Loading... | |||
| Schools nearby | Grades | Distance | Rating |
|---|---|---|---|
| Loading... | |||
Data powered by ATTOM Data Solutions. Copyright© 2026. Information deemed reliable but not guaranteed.
The schools shown represent both the assigned schools and schools by distance based on local school and district attendance boundaries. Attendance boundaries change based on various factors and proximity does not guarantee enrollment eligibility. Please consult your real estate agent and/or the school district to confirm the schools this property is zoned to attend. Information is deemed reliable but not guaranteed.
SchoolDigger ® Rating
The SchoolDigger rating system is a 1-5 scale with 5 as the highest rating. SchoolDigger ranks schools based on test scores supplied by each state's Department of Education. They calculate an average standard score by normalizing and averaging each school's test scores across all tests and grades.
Coming soon properties will soon be on the market, but are not yet available for showings.