557 Windermere Drive Lehigh Acres, FL 33972
For Sale MLS# TB8382022
3 beds 2 baths 1,770 sq ft Single Family
Details for 557 Windermere Drive
MLS# TB8382022
Description for 557 Windermere Drive, Lehigh Acres, FL, 33972
Country Living Without the HOA Headaches! Buying or just need to rent a place? We got you covered and this home goes both ways! Tired of nosy neighbors and HOA rules longer than a CVS receipt? Welcome to your slice of freedom. This spacious 3-bedroom, 2-bath home features a large office that moonlights as a 4th bedroom—perfect for guests, hobbies, or that home gym you swear you'll use. Step into a massive living room where everyone can finally sit comfortably during game night or movie marathons. The kitchen includes an eat-in area, so you can enjoy breakfast with a view instead of crumbs in your bed (we won’t judge either way). Comfort is key—ceiling fans in all main rooms (that’s bedrooms, living room, and the office) keep the air moving and the energy bills friendly. No fans in the kitchen, laundry, or bathrooms… because, well, let’s just say some rooms are better with vents than fans. Upgrades? You bet: Well system replaced just over two years ago Brand new water heater and well pump Ample garage storage for your tools, toys, and questionable holiday decor Recently serviced and cleaned HVAC with a "slime guard" system installed to prevent build up issues in the HVAC drain line All of this sits on a private country lot just 15 minutes from Lehigh Acres shopping and 30 minutes to Fort Myers, so you're never too far from civilization—or a decent taco. No HOA. No nonsense. No nosy neighbors. Just good living. Trade in your stress for sunsets and starry skies and peaceful nights. If you just want to rent this place give us a call and we can give you the details.
Listing Information
Property Type: Residential, Single Family Residence
Status: Active
Bedrooms: 3
Bathrooms: 2
Lot Size: 0.23 Acres
Square Feet: 1,770 sq ft
Year Built: 2007
Garage: Yes
Stories: 1 Story
Construction: Block,Stucco
Subdivision: Greenbriar
Foundation: Slab
County: Lee
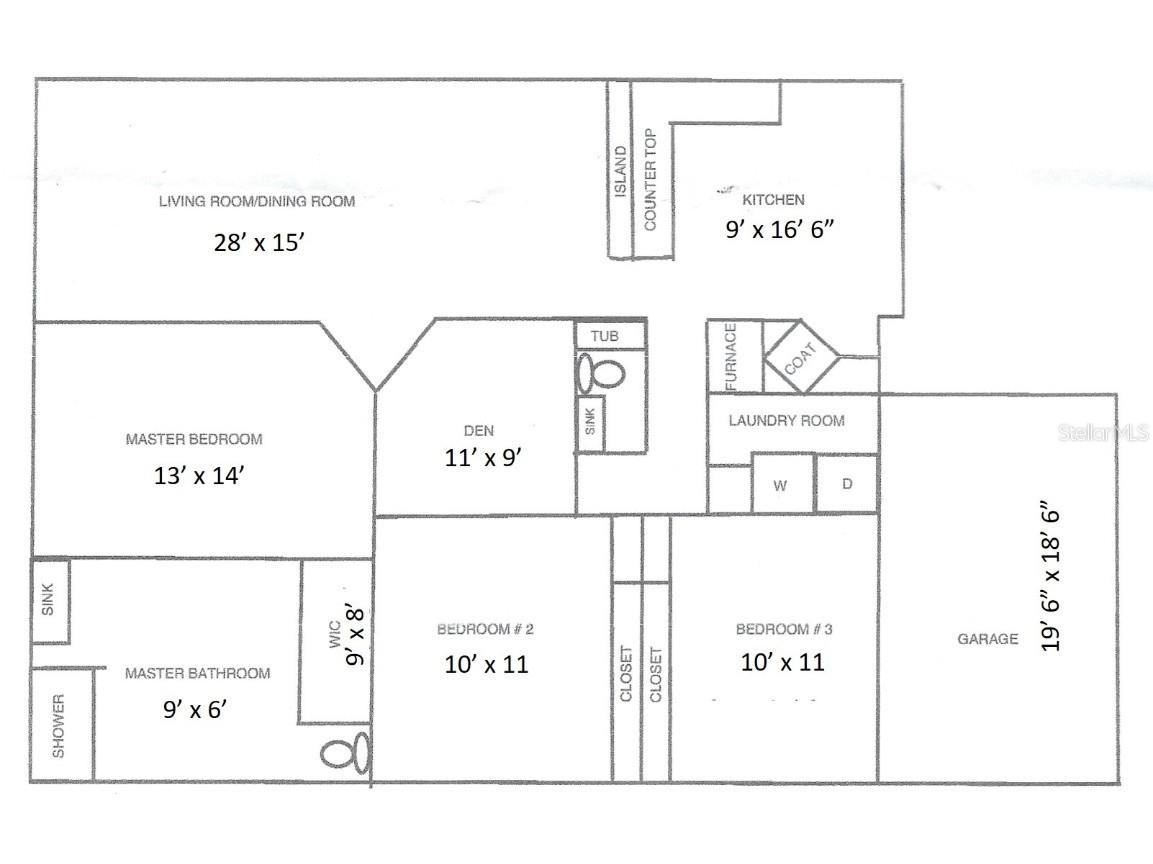
Room Information
Main Floor
Laundry: 6x8
Kitchen: 16x9
Living Room: 15x28
Bathroom 2: 7x5
Office: 9x11
Bedroom 3: 11x10
Bedroom 2: 11x10
Primary Bathroom: 6x9
Primary Bedroom: 14x13
Bathrooms
Full Baths: 2
Additonal Room Information
Laundry: Laundry Room
Interior Features
Appliances: Dishwasher, Microwave, Range
Flooring: Laminate
Additional Interior Features: Ceiling Fan(s)
Utilities
Water: Well
Sewer: Public Sewer
Other Utilities: Electricity Connected,Municipal Utilities,Sewer Connected,Water Connected
Cooling: Ceiling Fan(s), Central Air
Heating: Heat Pump
Exterior / Lot Features
Attached Garage: Attached Garage
Garage Spaces: 2
Roof: Shingle
Additional Exterior/Lot Features: Sprinkler/Irrigation, Rear Porch
Driving Directions
JOEL/LEELAND HEIGHTS BLVD W TO RICHMOND TO WINDERMERE
Financial Considerations
Terms: Cash,Conventional,FHA,VA Loan
Tax/Property ID: 05-44-27-L4-29197.0020
Tax Amount: 2997
Tax Year: 2024
A broker reciprocity listing courtesy: PALM LIFE REALTY
Based on information provided by Stellar MLS as distributed by the MLS GRID. Information from the Internet Data Exchange is provided exclusively for consumers’ personal, non-commercial use, and such information may not be used for any purpose other than to identify prospective properties consumers may be interested in purchasing. This data is deemed reliable but is not guaranteed to be accurate by Edina Realty, Inc., or by the MLS. Edina Realty, Inc., is not a multiple listing service (MLS), nor does it offer MLS access.
Copyright 2025 Stellar MLS as distributed by the MLS GRID. All Rights Reserved.
Payment Calculator
Interest rate and annual percentage rate (APR) are based on current market conditions, are for informational purposes only, are subject to change without notice and may be subject to pricing add-ons related to property type, loan amount, loan-to-value, credit score and other variables. Estimated closing costs used in the APR calculation are assumed to be paid by the borrower at closing. If the closing costs are financed, the loan, APR and payment amounts will be higher. If the down payment is less than 20%, mortgage insurance may be required and could increase the monthly payment and APR. Contact us for details. Additional loan programs may be available. Accuracy is not guaranteed, and all products may not be available in all borrower's geographical areas and are based on their individual situation. This is not a credit decision or a commitment to lend.
Sales History & Tax Summary for 557 Windermere Drive
Sales History
| Date | Price | Change |
|---|---|---|
| Currently not available. | ||
Tax Summary
| Tax Year | Estimated Market Value | Total Tax |
|---|---|---|
| Currently not available. | ||
Data powered by ATTOM Data Solutions. Copyright© 2025. Information deemed reliable but not guaranteed.
Schools
Schools nearby 557 Windermere Drive
| Schools in attendance boundaries | Grades | Distance | Rating |
|---|---|---|---|
| Loading... | |||
| Schools nearby | Grades | Distance | Rating |
|---|---|---|---|
| Loading... | |||
Data powered by ATTOM Data Solutions. Copyright© 2025. Information deemed reliable but not guaranteed.
The schools shown represent both the assigned schools and schools by distance based on local school and district attendance boundaries. Attendance boundaries change based on various factors and proximity does not guarantee enrollment eligibility. Please consult your real estate agent and/or the school district to confirm the schools this property is zoned to attend. Information is deemed reliable but not guaranteed.
SchoolDigger ® Rating
The SchoolDigger rating system is a 1-5 scale with 5 as the highest rating. SchoolDigger ranks schools based on test scores supplied by each state's Department of Education. They calculate an average standard score by normalizing and averaging each school's test scores across all tests and grades.
Coming soon properties will soon be on the market, but are not yet available for showings.