5576 Baywater Drive #5576 Tampa, FL 33615 - CANAL A
For Sale MLS# W7870419
1 beds 1 baths 856 sq ft Condo
Details for 5576 Baywater Drive #5576
MLS# W7870419
Description for 5576 Baywater Drive #5576, Tampa, FL, 33615 - CANAL A
Price just Reduced! Cash or conventional financing only. What an amazing investment opportunity - you must see this beautiful and exceptionally clean 1 bedroom (with office) 1 bathroom, apartment style condominium. Pride in ownership shows, this home features an extra-large family room, open concept kitchen with plenty of cabinet space, large master suite with walk in closet, inside laundry room and the washer and dryer are included, there's even a screened lanai. The Air conditioner and water heater have been recently replaced. The reserved parking spot is approximately 10 feet from the front door with plenty of guest parking. The low monthly HOA fee includes neighborhood security, exterior maintenance, full use of all recreational areas, club house, pool, spa, patio in community pool area, BBQ area, tennis, and 2 fitness areas / gym facilities. Water/sewer and trash are included in the HOA. Boardwalk (lit), with boat slips, directly behind condo building alongside the salt water canal - fish, kayak, go for a stroll. Residents have direct access to Canal A - that goes directly into the bay (See last picture aerial of waterway). The best part for investors, this is one of the few communities where there is NO minimum ownership requirement - for rental purposes. Close to all area amenities, including schools, colleges, medical, shopping, dining, entertainment, all major roadways, 10 minutes to Tampa Airport, 30 minutes to several renounced beaches and more. Call to schedule your private tour today, and if you have any questions, just ask.
Listing Information
Property Type: Residential, Condominium
Status: Active
Bedrooms: 1
Bathrooms: 1
Lot Size: 0.01 Acres
Square Feet: 856 sq ft
Year Built: 1987
Stories: 1 Story
Construction: Stucco
Subdivision: The Gallery At Bayport Condomi
Foundation: Slab
County: Hillsborough
School Information
Elementary: Bay Crest-Hb
Middle: Davidsen-Hb
High: Alonso-Hb
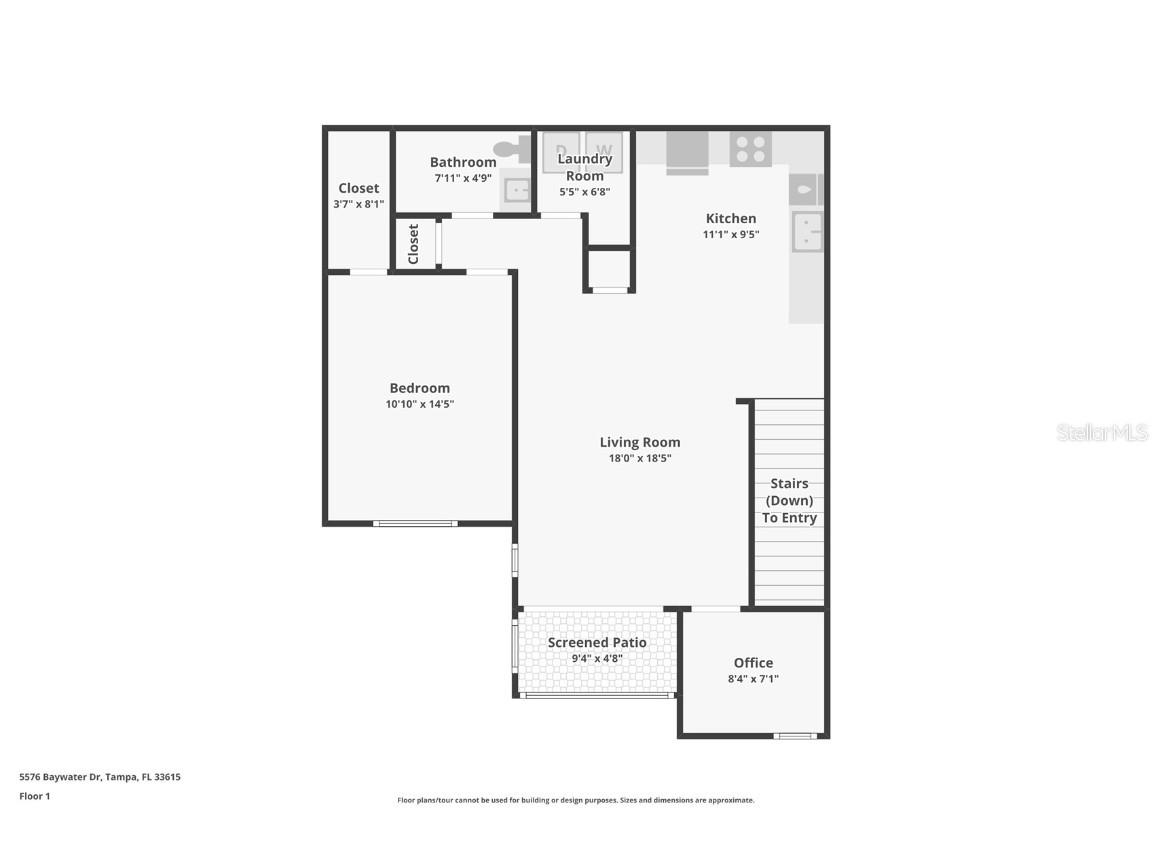
Room Information
Main Floor
Porch: 4.8x9.4
Laundry: 5.5x6.8
Office: 7.1x8.4
Primary Bedroom: 10.1x14.5
Kitchen: 9.5x11.1
Living Room: 18x18.5
Bathrooms
Full Baths: 1
Additonal Room Information
Laundry: Inside
Interior Features
Appliances: Electric Water Heater, Washer, Dishwasher, Dryer, Microwave, Range, Refrigerator
Flooring: Carpet,Linoleum
Additional Interior Features: Ceiling Fan(s), High Ceilings, Open Floorplan, Walk-In Closet(s)
Utilities
Water: Public
Sewer: Public Sewer
Other Utilities: Cable Connected,Electricity Connected,Phone Available,Sewer Connected,Underground Utilities,Water Connected
Cooling: Ceiling Fan(s), Central Air
Heating: Electric, Heat Pump, Central
Exterior / Lot Features
Roof: Shingle
Additional Exterior/Lot Features: Lighting, Tennis Court(s)
Waterfront Details
Standard Water Body: CANAL A
Water Front Features: Canal Access
Community Features
Community Features: Sidewalks, Tennis Court(s), Gated, Fitness, Water Access, Clubhouse, Dock, Community Mailbox
Security Features: Gated Community, Security Gate, Smoke Detector(s)
HOA Dues Include: Maintenance Structure, Insurance, Maintenance Grounds, Association Management, Security, Sewer, Water, Trash, Pool(s)
Driving Directions
From W. Hillsborough Ave., Turn South on W. Longboat Blvd., Right on Harborbluff Way., Right on Baywater Dr.
Financial Considerations
Terms: Cash,Conventional
Tax/Property ID: U-33-28-17-885-000000-00155.0
Tax Amount: 244.46
Tax Year: 2023
A broker reciprocity listing courtesy: WEICHERT REALTORS FL TROPICS
Based on information provided by Stellar MLS as distributed by the MLS GRID. Information from the Internet Data Exchange is provided exclusively for consumers’ personal, non-commercial use, and such information may not be used for any purpose other than to identify prospective properties consumers may be interested in purchasing. This data is deemed reliable but is not guaranteed to be accurate by Edina Realty, Inc., or by the MLS. Edina Realty, Inc., is not a multiple listing service (MLS), nor does it offer MLS access.
Copyright 2025 Stellar MLS as distributed by the MLS GRID. All Rights Reserved.
Payment Calculator
Interest rate and annual percentage rate (APR) are based on current market conditions, are for informational purposes only, are subject to change without notice and may be subject to pricing add-ons related to property type, loan amount, loan-to-value, credit score and other variables. Estimated closing costs used in the APR calculation are assumed to be paid by the borrower at closing. If the closing costs are financed, the loan, APR and payment amounts will be higher. If the down payment is less than 20%, mortgage insurance may be required and could increase the monthly payment and APR. Contact us for details. Additional loan programs may be available. Accuracy is not guaranteed, and all products may not be available in all borrower's geographical areas and are based on their individual situation. This is not a credit decision or a commitment to lend.
Sales History & Tax Summary for 5576 Baywater Drive #5576
Sales History
| Date | Price | Change |
|---|---|---|
| Currently not available. | ||
Tax Summary
| Tax Year | Estimated Market Value | Total Tax |
|---|---|---|
| Currently not available. | ||
Data powered by ATTOM Data Solutions. Copyright© 2025. Information deemed reliable but not guaranteed.
Schools
Schools nearby 5576 Baywater Drive #5576
| Schools in attendance boundaries | Grades | Distance | Rating |
|---|---|---|---|
| Loading... | |||
| Schools nearby | Grades | Distance | Rating |
|---|---|---|---|
| Loading... | |||
Data powered by ATTOM Data Solutions. Copyright© 2025. Information deemed reliable but not guaranteed.
The schools shown represent both the assigned schools and schools by distance based on local school and district attendance boundaries. Attendance boundaries change based on various factors and proximity does not guarantee enrollment eligibility. Please consult your real estate agent and/or the school district to confirm the schools this property is zoned to attend. Information is deemed reliable but not guaranteed.
SchoolDigger ® Rating
The SchoolDigger rating system is a 1-5 scale with 5 as the highest rating. SchoolDigger ranks schools based on test scores supplied by each state's Department of Education. They calculate an average standard score by normalizing and averaging each school's test scores across all tests and grades.
Coming soon properties will soon be on the market, but are not yet available for showings.