567 Venice Lane Sarasota, FL 34242
Pending MLS# A4670981
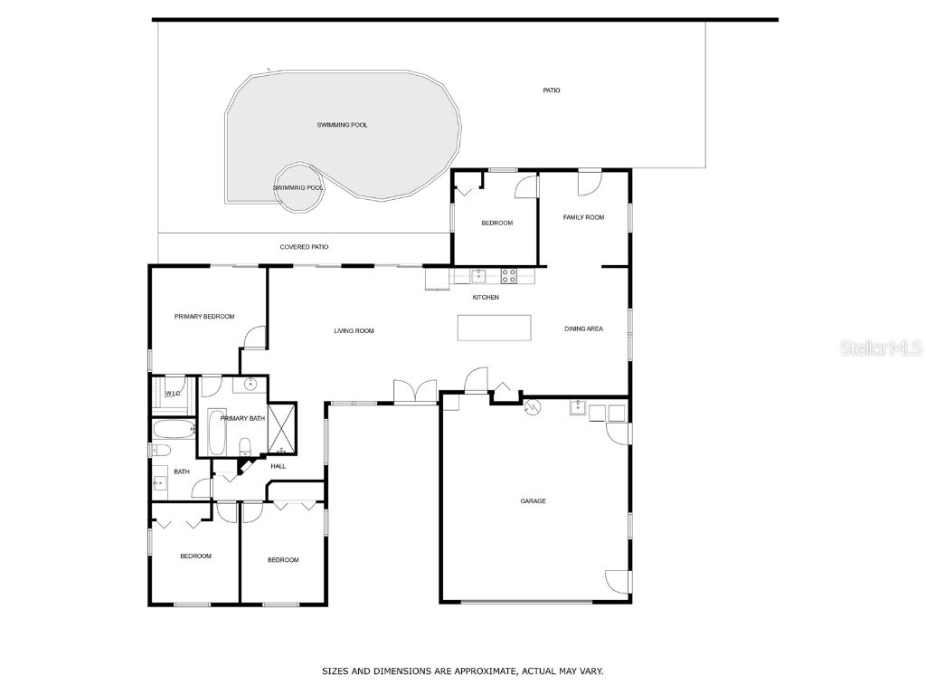
4 beds 2 baths 1,915 sq ft Single Family
Details for 567 Venice Lane
MLS# A4670981
Description for 567 Venice Lane, Sarasota, FL, 34242
Under contract-accepting backup offers. Under the canopy of grand oaks and banyan trees, this move-in-ready FURNISHED Siesta Key POOL home offers the perfect blend of luxury and coastal charm. Located minutes from the world-famous beach and village, this retreat has been redesigned for island living with almost every inch of the home renovated to perfection! A freshly painted exterior, paver driveway, and xeriscape landscaping create a warm welcome. Inside, an open floor plan creates effortless indoor-outdoor living with tile flooring, bright living area, and pocket sliding glass doors seamlessly connecting to your private backyard oasis. The expansive paradise features a sparkling pool and hot tub with new pump/heater, surrounded by new privacy fencing, and an extended paver patio. The heart of the home is the renovated chef's kitchen, boasting duo-toned soft-close cabinetry, quartz countertops, and tile backsplash. The oversized kitchen island and adjacent dining area set the stage for lively gatherings, while the cozy den opens up to the patio for effortless pool-side alfresco dining. The primary suite features direct pool access and a newly updated bathroom with soaking tub, walk-in shower, and modern finishes. Thoughtfully designed for privacy, the split floor plan includes a poolside guest room along with two additional bedrooms tucked in a private wing with an updated bathroom. Additional updates include a NEW AC system/ductwork and NEW Hot Water Heater ensuring year-round comfort. The oversized two car garage offers plenty of parking and extra space for a golf cart and beach gear. Enjoy the tranquility of the tree lined streets while still having easy access on and off the island. This home is being enjoyed by seasonal renters, but now it’s your turn to enjoy island life! Whether you're looking for a lucrative FURNISHED short-term rental, a seasonal retreat, or a forever home, this renovated Siesta Key gem offers the best of island living!
Listing Information
Property Type: Residential, Single Family Residence
Status: Pending
Bedrooms: 4
Bathrooms: 2
Lot Size: 0.26 Acres
Square Feet: 1,915 sq ft
Year Built: 1971
Garage: Yes
Stories: 1 Story
Construction: Block,Stucco
Subdivision: Siestas Bayside Waterside East
Foundation: Slab
County: Sarasota
Room Information
Main Floor
Bathroom 2: 12x13
Kitchen: 15x13
Living Room: 18x17
Family Room: 12x23
Dining Room: 16x13
Primary Bedroom: 14x13
Bathrooms
Full Baths: 2
Additonal Room Information
Laundry: In Garage
Interior Features
Appliances: Ice Maker, Exhaust Fan, Electric Water Heater, Washer, Microwave, Range, Refrigerator, Dishwasher, Disposal, Dryer, Freezer
Flooring: Ceramic Tile,Porcelain Tile
Doors/Windows: Window Treatments, Skylight(s)
Additional Interior Features: Ceiling Fan(s), Window Treatments, Split Bedrooms, Eat-In Kitchen, Walk-In Closet(s), Main Level Primary, Living/Dining Room, Skylights, Kitchen/Family Room Combo, Open Floorplan, Stone Counters
Utilities
Water: Public
Sewer: Public Sewer
Other Utilities: Cable Connected,High Speed Internet Available,Sewer Connected,Water Connected
Cooling: Ceiling Fan(s), Central Air
Heating: Central, Electric
Exterior / Lot Features
Attached Garage: Attached Garage
Garage Spaces: 2
Roof: Tile
Pool: Heated, In Ground, Gunite
Fencing: Vinyl
Additional Exterior/Lot Features: Courtyard, Lighting, Dog Run
Driving Directions
South on Midnight Pass Road to Commonwealth Drive, immediate right onto Venice Lane, home will be on the right. Mailbox read 567.
Financial Considerations
Terms: Cash,Conventional,FHA,VA Loan
Tax/Property ID: 0079150022
Tax Amount: 10988.82
Tax Year: 2024
A broker reciprocity listing courtesy: PREFERRED SHORE LLC
Based on information provided by Stellar MLS as distributed by the MLS GRID. Information from the Internet Data Exchange is provided exclusively for consumers’ personal, non-commercial use, and such information may not be used for any purpose other than to identify prospective properties consumers may be interested in purchasing. This data is deemed reliable but is not guaranteed to be accurate by Edina Realty, Inc., or by the MLS. Edina Realty, Inc., is not a multiple listing service (MLS), nor does it offer MLS access.
Copyright 2026 Stellar MLS as distributed by the MLS GRID. All Rights Reserved.
Sales History & Tax Summary for 567 Venice Lane
Sales History
| Date | Price | |
|---|---|---|
| Currently not available. | ||
Tax Summary
| Tax Year | Estimated Market Value | Total Tax |
|---|---|---|
| Currently not available. | ||
Data powered by ATTOM Data Solutions. Copyright© 2026. Information deemed reliable but not guaranteed.
Schools
Schools nearby 567 Venice Lane
| Schools in attendance boundaries | Grades | Distance | Rating |
|---|---|---|---|
| Loading... | |||
| Schools nearby | Grades | Distance | Rating |
|---|---|---|---|
| Loading... | |||
Data powered by ATTOM Data Solutions. Copyright© 2026. Information deemed reliable but not guaranteed.
The schools shown represent both the assigned schools and schools by distance based on local school and district attendance boundaries. Attendance boundaries change based on various factors and proximity does not guarantee enrollment eligibility. Please consult your real estate agent and/or the school district to confirm the schools this property is zoned to attend. Information is deemed reliable but not guaranteed.
SchoolDigger ® Rating
The SchoolDigger rating system is a 1-5 scale with 5 as the highest rating. SchoolDigger ranks schools based on test scores supplied by each state's Department of Education. They calculate an average standard score by normalizing and averaging each school's test scores across all tests and grades.
Coming soon properties will soon be on the market, but are not yet available for showings.