5700 Oakview Lane Punta Gorda, FL 33950
For Sale MLS# 2026007484
4 beds 3 baths 2,708 sq ft Single Family
Details for 5700 Oakview Lane
MLS# 2026007484
Description for 5700 Oakview Lane, Punta Gorda, FL, 33950
Nestled in the heart of Florida’s natural allure, this NAVIGABLE WATERFRONT residence sits on an expansive oversized lot in a peaceful, laid-back country setting—yet remains remarkably convenient, just 2 miles from I75 and only 5 miles from Punta Gorda Downtown and the PG Airport. The property’s generous grounds offer exceptional versatility, accommodating additional buildings, recreational structures, or storage needs with ease, including the large detached carport ideal for boats, RVs, or other toys. Inside, the home is thoughtfully appointed with an open, vaulted-ceiling design accented by exposed beams across the kitchen, dining, and great room. A spacious walk-in pantry with barn-door access enhances both charm and functionality. The layout includes three bedrooms and two bathrooms, plus a private en-suite bedroom with its own outdoor entrance—perfect for guests or multigenerational living. Waterfront enjoyment is effortless with 189 feet of concrete seawall, a dock, and quick access to Charlotte Harbor for fishing, boating, canoeing, and kayaking. A comprehensive remodel brings modern comfort throughout, including newer flooring, shiplap accents, updated cabinetry and countertops, contemporary appliances, and upgraded lighting and fans. Recent major improvements—new roof, septic system, and water heaters—provide added peace of mind. Shaded by old-growth Florida oaks and surrounded by the quiet charm of a country-style setting, this secluded yet accessible property blends the best of classic Florida living with modern updates and abundant space to grow.
Listing Information
Property Type: Residential, Single Family Residence
Status: Active
Bedrooms: 4
Bathrooms: 3
Lot Size: 0.65 Acres
Square Feet: 2,708 sq ft
Year Built: 1957
Garage: Yes
Stories: 1 Story
Construction: Block,Concrete,Vinyl Siding,Wood Frame
Subdivision: Punta Gorda
Furnished: Yes
County: Charlotte
Days On Market: 40
Construction Status: Resale
Room Information
Bathrooms
Full Baths: 3
Additonal Room Information
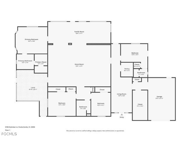
Other: Bedroom (14x12), Living Room (19x11), Bedroom (12x10), Bedroom (14x12), Primary Bedroom (18x14), Dining Room (12x8), Kitchen (14x11), Primary Bedroom (18x14), Great Room (22x15), Living Room (32x11)
Interior Features
Appliances: Tankless Water Heater, Wine Cooler, Cooktop, Dishwasher, Dryer, Microwave, Range, Refrigerator, Washer
Flooring: Laminate,Terrazzo
Doors/Windows: Other
Additional Interior Features: Eat-In Kitchen, Walk-In Closet(s), See Remarks, Tub Shower, Other
Utilities
Water: Public
Sewer: Septic Tank
Other Utilities: Cable Available
Cooling: Electric, Ceiling Fan(s), Central Air
Heating: Central, Electric
Exterior / Lot Features
Attached Garage: Attached Garage
Garage Spaces: 1
Parking Description: Detached Carport, Attached, Garage
Roof: Shingle
Lot View: River
Lot Dimensions: 51 x 194 x 125 x 194
Additional Exterior/Lot Features: None, Other, Patio, Patio, Porch, Lanai, Screened, Oversized Lot
Waterfront Details
Water Front Features: River Front
Community Features
Association Amenities: Boat Ramp
Driving Directions
Heading south of Tamiami Trail from Punta Gorda take a left on Acline Rd and then the first left on Oakview Ln. House will be near the end on the right-hand side at the bend in the road.
Financial Considerations
Terms: All Financing Considered,Cash,FHA,VA Loan
Tax/Property ID: 412328132004
Tax Amount: 3409
Tax Year: 2025
A broker reciprocity listing courtesy: RE/MAX Palm Realty
Based on information provided by FGCMLS. Internet Data Exchange information is provided exclusively for consumers’ personal, non-commercial use, and such information may not be used for any purpose other than to identify prospective properties consumers may be interested in purchasing. This data is deemed reliable but is not guaranteed to be accurate by Edina Realty, Inc., or by the MLS. Edina Realty, Inc., is not a multiple listing service (MLS), nor does it offer MLS access.
Copyright 2026 FGCMLS. All Rights Reserved.
Payment Calculator
Interest rate and annual percentage rate (APR) are based on current market conditions, are for informational purposes only, are subject to change without notice and may be subject to pricing add-ons related to property type, loan amount, loan-to-value, credit score and other variables. Estimated closing costs used in the APR calculation are assumed to be paid by the borrower at closing. If the closing costs are financed, the loan, APR and payment amounts will be higher. If the down payment is less than 20%, mortgage insurance may be required and could increase the monthly payment and APR. Contact us for details. Additional loan programs may be available. Accuracy is not guaranteed, and all products may not be available in all borrower's geographical areas and are based on their individual situation. This is not a credit decision or a commitment to lend.
Sales History & Tax Summary for 5700 Oakview Lane
Sales History
| Date | Price | |
|---|---|---|
| Currently not available. | ||
Tax Summary
| Tax Year | Estimated Market Value | Total Tax |
|---|---|---|
| Currently not available. | ||
Data powered by ATTOM Data Solutions. Copyright© 2026. Information deemed reliable but not guaranteed.
Schools
Schools nearby 5700 Oakview Lane
| Schools in attendance boundaries | Grades | Distance | Rating |
|---|---|---|---|
| Loading... | |||
| Schools nearby | Grades | Distance | Rating |
|---|---|---|---|
| Loading... | |||
Data powered by ATTOM Data Solutions. Copyright© 2026. Information deemed reliable but not guaranteed.
The schools shown represent both the assigned schools and schools by distance based on local school and district attendance boundaries. Attendance boundaries change based on various factors and proximity does not guarantee enrollment eligibility. Please consult your real estate agent and/or the school district to confirm the schools this property is zoned to attend. Information is deemed reliable but not guaranteed.
SchoolDigger ® Rating
The SchoolDigger rating system is a 1-5 scale with 5 as the highest rating. SchoolDigger ranks schools based on test scores supplied by each state's Department of Education. They calculate an average standard score by normalizing and averaging each school's test scores across all tests and grades.
Coming soon properties will soon be on the market, but are not yet available for showings.