5707 45th Street E #158 Bradenton, FL 34203
For Sale MLS# A4653156
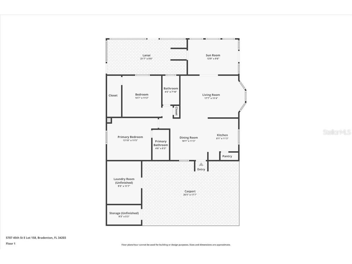
2 beds 2 baths 1,042 sq ft Single Family
Details for 5707 45th Street E #158
MLS# A4653156
Description for 5707 45th Street E #158, Bradenton, FL, 34203
INCREDIBLE PRICE IMPROVEMENT on this Beautifully UPDATED - MOVE IN READY Home in the Desirable Gold Tree 55+ Community! This is a MUST SEE ! NO LOT RENT- SHARE OWNED. Welcome to Lot 158 at 5707 45th Street E, Bradenton—a stunning home with $60,000+ in upgrades, located in the gated, resort-style Gold Tree Co-Op, an active 55+ community offering convenience, comfort, and peace of mind. This 2-bedroom, 2-bath home has been thoughtfully renovated from top to bottom. Notable updates include a new roof (2024), fully remodeled bathrooms (2023), New enclosed light-filled sunroom with HVAC (2020)—perfect for year-round enjoyment. The upgrades continue with: New appliances, Extended carport with epoxy, French drains for improved drainage, New Bahama shades, New windows, Waterproof LVP flooring, Nest thermostat, Piping replaced, Accessible water shut-off valve, New hose bibs and more! With modern finishes and practical improvements throughout, this home is truly turn-key. The Gold Tree community fee includes cable, internet, lawn maintenance, water, sewer, and trash—giving you hassle-free living with all the extras. Enjoy access to a wide range of amenities including a clubhouse, pool, fitness center, pickleball, shuffleboard, and more—all just minutes from shopping, dining, medical facilities, and Florida’s world-renowned beaches. Don’t miss this opportunity—schedule your private showing today and start living the Florida lifestyle you’ve been dreaming of!
Listing Information
Property Type: Residential, Manufactured Home
Status: Active
Bedrooms: 2
Bathrooms: 2
Lot Size: 0.11 Acres
Square Feet: 1,042 sq ft
Year Built: 1988
Stories: 1 Story
Construction: Vinyl Siding,Wood Frame
Subdivision: Gold Tree Co-Op
Foundation: Crawlspace
County: Manatee
School Information
Elementary: Tara Elementary
Middle: Braden River Middle
High: Braden River High
Room Information
Main Floor
Laundry: 12x9
Porch: 10x22
Bedroom 2: 11x11
Primary Bedroom: 12x14
Florida Room: 10x14
Kitchen: 11x8
Dining Room: 11x10
Living Room: 12x18
Bathrooms
Full Baths: 2
Additonal Room Information
Laundry: Outside
Interior Features
Appliances: Ice Maker, Microwave, Cooktop, Dishwasher, Refrigerator
Flooring: Ceramic Tile,Laminate
Basement: Crawl Space
Doors/Windows: Window Treatments, Shutters
Additional Interior Features: Ceiling Fan(s), Elevator, Window Treatments, Built-in Features, Walk-In Closet(s), Open Floorplan, Stone Counters, Wood Cabinets
Utilities
Water: Public
Sewer: Public Sewer
Other Utilities: Cable Connected,Electricity Connected,Municipal Utilities,Sewer Connected,Water Connected
Cooling: Ceiling Fan(s), Central Air
Heating: Central
Exterior / Lot Features
Parking Description: Golf Cart Garage, Covered, Oversized
Roof: Shingle
Pool: Association, Community
Additional Exterior/Lot Features: Lighting, Rain Gutters, Storage, Patio, Covered, Rear Porch, Side Porch, Front Porch, Enclosed, Screened, Buyer Approval Required
Out Buildings: Workshop, Storage, Shed(s)
Community Features
Community Features: Fitness, Street Lights, Gated, Pool, Tennis Court(s), Golf Carts OK, Clubhouse, Community Mailbox
Security Features: Gated Community
Association Amenities: Clubhouse, Fitness Center, Tennis Court(s), Recreation Facilities, Pool, Cable TV, Gated, Spa/Hot Tub, Maintenance Grounds
HOA Dues Include: Road Maintenance, Maintenance Grounds, Common Areas, Pool(s), Taxes, Association Management, Trash, Water, Internet, Cable TV, Recreation Facilities, Sewer
Homeowners Association: Yes
HOA Dues: $292 / Monthly
Driving Directions
Lockwood Ridge between 53rd and Honore. East at 57th Ave, Look for Gold Tree sign. Lot 158. put 158 Gold Lake St in GPS to find easier.
Financial Considerations
Terms: Cash,Conventional
Tax/Property ID: 1735608409
Tax Amount: 1057
Tax Year: 2024
A broker reciprocity listing courtesy: RE/MAX ALLIANCE GROUP
Based on information provided by Stellar MLS as distributed by the MLS GRID. Information from the Internet Data Exchange is provided exclusively for consumers’ personal, non-commercial use, and such information may not be used for any purpose other than to identify prospective properties consumers may be interested in purchasing. This data is deemed reliable but is not guaranteed to be accurate by Edina Realty, Inc., or by the MLS. Edina Realty, Inc., is not a multiple listing service (MLS), nor does it offer MLS access.
Copyright 2025 Stellar MLS as distributed by the MLS GRID. All Rights Reserved.
Payment Calculator
Interest rate and annual percentage rate (APR) are based on current market conditions, are for informational purposes only, are subject to change without notice and may be subject to pricing add-ons related to property type, loan amount, loan-to-value, credit score and other variables. Estimated closing costs used in the APR calculation are assumed to be paid by the borrower at closing. If the closing costs are financed, the loan, APR and payment amounts will be higher. If the down payment is less than 20%, mortgage insurance may be required and could increase the monthly payment and APR. Contact us for details. Additional loan programs may be available. Accuracy is not guaranteed, and all products may not be available in all borrower's geographical areas and are based on their individual situation. This is not a credit decision or a commitment to lend.
Sales History & Tax Summary for 5707 45th Street E #158
Sales History
| Date | Price | Change |
|---|---|---|
| Currently not available. | ||
Tax Summary
| Tax Year | Estimated Market Value | Total Tax |
|---|---|---|
| Currently not available. | ||
Data powered by ATTOM Data Solutions. Copyright© 2025. Information deemed reliable but not guaranteed.
Schools
Schools nearby 5707 45th Street E #158
| Schools in attendance boundaries | Grades | Distance | Rating |
|---|---|---|---|
| Loading... | |||
| Schools nearby | Grades | Distance | Rating |
|---|---|---|---|
| Loading... | |||
Data powered by ATTOM Data Solutions. Copyright© 2025. Information deemed reliable but not guaranteed.
The schools shown represent both the assigned schools and schools by distance based on local school and district attendance boundaries. Attendance boundaries change based on various factors and proximity does not guarantee enrollment eligibility. Please consult your real estate agent and/or the school district to confirm the schools this property is zoned to attend. Information is deemed reliable but not guaranteed.
SchoolDigger ® Rating
The SchoolDigger rating system is a 1-5 scale with 5 as the highest rating. SchoolDigger ranks schools based on test scores supplied by each state's Department of Education. They calculate an average standard score by normalizing and averaging each school's test scores across all tests and grades.
Coming soon properties will soon be on the market, but are not yet available for showings.